Images
Description
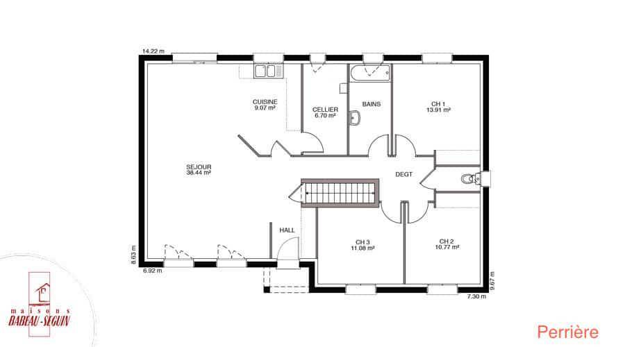
Sur ce terrain, nous vous proposons cette maison neuve Perrière de 97 m². Ce modèle design de plain-pied possède deux hauteurs de toits qui cassent la monotonie de la façade, offrant ainsi une esthétique moderne et attrayante. Avec ses 3 chambres et ses 4 pièces, cette maison familiale par excellence saura vous séduire.
La Perrière est une maison traditionnelle possédant une avancée de toit qui vient protéger les portes-fenêtres de la façade avant et la porte d’entrée. Ce modèle peut être agrémenté d’un garage ou d’un sous-sol disponible en option, selon vos besoins et préférences.
Construite par Babeau-Seguin, constructeur offrant le meilleur rapport qualité/prix du marché, cette maison neuve est basse consommation et conforme à la RE2020, garantissant ainsi des performances énergétiques optimales et un confort de vie inégalé.
Disposant d'un très bon rapport qualité/prix et de tout le savoir-faire Babeau-Seguin, la Perrière est un modèle de maison à prix réduit sans pour autant être une maison low-cost. Cerise sur le gâteau ? Le plan est personnalisable en fonction de votre mode de vie !
Ne manquez pas cette opportunité unique de construire la maison de vos rêves sur ce terrain. Contactez-nous dès maintenant pour plus d'informations et pour découvrir toutes les options disponibles pour personnaliser votre future maison Perrière.
Logement susceptibles de vous intéresser
Nous vous proposons de découvrir aussi cette sélection de logements situés à moins de 10km de Griselles et qui seraient susceptibles de vous intéresser.
La Selle-en-Hermoy
TERRAIN ET MAISONBelle parcelle constructible de 1004 m² situé dans le bourg avec écoles et boulangerie à pieds. A moins de 15 mn en voiture de Montargis. Un intérieur moderne et fonctionnel pour toute la famille ! Cette maison a été conçue pour offrir espace et confort avec un agencement pensé pour le bien-être de chacun. Au rez-de-chaussée, une grande pièce de vie baignée de lumière vous accueille, offrant un cadre chaleureux où le salon, la salle à manger et la cuisine se fondent harmonieusement. Un cellier bien situé vient compléter cet espace pour un rangement optimal. Pour plus de confort, une suite parentale avec salle d’eau est aménagée au rez-de-chaussée, garantissant indépendance et tranquillité. À l’étage, trois chambres spacieuses offrent à chaque membre de la famille un espace personnel agréable. Une grande salle de bain complète cet étage, idéale pour le quotidien. Pour vous assurer un confort de vie optimal et en conformité avec la RE2025, nous avons opté pour un système de chauffage par pompe à chaleur (PAC) avec plancher chauffant au rez-de-chaussée et radiateurs à l’étage. Le logement est également équipé de volets roulants électriques. Prix hors fourniture et pose : des appareils sanitaires (sauf système de chauffage et d'eau chaude sanitaire), du carrelage et de la faïence, des revêtements de sol dans les chambres. Hors décoration et aménagement intérieur et peinture. Hors raccordements, frais de notaire et dommage ouvrage. // Réf. : 2474-210500-SYV. Prix terrain : 27 000 €, hors frais d'agence à la charge de l'acquéreur. Ce terrain vous est proposé, par nos partenaires fonciers, dans le cadre d'un projet de construction avec nous. Les informations sur les risques auxquels ce bien est exposé sont disponibles sur le site Géorisques (www.georisques.gouv.fr). Prix maison : 166 842 €.
La Selle-en-Hermoy
TERRAIN ET MAISONBelle parcelle constructible de 1004 m² situé dans le bourg avec écoles et boulangerie à pieds. A moins de 15 mn en voiture de Montargis. Agréable et spacieuse, cette maison de plain-pied vous propose une cuisine aménagée ouverte sur un vaste salon séjour donnant sur l'arrière. La cuisine est à proximité d'un cellier et d'un garage, ce qui facilite l'habitabilité de cette maison. L'espace nuit est composé de trois belles chambres avec rangement, d'une salle de bains équipée et des wc séparés. Ses jeux d'enduits personnalisables sauront vous séduire. Pour vous assurer un confort de vie et conformément à la RE2025, nous avons choisi un mode de chauffage par PAC + plancher chauffant, volets roulants électriques. Prix hors fourniture et pose : des appareils sanitaires (sauf système de chauffage et d'eau chaude sanitaire), du carrelage et de la faïence, des revêtements de sol dans les chambres. Hors décoration et aménagement intérieur et peinture. Hors raccordements, frais de notaire et dommage ouvrage. // Réf. : 1083-210500-SYV. Prix terrain : 27 000 €, hors frais d'agence à la charge de l'acquéreur. Ce terrain vous est proposé, par nos partenaires fonciers, dans le cadre d'un projet de construction avec nous. Les informations sur les risques auxquels ce bien est exposé sont disponibles sur le site Géorisques (www.georisques.gouv.fr). Prix maison : 135 228 €.
La Selle-en-Hermoy
TERRAIN ET MAISONBelle parcelle constructible de 1004 m² situé dans le bourg avec écoles et boulangerie à pieds. A moins de 15 mn en voiture de Montargis. Idéal premier achat, cette maison de plain-pied fonctionnelle et lumineuse vous propose une vaste pièce de vie éclairée par sa grande baie vitrée avec cuisine ouverte, deux chambres avec rangement, salle de bains et cellier indépendant. Pour vous assurer un confort de vie et conformément à la RE2025, nous avons choisi un mode de chauffage par PAC + plancher chauffant, volets roulants électriques. Prix hors fourniture et pose : des appareils sanitaires (sauf système de chauffage et d'eau chaude sanitaire), du carrelage et de la faïence, des revêtements de sol dans les chambres. Hors décoration et aménagement intérieur et peinture. Hors raccordements, frais de notaire et dommage ouvrage. // Réf. : 903-210500-SYV. Prix terrain : 27 000 €, hors frais d'agence à la charge de l'acquéreur. Ce terrain vous est proposé, par nos partenaires fonciers, dans le cadre d'un projet de construction avec nous. Les informations sur les risques auxquels ce bien est exposé sont disponibles sur le site Géorisques (www.georisques.gouv.fr). Prix maison : 100 012 €.
La Selle-en-Hermoy
TERRAINBelle parcelle constructible de 1004 m² situé dans le bourg avec écoles et boulangerie à pieds. A moins de 15 mn en voiture de Montargis. // Réf. : T210500. Prix terrain : 27 000 €, hors frais d'agence et de notaire à la charge de l'acquéreur. Ce terrain vous est proposé, par nos partenaires fonciers, dans le cadre d'un projet de construction avec nous. Les informations sur les risques auxquels ce bien est exposé sont disponibles sur le site Géorisques (www.georisques.gouv.fr).
La Selle-en-Hermoy
TERRAIN ET MAISONBelle parcelle constructible de 1004 m² situé dans le bourg avec écoles et boulangerie à pieds. A moins de 15 mn en voiture de Montargis. Une maison familiale spacieuse et parfaitement agencée !. Avec ses 134 m² de surface habitable, ce modèle séduit par une configuration équilibrée et fluide. L’entrée dessert un vaste espace de vie central de près de 50 m², idéal pour partager, recevoir et profiter d’une belle luminosité. Le coin nuit, bien séparé, comprend 4 vraies chambres, deux WC, une salle de bain et une salle d’eau : une vraie réponse aux besoins d’une famille active. Un dressing spacieux, un grand cellier et un garage complètent ce plan bien pensé. Tout est réuni pour une vie de famille sereine dans une maison moderne, confortable et facile à vivre. Pour un confort optimal et conforme à la RE2025, cette maison dispose d’une PAC avec plancher chauffant et volets roulants électriques. À noter : Le prix indiqué exclut les revêtements de sol des chambres, la cuisine aménagée, la peinture, la décoration, les raccordements, les frais de notaire et l’assurance dommages-ouvrage. . // Réf. : 74-210500-SYV. Prix terrain : 27 000 €, hors frais d'agence à la charge de l'acquéreur. Ce terrain vous est proposé, par nos partenaires fonciers, dans le cadre d'un projet de construction avec nous. Les informations sur les risques auxquels ce bien est exposé sont disponibles sur le site Géorisques (www.georisques.gouv.fr). Prix maison : 286 057 €.
La Selle-en-Hermoy
TERRAIN ET MAISONBelle parcelle constructible de 1004 m² situé dans le bourg avec écoles et boulangerie à pieds. A moins de 15 mn en voiture de Montargis. Une maison qui coche toutes les cases ! Avec son agencement clair et fonctionnel, ce modèle est un vrai coup de cœur pour les familles en quête de simplicité efficace. L’espace de vie traversant invite à la lumière naturelle, tandis que les 3 chambres sont idéalement réparties pour préserver l’intimité de chacun. Un bureau discret s’adapte à tous les projets, qu’ils soient pro ou perso. Salle de bain, cellier, WC séparé et garage attenant : chaque détail a été pensé pour vous simplifier la vie au quotidien. Une maison qui s’adapte à vos besoins, à votre rythme, et à vos envies d’évolution. Pour un confort optimal et conforme à la RE2025, cette maison dispose d’une PAC avec plancher chauffant et volets roulants électriques. À noter : Le prix indiqué exclut les revêtements de sol des chambres, la cuisine aménagée, la peinture, la décoration, les raccordements, les frais de notaire et l’assurance dommages-ouvrage. . Contactez-nous dès aujourd’hui pour personnaliser cette maison selon vos envies et construire le projet de vos rêves !. // Réf. : 120-210500-SYV. Prix terrain : 27 000 €, hors frais d'agence à la charge de l'acquéreur. Ce terrain vous est proposé, par nos partenaires fonciers, dans le cadre d'un projet de construction avec nous. Les informations sur les risques auxquels ce bien est exposé sont disponibles sur le site Géorisques (www.georisques.gouv.fr). Prix maison : 161 653 €.
La Selle-en-Hermoy
TERRAIN ET MAISONBelle parcelle constructible de 1004 m² situé dans le bourg avec écoles et boulangerie à pieds. A moins de 15 mn en voiture de Montargis. Votre maison, votre signature ! Ici, tout est possible : un vaste salon-séjour lumineux, une cuisine à façonner selon vos envies, et une chambre en rez-de-chaussée pour plus de confort. À l’étage, trois chambres et une salle de bain créent un espace nuit chaleureux et fonctionnel. Besoin d’un coin télétravail, d’un dressing ou d’un grenier aménageable ? Adaptez chaque m² à votre mode de vie !. Créez un espace qui vous ressemble, imaginez votre futur chez-vous !. Pour un confort optimal et conforme à la RE2025, cette maison dispose d’une PAC avec plancher chauffant, radiateurs à l’étage et volets roulants électriques. À noter : Le prix indiqué exclut les revêtements de sol des chambres, la cuisine aménagée, la peinture, la décoration, les raccordements, les frais de notaire et l’assurance dommages-ouvrage. . // Réf. : 126-210500-SYV. Prix terrain : 27 000 €, hors frais d'agence à la charge de l'acquéreur. Ce terrain vous est proposé, par nos partenaires fonciers, dans le cadre d'un projet de construction avec nous. Les informations sur les risques auxquels ce bien est exposé sont disponibles sur le site Géorisques (www.georisques.gouv.fr). Prix maison : 187 780 €.
La Selle-en-Hermoy
TERRAINBelle parcelle constructible de 1004 m² situé dans le bourg avec écoles et boulangerie à pieds. A moins de 15 mn en voiture de Montargis. // Réf. : T210500. Prix terrain : 27 000 €, hors frais d'agence et de notaire à la charge de l'acquéreur. Ce terrain vous est proposé, par nos partenaires fonciers, dans le cadre d'un projet de construction avec nous. Les informations sur les risques auxquels ce bien est exposé sont disponibles sur le site Géorisques (www.georisques.gouv.fr).
Paucourt
TERRAIN ET MAISONTrès beau terrain plat de 780 m² entièrement viabilisé dans quartier calme et pavillonnaire proche forêt pour de belles balades. Commune avec écoles et ramassage scolaire pour collège. Lycée et gare de Montargis à 3 mn en voiture. Idéale pour une première acquisition, charmante maison de plain-pied d’une surface habitable de 75 m² composée d’un espace de vie avec cuisine ouverte de 40 m² environ, un accès cellier et garage, une salle de bains avec baignoire, un wc séparé et deux chambres avec placards. Pour vous assurer un confort de vie et conformément à la RE2025, nous avons choisi un mode de chauffage par PAC + plancher chauffant, volets roulants électriques. Prix hors fourniture et pose : des appareils sanitaires (sauf système de chauffage et d'eau chaude sanitaire), du carrelage et de la faïence, des revêtements de sol dans les chambres. Hors décoration et aménagement intérieur et peinture. Hors raccordements, frais de notaire et dommage ouvrage. // Réf. : 1457-210081-SYV. Prix terrain : 55 000 €, hors frais d'agence à la charge de l'acquéreur. Ce terrain vous est proposé, par nos partenaires fonciers, dans le cadre d'un projet de construction avec nous. Les informations sur les risques auxquels ce bien est exposé sont disponibles sur le site Géorisques (www.georisques.gouv.fr). Prix maison : 116 327 €.
L’actualité immobilière à Griselles
27/11/2023
02/11/2023
30/10/2023
20/10/2023
16/10/2023
16/10/2023