Images
Description
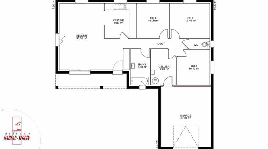
Sur ce terrain, nous vous proposons cette maison neuve : la Sauvetière sud. Avec ses allures de maison moderne et son plan en L, cette maison de 80 m² vous séduira à coup sûr. Conçue par Babeau-Seguin, constructeur offrant le meilleur rapport qualité/prix du marché, cette maison de plain-pied économique est idéale pour les familles à la recherche de confort et de modernité.
La Sauvetière sud dispose de 3 pièces, dont un grand séjour lumineux et 2 chambres spacieuses. Son architecture en L intègre un garage accolé, offrant un accès direct à la maison. Vous aurez le choix entre une toiture à 2 pans ou 4 pans, recouverte de tuiles Canal, pour une esthétique traditionnelle et élégante.
Les options les plus demandées par nos clients sont également disponibles pour cette maison : volets roulants motorisés, domotique et menuiseries en aluminium. Ces équipements modernes vous offriront un confort de vie optimal et une gestion simplifiée de votre habitat.
Cette maison neuve est basse consommation et conforme à la réglementation environnementale RE2020, garantissant des performances énergétiques optimales et un impact environnemental réduit.
A découvrir rapidement !
Logement susceptibles de vous intéresser
Nous vous proposons de découvrir aussi cette sélection de logements situés à moins de 10km de Puiseaux et qui seraient susceptibles de vous intéresser.
Puiseaux
TERRAIN ET MAISONPuiseaux (45390) – Terrain à bâtir de 423 m²Beau terrain viabilisé situé dans un lotissement calme et familial. Proche du centre bourg, des écoles et des commerces. Terrain plat, bien orienté, libre constructeur. Parfait pour votre projet de maison individuelle à Puiseaux !. Grande maison familiale moderne – personnalisable selon vos envies ! Laissez-vous séduire par cette maison lumineuse et spacieuse, offrant 5 chambres, dont une au rez-de-chaussée, 2 salles de bains et un espace de vie généreux de près de 40 m². Pensée pour le confort et la convivialité, elle allie design contemporain et fonctionnalité. Ses volumes optimisés et ses possibilités de personnalisation en font le projet idéal pour votre famille. Pour un confort optimal et conforme à la RE2025, cette maison dispose d’une PAC avec plancher chauffant, radiateurs à l’étage et volets roulants électriques. À noter : Le prix indiqué exclut les revêtements de sol des chambres, la cuisine aménagée, la peinture, la décoration, les raccordements, les frais de notaire et l’assurance dommages-ouvrage. . // Réf. : 6-210804-GUG. Prix terrain : 45 900 €, hors frais d'agence à la charge de l'acquéreur. Ce terrain vous est proposé, par nos partenaires fonciers, dans le cadre d'un projet de construction avec nous. Les informations sur les risques auxquels ce bien est exposé sont disponibles sur le site Géorisques (www.georisques.gouv.fr). Prix maison : 222 537 €.
Puiseaux
TERRAIN ET MAISONPuiseaux (45390) – Terrain à bâtir de 423 m²Beau terrain viabilisé situé dans un lotissement calme et familial. Proche du centre bourg, des écoles et des commerces. Terrain plat, bien orienté, libre constructeur. Parfait pour votre projet de maison individuelle à Puiseaux !. Le cocon idéal pour une première acquisition ! À la recherche d’un chez-vous accessible et fonctionnel ? Cette maison est parfaite pour un premier achat ! Son espace de vie lumineux de près de 40 m² invite à la convivialité, tandis que ses 2 chambres cosy offrent un coin nuit confortable et bien pensé. Un garage attenant et un cellier pratique complètent ce cocon malin et optimisé. Facile à vivre, évolutive et personnalisable, elle coche toutes les cases pour bien débuter ! Et si c’était le point de départ de votre nouvelle vie ?. Pour un confort optimal et conforme à la RE2025, cette maison dispose d’une PAC avec plancher chauffant et volets roulants électriques. À noter : Le prix indiqué exclut les revêtements de sol des chambres, la cuisine aménagée, la peinture, la décoration, les raccordements, les frais de notaire et l’assurance dommages-ouvrage. // Réf. : 13-210804-GUG. Prix terrain : 45 900 €, hors frais d'agence à la charge de l'acquéreur. Ce terrain vous est proposé, par nos partenaires fonciers, dans le cadre d'un projet de construction avec nous. Les informations sur les risques auxquels ce bien est exposé sont disponibles sur le site Géorisques (www.georisques.gouv.fr). Prix maison : 126 423 €.
Puiseaux
TERRAIN ET MAISONPuiseaux (45390) – Terrain à bâtir de 423 m²Beau terrain viabilisé situé dans un lotissement calme et familial. Proche du centre bourg, des écoles et des commerces. Terrain plat, bien orienté, libre constructeur. Parfait pour votre projet de maison individuelle à Puiseaux !. Un espace à vivre, une maison à imaginer – la vôtre ! Ici, tout est pensé pour conjuguer espace, lumière et confort. Une pièce de vie ouverte de plus de 55 m², un garage attenant pour plus de praticité, et une organisation fluide qui s’adapte à votre mode de vie. À l’étage, trois chambres cosy, une mezzanine suspendue entre intimité et convivialité, et une salle de bain familiale composent un cocon chaleureux pour toute la famille. Pour un confort optimal et conforme à la RE2025, cette maison dispose d’une PAC avec plancher chauffant, radiateurs à l’étage et volets roulants électriques. À noter : Le prix indiqué exclut les revêtements de sol des chambres, la cuisine aménagée, la peinture, la décoration, les raccordements, les frais de notaire et l’assurance dommages-ouvrage. . Laissez libre cours à votre imagination, façonnez chaque détail. Une maison unique, à votre image. // Réf. : 20-210804-GUG. Prix terrain : 45 900 €, hors frais d'agence à la charge de l'acquéreur. Ce terrain vous est proposé, par nos partenaires fonciers, dans le cadre d'un projet de construction avec nous. Les informations sur les risques auxquels ce bien est exposé sont disponibles sur le site Géorisques (www.georisques.gouv.fr). Prix maison : 188 284 €.
Puiseaux
TERRAINPuiseaux (45390) – Terrain à bâtir de 423 m²Beau terrain viabilisé situé dans un lotissement calme et familial. Proche du centre bourg, des écoles et des commerces. Terrain plat, bien orienté, libre constructeur. Parfait pour votre projet de maison individuelle à Puiseaux !. // Réf. : T210804. Prix terrain : 45 900 €, hors frais d'agence et de notaire à la charge de l'acquéreur. Ce terrain vous est proposé, par nos partenaires fonciers, dans le cadre d'un projet de construction avec nous. Les informations sur les risques auxquels ce bien est exposé sont disponibles sur le site Géorisques (www.georisques.gouv.fr).
Amponville
TERRAIN(Numéro supprimé) — Les maisons CLAIRVAL vous proposent ce terrain de 600 m², situé à Amponville, agréable commune de Seine-et-Marne, à seulement 20 minutes de Milly-la-Forêt et proche de Fontainebleau. Vous y profiterez d’un environnement calme et verdoyant, tout en restant à proximité des commerces, écoles et services essentiels disponibles dans les communes voisines.Ce terrain plat et bien dimensionné est idéal pour envisager la construction d’une maison lumineuse, confortable et économe en énergie, conforme à la RE2020. Votre projet sera étudié sur mesure avec un large choix de prestations : finitions intérieures personnalisables, solutions énergétiques performantes, menuiseries contemporaines, domotique intelligente et possibilité d’isolation par l’extérieur pour un confort renforcé et durable.📞 N’hésitez pas à nous contacter pour visiter ce terrain et imaginer votre projet à Amponville.Prix : 90000 €.Sur ce terrain de 600 m² à AMPONVILLE, Maisons Clairval vous propose de réaliser votre projet de construction de maison individuelle.Demandez une étude gratuite et personnalisée de votre projet de construction sur ce terrain !Contactez John BOUT au (Numéro supprimé) ou au (Numéro supprimé) (Maisons Clairval – Agence de Rouvres).Prix hors frais de notaire. Terrain sélectionné et vu pour vous sous réserve de disponibilité et au prix indiqué par notre partenaire foncier. Conditions et visuels non contractuels.Cette annonce a été créée et diffusée avec le logiciel VITAHOME.
Amponville
TERRAINTerrain de 2 113 m² à vendre à AmponvilleEMPLACEMENT PRIVILÉGIÉ – PROCHE DE MELUNÀ Amponville (77760) en vente à deux pas de Melun, découvrez ce terrain de 2 113 m². Il se situe dans un secteur attractif. Une école élémentaire y est implantée. Côté transports, il y a la station de RER Malesherbes (ligne D) ainsi que la gare Malesherbes à moins de 10 minutes en voiture.Il est proposé à l’achat pour 102 500 €. Contactez notre agence (DELOHEN Anne : (Numéro supprimé)) pour obtenir de plus amples renseignements sur ce terrain, sur les modalités de vente ou sur les démarches à suivre. Maisons France Confort Nemours est là pour vous accompagner à toutes les étapes de l’achat.Annonce proposée par un Agent Commercial Partenaire.
Amponville
TERRAIN ET MAISONAmponville : maison de 5 pièces (90 m²) en venteEMPLACEMENT PRIVILÉGIÉ – MAISON 5 PIÈCES NEUVEÀ vendre à quelques kilomètres de Melun, ayez le coup de coeur pour cette maison de 5 pièces de 90 m² et de 2 113 m² de terrain bénéficiant d’un emplacement d’exception dans Amponville (77760). Son intérieur offre trois chambres, une cuisine et une salle de bains.Il s’agit d’une maison de 2 niveaux. Elle est neuve.La maison se trouve dans un quartier convoité. On y trouve une école élémentaire. Côté transports, il y a la station de RER Malesherbes (ligne D) ainsi que la gare Malesherbes à moins de 10 minutes en voiture.Son prix de vente est de 286 700 €.N’hésitez pas à prendre contact avec Anne DELOHEN (tél : (Numéro supprimé)) pour toute information sur la maison. Maisons France Confort Nemours vous accompagne dans tous vos projets immobiliers et à toutes les étapes de l’achat.Annonce proposée par un Agent Commercial Partenaire.
Amponville
TERRAIN ET MAISONVENTE : maison de 6 pièces (105 m²) à AmponvilleEMPLACEMENT PRIVILÉGIÉ – MAISON 6 PIÈCES NEUVEÀ vendre à deux pas de Melun, laissez vous charmer par cette maison de 6 pièces de plain-pied de 105 m², bénéficiant d’un emplacement privilégié dans Amponville (77760).Conçue de plain-pied, elle comporte quatre chambres, une cuisine et deux salles de bains. La maison est neuve.Le terrain de la propriété s’étend sur 2 113 m².Cette maison est située dans un quartier recherché. Une école élémentaire y est implantée. Niveau transports en commun, on trouve la station de RER Malesherbes (ligne D) ainsi que la gare Malesherbes à moins de 10 minutes en voiture.Elle est à vendre pour la somme de 315 900 €.Contactez Anne DELOHEN ((Numéro supprimé)) pour plus d’informations sur la maison ou sur les démarches à suivre.Annonce proposée par un Agent Commercial Partenaire.
Amponville
TERRAIN ET MAISONVENTE d’une maison T6 (115 m²) à AmponvilleEMPLACEMENT PRIVILÉGIÉ – MAISON 6 PIÈCES NEUVEÀ vendre à quelques kilomètres de Melun, bénéficiant d’un emplacement d’exception dans Amponville (77760), nous sommes heureux de vous proposer cette maison de 6 pièces de 115 m² et de 2 113 m² de terrain.Cette maison possède 2 niveaux. Elle inclut quatre chambres, une cuisine et deux salles de bains. Cette maison est neuve.Le bien se trouve dans un secteur convoité. On y trouve une école élémentaire. Niveau transports en commun, il y a la station de RER Malesherbes (ligne D) ainsi que la gare Malesherbes à moins de 10 minutes en voiture.Il est à vendre pour la somme de 340 600 €.N’hésitez pas à prendre contact avec notre agence (Anne DELOHEN : (Numéro supprimé)) pour toute information sur la maison ou sur les modalités de vente. Faites de vos projets immobiliers une réalité avec Maisons France Confort Nemours.Annonce proposée par un Agent Commercial Partenaire.
L’actualité immobilière à Puiseaux
27/11/2023
02/11/2023
30/10/2023
20/10/2023
16/10/2023
16/10/2023