Maison neuve à Payrac (46350)
Images
Description
Projet de construction - Maison 138 m² + Terrain - Payrac (Lot 46)
Emplacement idéal - Maison moderne et ultra confortable
Dans le cadre d'un projet de construction, nous vous proposons un superbe terrain avec maison situé à Payrac, charmant village dynamique du Lot, avec toutes les petites commodités essentielles.
Situation exceptionnelle :
Vous êtes entre Souillac et Gourdon pour toutes les courses du quotidien, et à proximité directe des sites touristiques majeurs : Rocamadour, Padirac, Sarlat... Un emplacement rare, parfait pour y vivre, investir ou profiter d'une qualité de vie privilégiée au coeur d'une magnifique région.
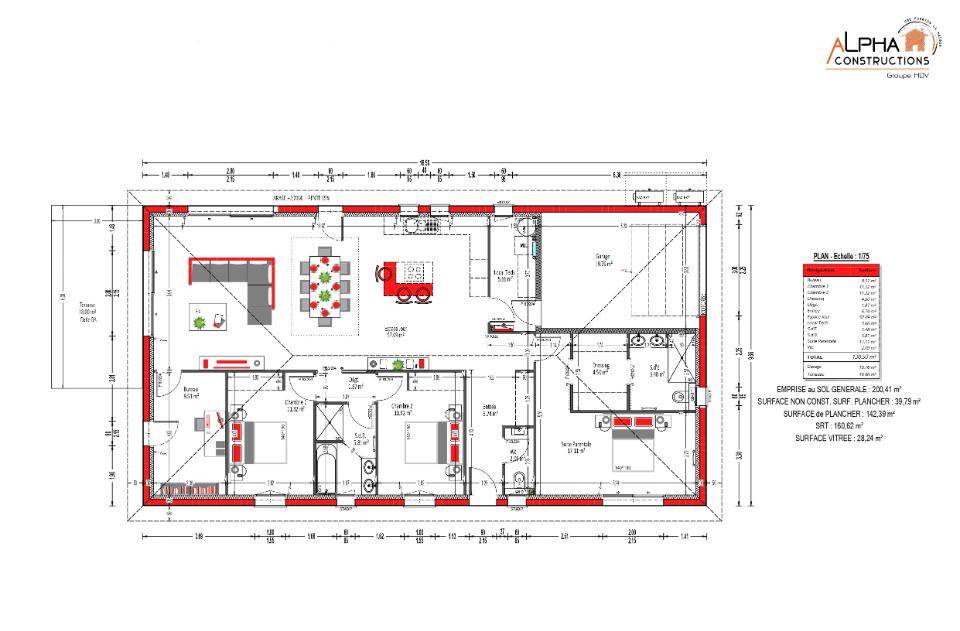
La maison : 138 m² de confort, de lumière et de modernité
Une architecture en 4 pans, pensée pour éliminer toute perte d'espace et offrir un plan fonctionnel et ultra agréable.
Espace jour :
- Grand garage donnant sur un cellier pratique
- Entrée avec grand placard + WC indépendant
- Très grande pièce de vie lumineuse
- Cuisine ouverte sur un vaste salon-séjour
Terrasse en prolongement du séjour : un vrai bonheur pour profiter du cadre paisible de cette région.
Espace nuit 1 (côté famille)
- Un bureau ouvert donnant sur le salon
- 2 belles chambres
- Une grande salle de bain équipée : double vasque, douche italienne + baignoire
- Espace nuit pensé pour le calme et la praticité
Suite parentale (à l'opposé pour plus d'intimité)
- Très grande chambre
- Grand dressing
- Salle d'eau avec double vasque, WC et grande douche italienne
Un espace entièrement dédié au confort et à la tranquillité.
Pourquoi ce projet est un vrai coup de coeur :
- Maison moderne, lumineuse, très bien pensée
- Volumes efficaces, aucune perte d'espace
- Emplacement top au coeur du Lot
Secteur recherché et parfait pour une vie paisible avec un plan confortable, élégant et pratique au quotidien !
Appelez Marie MUNOZ au (Numéro supprimé) pour en savoir plus ou pour organiser une rencontre.
Logement susceptibles de vous intéresser
Nous vous proposons de découvrir aussi cette sélection de logements situés à moins de 10km de Payrac et qui seraient susceptibles de vous intéresser.
Payrac
TERRAIN ET MAISONProjet de construction – Maison 138 m² + Terrain – Payrac (Lot 46)Emplacement idéal – Maison moderne et ultra confortableDans le cadre d’un projet de construction, nous vous proposons un superbe terrain avec maison situé à Payrac, charmant village dynamique du Lot, avec toutes les petites commodités essentielles.Situation exceptionnelle :Vous êtes entre Souillac et Gourdon pour toutes les courses du quotidien, et à proximité directe des sites touristiques majeurs : Rocamadour, Padirac, Sarlat… Un emplacement rare, parfait pour y vivre, investir ou profiter d’une qualité de vie privilégiée au coeur d’une magnifique région.La maison : 138 m² de confort, de lumière et de modernitéUne architecture en 4 pans, pensée pour éliminer toute perte d’espace et offrir un plan fonctionnel et ultra agréable.Espace jour :- Grand garage donnant sur un cellier pratique- Entrée avec grand placard + WC indépendant- Très grande pièce de vie lumineuse- Cuisine ouverte sur un vaste salon-séjourTerrasse en prolongement du séjour : un vrai bonheur pour profiter du cadre paisible de cette région.Espace nuit 1 (côté famille)- Un bureau ouvert donnant sur le salon- 2 belles chambres- Une grande salle de bain équipée : double vasque, douche italienne + baignoire- Espace nuit pensé pour le calme et la praticitéSuite parentale (à l’opposé pour plus d’intimité)- Très grande chambre- Grand dressing- Salle d’eau avec double vasque, WC et grande douche italienneUn espace entièrement dédié au confort et à la tranquillité.Pourquoi ce projet est un vrai coup de coeur :- Maison moderne, lumineuse, très bien pensée- Volumes efficaces, aucune perte d’espace- Emplacement top au coeur du LotSecteur recherché et parfait pour une vie paisible avec un plan confortable, élégant et pratique au quotidien !Appelez Marie MUNOZ au (Numéro supprimé) pour en savoir plus ou pour organiser une rencontre.
Payrac
TERRAIN ET MAISONNouveau projet de construction – Payrac (19)Découvrez ce superbe projet de construction situé dans le charmant et paisible village de Payrac, un véritable havre de paix situé en Gourdon et Souillac. Avec les plus beaux sites touristiques de la région, ce projet vous offrira un emplacement privilégié au coeur d’une magnifique région.Un cadre idéal pour profiter de la tranquillité sans vous éloigner de la vie quotidienne.Une maison en T moderne, lumineuse et parfaitement pensée – 120 m²Cette maison au design élégant a été conçue pour offrir confort, fonctionnalité et luminosité :- Grand garage attenant- Cellier donnant sur une cuisine ouverte, elle-même ouverte sur un vaste espace de vie baigné de lumière- Volumes optimisés, sans perte d’espace ni dégagements inutiles- Porte-rentrant apportant charme, cachet et confort au quotidien- Terrasse couverte en prolongement de la pièce de vie.Espace nuit parfaitement organisé- L’espace nuit se compose de :- 2 chambres confortables, toutes équipées de placards intégrés- Salle d’eau équipée d’une grande douche italienne et d’une double vasque.- 1 suite parentale spacieuse et agréable avec un salle d’eau fonctionnelle équipée d’un douche italienne et d’une vasque.- Des pièces pensées pour faciliter l’aménagement et le bien-êtrecette maison est un véritable coup de coeur pour ceux qui recherchent un logement :- Simple et pratique- Très lumineux- Fonctionnel au quotidienOffrant une qualité de vie exceptionnelleIntéressé(e) par ce projet ?N’hésitez pas à contacter Marie MUNOZ au (Numéro supprimé), pour plus de renseignements ou programmer un rendez-vous.
Pinsac
TERRAINSitué au cœur du charmant village de Pinsac, ce terrain de 724 m² offre un cadre idéal pour concrétiser votre projet de construction.Pratiquement plat et libre de toute construction, il permet une implantation facilitée de votre future maison.Un étude géotechnique G1 a été réalisée : Faible sensibilité au retrait gonflement des argiles Informations rassurantes pour la préparation de votre projet de constructionCe terrain bénéficie d’un environnement calme, tout en restant proche des commodités essentielles et des sites naturels attractifs de la région.Les plus :Terrain constructibleBonne accessibilitéSituation agréable dans un secteur recherchéIdéal pour une résidence principale, un projet familial ou un investissement.À découvrir rapidement !Cette annonce référence 311648 vous est présentée par votre agent commercial BSK Immobilier CHRISTELLE BANTEGNIE (EIRL) immatriculé au RSAC de MONTAUBAN (82000) sous le numéro 44146899800022.Prix du bien : 17 000,00 €Prix du bien hors honoraires : 14 000,00 €Honoraires TTC : 21,43 %Les honoraires d’agence sont à la charge de l’acquéreur.Non soumis au DPE.Les informations sur les risques auxquels ce bien est exposé sont disponibles sur le site Géorisques : www.georisques.gouv.fr
Lanzac
TERRAINÀ vendre – Beau terrain de 1 700 m² à Lanzac (Lot)Dans le cadre d’un futur projet de construction, nous vous proposons à la vente ce très joli terrain de 1 700 m², idéalement situé sur la commune de Lanzac, un village charmant à proximité immédiate de Souillac, mais aussi proche de Gourdon, Padirac et de nombreux sites touristiques emblématiques de la région.Les atouts du terrain :- Parcelle plate, agréable et facile à aménager- Environnement calme et typique, dans un village accueillant- Belle exposition, offrant un cadre de vie lumineux- Tout-à-l’égout disponible en bordure, un vrai plus pour votre projet- Terrain non viabilisé, mais avec les réseaux à proximitéCe terrain constitue une opportunité idéale pour imaginer et construire la maison dont vous rêvez, dans un secteur prisé pour sa qualité de vie et son ambiance chaleureuse.Un emplacement rare, un cadre charmant, un potentiel certain.Pour plus d’informations ou pour organiser une visite, n’hésitez pas à contacter Marie MUNOZ au (Numéro supprimé).
Lanzac
TERRAIN ET MAISONTerrain + Projet Maison Moderne 125 m² – Lanzac (Lot)Coup de coeur assuré !À Lanzac, dans un superbe village proche de Souillac et de tous les sites touristiques du Lot, découvrez ce magnifique terrain plat de 1 700 m², parfaitement exposé.Tout-à-l’égout disponible, terrain non viabilisé.💡 Le + qui fait la différence : un projet de construction déjà pensé pour vous !Maison moderne de 125 m² en L, comprenant :- 2 grandes chambres- Salle de bain entièrement équipée- Grande pièce de vie très lumineuse- Porche rentrant plein de charmeLigne contemporaine, maison agréable et fonctionnelleUn combo rare : un beau terrain + un projet de maison moderne dans un secteur très recherché.Un vrai coup de coeur à visiter rapidement !Appelez Marie MUNOZ pour plus d’infos ou pour découvrir le terrain.
Gourdon
TERRAIN ET MAISONMaison et terrainDans le cadre d’un projet de construction je vous propose cette maison moderne de 110 m² séduit par ses volumes bien pensés et sa belle luminosité. Dès l’entrée, vous découvrez un vaste séjour baigné de lumière grâce à une grande baie vitrée offrant une vue dégagée sur le jardin. L’espace de vie s’ouvre sur une cuisine contemporaine et fonctionnelle, prolongée par un cellier pratique pour le rangement.La partie nuit se compose de quatre chambres confortables, chacune équipée d’un placard intégré, ainsi que d’une élégante salle d’eau avec douche à l’italienne et vasque. Un garage complète l’ensemble pour plus de confort au quotidien.Conçue pour allier esthétique, praticité et bien-être, cette maison offre un cadre de vie idéal pour une famille souhaitant allier modernité et confort.Contactez Marie MUNOZ au (Numéro supprimé)
Le Vigan
TERRAIN ET MAISONProjet Terrain + MaisonDans le cadre d’un projet de construction découvrez cette belle maison contemporaine de 100 m², pensée pour offrir confort et fonctionnalité au quotidien. Elle se compose d’un vaste séjour lumineux, agrémenté d’une grande baie vitrée qui ouvre sur le jardin et baigne la pièce de lumière naturelle. La cuisine ouverte, moderne et conviviale, dispose d’un cellier attenant pour un rangement optimal.La partie nuit comprend trois chambres spacieuses, toutes équipées de placards intégrés, ainsi qu’une salle d’eau élégante avec douche à l’italienne et vasque. Des toilettes séparées complètent l’espace.La maison dispose également d’un garage accolé, pratique et fonctionnel. Alliant design, confort et praticité, cette maison est idéale pour une famille à la recherche d’un cadre de vie agréable et lumineux.Contactez Marie Munoz au (Numéro supprimé)
Payrac
TERRAIN ET MAISONMaison à construire Dans le cadre d’un projet de construction je vous propose cette maison moderne de 100 m² séduit par ses volumes bien pensés et sa belle luminosité. Dès l’entrée, vous découvrez un vaste séjour baigné de lumière grâce à une grande baie vitrée offrant une vue dégagée sur le jardin. L’espace de vie s’ouvre sur une cuisine contemporaine et fonctionnelle, prolongée par un cellier pratique pour le rangement.La partie nuit se compose de trois chambres confortables, chacune équipée d’un placard intégré, ainsi que d’une élégante salle d’eau avec douche à l’italienne et vasque. Un garage complète l’ensemble pour plus de confort au quotidien.Conçue pour allier esthétique, praticité et bien-être, cette maison offre un cadre de vie idéal pour une famille souhaitant allier modernité et confort.Contactez Marie MUNOZ au (Numéro supprimé)
Le Vigan
TERRAIN ET MAISONVotre Nouvelle Vie Commence Ici : Maison 3 Chambres, Espace et Lumière à Portée de Main !Dans le cadre d’un projet de construction imaginez une vie où chaque espace est conçu pour votre confort et votre épanouissement. Cette maison est une invitation à bien vivre.Découvrez ce Bijou Architectural de 120 m² habitables, pensé pour vous :Au Coeur de la Maison : Les Espaces de VieSalon / Séjour de 40 m² : Un vaste espace ouvert, lumineux et modulable, le cadre idéal pour créer vos souvenirs en famille ou recevoir vos amis. Imaginez votre coin lecture douillet, votre table de dîner conviviale, ou un espace de jeu pour les enfants.Cuisine Indépendante de 11 m² : Conçue pour la fonctionnalité, cette cuisine vous offre l’opportunité de créer un espace culinaire à votre image, que vous soyez adepte des petits déjeuners rapides ou des grands festins.Vos Espaces Nuit : Sérénité et IntimitéSuite Parentale Privative : Un véritable cocon pour les parents, offrant intimité et confort avec son dressing et sa salle d’eau intégrés.Deux Chambres Confortables : Chaque membre de la famille trouvera son havre de paix. Parfaites pour les enfants, un bureau inspirant, ou une chambre d’amis accueillante. Un grand dressing indépendant : Pratique et fonctionnel pour organiser au mieux la maisonSalle de Bain et WC Indépendant : Pratiques et fonctionnels pour le quotidien de toute la famille.Les Atouts Supplémentaires pour une Vie Facilitée :Garage : offrant un espace pour votre véhicule, du rangement ou même un atelier.Local Technique : Un espace dédié pour l’organisation et la gestion de votre maison.Conception Intelligente : Chaque mètre carré est optimisé pour vous offrir une maison pratique et agréable à vivre.Potentiel et Ambiance :Cette maison est une toile vierge prête à accueillir vos inspirations. Moderne, lumineuse et spacieuse, elle n’attend que votre touche personnelle pour devenir le foyer de vos rêves.Une Opportunité à Saisir !Si vous recherc
L’actualité immobilière à Payrac
27/11/2023
02/11/2023
30/10/2023
20/10/2023
16/10/2023
16/10/2023