Maison à construire à Souillac (46200)
Images
Description
EMPLACEMENT PRIVILÉGIÉ SUR LES HAUTEURS DE SOUILLAC
Dans le cadre d'un projet de construction, à quelques kilomètres de Souillac, nous sommes heureux de vous présenter au coeur d'un paisible hameau, cette belle et grande maison avec grand garage sur un de 2 057 m² de terrain.
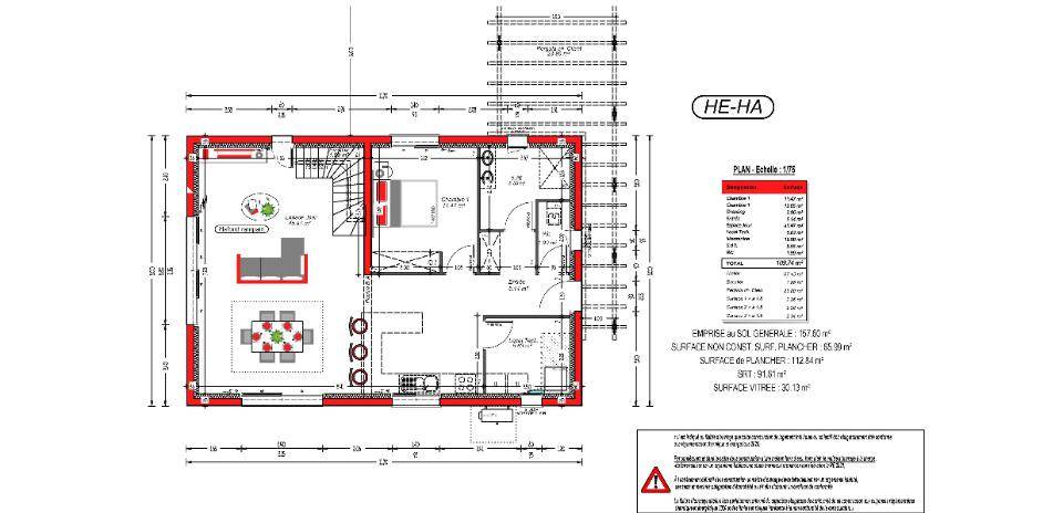
Il s'agit d'une maison de 2 niveaux.
L 'étage est composé d'une chambre avec un grand dressing et d'un espace bureau avec coin lecture ouvert sur le salon en contre bas.
Le rez-de-chaussée quant à lui offre un chambre avec placard, une salle de bain avec douche italienne et double vasque. Le séjour quant à lui propose une très belle hauteur sous plafond avec une cuisine ouverte accolé à un cellier.
Cette propriété se situe dans un secteur convoité, proche de Souillac et de ses établissements scolaires et ses commerces.
Côté transports, il y a la gare Souillac à moins de 10 minutes en voiture et l'accès à l'autoroute A20 à 2 km.
Elle est à vendre pour la somme de 455 000 €.
N'hésitez pas à prendre contact avec notre agence (Marie MUNOZ : (Numéro supprimé)) pour obtenir de plus amples informations sur la maison, sur les démarches à suivre ou sur les modalités de vente.
Alpha Constructions Brive-la-Gaillarde est là pour vous accompagner à toutes les étapes de l'achat.
Logement susceptibles de vous intéresser
Nous vous proposons de découvrir aussi cette sélection de logements situés à moins de 10km de Souillac et qui seraient susceptibles de vous intéresser.
Souillac
TERRAIN ET MAISONNouveau projet de construction – Souillac (46)Découvrez ce superbe projet de construction situé dans le charmant et paisible quartier de Souillac, un véritable havre de paix tout en restant proche de toutes les commodités de la ville.Un cadre idéal pour profiter de la tranquillité sans vous éloigner de la vie quotidienne.Une maison en T moderne, lumineuse et parfaitement pensée – 120 m²Cette maison au design élégant a été conçue pour offrir confort, fonctionnalité et luminosité :- Grand garage attenant- Cellier donnant sur une cuisine ouverte, elle-même ouverte sur un vaste espace de vie baigné de lumière- Volumes optimisés, sans perte d’espace ni dégagements inutiles- Porte-rentrant apportant charme, cachet et confort au quotidien- Terrasse couverte en prolongement de la pièce de vie.Espace nuit parfaitement organisé- L’espace nuit se compose de :- 2 chambres confortables, toutes équipées de placards intégrés- Salle d’eau équipée d’une grande douche italienne et d’une double vasque.- 1 suite parentale spacieuse et agréable avec un salle d’eau fonctionnelle équipée d’un douche italienne et d’une vasque.- Des pièces pensées pour faciliter l’aménagement et le bien-êtrecette maison est un véritable coup de coeur pour ceux qui recherchent un logement :- Simple et pratique- Très lumineux- Fonctionnel au quotidienOffrant une qualité de vie exceptionnelleIntéressé(e) par ce projet ?N’hésitez pas à contacter Marie MUNOZ au (Numéro supprimé), pour plus de renseignements ou programmer un rendez-vous.
Baladou
TERRAIN ET MAISONNouveau projet de construction – Baladou (46)Découvrez ce superbe projet de construction situé dans le charmant village de Baladou, un véritable havre de paix tout en restant proche de toutes les commodités de Souillac et Brive.Le quartier est particulièrement agréable : environnement paisible, présence d’arbres, atmosphère sereine… Un cadre idéal pour profiter de la tranquillité sans vous éloigner de la vie quotidienne.Une maison en T moderne, lumineuse et parfaitement pensée – 120 m²Cette maison au design élégant a été conçue pour offrir confort, fonctionnalité et luminosité :- Grand garage attenant- Cellier donnant sur une cuisine ouverte, elle-même ouverte sur un vaste espace de vie baigné de lumière- Volumes optimisés, sans perte d’espace ni dégagements inutiles- Porte-rentrant apportant charme, cachet et confort au quotidien- Terrasse couverte en prolongement de la pièce de vie.Espace nuit parfaitement organisé- L’espace nuit se compose de :- 2 chambres confortables, toutes équipées de placards intégrés- Salle d’eau équipée d’une grande douche italienne et d’une double vasque.- 1 suite parentale spacieuse et agréable avec un salle d’eau fonctionnelle équipée d’un douche italienne et d’une vasque.- Des pièces pensées pour faciliter l’aménagement et le bien-êtrecette maison est un véritable coup de coeur pour ceux qui recherchent un logement :- Simple et pratique- Très lumineux- Fonctionnel au quotidienOffrant une qualité de vie exceptionnelleIntéressé(e) par ce projet ?N’hésitez pas à contacter Marie MUNOZ au (Numéro supprimé), pour plus de renseignements ou programmer un rendez-vous.
Souillac
TERRAIN ET MAISONProjet de construction – Maison 138 m² + Terrain – SOUILLAC (46)Emplacement idéal – Maison moderne et ultra confortableDans le cadre d’un projet de construction, nous vous proposons un superbe terrain avec maison situé sur le charmant village de Souillac, dans le Lot, proches des plus beaux site touristique des la région comme Padirac, Rocamadour mais aussi Sarlat et ses châteaux.Situation exceptionnelle :Un des derniers terrains disponibles sur le secteur, dans un quartier calme et paisible proche néanmoins des axes routiers et du centre ville.La maison : 138 m² de confort, de lumière et de modernitéUne architecture en 4 pans, pensée pour éliminer toute perte d’espace et offrir un plan fonctionnel et ultra agréable.Espace jour :- Grand garage donnant sur un cellier pratique- Entrée avec grand placard + WC indépendant- Très grande pièce de vie lumineuse- Cuisine ouverte sur un vaste salon-séjourTerrasse en prolongement du séjour : un vrai bonheur pour profiter du cadre paisible de cette région.Espace nuit 1 (côté famille)- Un bureau ouvert donnant sur le salon- 2 belles chambres- Une grande salle de bain équipée : double vasque, douche italienne + baignoire- Espace nuit pensé pour le calme et la praticitéSuite parentale (à l’opposé pour plus d’intimité)- Très grande chambre- Grand dressing- Salle d’eau avec double vasque, WC et grande douche italienneUn espace entièrement dédié au confort et à la tranquillité.Pourquoi ce projet est un vrai coup de coeur :- Maison moderne, lumineuse, très bien pensée- Volumes efficaces, aucune perte d’espace- Emplacement top au coeur quartier calmeSecteur recherché et parfait pour une vie paisible avec un plan confortable, élégant et pratique au quotidien !Appelez Marie MUNOZ au (Numéro supprimé) pour en savoir plus ou pour organiser une rencontre.
Pinsac
TERRAINSitué au cœur du charmant village de Pinsac, ce terrain de 724 m² offre un cadre idéal pour concrétiser votre projet de construction.Pratiquement plat et libre de toute construction, il permet une implantation facilitée de votre future maison.Un étude géotechnique G1 a été réalisée : Faible sensibilité au retrait gonflement des argiles Informations rassurantes pour la préparation de votre projet de constructionCe terrain bénéficie d’un environnement calme, tout en restant proche des commodités essentielles et des sites naturels attractifs de la région.Les plus :Terrain constructibleBonne accessibilitéSituation agréable dans un secteur recherchéIdéal pour une résidence principale, un projet familial ou un investissement.À découvrir rapidement !Cette annonce référence 311648 vous est présentée par votre agent commercial BSK Immobilier CHRISTELLE BANTEGNIE (EIRL) immatriculé au RSAC de MONTAUBAN (82000) sous le numéro 44146899800022.Prix du bien : 17 000,00 €Prix du bien hors honoraires : 14 000,00 €Honoraires TTC : 21,43 %Les honoraires d’agence sont à la charge de l’acquéreur.Non soumis au DPE.Les informations sur les risques auxquels ce bien est exposé sont disponibles sur le site Géorisques : www.georisques.gouv.fr
Lanzac
TERRAINÀ vendre – Beau terrain de 1 700 m² à Lanzac (Lot)Dans le cadre d’un futur projet de construction, nous vous proposons à la vente ce très joli terrain de 1 700 m², idéalement situé sur la commune de Lanzac, un village charmant à proximité immédiate de Souillac, mais aussi proche de Gourdon, Padirac et de nombreux sites touristiques emblématiques de la région.Les atouts du terrain :- Parcelle plate, agréable et facile à aménager- Environnement calme et typique, dans un village accueillant- Belle exposition, offrant un cadre de vie lumineux- Tout-à-l’égout disponible en bordure, un vrai plus pour votre projet- Terrain non viabilisé, mais avec les réseaux à proximitéCe terrain constitue une opportunité idéale pour imaginer et construire la maison dont vous rêvez, dans un secteur prisé pour sa qualité de vie et son ambiance chaleureuse.Un emplacement rare, un cadre charmant, un potentiel certain.Pour plus d’informations ou pour organiser une visite, n’hésitez pas à contacter Marie MUNOZ au (Numéro supprimé).
Lanzac
TERRAIN ET MAISONTerrain + Projet Maison Moderne 125 m² – Lanzac (Lot)Coup de coeur assuré !À Lanzac, dans un superbe village proche de Souillac et de tous les sites touristiques du Lot, découvrez ce magnifique terrain plat de 1 700 m², parfaitement exposé.Tout-à-l’égout disponible, terrain non viabilisé.💡 Le + qui fait la différence : un projet de construction déjà pensé pour vous !Maison moderne de 125 m² en L, comprenant :- 2 grandes chambres- Salle de bain entièrement équipée- Grande pièce de vie très lumineuse- Porche rentrant plein de charmeLigne contemporaine, maison agréable et fonctionnelleUn combo rare : un beau terrain + un projet de maison moderne dans un secteur très recherché.Un vrai coup de coeur à visiter rapidement !Appelez Marie MUNOZ pour plus d’infos ou pour découvrir le terrain.
Baladou
TERRAINSur le Causse de Martel, ce terrain de 1090m² plat et arboré est déjà clôturé sur trois côtés.La façade est actuellement parée d’une grande haie de végétation.Sur le fond de la parcelle, quelques abris existants permettront de stocker des matériaux, ou, pourquoi pas, le bois des chênes qu’il faudra couper pour implanter la maison (chênes de très belle qualité qui pourront fournir du bois de chauffage pour quelques hivers !!!).Les réseaux « eau » et « électricité » sont très proches.Un système d’assainissement individuel (de type fosse septique par exemple) sera à prévoir.Les commerces sont à quelques minutes de là, à Martel (env. 4.8km).. ou Souillac (env. 8 km).Sur le plan scolarité, la commune est en RPI et dispose d’une école.L’endroit est résidentiel, au calme. Les honoraires d’agence sont à la charge de l’acquéreur, soit 25,00% TTC du prix hors honoraires.Les informations sur les risques auxquels ce bien est exposé sont disponibles sur le site Géorisques : www. georisques. gouv. fr.Réseau Immobilier CAPIFRANCE – Votre agent commercial (RSAC N(Numéro supprimé) – Greffe de CAHORS) Jean DELVERT Entrepreneur Individuel (Numéro supprimé) – Réf.929666
Baladou
TERRAINBlotti en retrait d’une petite route d’accès, ce terrain est actuellement constitué d’un bois de chênes.C’est un avantage d’avoir déjà de la végétation sur la parcelle, car, dans le Causse de Martel, il faut parfois plusieurs centaines d’années pour avoir des arbres de la taille de ceux présents.C’est aussi un avantage de pouvoir disposer d’ombre. Cela est important dans ce Causse, les étés étant parfois très chauds.Le terrain est en légère pente vers le sud/ouest… pas forcément une mauvaise chose, bien au contraire.Les commerces et services sont à environ 5 km de là, à Martel. Et puis, il y a aussi Souillac à 7 ou 8km (avec gare SNCF – ligne Paris Toulouse), l’aéroport de « Brive-Vallée de la Dordogne » à 15 km, et Brive, à une trentaine de km.Ici, on est au carrefour des sites touristiques du Lot, de la Dordogne et de la Basse Corrèze.Un coup d’œil sur place permettra d’apprécier l’endroit, et je serai ravi de vous y conduire. Les honoraires d’agence sont à la charge de l’acquéreur, soit 19,15% TTC du prix hors honoraires.Les informations sur les risques auxquels ce bien est exposé sont disponibles sur le site Géorisques : www. georisques. gouv. fr.Réseau Immobilier CAPIFRANCE – Votre agent commercial (RSAC N(Numéro supprimé) – Greffe de CAHORS) Jean DELVERT Entrepreneur Individuel (Numéro supprimé) – Réf.927559
Lachapelle-Auzac
TERRAINTerrain à bâtirDans un quartier recherché, grand terrain à 23 km de Brive-la-Gaillarde. Avec une superficie de 1 650 m², ce terrain se situe dans un quartier recherché de Lachapelle-Auzac (46200). Viabilisé avec le tout à l’égout, cette parcelle boisée et dans un secteur prisé.Il est proche de toute commodité avec des écoles (de la maternelle au lycée) qui sont implantées à moins de 10 minutes en voiture, comme le Collège le Puy d’Alon, le Lycée Professionnel Hôtelier Quercy-Périgord ou le Lycée Polyvalent Louis Vicat-Lycée, tout comme deux structures d’accueil pour les tout-petits à moins de 10 minutes à pied. L’accès à l’autoroute A20 à 5 km. Il est proposé à l’achat pour 46 200 €. Prenez contact avec Marie MUNOZ ((Numéro supprimé)) pour tout renseignement sur ce terrain, sur les modalités de vente et sur les démarches à suivre. Alpha Constructions Brive-la-Gaillarde est là pour vous accompagner à toutes les étapes de votre projet.
L’actualité immobilière à Souillac
27/11/2023
02/11/2023
30/10/2023
20/10/2023
16/10/2023
16/10/2023