Maison à construire à Agen (47000)
Images
Description
🏡 Terrain rare + projet maison en plein coeur d'Agen
Saisissez une opportunité exceptionnelle : un terrain plat et raccordé au tout-à-l'égout, idéalement situé en centre-ville d'Agen, où tout est accessible à pied (commerces, écoles, services, transports).
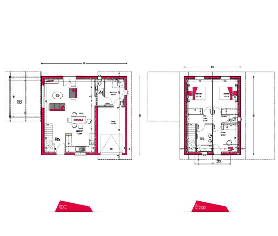
Nous vous proposons un projet de construction sur mesure : une élégante maison de ville à étage, pensée pour allier confort moderne et charme urbain :
3 chambres spacieuses à l'étage
Belle pièce de vie lumineuse ouverte sur le jardin ou patio
Architecture contemporaine, adaptée au style citadin
👉 L'alliance parfaite entre le confort d'une maison neuve et le privilège d'une vie tout à pied.
📞 Contactez-nous (Laura PEZZOTTI (Numéro supprimé)) vite, ce type de bien est inédit et très recherché en centre-ville d'Agen !
Logement susceptibles de vous intéresser
Nous vous proposons de découvrir aussi cette sélection de logements situés à moins de 10km de Agen et qui seraient susceptibles de vous intéresser.
Lafox
TERRAIN ET MAISONCette maison plain pied moderne et fonctionnelle de 85 m² comprenant les normes PMR est idéal pour un investissement locatif comprenant 3 chambres et une grande salle de bain, un grand volume de vie, cellier et garage est idéal pour y vivre.Placée proche des commodités sur la commune de Lafox.Chauffage et production d’eau chaude performants et économes conforment à la RE 2020.Frais de terrassement et de viabilisation compris . Pour un renseignement, veuillez nous contacter au (Numéro supprimé).
Pont-du-Casse
TERRAINÀ vendre : Terrain de 550 m² à Pont-du-Casse Vous rêvez de construire votre maison dans un environnement calme, tout en restant proche des commodités ? Ce terrain plat, viabilisé et raccordable au tout-à-l’égout, situé à Pont-du-Casse à la limite de Foulayronnes, est idéal pour concrétiser votre projet.Superficie : 550 m²Prix : 46 200 €Viabilisé et raccordable au tout-à-l’égoutCadre calme, proche des commerces, écoles et servicesAccompagnement personnalisé pour chaque projet, afin de vous guider de A à ZContact : Laura PEZZOTTI – (Numéro supprimé)Ne laissez pas passer cette opportunité de bâtir votre avenir dans un cadre agréable et pratique !
Pont-du-Casse
TERRAIN ET MAISONÀ vendre : Terrain + Projet de maison à Pont-du-Casse Réalisez votre rêve de devenir propriétaire ! Sur ce terrain plat de 550 m², viabilisé et raccordable au tout-à-l’égout, à Pont-du-Casse (limite Foulayronnes), nous vous proposons un projet clé en main :Maison de 90 m² avec 3 chambresToit 4 pans élégantCarport inclusCadre calme, à proximité des commerces, écoles et servicesAccompagnement personnalisé sur tout le projetPrix terrain + maison + frais estimatifs terrassement et raccordement : 190 000 €Contact : Laura PEZZOTTI – (Numéro supprimé)Un projet complet, prêt à vivre, dans un secteur agréable et pratique.
Le Passage
TERRAIN🌳 Terrain constructible – 1 200 m² – Le Passage (47520)À découvrir sur la commune très prisée du Passage d’Agen, superbe terrain de 1 200 m² issu d’une découpe de parcelle, idéal pour un projet de construction personnalisé.Situé dans un secteur calme et résidentiel, ce terrain offre un cadre de vie agréable et verdoyant, tout en restant à proximité immédiate d’Agen et de toutes les commodités.✅ Terrain plat✅ Raccordement au tout-à-l’égout (TAE)✅ À viabiliser (eau, électricité, télécom à proximité)✅ Environnement paisible et résidentiel💰 Prix : 78 000 €Une belle opportunité pour construire votre maison sur un terrain rare à la vente dans ce secteur recherché !📞 Contact : Guillaume MARTINELLI – Alpha Construction📱 (Numéro supprimé)
Le Passage
TERRAIN ET MAISON🏡 Maison moderne en H + terrain – Le Passage (47520)Rare sur le secteur !Sur la commune très recherchée du Passage d’Agen, découvrez ce superbe terrain plat de 1 200 m², issu d’une découpe de parcelle, avec raccordement au tout-à-l’égout et viabilisation à prévoir (eau, électricité, télécom à proximité).Nous vous proposons un projet de maison moderne en H de 128 m², alliant design, confort et fonctionnalité :✨ 3 grandes chambres dont une suite parentale avec salle d’eau privative✨ 2 salles de bain✨ Vaste pièce de vie centrale baignée de lumière✨ Cuisine ouverte sur séjour✨ Garage attenant✨ Architecture contemporaine et personnalisableCe projet séduit par son plan en H, qui permet une belle séparation entre les espaces jour et nuit, et une ouverture naturelle sur le jardin.💰 Prix du projet complet : 368 000 € 📍 Le Passage (47520) – Terrain plat de 1 200 m² dans un cadre calme et résidentiel📞 Contact : Guillaume MARTINELLI – Alpha Construction📱 (Numéro supprimé)
Le Passage
TERRAIN ET MAISON🏡 Maison moderne + terrain – Le Passage (47520)À saisir sur la commune très recherchée du Passage d’Agen : superbe terrain plat de 1 200 m², issu d’une découpe de parcelle, avec raccordement au tout-à-l’égout et à viabiliser (eau, électricité, télécom à proximité).Sur ce terrain, nous vous proposons un projet de construction contemporain de 100 m² comprenant :✨ 3 chambres spacieuses✨ Grande pièce de vie lumineuse avec cuisine ouverte✨ Salle de bain moderne✨ Garage attenant✨ Plans modulables selon vos enviesUn projet idéal pour une famille souhaitant allier confort, modernité et proximité d’Agen, dans un cadre calme et verdoyant.💰 Prix du projet complet : 227 000 € 📍 Le Passage (47520) – Terrain de 1 200 m², plat, au calme et proche de toutes commodités📞 Contact : Guillaume MARTINELLI – Alpha Construction📱 (Numéro supprimé)
Boé
TERRAIN ET MAISONFRAIS DE NOTAIRE COMPRISContactez Emilie Escuder (Numéro supprimé) Vue imprenableA 12 min de BoéMaison de 4 pièces de 122 m² à vendre à LayracMAISON NEUVE CLASSE ENERGETIQUE AÀ vendre : à quelques kilomètres d’Agen, nous sommes heureux de vous proposer cette maison de 4 pièces de plain-pied de 122 m², proche du centre-ville de Layrac (47390).Son intérieur se divise en trois chambres, une cuisine et deux salles de bains. La maison est neuve.Le terrain du bien est de 4 916 m².Des écoles maternelles et élémentaires sont implantées dans la commune. Niveau transports en commun, il y a la gare Agen à moins de 10 minutes en voiture. Il y a un accès à l’autoroute A62 à 6 km. On trouve une bibliothèque dans les environs.Son prix de vente est de 311 400 €.
Le Passage
TERRAIN ET MAISONDans un cadre agréable, cette maison équipée de 3 chambres avec placard, d’une salle de bains complète. Son salon séjour est ouvert sur le jardin et bénéficie d’un bel ensoleillement. Le garage est intégré en avancée. Le chauffage Air/Air amène encore plus de confort. Frais de terrassement et de viabilisation compris. N’hésitez pas à nous consulter pour une étude personnalisée dans notre agence d’Agen. Pour un renseignement, veuillez nous contacter au (Numéro supprimé).
Le Passage
TERRAIN ET MAISONCette maison plain pied moderne de 85m² est équipé de trois chambres de 10 à 12m² avec placards, d’une salle de bain de 7m², d’un WC aéré ainsi que d’un espace de vie de 38m² Ces éléments font de cette maison la maison idéale pour l’organisation optimisée de la vie de votre famille. Le séjour est traversant et doté d’une grande baie vitrée qui donne sur l’extérieur. Système de chauffage Monosplit. Répond à la RE2020. Pour un renseignement, veuillez nous contacter au (Numéro supprimé).
L’actualité immobilière à Agen
02/11/2023
30/10/2023
20/10/2023
16/10/2023
13/10/2023