Images
Description
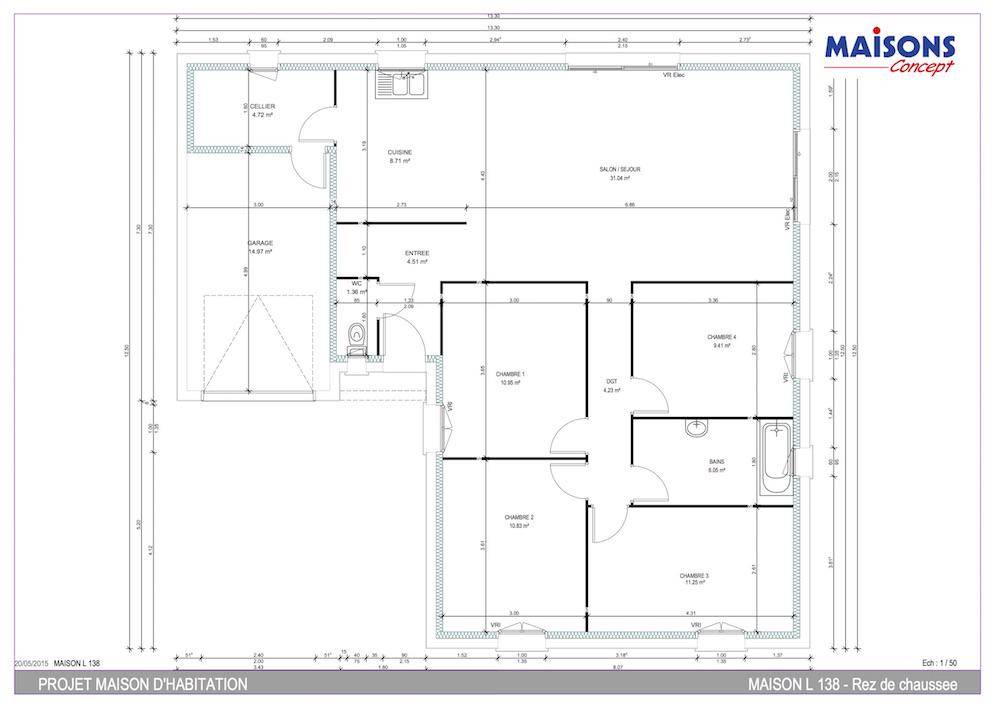
Nous vous proposons cette maison neuve, baptisée ""Élégance"", un modèle qui se distingue par sa forme architecturale en L, offrant à la fois style et fonctionnalité. Avec une surface habitable de 78 m², cette maison de plain-pied est conçue pour optimiser l'espace et la lumière naturelle, créant ainsi un cadre de vie à la fois confortable et esthétique.
L'Élégance se compose de 3 pièces principales, dont 2 chambres spacieuses, promettant un espace de vie idéal pour une petite famille ou un couple. Le grand salon-séjour, cœur de la maison, s'ouvre sur une cuisine moderne et entièrement équipée, formant un espace ouvert parfait pour les moments de partage et de convivialité. Un garage intégré, accessible depuis l'intérieur de la maison, ainsi qu'un cellier pratique, ajoutent à la fonctionnalité de ce modèle.
Cette maison est personnalisable selon vos désirs et besoins, vous permettant de créer un intérieur qui vous ressemble. Que vous rêviez d'une salle de bain supplémentaire, d'un bureau ou d'une chambre d'amis, l'Élégance s'adapte à votre mode de vie.
L'une des caractéristiques les plus appréciées de ce modèle est son enduit bi-ton, qui lui confère une allure moderne et élégante, soulignant ainsi son architecture unique. Mais ce qui distingue véritablement l'Élégance, c'est son engagement envers l'environnement. Cette maison est conçue pour être basse consommation et répond aux exigences de la norme RE2020, garantissant ainsi une efficacité énergétique optimale et une réduction significative de votre empreinte carbone.
En choisissant l'Élégance, vous optez pour une maison qui allie esthétique, confort et respect de l'environnement. Une opportunité à ne pas manquer pour ceux qui cherchent à investir dans un bien immobilier durable et de qualité.
Logement susceptibles de vous intéresser
Nous vous proposons de découvrir aussi cette sélection de logements situés à moins de 10km de Angers et qui seraient susceptibles de vous intéresser.
Saint-Barthélemy-d'Anjou
TERRAIN ET MAISONNous vous proposons cette maison neuve, baptisée Crescendo, un modèle d’exception qui incarne l’harmonie parfaite entre innovation architecturale et respect de l’environnement. Conçue par un architecte de renom de Maisons Concept, Crescendo se distingue par son design unique, mêlant avec audace formes contemporaines et fonctionnalité.Avec une surface habitable de 85 m², cette maison basse consommation est parfaitement adaptée aux exigences de la vie moderne tout en étant conforme à la norme RE2020, garantissant ainsi une efficacité énergétique optimale et un respect inégalé de l’environnement. Son toit monopente, signature esthétique de ce modèle, ne manquera pas de capter le regard, offrant à la fois modernité et singularité à l’ensemble.L’intérieur de Crescendo est pensé pour le confort et la luminosité, avec un agencement intelligent de 4 pièces, dont 3 chambres accueillantes, promettant un espace de vie idéal pour une famille. Chaque pièce a été conçue pour maximiser l’espace et la lumière naturelle, créant ainsi des environnements à la fois ouverts et chaleureux.Les options les plus plébiscitées par nos clients, telles que des solutions d’économie d’énergie avancées et des matériaux de construction écologiques, sont intégrées de série dans Crescendo, vous assurant une maison non seulement belle et confortable mais également responsable.Dessinée par un architecte Maisons Concept, cette maison contemporaine se distingue par ses nuances et ses contrastes. Ses formes cubiques modernes sont adoucies par son toit en demi-pente. Son caractère à la fois moderne et confortable offre néanmoins une touche traditionnelle rassurante et originale. Sa modularité vous permettra d’en faire la maison idéale en fonction de vos besoins.Crescendo est plus qu’une maison, c’est un engagement vers un mode de vie durable sans compromis sur le style ou le confort. Une opportunité unique de construire votre futur dans un cadre respectueux de l’environnement et à la pointe de la
Saint-Barthélemy-d'Anjou
TERRAINNous avons le plaisir de vous proposer ce magnifique terrain à vendre, idéalement situé dans un lotissement prisé de Saint-Barthélemy-d’Anjou. Avec une superficie de 271 m², ce terrain viabilisé est parfait pour un projet de construction de maison. Sa configuration plate et son absence de vis-à-vis en font une toile vierge pour réaliser la maison de vos rêves, dans un cadre de vie paisible et agréable. Située dans le département de Maine-et-Loire, Saint-Barthélemy-d’Anjou, à proximité, vous trouverez toutes les infrastructures nécessaires, notamment des écoles, un collège et un lycée, ainsi que des commerces pour répondre à vos besoins quotidiens. Le quartier est bien desservi par les transports en commun, avec des arrêts de bus et une gare à proximité, et à seulement quelques minutes des accès aux autoroutes. Un emplacement recherché pour vivre en harmonie avec votre famille tout en restant proche des commodités de la ville. Ne laissez pas passer cette opportunité unique d’acquérir un terrain au potentiel indéniable dans une ville dynamique. N’hésitez pas à nous contacter pour plus de renseignements et envisager votre futur projet de construction.
Angers
TERRAIN ET MAISONNous vous proposons cette maison neuve, baptisée « »Élégance » », un modèle qui se distingue par sa forme architecturale en L, offrant à la fois style et fonctionnalité. Avec une surface habitable de 78 m², cette maison de plain-pied est conçue pour optimiser l’espace et la lumière naturelle, créant ainsi un cadre de vie à la fois confortable et esthétique.L’Élégance se compose de 3 pièces principales, dont 2 chambres spacieuses, promettant un espace de vie idéal pour une petite famille ou un couple. Le grand salon-séjour, cœur de la maison, s’ouvre sur une cuisine moderne et entièrement équipée, formant un espace ouvert parfait pour les moments de partage et de convivialité. Un garage intégré, accessible depuis l’intérieur de la maison, ainsi qu’un cellier pratique, ajoutent à la fonctionnalité de ce modèle.Cette maison est personnalisable selon vos désirs et besoins, vous permettant de créer un intérieur qui vous ressemble. Que vous rêviez d’une salle de bain supplémentaire, d’un bureau ou d’une chambre d’amis, l’Élégance s’adapte à votre mode de vie.L’une des caractéristiques les plus appréciées de ce modèle est son enduit bi-ton, qui lui confère une allure moderne et élégante, soulignant ainsi son architecture unique. Mais ce qui distingue véritablement l’Élégance, c’est son engagement envers l’environnement. Cette maison est conçue pour être basse consommation et répond aux exigences de la norme RE2020, garantissant ainsi une efficacité énergétique optimale et une réduction significative de votre empreinte carbone.En choisissant l’Élégance, vous optez pour une maison qui allie esthétique, confort et respect de l’environnement. Une opportunité à ne pas manquer pour ceux qui cherchent à investir dans un bien immobilier durable et de qualité.
Angers
TERRAINDécouvrez une opportunité unique d’acquérir un terrain de 220 m², idéal pour la construction de votre maison. Ce bien, situé au centre-ville, se distingue par sa surface plane, offrant un cadre accueillant pour votre futur projet. Sa proximité avec divers commerces et commodités en fait un choix privilégié pour les acheteurs à la recherche d’un emplacement stratégique et convivial. Idéalement situé dans une commune dynamique, ce terrain bénéficie d’un accès facile aux transports en commun, avec un arrêt de bus et une gare à proximité. Les écoles, y compris un collège et un lycée, sont également à quelques pas, garantissant un environnement familial parfait. Profitez des attraits de la ville, avec son ambiance animée et ses nombreuses activités sociales et culturelles. Le cadre de vie, allié à la commodité des infrastructures locales, fait de ce terrain un lieu de vie de choix. Ne laissez pas passer cette chance exceptionnelle d’investir dans un terrain au potentiel illimité. Nous vous invitons à envisager cette belle opportunité d’achat pour réaliser votre rêve de construction. EC (Numéro supprimé)
Les Ponts-de-Cé
TERRAIN ET MAISONVous rêvez de construire cette maison ? En choisissant My Lovely Nature, vous avez frappé à la bonne porte. Nous serons heureux de vous accompagner dans votre projet de vie au naturel.Contactez-nous au (Numéro supprimé) (My Lovely Nature – Agence de Nantes MLN).*Prix indicatif pour un projet de construction d'une maison individuelle. Ne sont pas inclus les frais de branchements, raccordements aux réseaux publics, frais d'adaptations, aménagements intérieurs et extérieurs et options. terrain viabilisé, frais de notaire non compris, frais divers non compris. Garanties et assurances obligatoires incluses. Terrain sélectionné par MY LOVELY NATURE auprès de nos partenaires fonciers, selon disponibilité, pour la construction d'une maison neuve. Non mandaté pour réaliser la vente (loi du 2 janvier 1970 n°70-9). Visuels non contractuels. Voir détails en agence.Cette annonce a été créée et diffusée avec le logiciel VITAHOME.
Les Ponts-de-Cé
TERRAIN ET MAISONVous rêvez de construire cette maison ? En choisissant My Lovely Nature, vous avez frappé à la bonne porte. Nous serons heureux de vous accompagner dans votre projet de vie au naturel.Contactez-nous au (Numéro supprimé) (My Lovely Nature – Agence de Nantes MLN).*Prix indicatif pour un projet de construction d'une maison individuelle. Ne sont pas inclus les frais de branchements, raccordements aux réseaux publics, frais d'adaptations, aménagements intérieurs et extérieurs et options. terrain viabilisé, frais de notaire non compris, frais divers non compris. Garanties et assurances obligatoires incluses. Terrain sélectionné par MY LOVELY NATURE auprès de nos partenaires fonciers, selon disponibilité, pour la construction d'une maison neuve. Non mandaté pour réaliser la vente (loi du 2 janvier 1970 n°70-9). Visuels non contractuels. Voir détails en agence.Cette annonce a été créée et diffusée avec le logiciel VITAHOME.
Les Ponts-de-Cé
TERRAIN ET MAISONVous rêvez de construire cette maison ? En choisissant My Lovely Nature, vous avez frappé à la bonne porte. Nous serons heureux de vous accompagner dans votre projet de vie au naturel.Contactez-nous au (Numéro supprimé) (My Lovely Nature – Agence de Nantes MLN).*Prix indicatif pour un projet de construction d'une maison individuelle. Ne sont pas inclus les frais de branchements, raccordements aux réseaux publics, frais d'adaptations, aménagements intérieurs et extérieurs et options. terrain viabilisé, frais de notaire non compris, frais divers non compris. Garanties et assurances obligatoires incluses. Terrain sélectionné par MY LOVELY NATURE auprès de nos partenaires fonciers, selon disponibilité, pour la construction d'une maison neuve. Non mandaté pour réaliser la vente (loi du 2 janvier 1970 n°70-9). Visuels non contractuels. Voir détails en agence.Cette annonce a été créée et diffusée avec le logiciel VITAHOME.
Les Ponts-de-Cé
TERRAIN ET MAISONVous rêvez de construire cette maison ? En choisissant My Lovely Nature, vous avez frappé à la bonne porte. Nous serons heureux de vous accompagner dans votre projet de vie au naturel.Contactez-nous au (Numéro supprimé) (My Lovely Nature – Agence de Nantes MLN).*Prix indicatif pour un projet de construction d'une maison individuelle. Ne sont pas inclus les frais de branchements, raccordements aux réseaux publics, frais d'adaptations, aménagements intérieurs et extérieurs et options. terrain viabilisé, frais de notaire non compris, frais divers non compris. Garanties et assurances obligatoires incluses. Terrain sélectionné par MY LOVELY NATURE auprès de nos partenaires fonciers, selon disponibilité, pour la construction d'une maison neuve. Non mandaté pour réaliser la vente (loi du 2 janvier 1970 n°70-9). Visuels non contractuels. Voir détails en agence.Cette annonce a été créée et diffusée avec le logiciel VITAHOME.
Les Ponts-de-Cé
TERRAIN ET MAISONVous rêvez de construire cette maison ? En choisissant My Lovely Nature, vous avez frappé à la bonne porte. Nous serons heureux de vous accompagner dans votre projet de vie au naturel.Contactez-nous au (Numéro supprimé) (My Lovely Nature – Agence de Nantes MLN).*Prix indicatif pour un projet de construction d'une maison individuelle. Ne sont pas inclus les frais de branchements, raccordements aux réseaux publics, frais d'adaptations, aménagements intérieurs et extérieurs et options. terrain viabilisé, frais de notaire non compris, frais divers non compris. Garanties et assurances obligatoires incluses. Terrain sélectionné par MY LOVELY NATURE auprès de nos partenaires fonciers, selon disponibilité, pour la construction d'une maison neuve. Non mandaté pour réaliser la vente (loi du 2 janvier 1970 n°70-9). Visuels non contractuels. Voir détails en agence.Cette annonce a été créée et diffusée avec le logiciel VITAHOME.
L’actualité immobilière à Angers
27/11/2023
02/11/2023
30/10/2023
20/10/2023
16/10/2023
16/10/2023