Maison à construire à Gesté (49600)
Images
Description
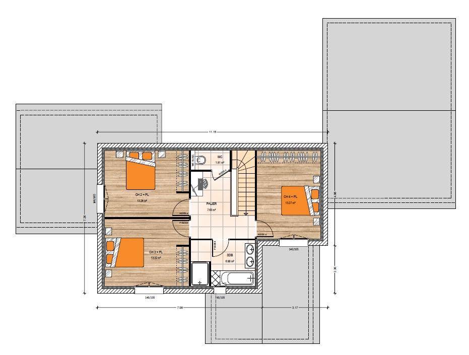
Maison de 6 pièces (149 m²) en vente à Gesté
Idéalement située - À découvrir à Gesté (49600) : maison neuve 6 pièces à vendre. 2 niveaux, surface de 149 m² sur 389 m² de terrain. Son intérieur offre quatre chambres, une cuisine et deux salles de bains.
À dix minutes : écoles, bibliothèque, tennis, boulangerie, commerce, supérette et épicerie. Accès nationale N249 à 7 km. Cholet à 25 km, Le Puiset-Doré à 0 m, La Renaudière à 0 m, La Chaussaire à 0 m, La Regrippière à 0 m, Le Fief-Sauvin à 0 m, Saint-Germain-sur-Moine à 0 m, Tillières à 0 m et Villedieu-la-Blouère à 0 m.
Cette maison de 6 pièces est à vendre pour la somme de 352 500 €.
Contactez notre agence (JANNEAU Mathieu : (Numéro supprimé)) pour tout renseignement sur la maison, sur les modalités de vente ou sur les démarches à suivre. Maisons Bernard Jambert Angers vous accompagne à toutes les étapes de votre projet et dans tous vos projets immobiliers.
Logement susceptibles de vous intéresser
Nous vous proposons de découvrir aussi cette sélection de logements situés à moins de 10km de Beaupréau-en-Mauges et qui seraient susceptibles de vous intéresser.
Montrevault-sur-Èvre
TERRAIN ET MAISONVENTE d’une maison T3 (50 m²) à MontrevaultIdéalement située – À Montrevault (49110), maison neuve à vendre de 3 pièces, 50 m² de surface et 526 m² de terrain. Conçue de plain-pied, elle est composée d’une chambre, d’une cuisine et de deux salles de bains.Proche établissements scolaires, tennis, bibliothèque, boulangeries, commerces, supermarché et épiceries. Autoroute A11 et nationale N249 accessibles à 19 km. Cholet à 28 km.Cette maison de 3 pièces est à vendre pour la somme de 152 500 €.Contactez notre agence (Mathieu JANNEAU : (Numéro supprimé)) pour toute information sur la maison de plain-pied ou sur les modalités de vente.
Montrevault-sur-Èvre
TERRAIN ET MAISONVENTE d’une maison de 5 pièces (127 m²) à MontrevaultIdéalement située – À Montrevault (49110), maison neuve à vendre de 5 pièces, 2 niveaux, 127 m² et 526 m² de terrain. Elle dispose de quatre chambres, d’une cuisine et de deux salles de bains.Proche établissements scolaires, tennis, bibliothèque, boulangeries, commerces, supermarché et épiceries. Autoroute A11 et nationale N249 à 19 km. Cholet à 28 km.Le prix de vente de cette maison de 5 pièces est de 292 500 €.N’hésitez pas à prendre contact avec notre agence (Mathieu JANNEAU : (Numéro supprimé)) pour obtenir de plus amples informations sur la maison, sur les modalités de vente ou sur les démarches à suivre.
Montrevault-sur-Èvre
TERRAINTerrain de 526 m² en vente à MontrevaultIdéalement situé – Terrain orienté au sud de 526 m² en vente à Montrevault (49110).À proximité : établissements scolaires, tennis, bibliothèque, boulangeries, commerces, supermarché et épiceries. Accès autoroute A11 et nationale N249 à 19 km. Cholet à 28 km.Son prix de vente est de 35 508 €. Prenez contact avec Mathieu JANNEAU ((Numéro supprimé)) pour toute question sur le terrain. Donnez vie à vos projets immobiliers avec Maisons Bernard Jambert Angers.
Montrevault-sur-Èvre
TERRAIN ET MAISONMontrevault : maison T3 (71 m²) à vendreIdéalement située – À Montrevault (49110), maison neuve à vendre de 3 pièces, 71 m² de surface et 526 m² de terrain. Conçue de plain-pied, elle comporte deux chambres, une cuisine et une salle de bains. Sans vis à vis.Proche établissements scolaires, tennis, bibliothèque, boulangeries, commerces, supermarché et épiceries. Accès autoroute A11 et nationale N249 à 19 km. Cholet à 28 km.Le prix de vente de cette maison de 3 pièces est de 189 500 €.Prenez contact avec Mathieu JANNEAU (tél : (Numéro supprimé)) pour plus d’informations sur la maison ou sur les démarches à suivre. Maisons Bernard Jambert Angers vous accompagne à toutes les étapes de l’achat et dans tous vos projets immobiliers.
Le May-sur-Èvre
TERRAIN ET MAISONBelle parcelle de 795 m² située sur la commune du May-Sur-Evre. Parcelle située dans un environnement pavillonnaire. Déjà viabilisée, idéale pour votre projet de construction ! . Une maison qui s’adapte à vous, et non l’inverse ! Oubliez les plans figés, ici c’est vous qui donnez le ton ! Un vaste espace de vie de près de 50 m², baigné de lumière et pensé pour des moments de convivialité. Une chambre au rez-de-chaussée avec salle d’eau attenante, idéale pour votre confort ou celui de vos invités. À l’étage, trois chambres spacieuses et une salle de bain vous offrent un cocon parfait. Ajoutez à cela un garage pratique et un cellier malin, et vous obtenez une maison qui évolue avec vous. Design, confort et flexibilité. Il ne manque que votre touche ! . Pour un confort optimal et conforme à la RE2025, cette maison dispose d’une PAC avec plancher chauffant, radiateurs à l’étage et volets roulants électriques. À noter : Le prix indiqué exclut les revêtements de sol des chambres, la cuisine aménagée, la peinture, la décoration, les raccordements, les frais de notaire et l’assurance dommages-ouvrage. . // Réf. : 114-213410-ELL. Prix terrain : 87 450 €, hors frais d'agence à la charge de l'acquéreur. Ce terrain vous est proposé, par nos partenaires fonciers, dans le cadre d'un projet de construction avec nous. Les informations sur les risques auxquels ce bien est exposé sont disponibles sur le site Géorisques (www.georisques.gouv.fr). Prix maison : 220 832 €.
Beaupréau-en-Mauges
TERRAIN ET MAISONA MAUGES-SUR-LOIRE sur un terrain de 400 m², Alliance Construction vous propose de réaliser votre projet de construction de maison individuelle d'une surface de 87.91 m² habitables avec 3 chambres, à partir de 206457€*Demandez une étude gratuite et personnalisée de votre projet de construction !* Cette offre comprend :- Garanties constructeurs (dommages ouvrage, garantie de prix ferme et définitif, garantie de livraison, responsabilité civile et décennale).- Branchements aux compteurs et accès empierré sur 5m linéaires.Habitez une maison spécialement pensée et conçue pour vous et votre famille, prête à décorer, adaptée à vos modes de vie, personnalisée selon vos goûts grâce à un large choix d'options, de matériaux et d'innovations !Contactez Patrice (Numéro supprimé)*Prix indicatif pour un projet de construction d'une maison individuelle. Ne sont pas inclus les frais de branchements, raccordements aux réseaux publics, frais d'adaptations, aménagements intérieurs et extérieurs et options. terrain viabilisé, frais de notaire non compris, frais divers non compris. Garanties et assurances obligatoires incluses. Terrain sélectionné par ALLIANCE auprès de nos partenaires fonciers, selon disponibilité, pour la construction d'une maison neuve. Non mandaté pour réaliser la vente (loi du 2 janvier 1970 n°70-9). Visuels non contractuels. Voir détails en agence.Cette annonce a été créée et diffusée avec le logiciel VITAHOME.
Beaupréau-en-Mauges
TERRAIN ET MAISONA BEAUPREAU sur un terrain de 285 m², Alliance Construction vous propose de réaliser votre projet de construction de maison individuelle d'une surface de 92.07 m² habitables avec 3 chambres, à partir de 208175€*Informations du terrain : 20 minutes de CholetDemandez une étude gratuite et personnalisée de votre projet de construction !* Cette offre comprend :- Garanties constructeurs (dommages ouvrage, garantie de prix ferme et définitif, garantie de livraison, responsabilité civile et décennale).- Branchements aux compteurs et accès empierré sur 5m linéaires.Habitez une maison spécialement pensée et conçue pour vous et votre famille, prête à décorer, adaptée à vos modes de vie, personnalisée selon vos goûts grâce à un large choix d'options, de matériaux et d'innovations !Contactez Julien LÉONARDI au (Numéro supprimé) (Alliance Construction – Agence d'Angers).*Prix indicatif pour un projet de construction d'une maison individuelle. Ne sont pas inclus les frais de branchements, raccordements aux réseaux publics, frais d'adaptations, aménagements intérieurs et extérieurs et options. terrain viabilisé, frais de notaire non compris, frais divers non compris. Garanties et assurances obligatoires incluses. Terrain sélectionné par ALLIANCE auprès de nos partenaires fonciers, selon disponibilité, pour la construction d'une maison neuve. Non mandaté pour réaliser la vente (loi du 2 janvier 1970 n°70-9). Visuels non contractuels. Voir détails en agence.Cette annonce a été créée et diffusée avec le logiciel VITAHOME.
Beaupréau-en-Mauges
TERRAIN ET MAISONA GESTE sur un terrain de 437 m², Alliance Construction vous propose de réaliser votre projet de construction de maison individuelle d'une surface de 71.3 m² habitables avec 2 chambres, à partir de 203577€*Demandez une étude gratuite et personnalisée de votre projet de construction !* Cette offre comprend :- Garanties constructeurs (dommages ouvrage, garantie de prix ferme et définitif, garantie de livraison, responsabilité civile et décennale).- Branchements aux compteurs et accès empierré sur 5m linéaires.Habitez une maison spécialement pensée et conçue pour vous et votre famille, prête à décorer, adaptée à vos modes de vie, personnalisée selon vos goûts grâce à un large choix d'options, de matériaux et d'innovations !Contactez Patrice (Numéro supprimé)*Prix indicatif pour un projet de construction d'une maison individuelle. Ne sont pas inclus les frais de branchements, raccordements aux réseaux publics, frais d'adaptations, aménagements intérieurs et extérieurs et options. terrain viabilisé, frais de notaire non compris, frais divers non compris. Garanties et assurances obligatoires incluses. Terrain sélectionné par ALLIANCE auprès de nos partenaires fonciers, selon disponibilité, pour la construction d'une maison neuve. Non mandaté pour réaliser la vente (loi du 2 janvier 1970 n°70-9). Visuels non contractuels. Voir détails en agence.Cette annonce a été créée et diffusée avec le logiciel VITAHOME.
Beaupréau-en-Mauges
TERRAIN ET MAISONA BEAUPREAU sur un terrain de 402 m², Alliance Construction vous propose de réaliser votre projet de construction de maison individuelle d'une surface de 92.96 m² habitables avec 3 chambres, à partir de 239020€*Informations du terrain : 20 Minutes de CholetDemandez une étude gratuite et personnalisée de votre projet de construction !* Cette offre comprend :- Garanties constructeurs (dommages ouvrage, garantie de prix ferme et définitif, garantie de livraison, responsabilité civile et décennale).- Branchements aux compteurs et accès empierré sur 5m linéaires.Habitez une maison spécialement pensée et conçue pour vous et votre famille, prête à décorer, adaptée à vos modes de vie, personnalisée selon vos goûts grâce à un large choix d'options, de matériaux et d'innovations !Contactez Julien LÉONARDI au (Numéro supprimé) (Alliance Construction – Agence d'Angers).*Prix indicatif pour un projet de construction d'une maison individuelle. Ne sont pas inclus les frais de branchements, raccordements aux réseaux publics, frais d'adaptations, aménagements intérieurs et extérieurs et options. terrain viabilisé, frais de notaire non compris, frais divers non compris. Garanties et assurances obligatoires incluses. Terrain sélectionné par ALLIANCE auprès de nos partenaires fonciers, selon disponibilité, pour la construction d'une maison neuve. Non mandaté pour réaliser la vente (loi du 2 janvier 1970 n°70-9). Visuels non contractuels. Voir détails en agence.Cette annonce a été créée et diffusée avec le logiciel VITAHOME.
L’actualité immobilière à Beaupréau-en-Mauges
27/11/2023
02/11/2023
30/10/2023
20/10/2023
16/10/2023
16/10/2023