Maison à construire à Vauchrétien (49320)
Images
Description
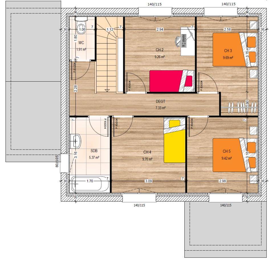
VENTE : maison T6 (107 m²) à Vauchrétien
Proche d'Angers - À découvrir à Vauchrétien (49320) : maison neuve 6 pièces en vente. 2 niveaux, surface de 107 m² sur 421 m² de terrain. Elle est composée de cinq chambres, d'une cuisine et de deux salles de bains.
À dix minutes : École Primaire Publique Emile Joulain, crèche, bibliothèque. Autoroutes A87 et A87N accessibles à 8 km.
Cette maison de 6 pièces est à vendre pour la somme de 279 800 €.
N'hésitez pas à prendre contact avec notre agence (SALAS Roman : (Numéro supprimé)) pour obtenir de plus amples renseignements sur la maison ou sur les modalités de vente. Maisons Bernard Jambert Angers vous accompagne dans tous vos projets immobiliers et dans toutes vos démarches.
Logement susceptibles de vous intéresser
Nous vous proposons de découvrir aussi cette sélection de logements situés à moins de 10km de Brissac Loire Aubance et qui seraient susceptibles de vous intéresser.
Tuffalun
TERRAIN ET MAISONMaison de 4 pièces (60 m²) à vendre à Ambillou-ChâteauIdéalement située – En vente à Ambillou-Château (49700) : maison neuve 4 pièces de 60 m² et de 400 m² de terrain. Son intérieur comporte deux chambres, une cuisine et une salle de bains.Proche écoles, bibliothèque, tennis, boulangerie, commerce et épicerie. Angers à 30 km.Cette maison de 4 pièces est proposée à l’achat pour 147 600 €.Contactez Carole PORCHER (tél : (Numéro supprimé)) pour toute question sur la maison de plain-pied ou sur les démarches à suivre.
Tuffalun
TERRAINTerrain de 400 m² à vendre à Ambillou-ChâteauIdéalement situé – Proche écoles et commerces, à Ambillou-Château (49700) : terrain de 400 m².Proche écoles, bibliothèque, tennis, boulangerie, commerce et épicerie. Angers à 30 km.Son prix de vente est de 27 600 €. Contactez notre agence (PORCHER Carole : (Numéro supprimé)) pour obtenir de plus amples informations sur le terrain.
Tuffalun
TERRAIN ET MAISONAmbillou-Château : maison F4 (80 m²) en venteIdéalement située – À découvrir à Ambillou-Château (49700) : maison neuve 4 pièces en vente, 80 m² sur 400 m² de terrain. Son intérieur compte trois chambres, une cuisine et une salle de bains.À proximité : écoles, bibliothèque, tennis, boulangerie, commerce et épicerie. Angers à 30 km.Cette maison de 4 pièces est à vendre pour la somme de 197 800 €.N’hésitez pas à prendre contact avec notre agence (Carole PORCHER : (Numéro supprimé)) pour toute information sur la maison, sur les démarches à suivre ou sur les modalités de vente. Faites de vos projets immobiliers une réalité avec Maisons Bernard Jambert Angers.
Tuffalun
TERRAIN ET MAISONVENTE d’une maison de 5 pièces (98 m²) à Ambillou-ChâteauIdéalement située – À vendre à Ambillou-Château (49700) : maison neuve 5 pièces de 98 m² et de 400 m² de terrain. Elle se divise en quatre chambres, une cuisine et une salle de bains.À dix minutes : écoles, bibliothèque, tennis, boulangerie, commerce et épicerie. Angers à 30 km.Cette maison de 5 pièces est à vendre pour la somme de 213 000 €.Contactez notre agence (PORCHER Carole : (Numéro supprimé)) pour toute question sur la maison, sur les modalités de vente ou sur les démarches à suivre. Maisons Bernard Jambert Angers vous accompagne dans tous vos projets immobiliers et à toutes les étapes de votre projet.
Terranjou
TERRAIN ET MAISONVous rêvez de construire cette maison ? En choisissant My Lovely Nature, vous avez frappé à la bonne porte. Nous serons heureux de vous accompagner dans votre projet de vie au naturel.Contactez-nous au (Numéro supprimé) (My Lovely Nature – Agence de Nantes MLN).*Prix indicatif pour un projet de construction d'une maison individuelle. Ne sont pas inclus les frais de branchements, raccordements aux réseaux publics, frais d'adaptations, aménagements intérieurs et extérieurs et options. terrain non viabilisé, frais de notaire non compris, frais divers non compris. Garanties et assurances obligatoires incluses. Terrain sélectionné par MY LOVELY NATURE auprès de nos partenaires fonciers, selon disponibilité, pour la construction d'une maison neuve. Non mandaté pour réaliser la vente (loi du 2 janvier 1970 n°70-9). Visuels non contractuels. Voir détails en agence.Cette annonce a été créée et diffusée avec le logiciel VITAHOME.
Terranjou
TERRAIN ET MAISONVous rêvez de construire cette maison ? En choisissant My Lovely Nature, vous avez frappé à la bonne porte. Nous serons heureux de vous accompagner dans votre projet de vie au naturel.Contactez-nous au (Numéro supprimé) (My Lovely Nature – Agence de Nantes MLN).*Prix indicatif pour un projet de construction d'une maison individuelle. Ne sont pas inclus les frais de branchements, raccordements aux réseaux publics, frais d'adaptations, aménagements intérieurs et extérieurs et options. terrain non viabilisé, frais de notaire non compris, frais divers non compris. Garanties et assurances obligatoires incluses. Terrain sélectionné par MY LOVELY NATURE auprès de nos partenaires fonciers, selon disponibilité, pour la construction d'une maison neuve. Non mandaté pour réaliser la vente (loi du 2 janvier 1970 n°70-9). Visuels non contractuels. Voir détails en agence.Cette annonce a été créée et diffusée avec le logiciel VITAHOME.
Terranjou
TERRAIN ET MAISONVous rêvez de construire cette maison ? En choisissant My Lovely Nature, vous avez frappé à la bonne porte. Nous serons heureux de vous accompagner dans votre projet de vie au naturel.Contactez-nous au (Numéro supprimé) (My Lovely Nature – Agence de Nantes MLN).*Prix indicatif pour un projet de construction d'une maison individuelle. Ne sont pas inclus les frais de branchements, raccordements aux réseaux publics, frais d'adaptations, aménagements intérieurs et extérieurs et options. terrain non viabilisé, frais de notaire non compris, frais divers non compris. Garanties et assurances obligatoires incluses. Terrain sélectionné par MY LOVELY NATURE auprès de nos partenaires fonciers, selon disponibilité, pour la construction d'une maison neuve. Non mandaté pour réaliser la vente (loi du 2 janvier 1970 n°70-9). Visuels non contractuels. Voir détails en agence.Cette annonce a été créée et diffusée avec le logiciel VITAHOME.
Terranjou
TERRAIN ET MAISONVous rêvez de construire cette maison ? En choisissant My Lovely Nature, vous avez frappé à la bonne porte. Nous serons heureux de vous accompagner dans votre projet de vie au naturel.Contactez-nous au (Numéro supprimé) (My Lovely Nature – Agence de Nantes MLN).*Prix indicatif pour un projet de construction d'une maison individuelle. Ne sont pas inclus les frais de branchements, raccordements aux réseaux publics, frais d'adaptations, aménagements intérieurs et extérieurs et options. terrain non viabilisé, frais de notaire non compris, frais divers non compris. Garanties et assurances obligatoires incluses. Terrain sélectionné par MY LOVELY NATURE auprès de nos partenaires fonciers, selon disponibilité, pour la construction d'une maison neuve. Non mandaté pour réaliser la vente (loi du 2 janvier 1970 n°70-9). Visuels non contractuels. Voir détails en agence.Cette annonce a été créée et diffusée avec le logiciel VITAHOME.
Terranjou
TERRAIN ET MAISONVous rêvez de construire cette maison ? En choisissant My Lovely Nature, vous avez frappé à la bonne porte. Nous serons heureux de vous accompagner dans votre projet de vie au naturel.Contactez-nous au (Numéro supprimé) (My Lovely Nature – Agence de Nantes MLN).*Prix indicatif pour un projet de construction d'une maison individuelle. Ne sont pas inclus les frais de branchements, raccordements aux réseaux publics, frais d'adaptations, aménagements intérieurs et extérieurs et options. terrain non viabilisé, frais de notaire non compris, frais divers non compris. Garanties et assurances obligatoires incluses. Terrain sélectionné par MY LOVELY NATURE auprès de nos partenaires fonciers, selon disponibilité, pour la construction d'une maison neuve. Non mandaté pour réaliser la vente (loi du 2 janvier 1970 n°70-9). Visuels non contractuels. Voir détails en agence.Cette annonce a été créée et diffusée avec le logiciel VITAHOME.
L’actualité immobilière à Brissac Loire Aubance
27/11/2023
02/11/2023
30/10/2023
20/10/2023
16/10/2023
16/10/2023