Images
Description
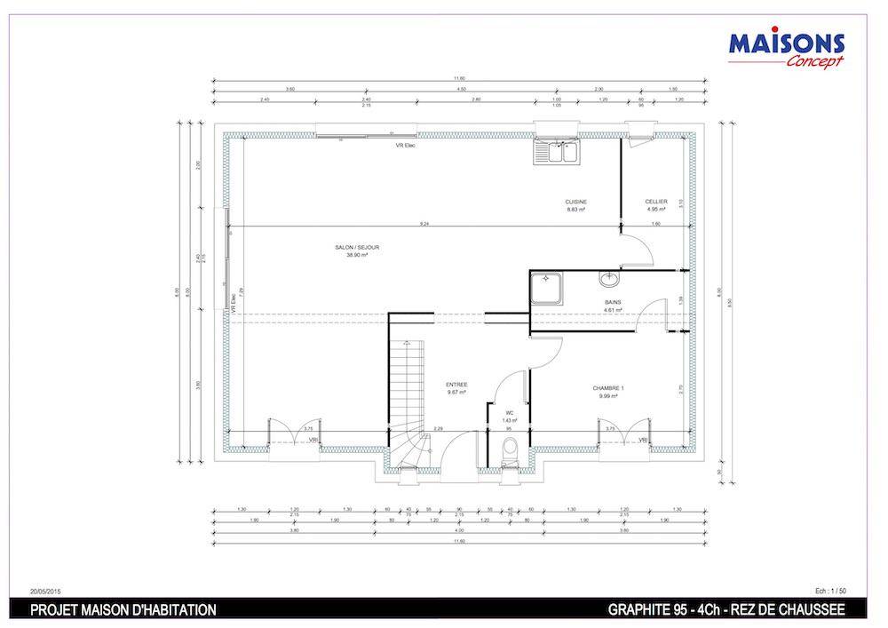
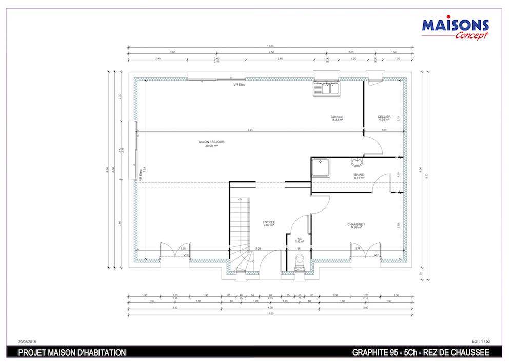
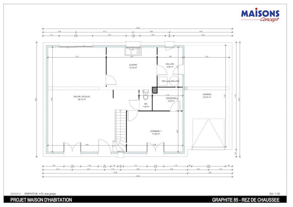
Nous vous proposons cette maison neuve, baptisée ""Graphite"", un modèle à étage qui combine habilement espace et élégance. Avec une surface habitable de 99 m², cette maison est conçue pour répondre aux besoins de confort et de fonctionnalité de ses résidents. Elle se distingue par son architecture soignée, offrant une avancée de façade avec un pignon qui lui confère une originalité remarquable tout en préservant un style traditionnel.
La ""Graphite"" est composée de 4 chambres réparties intelligemment pour garantir l'intimité de chacun, et de 4 pièces conçues pour maximiser l'espace de vie commun. La dalle de l'étage en béton assure une solidité et une isolation phonique de qualité, tandis que les combles aménagés offrent un espace supplémentaire, idéal pour une salle de jeux, un bureau ou une chambre d'amis.
La suite parentale, située au rez-de-chaussée, est pensée pour offrir un espace privé et confortable aux parents, avec un accès direct à la salle de bain et au dressing. Le garage accolé à la maison est un atout supplémentaire, offrant un espace de rangement pratique ou un abri sécurisé pour votre véhicule.
Parmi les options les plus plébiscitées par nos clients, la ""Graphite"" peut être personnalisée avec des lucarnes, apportant plus de lumière et d'espace à l'étage, et des baies coulissantes, pour une ouverture élégante sur l'extérieur et une luminosité accrue dans les pièces de vie.
Cette maison neuve est également conçue pour être basse consommation, conformément à la réglementation environnementale RE2020. Cela signifie que vous bénéficierez non seulement d'un confort optimal été comme hiver, mais aussi d'une réduction significative de vos factures énergétiques.
Choisir la maison ""Graphite"", c'est opter pour une habitation qui allie esthétique, confort et respect de l'environnement. Une maison où il fera bon vivre, conçue pour s'adapter à votre mode de vie et à vos envies.
Logement susceptibles de vous intéresser
Nous vous proposons de découvrir aussi cette sélection de logements situés à moins de 10km de Chalonnes-sur-Loire et qui seraient susceptibles de vous intéresser.
La Possonnière
TERRAIN ET MAISONVENTE d’une maison T5 (106 m²) à La PossonnièreProche d’Angers – À découvrir à La Possonnière (49170) : maison neuve 5 pièces à vendre, 106 m² de surface et 558 m² de terrain. Son intérieur est composé de trois chambres, d’une cuisine et d’une salle de bains.À proximité : gare (La Possonnière), écoles, tennis, commerces, boulangerie et supérette. Autoroutes A87 et A11 accessibles à 10 km.Cette maison de 5 pièces est à vendre pour la somme de 298 600 €.Contactez notre agence (Roman SALAS : (Numéro supprimé)) pour tout renseignement sur la maison ou sur les démarches à suivre.
La Possonnière
TERRAIN ET MAISONVENTE d’une maison T5 (130 m²) à La PossonnièreIdéalement située – En vente à La Possonnière (49170) : maison neuve 5 pièces de 130 m² sur un terrain de 558 m². Son intérieur propose cinq chambres, une cuisine et deux salles de bains.Proche gare (La Possonnière), écoles, tennis, commerces, boulangerie et supérette. Autoroutes A87 et A11 accessibles à 10 km. Angers à 15 km.Cette maison de 5 pièces est proposée à l’achat pour 375 500 €.Contactez Mathieu JANNEAU (tél : (Numéro supprimé)) pour obtenir de plus amples renseignements sur la maison, sur les modalités de vente ou sur les démarches à suivre. Maisons Bernard Jambert Angers vous accompagne à toutes les étapes de l’achat et dans tous vos projets immobiliers.
La Possonnière
TERRAINLa Possonnière : terrain de 558 m² en venteProche d’Angers – Terrain de 558 m² à La Possonnière (49170).Proche gare (La Possonnière), écoles, tennis, commerces, boulangerie et supérette. Accès autoroutes A87 et A11 à 10 km.Il est proposé à l’achat pour 85 000 €. Contactez notre agence (SALAS Roman : (Numéro supprimé)) pour plus d’informations sur le terrain, sur les modalités de vente ou sur les démarches à suivre.
La Possonnière
TERRAIN ET MAISONLa Possonnière : maison de 5 pièces (73 m²) en venteIdéalement située – À La Possonnière (49170), maison neuve à vendre de 5 pièces, 73 m² sur 558 m² de terrain. Son intérieur compte trois chambres, une cuisine et une salle de bains.À proximité : gare (La Possonnière), écoles, tennis, commerces, boulangerie et supérette. Autoroutes A87 et A11 accessibles à 10 km. Angers à 15 km.Le prix de vente de cette maison de 5 pièces est de 265 000 €.Contactez notre agence (Mathieu JANNEAU : (Numéro supprimé)) pour toute information sur la maison de plain-pied, sur les modalités de vente ou sur les démarches à suivre.
La Possonnière
TERRAIN ET MAISONMaison de 5 pièces (75 m²) à vendre à La PossonnièreProche d’Angers – À vendre à La Possonnière (49170) : maison neuve 5 pièces de 75 m² et de 558 m² de terrain. Elle dispose de deux chambres, d’une cuisine et d’une salle de bains.Proche gare (La Possonnière), écoles, tennis, commerces, boulangerie et supérette. Accès autoroutes A87 et A11 à 10 km.Le prix de vente de cette maison de 5 pièces est de 247 500 €.N’hésitez pas à prendre contact avec Roman SALAS ((Numéro supprimé)) pour plus de renseignements sur la maison, sur les démarches à suivre ou sur les modalités de vente. Concrétisez vos projets immobiliers avec Maisons Bernard Jambert Angers.
La Possonnière
TERRAIN ET MAISONLa Possonnière : maison de 6 pièces (140 m²) à vendreProche d’Angers – À découvrir à La Possonnière (49170) : maison neuve 6 pièces en vente. 2 niveaux, surface de 140 m² sur 558 m² de terrain. Elle inclut quatre chambres, une cuisine et deux salles de bains.À proximité : gare (La Possonnière), écoles, tennis, commerces, boulangerie et supérette. Autoroutes A87 et A11 à 10 km.Cette maison de 6 pièces est à vendre pour la somme de 366 400 €.Prenez contact avec notre agence (SALAS Roman : (Numéro supprimé)) pour toute information sur la maison. Maisons Bernard Jambert Angers vous accompagne dans toutes vos démarches et dans tous vos projets immobiliers.
Chalonnes-sur-Loire
TERRAINPrix : 22500 €.Sur ce terrain de 250 m² à CHALONNES-SUR-LOIRE, Alliance Construction vous propose de réaliser votre projet de construction de maison individuelle.Avec Alliance Construction, habitez une maison spécialement pensée et conçue pour vous et votre famille, prête à décorer, adaptée à vos modes de vie, personnalisée selon vos goûts grâce à un large choix d'options, de matériaux et d'innovations ! Demandez une étude gratuite et personnalisée de votre projet de construction sur ce terrain à CHALONNES-SUR-LOIRE !Contactez Julien LÉONARDI au (Numéro supprimé) (Alliance Construction – Agence d'Angers).Prix hors frais de notaire. Terrain sélectionné par ALLIANCE auprès de nos partenaires fonciers, selon disponibilité, pour la construction d'une maison neuve. Non mandaté pour réaliser la vente (loi du 2 janvier 1970 n°70-9). Visuels non contractuels. Voir détails en agence.Cette annonce a été créée et diffusée avec le logiciel VITAHOME.
Chalonnes-sur-Loire
TERRAINPrix : 66800 €.Sur ce terrain de 641 m² à CHALONNES-SUR-LOIRE, Alliance Construction vous propose de réaliser votre projet de construction de maison individuelle.Avec Alliance Construction, habitez une maison spécialement pensée et conçue pour vous et votre famille, prête à décorer, adaptée à vos modes de vie, personnalisée selon vos goûts grâce à un large choix d'options, de matériaux et d'innovations ! Demandez une étude gratuite et personnalisée de votre projet de construction sur ce terrain à CHALONNES-SUR-LOIRE !Contactez Julien LÉONARDI au (Numéro supprimé) (Alliance Construction – Agence d'Angers).Prix hors frais de notaire. Terrain sélectionné par ALLIANCE auprès de nos partenaires fonciers, selon disponibilité, pour la construction d'une maison neuve. Non mandaté pour réaliser la vente (loi du 2 janvier 1970 n°70-9). Visuels non contractuels. Voir détails en agence.Cette annonce a été créée et diffusée avec le logiciel VITAHOME.
Chalonnes-sur-Loire
TERRAINPrix : 66800 €.Sur ce terrain de 641 m² à CHALONNES-SUR-LOIRE, Alliance Construction vous propose de réaliser votre projet de construction de maison individuelle.Avec Alliance Construction, habitez une maison spécialement pensée et conçue pour vous et votre famille, prête à décorer, adaptée à vos modes de vie, personnalisée selon vos goûts grâce à un large choix d'options, de matériaux et d'innovations ! Demandez une étude gratuite et personnalisée de votre projet de construction sur ce terrain à CHALONNES-SUR-LOIRE !Contactez Julien LÉONARDI au (Numéro supprimé) (Alliance Construction – Agence d'Angers).Prix hors frais de notaire. Terrain sélectionné par ALLIANCE auprès de nos partenaires fonciers, selon disponibilité, pour la construction d'une maison neuve. Non mandaté pour réaliser la vente (loi du 2 janvier 1970 n°70-9). Visuels non contractuels. Voir détails en agence.Cette annonce a été créée et diffusée avec le logiciel VITAHOME.
L’actualité immobilière à Chalonnes-sur-Loire
27/11/2023
02/11/2023
30/10/2023
20/10/2023
16/10/2023
16/10/2023