Maison à construire à Saint-Georges-des-Gardes (49120)
Images
Description
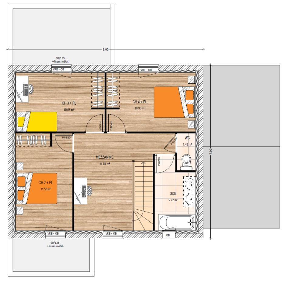
Maison de 5 pièces (127 m²) en vente à Saint-Georges-des-Gardes
Idéalement située - Maison neuve 5 pièces en vente à Saint-Georges-des-Gardes (49120) avec 2 niveaux, une surface de 127 m² sur un terrain de 492 m². Son intérieur comporte quatre chambres, une cuisine et deux salles de bains.
À proximité : gare (Chemillé-en-Anjou), École Primaire Privée Notre Dame de la Colline, crèche, tennis et boulangerie. Autoroute A87 accessible à 9 km. Cholet à 17 km,
Cette maison de 5 pièces est proposée à l'achat pour 325 500 €.
Contactez notre agence (JANNEAU Mathieu : (Numéro supprimé)) pour tout renseignement sur la maison ou sur les démarches à suivre. Maisons Bernard Jambert Angers est là pour vous accompagner dans tous vos projets immobiliers.
Logement susceptibles de vous intéresser
Nous vous proposons de découvrir aussi cette sélection de logements situés à moins de 10km de Chemillé-en-Anjou et qui seraient susceptibles de vous intéresser.
Chemillé-en-Anjou
TERRAIN ET MAISONMaison de 4 pièces (139 m²) en vente à ChanzeauxEmplacement privilégié – Maison neuve 4 pièces en vente à Chanzeaux (49750) avec une surface de 139 m² et de 1 500 m² de terrain. Son intérieur dispose de deux chambres, d’une cuisine et de deux salles de bains.Proche gare (Chemillé-en-Anjou), écoles, tennis, bibliothèque, boulangerie et commerce. Accès autoroute A87 à 7 km. Angers à 24 km, Valanjou à 0 m, La Jumellière à 0 m, Saint-Lambert-du-Lattay à 0 m, Rablay-sur-Layon à 0 m, Champ-sur-Layon à 0 m, Chemillé à 0 m et Beaulieu-sur-Layon à 0 m.Cette maison de 4 pièces est proposée à l’achat pour 398 000 €.N’hésitez pas à prendre contact avec notre agence (PORCHER Carole : (Numéro supprimé)) pour tout renseignement sur la maison.
Chemillé-en-Anjou
TERRAIN ET MAISONVENTE d’une maison de 3 pièces (50 m²) à ChanzeauxEmplacement privilégié – À Chanzeaux (49750), maison neuve à vendre de 3 pièces, 50 m² de surface et 1 500 m² de terrain. Conçue de plain-pied, elle propose deux chambres, une cuisine et une salle de bains.À proximité : gare (Chemillé-en-Anjou), écoles, tennis, bibliothèque, boulangerie et commerce. Autoroute A87 à 7 km. Angers à 24 km, Valanjou à 0 m, La Jumellière à 0 m, Saint-Lambert-du-Lattay à 0 m, Rablay-sur-Layon à 0 m, Champ-sur-Layon à 0 m, Chemillé à 0 m et Beaulieu-sur-Layon à 0 m.Le prix de vente de cette maison de 3 pièces est de 223 900 €.Contactez Carole PORCHER ((Numéro supprimé)) pour plus de renseignements sur la maison ou sur les modalités de vente.
Chemillé-en-Anjou
TERRAIN ET MAISONChanzeaux : maison de 5 pièces (140 m²) à vendreEmplacement privilégié – À Chanzeaux (49750), maison neuve en vente de 5 pièces, 2 niveaux, 140 m² de surface et 1 500 m² de terrain. Elle comporte quatre chambres, une cuisine et deux salles de bains.À dix minutes : gare (Chemillé-en-Anjou), écoles, tennis, bibliothèque, boulangerie et commerce. Autoroute A87 accessible à 7 km. Angers à 24 km, Valanjou à 0 m, La Jumellière à 0 m, Saint-Lambert-du-Lattay à 0 m, Rablay-sur-Layon à 0 m, Champ-sur-Layon à 0 m, Chemillé à 0 m et Beaulieu-sur-Layon à 0 m.Cette maison de 5 pièces est proposée à l’achat pour 456 700 €.Prenez contact avec notre agence (Carole PORCHER : (Numéro supprimé)) pour plus de renseignements sur la maison. Maisons Bernard Jambert Angers vous accompagne dans toutes vos démarches et dans tous vos projets immobiliers.
Chemillé-en-Anjou
TERRAINPrix : 50500 €.Sur ce terrain de 303 m² à CHEMILLE, Alliance Construction vous propose de réaliser votre projet de construction de maison individuelle.Avec Alliance Construction, habitez une maison spécialement pensée et conçue pour vous et votre famille, prête à décorer, adaptée à vos modes de vie, personnalisée selon vos goûts grâce à un large choix d'options, de matériaux et d'innovations ! Demandez une étude gratuite et personnalisée de votre projet de construction sur ce terrain à CHEMILLE !Contactez Julien LÉONARDI au (Numéro supprimé) (Alliance Construction – Agence d'Angers).Prix hors frais de notaire. Terrain sélectionné par ALLIANCE auprès de nos partenaires fonciers, selon disponibilité, pour la construction d'une maison neuve. Non mandaté pour réaliser la vente (loi du 2 janvier 1970 n°70-9). Visuels non contractuels. Voir détails en agence.Cette annonce a été créée et diffusée avec le logiciel VITAHOME.
Chemillé-en-Anjou
TERRAINPrix : 47100 €.Sur ce terrain de 287 m² à CHEMILLE, Alliance Construction vous propose de réaliser votre projet de construction de maison individuelle.Avec Alliance Construction, habitez une maison spécialement pensée et conçue pour vous et votre famille, prête à décorer, adaptée à vos modes de vie, personnalisée selon vos goûts grâce à un large choix d'options, de matériaux et d'innovations ! Demandez une étude gratuite et personnalisée de votre projet de construction sur ce terrain à CHEMILLE !Contactez Patrice GIRARD au (Numéro supprimé) (Alliance Construction – Agence d'Angers).Prix hors frais de notaire. Terrain sélectionné par ALLIANCE auprès de nos partenaires fonciers, selon disponibilité, pour la construction d'une maison neuve. Non mandaté pour réaliser la vente (loi du 2 janvier 1970 n°70-9). Visuels non contractuels. Voir détails en agence.Cette annonce a été créée et diffusée avec le logiciel VITAHOME.
Chemillé-en-Anjou
TERRAINPrix : 36500 €.Sur ce terrain de 233 m² à CHEMILLE, Alliance Construction vous propose de réaliser votre projet de construction de maison individuelle.Avec Alliance Construction, habitez une maison spécialement pensée et conçue pour vous et votre famille, prête à décorer, adaptée à vos modes de vie, personnalisée selon vos goûts grâce à un large choix d'options, de matériaux et d'innovations ! Demandez une étude gratuite et personnalisée de votre projet de construction sur ce terrain à CHEMILLE !Contactez Patrice GIRARD au (Numéro supprimé) (Alliance Construction – Agence d'Angers).Prix hors frais de notaire. Terrain sélectionné par ALLIANCE auprès de nos partenaires fonciers, selon disponibilité, pour la construction d'une maison neuve. Non mandaté pour réaliser la vente (loi du 2 janvier 1970 n°70-9). Visuels non contractuels. Voir détails en agence.Cette annonce a été créée et diffusée avec le logiciel VITAHOME.
Chemillé-en-Anjou
TERRAIN ET MAISONA CHEMILLE sur un terrain de 287 m², Alliance Construction vous propose de réaliser votre projet de construction de maison individuelle d'une surface de 71.3 m² habitables avec 2 chambres, à partir de 194741€*Demandez une étude gratuite et personnalisée de votre projet de construction !* Cette offre comprend :- Garanties constructeurs (dommages ouvrage, garantie de prix ferme et définitif, garantie de livraison, responsabilité civile et décennale).- Branchements aux compteurs et accès empierré sur 5m linéaires.Habitez une maison spécialement pensée et conçue pour vous et votre famille, prête à décorer, adaptée à vos modes de vie, personnalisée selon vos goûts grâce à un large choix d'options, de matériaux et d'innovations !Contactez Patrice (Numéro supprimé)*Prix indicatif pour un projet de construction d'une maison individuelle. Ne sont pas inclus les frais de branchements, raccordements aux réseaux publics, frais d'adaptations, aménagements intérieurs et extérieurs et options. terrain viabilisé, frais de notaire non compris, frais divers non compris. Garanties et assurances obligatoires incluses. Terrain sélectionné par ALLIANCE auprès de nos partenaires fonciers, selon disponibilité, pour la construction d'une maison neuve. Non mandaté pour réaliser la vente (loi du 2 janvier 1970 n°70-9). Visuels non contractuels. Voir détails en agence.Cette annonce a été créée et diffusée avec le logiciel VITAHOME.
Chemillé-en-Anjou
TERRAIN ET MAISONA CHEMILLE sur un terrain de 287 m², Alliance Construction vous propose de réaliser votre projet de construction de maison individuelle d'une surface de 94.48 m² habitables avec 3 chambres, à partir de 231300€*Demandez une étude gratuite et personnalisée de votre projet de construction !* Cette offre comprend :- Garanties constructeurs (dommages ouvrage, garantie de prix ferme et définitif, garantie de livraison, responsabilité civile et décennale).- Branchements aux compteurs et accès empierré sur 5m linéaires.Habitez une maison spécialement pensée et conçue pour vous et votre famille, prête à décorer, adaptée à vos modes de vie, personnalisée selon vos goûts grâce à un large choix d'options, de matériaux et d'innovations !Contactez Patrice (Numéro supprimé)*Prix indicatif pour un projet de construction d'une maison individuelle. Ne sont pas inclus les frais de branchements, raccordements aux réseaux publics, frais d'adaptations, aménagements intérieurs et extérieurs et options. terrain viabilisé, frais de notaire non compris, frais divers non compris. Garanties et assurances obligatoires incluses. Terrain sélectionné par ALLIANCE auprès de nos partenaires fonciers, selon disponibilité, pour la construction d'une maison neuve. Non mandaté pour réaliser la vente (loi du 2 janvier 1970 n°70-9). Visuels non contractuels. Voir détails en agence.Cette annonce a été créée et diffusée avec le logiciel VITAHOME.
Chemillé-en-Anjou
TERRAIN ET MAISONA CHEMILLE sur un terrain de 233 m², Alliance Construction vous propose de réaliser votre projet de construction de maison individuelle d'une surface de 102.5 m² habitables avec 4 chambres, à partir de 269800€*Demandez une étude gratuite et personnalisée de votre projet de construction !* Cette offre comprend :- Garanties constructeurs (dommages ouvrage, garantie de prix ferme et définitif, garantie de livraison, responsabilité civile et décennale).- Branchements aux compteurs et accès empierré sur 5m linéaires.Habitez une maison spécialement pensée et conçue pour vous et votre famille, prête à décorer, adaptée à vos modes de vie, personnalisée selon vos goûts grâce à un large choix d'options, de matériaux et d'innovations !Contactez Patrice (Numéro supprimé)*Prix indicatif pour un projet de construction d'une maison individuelle. Ne sont pas inclus les frais de branchements, raccordements aux réseaux publics, frais d'adaptations, aménagements intérieurs et extérieurs et options. terrain viabilisé, frais de notaire non compris, frais divers non compris. Garanties et assurances obligatoires incluses. Terrain sélectionné par ALLIANCE auprès de nos partenaires fonciers, selon disponibilité, pour la construction d'une maison neuve. Non mandaté pour réaliser la vente (loi du 2 janvier 1970 n°70-9). Visuels non contractuels. Voir détails en agence.Cette annonce a été créée et diffusée avec le logiciel VITAHOME.
L’actualité immobilière à Chemillé-en-Anjou
27/11/2023
02/11/2023
30/10/2023
20/10/2023
16/10/2023
16/10/2023