Maison à construire à Écuillé (49460)
Images
Description
VENTE : maison de 5 pièces (99 m²) à Écuillé
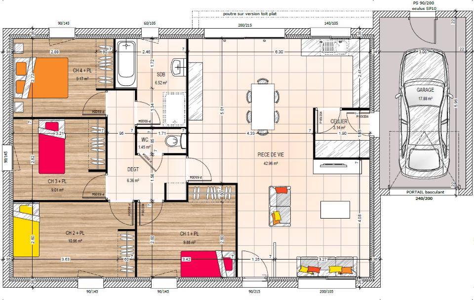
Proche d'Angers - À découvrir à Écuillé (49460) : maison neuve 5 pièces en vente. Surface de 99 m² sur 600 m² de terrain. Elle se divise en quatre chambres, une cuisine et une salle de bains.
À dix minutes : gares (Tiercé, Le Vieux Briollay et Étriché-Châteauneuf), École Primaire Publique les Salamandres, bibliothèque. Autoroutes A11, A87N et A85 accessibles à 19 km.
Cette maison de 5 pièces est proposée à l'achat pour 275 400 €.
Contactez Roman SALAS (tél : (Numéro supprimé)) pour plus d'informations sur la maison.
Logement susceptibles de vous intéresser
Nous vous proposons de découvrir aussi cette sélection de logements situés à moins de 10km de Écuillé et qui seraient susceptibles de vous intéresser.
Tiercé
TERRAIN ET MAISONTiercé : maison de 5 pièces (132 m²) en venteQuartier recherché – À découvrir à Tiercé (49125) : maison neuve 5 pièces en vente. 2 niveaux, surface de 132 m² sur 600 m² de terrain. Elle comporte cinq chambres, une cuisine et deux salles de bains.Proche gare (Tiercé), écoles, tennis, commerces, boulangeries, supermarché, bureau de poste et épicerie. Accès autoroutes A11, A85 et A87N à 13 km. Angers à 18 km.Cette maison de 5 pièces est à vendre pour la somme de 378 900 €.Contactez Carole PORCHER ((Numéro supprimé)) pour toute question sur la maison, sur les démarches à suivre ou sur les modalités de vente.
Écuillé
TERRAIN ET MAISONIssue d'une division parcellaire, venez découvrir cette parcelle de 597m² située à Ecuillé. Très belle opportunité. Terrain vendu viabilisé et prêt à construire. Environnement calme. A saisir ! . Une maison pensée pour aujourd’hui, et pour demain ! Laissez-vous séduire par cette maison au design moderne et fonctionnel, où chaque espace est optimisé pour un confort absolu. Avec 4 chambres, dont une suite parentale avec dressing et salle d’eau privée, cette maison offre un parfait équilibre entre intimité et convivialité. Au rez-de-chaussée, un vaste espace de vie lumineux, une cuisine ouverte qui invite au partage, un cellier pratique et un garage intégré. À l’étage, trois belles chambres et une salle de bains pour que chacun ait son espace. Et surtout… une maison qui s’adapte à vos envies ! Besoin d’un bureau, d’un coin lecture ou d’une chambre d’amis ? Faites-en un lieu unique, à votre image. Pour un confort optimal et conforme à la RE2025, cette maison dispose d’une PAC avec plancher chauffant, radiateurs à l’étage et volets roulants électriques. À noter : Le prix indiqué exclut les revêtements de sol des chambres, la cuisine aménagée, la peinture, la décoration, les raccordements, les frais de notaire et l’assurance dommages-ouvrage. . Laissez libre cours à votre imagination et parlons de votre futur chez-vous !. // Réf. : 1739-213698-JUL. Prix terrain : 74 408 €, dont 3408 € d'honoraires d'agence à la charge de l'acquéreur. Ce terrain vous est proposé, par nos partenaires fonciers, dans le cadre d'un projet de construction avec nous. Les informations sur les risques auxquels ce bien est exposé sont disponibles sur le site Géorisques (www.georisques.gouv.fr). Prix maison : 190 214 €.
Écuillé
TERRAINIssue d'une division parcellaire, venez découvrir cette parcelle de 597m² située à Ecuillé. Très belle opportunité. Terrain vendu viabilisé et prêt à construire. Environnement calme. A saisir ! . // Réf. : T213698. Prix terrain : 74 408 €, dont 3408 € d'honoraires d'agence à la charge de l'acquéreur. Ce terrain vous est proposé, par nos partenaires fonciers, dans le cadre d'un projet de construction avec nous. Les informations sur les risques auxquels ce bien est exposé sont disponibles sur le site Géorisques (www.georisques.gouv.fr).
Écuillé
TERRAINIssue d'une division parcellaire, venez découvrir cette parcelle de 597m² située à Ecuillé. Très belle opportunité. Terrain vendu viabilisé et prêt à construire. Environnement calme. A saisir ! . // Réf. : T213698. Prix terrain : 74 408 €, dont 3408 € d'honoraires d'agence à la charge de l'acquéreur. Ce terrain vous est proposé, par nos partenaires fonciers, dans le cadre d'un projet de construction avec nous. Les informations sur les risques auxquels ce bien est exposé sont disponibles sur le site Géorisques (www.georisques.gouv.fr).
Étriché
TERRAIN ET MAISONCette maison offre un grand volume alliant compacité et performance. Simple et élégante elle présente un pignon en bardage Douglas horizontal fin, faux claire voie, imprégné gris, qui s’associe agréablement à l’aluminium à joint debout d’aspect zinc naturel. De larges baies coulissantes en aluminium de la même teinte ouvrent sur la terrasse au sud et à l’ouest, prolongeant l’intérieur vers la nature environnante.Vous rêvez de construire cette maison ? En choisissant My Lovely Nature, vous avez frappé à la bonne porte. Nous serons heureux de vous accompagner dans votre projet de vie au naturel.Contactez-nous au (Numéro supprimé) (My Lovely Nature – Agence de Nantes MLN).*Prix indicatif pour un projet de construction d'une maison individuelle. Ne sont pas inclus les frais de branchements, raccordements aux réseaux publics, frais d'adaptations, aménagements intérieurs et extérieurs et options. terrain viabilisé, frais de notaire non compris, frais divers non compris. Garanties et assurances obligatoires incluses. Terrain sélectionné par MY LOVELY NATURE auprès de nos partenaires fonciers, selon disponibilité, pour la construction d'une maison neuve. Non mandaté pour réaliser la vente (loi du 2 janvier 1970 n°70-9). Visuels non contractuels. Voir détails en agence.Cette annonce a été créée et diffusée avec le logiciel VITAHOME.
Étriché
TERRAIN ET MAISONMaison à volumétrie simple, conçue en toiture terrasse, dotée d’une ligne architecturale de style minimaliste. Située à l’étage afin de bénéficier d’un vaste panorama sur la mer, la pièce de vie séjour-salon ouvre sur une terrasse suspendue qui s’étend sur toute la longueur de l’édifice. Les larges baies vitrées orientées sud-est captent et régulent la lumière grâce aux Brise-Soleil Orientables. La protection solaire assurée par la pergola complète le confort d’été de la construction, compacte et bioclimatique. Conçue en bardage intégral à faux claire-voix, la maison bénéficie de la performance thermique RE2020 propre aux habitations My Lovely Nature.Vous rêvez de construire cette maison ? En choisissant My Lovely Nature, vous avez frappé à la bonne porte. Nous serons heureux de vous accompagner dans votre projet de vie au naturel.Contactez-nous au (Numéro supprimé) (My Lovely Nature – Agence de Nantes MLN).*Prix indicatif pour un projet de construction d'une maison individuelle. Ne sont pas inclus les frais de branchements, raccordements aux réseaux publics, frais d'adaptations, aménagements intérieurs et extérieurs et options. terrain viabilisé, frais de notaire non compris, frais divers non compris. Garanties et assurances obligatoires incluses. Terrain sélectionné par MY LOVELY NATURE auprès de nos partenaires fonciers, selon disponibilité, pour la construction d'une maison neuve. Non mandaté pour réaliser la vente (loi du 2 janvier 1970 n°70-9). Visuels non contractuels. Voir détails en agence.Cette annonce a été créée et diffusée avec le logiciel VITAHOME.
Étriché
TERRAIN ET MAISONVous rêvez de construire cette maison ? En choisissant My Lovely Nature, vous avez frappé à la bonne porte. Nous serons heureux de vous accompagner dans votre projet de vie au naturel.Contactez-nous au (Numéro supprimé) (My Lovely Nature – Agence de Nantes MLN).*Prix indicatif pour un projet de construction d'une maison individuelle. Ne sont pas inclus les frais de branchements, raccordements aux réseaux publics, frais d'adaptations, aménagements intérieurs et extérieurs et options. terrain viabilisé, frais de notaire non compris, frais divers non compris. Garanties et assurances obligatoires incluses. Terrain sélectionné par MY LOVELY NATURE auprès de nos partenaires fonciers, selon disponibilité, pour la construction d'une maison neuve. Non mandaté pour réaliser la vente (loi du 2 janvier 1970 n°70-9). Visuels non contractuels. Voir détails en agence.Cette annonce a été créée et diffusée avec le logiciel VITAHOME.
Étriché
TERRAIN ET MAISONVous rêvez de construire cette maison ? En choisissant My Lovely Nature, vous avez frappé à la bonne porte. Nous serons heureux de vous accompagner dans votre projet de vie au naturel.Contactez-nous au (Numéro supprimé) (My Lovely Nature – Agence de Nantes MLN).*Prix indicatif pour un projet de construction d'une maison individuelle. Ne sont pas inclus les frais de branchements, raccordements aux réseaux publics, frais d'adaptations, aménagements intérieurs et extérieurs et options. terrain viabilisé, frais de notaire non compris, frais divers non compris. Garanties et assurances obligatoires incluses. Terrain sélectionné par MY LOVELY NATURE auprès de nos partenaires fonciers, selon disponibilité, pour la construction d'une maison neuve. Non mandaté pour réaliser la vente (loi du 2 janvier 1970 n°70-9). Visuels non contractuels. Voir détails en agence.Cette annonce a été créée et diffusée avec le logiciel VITAHOME.
Sceaux-d'Anjou
TERRAINVente Terrain 941m² Champigné – Les Hauts D’Anjou (49330)Chez Romain Propriétés Privées – Rare à la vente – Proche de toutes commodités.Superbe terrain de 941m2, idéalement situé et sans vis-à-vis, hors lotissement, clôturé de murs et de haies.Ce dernier offre une belle opportunité pour votre projet de construction.Libre de tout constructeur.Ce terrain est viabilisé et relié au tout-à-l’égout.Opportunité idéale pour un projet de construction individuelle ou un investissement immobilier.Je vous propose ce terrain constructible au prix de 90 000.00 euros HAI dont 5,88% d’honoraires à charge acquéreur soit 85 000.00 euros net vendeur.Pour visiter et vous accompagner dans votre projet, contactez Romain MARIE, au (Numéro supprimé) ou, par courriel à (Email supprimé).Selon l’article L.561.5 du Code Monétaire et Financier, pour l’organisation de la visite, la présentation d’une pièce d’identité vous sera demandée.Cette présente annonce a été rédigée sous la responsabilité éditoriale de Romain MARIE agissant sous le statut d’agent commercial immatriculé au RSAC CAEN 888 838 166 auprès de SAS PROPRIETES PRIVEES, au capital de 44 920 euros, ZAC LE CHÊNE FERRÉ – 44 ALLÉE DES CINQ CONTINENTS 44120 VERTOU; SIRET 487 624 777 00040, RCS Nantes. Carte Professionnelle Transactions sur immeubles et fonds de commerce (T) et Gestion immobilière (G) n°CPI 4401 2016 000 010 388 délivrée par la CCI Nantes – Saint Nazaire. Compte séquestre n(Numéro supprimé)67 BPA SAINT-SEBASTIEN-SUR-LOIRE (44230). Garantie GALIAN-SMABTP – 89 rue de la Boétie, 75008 Paris – n°28137 J pour 2 000 000 euros pour T et 120 000 euros pour G. Assurance responsabilité civile professionnelle par GALIAN-SMABTP n° de police 28137.Mandat réf : 411564 – Le professionnel garantit et sécurise votre projet immobilier. (5.88 % honoraires TTC à la charge de l’acquéreur.) Romain MARIE (EI) Agent Commercial – Numéro RSAC : CAEN 888 838 166 – .
L’actualité immobilière à Écuillé
27/11/2023
02/11/2023
30/10/2023
20/10/2023
16/10/2023
16/10/2023