Images
Description
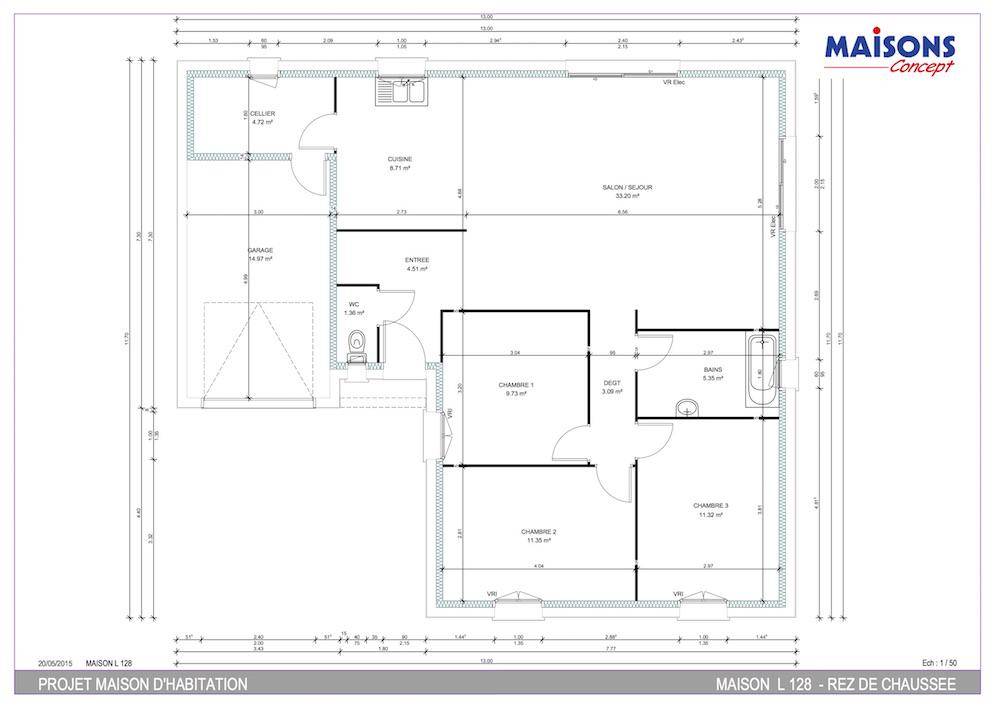
Nous vous proposons cette maison neuve, baptisée ""Élégance"", un modèle qui se distingue par sa forme en L, offrant à la fois style et fonctionnalité. Avec une surface habitable de 93 m², cette maison de plain-pied est conçue pour maximiser l'espace et le confort de ses résidents. Elle comprend un grand salon-séjour lumineux, ouvert sur une cuisine moderne, idéale pour partager des moments conviviaux en famille ou entre amis.
L'architecture en L permet une séparation naturelle entre l'espace de vie et l'espace nuit, ce dernier étant composé de 3 chambres spacieuses, garantissant intimité et tranquillité. La maison dispose également d'un garage intégré, pratique pour sécuriser votre véhicule ou pour du stockage supplémentaire, ainsi qu'un cellier adjacent à la cuisine, parfait pour organiser vos provisions et ustensiles de cuisine.
L'une des caractéristiques les plus appréciées de ce modèle est son enduit bi-ton, qui ajoute une touche d'élégance et de modernité à l'extérieur de la maison, la faisant ressortir dans n'importe quel environnement.
Construite dans le respect des normes de la RE2020, cette maison basse consommation est un choix judicieux pour ceux qui cherchent à réduire leur empreinte écologique tout en bénéficiant d'un confort optimal. Elle est personnalisable selon vos besoins et vos envies, vous permettant de créer un foyer qui vous ressemble, adapté à votre mode de vie.
""Élégance"" est plus qu'une maison, c'est un lieu de vie pensé pour votre bien-être et celui de votre famille, où chaque détail a été conçu pour répondre à vos attentes les plus élevées. Ne manquez pas l'opportunité de construire la maison de vos rêves, un espace où chaque jour sera empreint de confort, de style et d'efficacité énergétique.
Logement susceptibles de vous intéresser
Nous vous proposons de découvrir aussi cette sélection de logements situés à moins de 10km de Jarzé Villages et qui seraient susceptibles de vous intéresser.
Jarzé Villages
TERRAIN ET MAISONTerrain constructible de 4564m², bien situé et proche des commodités. Parcelle offrant un beau potentiel pour concrétiser votre projet de construction. Maison de plain-pied de 100 m² habitables, familiale et lumineuse vous propose une vaste pièce de vie éclairée par sa grande baie vitrée avec cuisine ouverte et cellier, un dégagement dessert quatre chambres avec rangement, une salle de bains, wc. Pour vous assurer un confort de vie et conformément à la RE2025, nous avons choisi un mode de chauffage par PAC + plancher chauffant, volets roulants électriques. Prix hors fourniture et pose : des appareils sanitaires (sauf système de chauffage et d'eau chaude sanitaire), du carrelage et de la faïence, des revêtements de sol dans les chambres. Hors décoration et aménagement intérieur et peinture. Hors raccordements, frais de notaire et dommage ouvrage. // Réf. : 957-213644-SAP. Prix terrain : 57 528 €, hors frais d'agence à la charge de l'acquéreur. Ce terrain vous est proposé, par nos partenaires fonciers, dans le cadre d'un projet de construction avec nous. Les informations sur les risques auxquels ce bien est exposé sont disponibles sur le site Géorisques (www.georisques.gouv.fr). Prix maison : 131 897 €.
Mazé-Milon
TERRAIN ET MAISONTerrain constructible de 420 m², bien situé et proche des commodités. Parcelle bien orientée, offrant un cadre agréable pour concevoir votre future maison. Familiale et fonctionnelle, cette maison rectangulaire de plain-pied vous séduira par un espace de vie de 50 m² très lumineux avec sa baie vitrée et ses ouvertures, une cuisine ouverte vous permettra de communiquer aisément. Du côté de l’espace nuit, un dégagement dessert 1 chambre parentale avec dressing et salle d’eau, trois chambres avec rangement, une salle de bain et un wc séparé. Pour vous assurer un confort de vie et conformément à la RE2025, nous avons choisi un mode de chauffage par PAC + plancher chauffant, volets roulants électriques. Prix hors fourniture et pose : des appareils sanitaires (sauf système de chauffage et d'eau chaude sanitaire), du carrelage et de la faïence, des revêtements de sol dans les chambres. Hors décoration et aménagement intérieur et peinture. Hors raccordements, frais de notaire et dommage ouvrage. // Réf. : 1425-213638-SAP. Prix terrain : 50 400 €, hors frais d'agence à la charge de l'acquéreur. Ce terrain vous est proposé, par nos partenaires fonciers, dans le cadre d'un projet de construction avec nous. Les informations sur les risques auxquels ce bien est exposé sont disponibles sur le site Géorisques (www.georisques.gouv.fr). Prix maison : 146 019 €.
Corzé
TERRAIN ET MAISONÀ découvrir sans tarder à Corzé !. Cette jolie parcelle de 1000 m² bénéficie d’un emplacement privilégié avec ses commerces, ses services et ses équipements notamment scolaires et périscolaires. Elle offre un cadre pratique et agréable près du Loir pour réaliser de belles balades. Le lieu idéal pour la maison qui vous ressemble !. Un premier achat sans compromis ! Vous cherchez une maison moderne, fonctionnelle et accessible ? Ce modèle de 87 m² est idéal pour une première acquisition ! Son grand espace de vie de 45 m², baigné de lumière, offre une pièce centrale chaleureuse et conviviale. Côté nuit, 3 chambres bien agencées garantissent confort et intimité. Un garage attenant et un cellier pratique viennent compléter cet ensemble pensé pour un quotidien fluide et agréable. Facile à personnaliser, évolutive et pensée pour durer, cette maison coche toutes les cases !. Premier achat, premier projet… Prêts à vous lancer ? . Pour un confort optimal et conforme à la RE2025, cette maison dispose d’une PAC avec plancher chauffant et volets roulants électriques. À noter : Le prix indiqué exclut les revêtements de sol des chambres, la cuisine aménagée, la peinture, la décoration, les raccordements, les frais de notaire et l’assurance dommages-ouvrage. // Réf. : 31-213441-SHQ. Prix terrain : 87 800 €, hors frais d'agence à la charge de l'acquéreur. Ce terrain vous est proposé, par nos partenaires fonciers, dans le cadre d'un projet de construction avec nous. Les informations sur les risques auxquels ce bien est exposé sont disponibles sur le site Géorisques (www.georisques.gouv.fr). Prix maison : 151 253 €.
Mazé-Milon
TERRAIN ET MAISONTerrain constructible de 420 m², bien situé et proche des commodités. Parcelle bien orientée, offrant un cadre agréable pour concevoir votre future maison. Agréable et lumineuse, cette maison de plain-pied vous propose une cuisine ouverte sur un vaste séjour traversant de 47 m² environ. L'accès direct cuisine, cellier et garage facilite l'habitabilité de cette maison. L'espace nuit est composé de deux belles chambres avec rangement, d'une salle de bains et des wc séparés. Ses jeux d'enduits personnalisables sauront vous séduire. . Pour vous assurer un confort de vie et conformément à la RE2025, nous avons choisi un mode de chauffage par PAC + plancher chauffant, volets roulants électriques. Prix hors fourniture et pose : des appareils sanitaires (sauf système de chauffage et d'eau chaude sanitaire), du carrelage et de la faïence, des revêtements de sol dans les chambres. Hors décoration et aménagement intérieur et peinture. Hors raccordements, frais de notaire et dommage ouvrage. // Réf. : 1065-213638-SAP. Prix terrain : 50 400 €, hors frais d'agence à la charge de l'acquéreur. Ce terrain vous est proposé, par nos partenaires fonciers, dans le cadre d'un projet de construction avec nous. Les informations sur les risques auxquels ce bien est exposé sont disponibles sur le site Géorisques (www.georisques.gouv.fr). Prix maison : 127 774 €.
Mazé-Milon
TERRAINTerrain constructible de 420 m², bien situé et proche des commodités. Parcelle bien orientée, offrant un cadre agréable pour concevoir votre future maison. // Réf. : T213638. Prix terrain : 50 400 €, hors frais d'agence et de notaire à la charge de l'acquéreur. Ce terrain vous est proposé, par nos partenaires fonciers, dans le cadre d'un projet de construction avec nous. Les informations sur les risques auxquels ce bien est exposé sont disponibles sur le site Géorisques (www.georisques.gouv.fr).
Corzé
TERRAINÀ découvrir sans tarder à Corzé !. Cette jolie parcelle de 1000 m² bénéficie d’un emplacement privilégié avec ses commerces, ses services et ses équipements notamment scolaires et périscolaires. Elle offre un cadre pratique et agréable près du Loir pour réaliser de belles balades. Le lieu idéal pour la maison qui vous ressemble !. // Réf. : T213441. Prix terrain : 87 800 €, hors frais d'agence et de notaire à la charge de l'acquéreur. Ce terrain vous est proposé, par nos partenaires fonciers, dans le cadre d'un projet de construction avec nous. Les informations sur les risques auxquels ce bien est exposé sont disponibles sur le site Géorisques (www.georisques.gouv.fr).
Corzé
TERRAINÀ découvrir sans tarder à Corzé !. Cette jolie parcelle de 1000 m² bénéficie d’un emplacement privilégié avec ses commerces, ses services et ses équipements notamment scolaires et périscolaires. Elle offre un cadre pratique et agréable près du Loir pour réaliser de belles balades. Le lieu idéal pour la maison qui vous ressemble !. // Réf. : T213441. Prix terrain : 87 800 €, hors frais d'agence et de notaire à la charge de l'acquéreur. Ce terrain vous est proposé, par nos partenaires fonciers, dans le cadre d'un projet de construction avec nous. Les informations sur les risques auxquels ce bien est exposé sont disponibles sur le site Géorisques (www.georisques.gouv.fr).
Jarzé Villages
TERRAIN ET MAISONTerrain constructible de 4564m², bien situé et proche des commodités. Parcelle offrant un beau potentiel pour concrétiser votre projet de construction. Spacieuse et fonctionnelle, cette maison traditionnelle de plain-pied est dotée d'un grand espace de vie de 40 m² environ avec cuisine ouverte, très lumineux inondé de lumière grâce à ses grandes ouvertures. Un dégagement dessert trois chambres, une salle de bains. Le garage intégré communiquant avec le cellier se révélera un plus pour cette charmante maison. Pour vous assurer un confort de vie et conformément à la RE2025, nous avons choisi un mode de chauffage par PAC + plancher chauffant, volets roulants électriques. Prix hors fourniture et pose : des appareils sanitaires (sauf système de chauffage et d'eau chaude sanitaire), du carrelage et de la faïence, des revêtements de sol dans les chambres. Hors décoration et aménagement intérieur et peinture. Hors raccordements, frais de notaire et dommage ouvrage. // Réf. : 1137-213644-SAP. Prix terrain : 57 528 €, hors frais d'agence à la charge de l'acquéreur. Ce terrain vous est proposé, par nos partenaires fonciers, dans le cadre d'un projet de construction avec nous. Les informations sur les risques auxquels ce bien est exposé sont disponibles sur le site Géorisques (www.georisques.gouv.fr). Prix maison : 125 207 €.
Jarzé Villages
TERRAIN ET MAISONTerrain constructible de 4564m², bien situé et proche des commodités. Parcelle offrant un beau potentiel pour concrétiser votre projet de construction. Le modèle MAJORQUE est une maison de plain-pied fonctionnelle et lumineuse qui vous accueille dans un bel espace de vie avec cuisine ouverte avec accès direct au cellier. Du côté de l'espace nuit, 3 chambres, une salle de bains et wc indépendant. Vous pourrez choisir vos jeux d’enduits afin de personnaliser votre maison pour qu’elle corresponde à votre style. Pour vous assurer un confort de vie et conformément à la RE2025, nous avons choisi un mode de chauffage par PAC + plancher chauffant, volets roulants électriques. Prix hors fourniture et pose : des appareils sanitaires (sauf système de chauffage et d'eau chaude sanitaire), du carrelage et de la faïence, des revêtements de sol dans les chambres. Hors décoration et aménagement intérieur et peinture. Hors raccordements, frais de notaire et dommage ouvrage. // Réf. : 1029-213644-SAP. Prix terrain : 57 528 €, hors frais d'agence à la charge de l'acquéreur. Ce terrain vous est proposé, par nos partenaires fonciers, dans le cadre d'un projet de construction avec nous. Les informations sur les risques auxquels ce bien est exposé sont disponibles sur le site Géorisques (www.georisques.gouv.fr). Prix maison : 111 726 €.
L’actualité immobilière à Jarzé Villages
27/11/2023
02/11/2023
30/10/2023
20/10/2023
16/10/2023
16/10/2023