Maison à construire à Le May-sur-Èvre (49122)
Images
Description
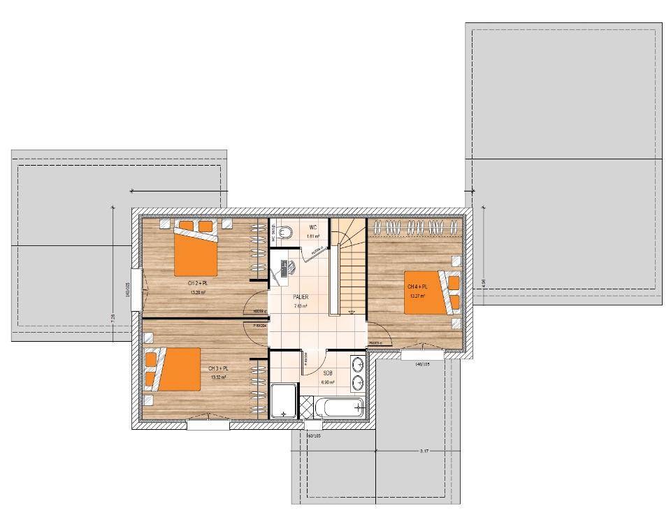
VENTE : maison F5 (150 m²) au May-sur-Èvre
Idéalement située - Maison neuve 5 pièces à vendre au May-sur-Èvre (49122) avec 2 niveaux, une surface de 150 m² et de 588 m² de terrain. Elle offre quatre chambres, une cuisine et deux salles de bains.
À dix minutes : gare (Cholet), établissements scolaires, crèche, tennis, boulangeries, commerces, supermarché, bureau de poste et boucherie-charcuterie. Autoroute A87 et nationale N249 à 8 km. Cholet à 10 km.
Cette maison de 5 pièces est proposée à l'achat pour 392 500 €.
Contactez notre agence (Mathieu JANNEAU : (Numéro supprimé)) pour toute question sur la maison, sur les modalités de vente ou sur les démarches à suivre.
Logement susceptibles de vous intéresser
Nous vous proposons de découvrir aussi cette sélection de logements situés à moins de 10km de Le May-sur-Èvre et qui seraient susceptibles de vous intéresser.
Cholet
TERRAIN ET MAISONBelle et grande parcelle de 792 m² située sur la commune de Cholet. Ce terrain offre un emplacement idéal pour implanter votre future maison, avec une exposition Sud-Ouest parfaite pour profiter du soleil tout au long de la journée. La commune dynamique de Cholet offre ainsi un cadre de vie complet, moderne et attractif, idéal pour y construire une maison familiale ou pour un projet d’investissement immobilier. Enfin, cette parcelle est entièrement viabilisée, vous permettant d’envisager votre projet de construction dans les meilleures conditions. Laissez-vous séduire par cette maison traditionnelle de 3 chambres, conçue pour offrir confort et convivialité grâce à son séjour lumineux et sa distribution parfaitement pensée. Fonctionnelle, économique et agréable à vivre au quotidien, elle répond à tous les besoins modernes sans renoncer au charme authentique. Une belle opportunité pour concrétiser votre projet ! Pour un confort optimal et conforme à la RE2025, cette maison dispose d’une PAC avec plancher chauffant et volets roulants électriques. À noter : Le prix indiqué exclut les revêtements de sol des chambres, la cuisine aménagée, la peinture, la décoration, les raccordements, les frais de notaire et l’assurance dommages ouvrage. . // Réf. : 2682-213618-ELL. Prix terrain : 125 136 €, hors frais d'agence à la charge de l'acquéreur. Ce terrain vous est proposé, par nos partenaires fonciers, dans le cadre d'un projet de construction avec nous. Les informations sur les risques auxquels ce bien est exposé sont disponibles sur le site Géorisques (www.georisques.gouv.fr). Prix maison : 129 632 €.
Cholet
TERRAIN ET MAISONBelle et grande parcelle de 792 m² située sur la commune de Cholet. Ce terrain offre un emplacement idéal pour implanter votre future maison, avec une exposition Sud-Ouest parfaite pour profiter du soleil tout au long de la journée. La commune dynamique de Cholet offre ainsi un cadre de vie complet, moderne et attractif, idéal pour y construire une maison familiale ou pour un projet d’investissement immobilier. Enfin, cette parcelle est entièrement viabilisée, vous permettant d’envisager votre projet de construction dans les meilleures conditions. Un projet qui s’adapte à vous ! Imaginez une maison où tout est modulable : un vaste salon-séjour de plus de 40 m², une cuisine ouverte pour plus de convivialité, et une suite parentale au rez-de-chaussée pour un confort absolu. À l’étage, deux belles chambres et une mezzanine offrent un espace évolutif : bureau, salle de jeux ou coin lecture… C’est vous qui choisissez !. Avec un garage pratique et un bureau indépendant, cette maison allie fonctionnalité et élégance, tout en restant entièrement personnalisable. Un espace de vie qui vous ressemble… Prêts à le créer ? . Pour un confort optimal et conforme à la RE2025, cette maison dispose d’une PAC avec plancher chauffant, radiateurs à l’étage et volets roulants électriques. À noter : Le prix indiqué exclut les revêtements de sol des chambres, la cuisine aménagée, la peinture, la décoration, les raccordements, les frais de notaire et l’assurance dommages-ouvrage. // Réf. : 142-213618-ELL. Prix terrain : 125 136 €, hors frais d'agence à la charge de l'acquéreur. Ce terrain vous est proposé, par nos partenaires fonciers, dans le cadre d'un projet de construction avec nous. Les informations sur les risques auxquels ce bien est exposé sont disponibles sur le site Géorisques (www.georisques.gouv.fr). Prix maison : 259 376 €.
Cholet
TERRAINTerrain à bâtir de 852 m², non viabilisé, situé dans le quartier prisé des Tuileries. Opportunité idéale pour projet de construction sur mesure, dans un environnement calme et recherché.A saisir!! Les honoraires d’agence sont à la charge de l’acquéreur, soit 3,79% TTC du prix hors honoraires.Les informations sur les risques auxquels ce bien est exposé sont disponibles sur le site Géorisques : www. georisques. gouv. fr.Réseau Immobilier CAPIFRANCE – Votre agent commercial (RSAC N(Numéro supprimé) – Greffe de ANGERS) Philippe VIEAU Entrepreneur Individuel à Responsabilité Limitée (Numéro supprimé) – Réf.933238
Cholet
TERRAINFiche N°Id-TCT175751 : CHOLET Fiche BC175751 : Cholet, secteur Proche sacre coeur, Terrain ref : peuplier de 852 m2 – – Equipements annexes : jardin – – chauffage : Aucun – Plus d’informations disponibles sur demande… – Mentions légales : Proposé à la vente à 137000 Euros (Dont 3.79% TTC d’honoraires à la charge de l’acquéreur, soit un prix hors honoraires de 132000 Euros) – Affaire suivie par Mr Adrien DAVY (Agent commercial independant) – Reseau Immo-Diffusion Cholet – Pour plus d’informations, contactez notre secrétariat au (Numéro supprimé) (Appel gratuit ou prix d’une communication locale) – Les informations sur les risques auxquels ce bien est exposé sont disponibles sur le site Géorisques : www.georisques.gouv.fr
Cholet
TERRAINBelle et grande parcelle de 792 m² située sur la commune de Cholet. Ce terrain offre un emplacement idéal pour implanter votre future maison, avec une exposition Sud-Ouest parfaite pour profiter du soleil tout au long de la journée. La commune dynamique de Cholet offre ainsi un cadre de vie complet, moderne et attractif, idéal pour y construire une maison familiale ou pour un projet d’investissement immobilier. Enfin, cette parcelle est entièrement viabilisée, vous permettant d’envisager votre projet de construction dans les meilleures conditions. // Réf. : T213618. Prix terrain : 125 136 €, hors frais d'agence et de notaire à la charge de l'acquéreur. Ce terrain vous est proposé, par nos partenaires fonciers, dans le cadre d'un projet de construction avec nous. Les informations sur les risques auxquels ce bien est exposé sont disponibles sur le site Géorisques (www.georisques.gouv.fr).
Cholet
TERRAINBelle et grande parcelle de 792 m² située sur la commune de Cholet. Ce terrain offre un emplacement idéal pour implanter votre future maison, avec une exposition Sud-Ouest parfaite pour profiter du soleil tout au long de la journée. La commune dynamique de Cholet offre ainsi un cadre de vie complet, moderne et attractif, idéal pour y construire une maison familiale ou pour un projet d’investissement immobilier. Enfin, cette parcelle est entièrement viabilisée, vous permettant d’envisager votre projet de construction dans les meilleures conditions. // Réf. : T213618. Prix terrain : 125 136 €, hors frais d'agence et de notaire à la charge de l'acquéreur. Ce terrain vous est proposé, par nos partenaires fonciers, dans le cadre d'un projet de construction avec nous. Les informations sur les risques auxquels ce bien est exposé sont disponibles sur le site Géorisques (www.georisques.gouv.fr).
Cholet
TERRAIN ET MAISONBelle et grande parcelle de 792 m² située sur la commune de Cholet. Ce terrain offre un emplacement idéal pour implanter votre future maison, avec une exposition Sud-Ouest parfaite pour profiter du soleil tout au long de la journée. La commune dynamique de Cholet offre ainsi un cadre de vie complet, moderne et attractif, idéal pour y construire une maison familiale ou pour un projet d’investissement immobilier. Enfin, cette parcelle est entièrement viabilisée, vous permettant d’envisager votre projet de construction dans les meilleures conditions. Laissez-vous séduire par cette maison lumineuse aux lignes modernes, conçue pour offrir espace et confort. Profitez d’une suite parentale au rez-de-chaussée avec dressing et salle de bain, idéale pour plus d’intimité. À l’étage, trois belles chambres et une seconde salle de bain garantissent le confort de toute la famille. Un bureau, une pièce de vie ouverte et conviviale, et un garage attenant complètent ce cadre de vie fonctionnel et chaleureux. Pour un confort optimal et conforme à la RE2025, cette maison dispose d’une PAC avec plancher chauffant, radiateurs à l’étage et volets roulants électriques. À noter : Le prix indiqué exclut les revêtements de sol des chambres, la cuisine aménagée, la peinture, la décoration, les raccordements, les frais de notaire et l’assurance dommages-ouvrage. . Imaginez, personnalisez, et créez votre chez-vous sur-mesure !. // Réf. : 1681-213618-ELL. Prix terrain : 125 136 €, hors frais d'agence à la charge de l'acquéreur. Ce terrain vous est proposé, par nos partenaires fonciers, dans le cadre d'un projet de construction avec nous. Les informations sur les risques auxquels ce bien est exposé sont disponibles sur le site Géorisques (www.georisques.gouv.fr). Prix maison : 336 886 €.
Le May-sur-Èvre
TERRAIN ET MAISONBelle parcelle de 795 m² située sur la commune du May-Sur-Evre. Parcelle située dans un environnement pavillonnaire. Déjà viabilisée, idéale pour votre projet de construction ! . Une maison qui s’adapte à vous, et non l’inverse ! Oubliez les plans figés, ici c’est vous qui donnez le ton ! Un vaste espace de vie de près de 50 m², baigné de lumière et pensé pour des moments de convivialité. Une chambre au rez-de-chaussée avec salle d’eau attenante, idéale pour votre confort ou celui de vos invités. À l’étage, trois chambres spacieuses et une salle de bain vous offrent un cocon parfait. Ajoutez à cela un garage pratique et un cellier malin, et vous obtenez une maison qui évolue avec vous. Design, confort et flexibilité. Il ne manque que votre touche ! . Pour un confort optimal et conforme à la RE2025, cette maison dispose d’une PAC avec plancher chauffant, radiateurs à l’étage et volets roulants électriques. À noter : Le prix indiqué exclut les revêtements de sol des chambres, la cuisine aménagée, la peinture, la décoration, les raccordements, les frais de notaire et l’assurance dommages-ouvrage. . // Réf. : 114-213410-ELL. Prix terrain : 87 450 €, hors frais d'agence à la charge de l'acquéreur. Ce terrain vous est proposé, par nos partenaires fonciers, dans le cadre d'un projet de construction avec nous. Les informations sur les risques auxquels ce bien est exposé sont disponibles sur le site Géorisques (www.georisques.gouv.fr). Prix maison : 220 832 €.
Beaupréau-en-Mauges
TERRAIN ET MAISONA MAUGES-SUR-LOIRE sur un terrain de 400 m², Alliance Construction vous propose de réaliser votre projet de construction de maison individuelle d'une surface de 87.91 m² habitables avec 3 chambres, à partir de 206457€*Demandez une étude gratuite et personnalisée de votre projet de construction !* Cette offre comprend :- Garanties constructeurs (dommages ouvrage, garantie de prix ferme et définitif, garantie de livraison, responsabilité civile et décennale).- Branchements aux compteurs et accès empierré sur 5m linéaires.Habitez une maison spécialement pensée et conçue pour vous et votre famille, prête à décorer, adaptée à vos modes de vie, personnalisée selon vos goûts grâce à un large choix d'options, de matériaux et d'innovations !Contactez Patrice (Numéro supprimé)*Prix indicatif pour un projet de construction d'une maison individuelle. Ne sont pas inclus les frais de branchements, raccordements aux réseaux publics, frais d'adaptations, aménagements intérieurs et extérieurs et options. terrain viabilisé, frais de notaire non compris, frais divers non compris. Garanties et assurances obligatoires incluses. Terrain sélectionné par ALLIANCE auprès de nos partenaires fonciers, selon disponibilité, pour la construction d'une maison neuve. Non mandaté pour réaliser la vente (loi du 2 janvier 1970 n°70-9). Visuels non contractuels. Voir détails en agence.Cette annonce a été créée et diffusée avec le logiciel VITAHOME.
L’actualité immobilière à Le May-sur-Èvre
27/11/2023
02/11/2023
30/10/2023
20/10/2023
16/10/2023
16/10/2023