Maison à construire à Saint-Pierre-Montlimart (49110)
Images
Description
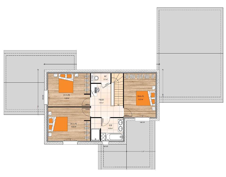
Maison T5 (150 m²) à vendre à Saint-Pierre-Montlimart
Idéalement située - À découvrir à Saint-Pierre-Montlimart (49110) : maison neuve 5 pièces à vendre. 2 niveaux, surface de 150 m² et 471 m² de terrain. Son intérieur est composé de quatre chambres, d'une cuisine et de deux salles de bains.
À dix minutes : établissements scolaires, tennis, commerces, boulangeries, supermarché et bureau de poste. Accès autoroute A11 et nationale N249 à 20 km. Cholet à 29 km,
Le prix de vente de cette maison de 5 pièces est de 367 500 €.
Prenez contact avec notre agence (Mathieu JANNEAU : (Numéro supprimé)) pour toute question sur la maison, sur les modalités de vente ou sur les démarches à suivre.
Logement susceptibles de vous intéresser
Nous vous proposons de découvrir aussi cette sélection de logements situés à moins de 10km de Montrevault-sur-Èvre et qui seraient susceptibles de vous intéresser.
Montrevault-sur-Èvre
TERRAIN ET MAISONVENTE d’une maison T3 (50 m²) à MontrevaultIdéalement située – À Montrevault (49110), maison neuve à vendre de 3 pièces, 50 m² de surface et 526 m² de terrain. Conçue de plain-pied, elle est composée d’une chambre, d’une cuisine et de deux salles de bains.Proche établissements scolaires, tennis, bibliothèque, boulangeries, commerces, supermarché et épiceries. Autoroute A11 et nationale N249 accessibles à 19 km. Cholet à 28 km.Cette maison de 3 pièces est à vendre pour la somme de 152 500 €.Contactez notre agence (Mathieu JANNEAU : (Numéro supprimé)) pour toute information sur la maison de plain-pied ou sur les modalités de vente.
Montrevault-sur-Èvre
TERRAIN ET MAISONVENTE d’une maison de 5 pièces (127 m²) à MontrevaultIdéalement située – À Montrevault (49110), maison neuve à vendre de 5 pièces, 2 niveaux, 127 m² et 526 m² de terrain. Elle dispose de quatre chambres, d’une cuisine et de deux salles de bains.Proche établissements scolaires, tennis, bibliothèque, boulangeries, commerces, supermarché et épiceries. Autoroute A11 et nationale N249 à 19 km. Cholet à 28 km.Le prix de vente de cette maison de 5 pièces est de 292 500 €.N’hésitez pas à prendre contact avec notre agence (Mathieu JANNEAU : (Numéro supprimé)) pour obtenir de plus amples informations sur la maison, sur les modalités de vente ou sur les démarches à suivre.
Montrevault-sur-Èvre
TERRAINTerrain de 526 m² en vente à MontrevaultIdéalement situé – Terrain orienté au sud de 526 m² en vente à Montrevault (49110).À proximité : établissements scolaires, tennis, bibliothèque, boulangeries, commerces, supermarché et épiceries. Accès autoroute A11 et nationale N249 à 19 km. Cholet à 28 km.Son prix de vente est de 35 508 €. Prenez contact avec Mathieu JANNEAU ((Numéro supprimé)) pour toute question sur le terrain. Donnez vie à vos projets immobiliers avec Maisons Bernard Jambert Angers.
Montrevault-sur-Èvre
TERRAIN ET MAISONMontrevault : maison T3 (71 m²) à vendreIdéalement située – À Montrevault (49110), maison neuve à vendre de 3 pièces, 71 m² de surface et 526 m² de terrain. Conçue de plain-pied, elle comporte deux chambres, une cuisine et une salle de bains. Sans vis à vis.Proche établissements scolaires, tennis, bibliothèque, boulangeries, commerces, supermarché et épiceries. Accès autoroute A11 et nationale N249 à 19 km. Cholet à 28 km.Le prix de vente de cette maison de 3 pièces est de 189 500 €.Prenez contact avec Mathieu JANNEAU (tél : (Numéro supprimé)) pour plus d’informations sur la maison ou sur les démarches à suivre. Maisons Bernard Jambert Angers vous accompagne à toutes les étapes de l’achat et dans tous vos projets immobiliers.
Beaupréau-en-Mauges
TERRAIN ET MAISONA MAUGES-SUR-LOIRE sur un terrain de 400 m², Alliance Construction vous propose de réaliser votre projet de construction de maison individuelle d'une surface de 87.91 m² habitables avec 3 chambres, à partir de 206457€*Demandez une étude gratuite et personnalisée de votre projet de construction !* Cette offre comprend :- Garanties constructeurs (dommages ouvrage, garantie de prix ferme et définitif, garantie de livraison, responsabilité civile et décennale).- Branchements aux compteurs et accès empierré sur 5m linéaires.Habitez une maison spécialement pensée et conçue pour vous et votre famille, prête à décorer, adaptée à vos modes de vie, personnalisée selon vos goûts grâce à un large choix d'options, de matériaux et d'innovations !Contactez Patrice (Numéro supprimé)*Prix indicatif pour un projet de construction d'une maison individuelle. Ne sont pas inclus les frais de branchements, raccordements aux réseaux publics, frais d'adaptations, aménagements intérieurs et extérieurs et options. terrain viabilisé, frais de notaire non compris, frais divers non compris. Garanties et assurances obligatoires incluses. Terrain sélectionné par ALLIANCE auprès de nos partenaires fonciers, selon disponibilité, pour la construction d'une maison neuve. Non mandaté pour réaliser la vente (loi du 2 janvier 1970 n°70-9). Visuels non contractuels. Voir détails en agence.Cette annonce a été créée et diffusée avec le logiciel VITAHOME.
Beaupréau-en-Mauges
TERRAIN ET MAISONA BEAUPREAU sur un terrain de 285 m², Alliance Construction vous propose de réaliser votre projet de construction de maison individuelle d'une surface de 92.07 m² habitables avec 3 chambres, à partir de 208175€*Informations du terrain : 20 minutes de CholetDemandez une étude gratuite et personnalisée de votre projet de construction !* Cette offre comprend :- Garanties constructeurs (dommages ouvrage, garantie de prix ferme et définitif, garantie de livraison, responsabilité civile et décennale).- Branchements aux compteurs et accès empierré sur 5m linéaires.Habitez une maison spécialement pensée et conçue pour vous et votre famille, prête à décorer, adaptée à vos modes de vie, personnalisée selon vos goûts grâce à un large choix d'options, de matériaux et d'innovations !Contactez Julien LÉONARDI au (Numéro supprimé) (Alliance Construction – Agence d'Angers).*Prix indicatif pour un projet de construction d'une maison individuelle. Ne sont pas inclus les frais de branchements, raccordements aux réseaux publics, frais d'adaptations, aménagements intérieurs et extérieurs et options. terrain viabilisé, frais de notaire non compris, frais divers non compris. Garanties et assurances obligatoires incluses. Terrain sélectionné par ALLIANCE auprès de nos partenaires fonciers, selon disponibilité, pour la construction d'une maison neuve. Non mandaté pour réaliser la vente (loi du 2 janvier 1970 n°70-9). Visuels non contractuels. Voir détails en agence.Cette annonce a été créée et diffusée avec le logiciel VITAHOME.
Beaupréau-en-Mauges
TERRAIN ET MAISONA GESTE sur un terrain de 437 m², Alliance Construction vous propose de réaliser votre projet de construction de maison individuelle d'une surface de 71.3 m² habitables avec 2 chambres, à partir de 203577€*Demandez une étude gratuite et personnalisée de votre projet de construction !* Cette offre comprend :- Garanties constructeurs (dommages ouvrage, garantie de prix ferme et définitif, garantie de livraison, responsabilité civile et décennale).- Branchements aux compteurs et accès empierré sur 5m linéaires.Habitez une maison spécialement pensée et conçue pour vous et votre famille, prête à décorer, adaptée à vos modes de vie, personnalisée selon vos goûts grâce à un large choix d'options, de matériaux et d'innovations !Contactez Patrice (Numéro supprimé)*Prix indicatif pour un projet de construction d'une maison individuelle. Ne sont pas inclus les frais de branchements, raccordements aux réseaux publics, frais d'adaptations, aménagements intérieurs et extérieurs et options. terrain viabilisé, frais de notaire non compris, frais divers non compris. Garanties et assurances obligatoires incluses. Terrain sélectionné par ALLIANCE auprès de nos partenaires fonciers, selon disponibilité, pour la construction d'une maison neuve. Non mandaté pour réaliser la vente (loi du 2 janvier 1970 n°70-9). Visuels non contractuels. Voir détails en agence.Cette annonce a été créée et diffusée avec le logiciel VITAHOME.
Beaupréau-en-Mauges
TERRAIN ET MAISONA BEAUPREAU sur un terrain de 402 m², Alliance Construction vous propose de réaliser votre projet de construction de maison individuelle d'une surface de 92.96 m² habitables avec 3 chambres, à partir de 239020€*Informations du terrain : 20 Minutes de CholetDemandez une étude gratuite et personnalisée de votre projet de construction !* Cette offre comprend :- Garanties constructeurs (dommages ouvrage, garantie de prix ferme et définitif, garantie de livraison, responsabilité civile et décennale).- Branchements aux compteurs et accès empierré sur 5m linéaires.Habitez une maison spécialement pensée et conçue pour vous et votre famille, prête à décorer, adaptée à vos modes de vie, personnalisée selon vos goûts grâce à un large choix d'options, de matériaux et d'innovations !Contactez Julien LÉONARDI au (Numéro supprimé) (Alliance Construction – Agence d'Angers).*Prix indicatif pour un projet de construction d'une maison individuelle. Ne sont pas inclus les frais de branchements, raccordements aux réseaux publics, frais d'adaptations, aménagements intérieurs et extérieurs et options. terrain viabilisé, frais de notaire non compris, frais divers non compris. Garanties et assurances obligatoires incluses. Terrain sélectionné par ALLIANCE auprès de nos partenaires fonciers, selon disponibilité, pour la construction d'une maison neuve. Non mandaté pour réaliser la vente (loi du 2 janvier 1970 n°70-9). Visuels non contractuels. Voir détails en agence.Cette annonce a été créée et diffusée avec le logiciel VITAHOME.
Beaupréau-en-Mauges
TERRAIN ET MAISONA GESTE sur un terrain de 310 m², Alliance Construction vous propose de réaliser votre projet de construction de maison individuelle ossature bois d'une surface de 80 m² habitables avec 3 chambres, à partir de 212612€*Demandez une étude gratuite et personnalisée de votre projet de construction !* Cette offre comprend :- Garanties constructeurs (dommages ouvrage, garantie de prix ferme et définitif, garantie de livraison, responsabilité civile et décennale).- Branchements aux compteurs et accès empierré sur 5m linéaires.Habitez une maison spécialement pensée et conçue pour vous et votre famille, prête à décorer, adaptée à vos modes de vie, personnalisée selon vos goûts grâce à un large choix d'options, de matériaux et d'innovations !Contactez Julien LÉONARDI au (Numéro supprimé) (Alliance Construction – Agence d'Angers).*Prix indicatif pour un projet de construction d'une maison individuelle. Ne sont pas inclus les frais de branchements, raccordements aux réseaux publics, frais d'adaptations, aménagements intérieurs et extérieurs et options. terrain viabilisé, frais de notaire non compris, frais divers non compris. Garanties et assurances obligatoires incluses. Terrain sélectionné par ALLIANCE auprès de nos partenaires fonciers, selon disponibilité, pour la construction d'une maison neuve. Non mandaté pour réaliser la vente (loi du 2 janvier 1970 n°70-9). Visuels non contractuels. Voir détails en agence.Cette annonce a été créée et diffusée avec le logiciel VITAHOME.
L’actualité immobilière à Montrevault-sur-Èvre
27/11/2023
02/11/2023
30/10/2023
20/10/2023
16/10/2023
16/10/2023