Maison à construire à Bouzillé (49530)
Images
Description
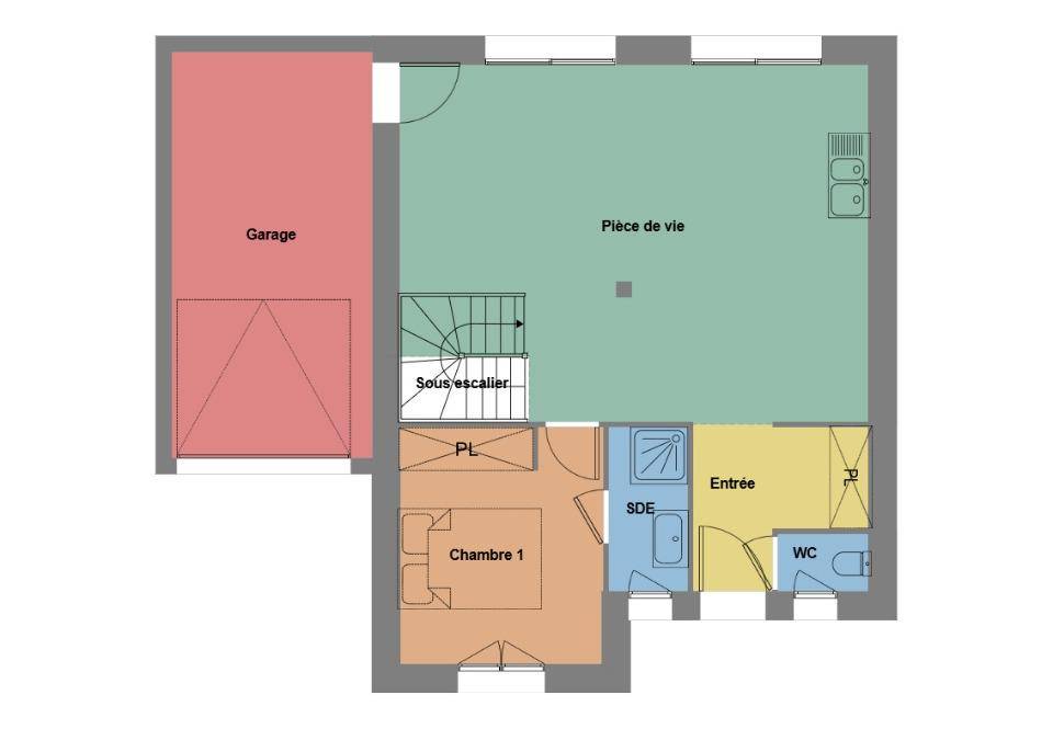
VENTE : maison T5 (90 m²) à Bouzillé
IDÉALEMENT SITUÉE - MAISON 5 PIÈCES NEUVE
À vendre : située collé à Liré, idéalement située dans Bouzillé (49530), nous vous présentons cette maison de 5 pièces de 90 m².
Cette maison possède 2 niveaux. Son intérieur se divise en quatre chambres, une cuisine et deux salles de bains. Cette maison est neuve.
Le terrain du bien est de 489 m².
Cette maison est située dans un secteur prisé. Il y a l'École Primaire Privée Notre-Dame et l'École Primaire Publique François Rabelais à moins de 10 minutes à pied. Niveau transports, on trouve les gares Ancenis et Varades-Saint-Florent le Vieil à moins de 10 minutes en voiture. On trouve un accès à l'autoroute A11 à 10 km. Il y a une bibliothèque, un tennis et un commerce à proximité de la maison.
Elle est à vendre pour la somme de 245 500 €.
Prenez contact avec Badri LADIYE MOUSSA ((Numéro supprimé)) pour plus de renseignements sur la maison.
Logement susceptibles de vous intéresser
Nous vous proposons de découvrir aussi cette sélection de logements situés à moins de 10km de Orée d'Anjou et qui seraient susceptibles de vous intéresser.
Oudon
TERRAIN ET MAISONA OUDON sur un terrain de 459 m², Alliance Construction vous propose de réaliser votre projet de construction de maison individuelle d'une surface de 95.07 m² habitables avec 3 chambres, à partir de 293600€*Informations du terrain : Prêt à habiter une maison sur mesure à 5 minutes d'Ancenis ? Terrain viabilisé et aménagé de 459m2. Découvrez nos offres de construction à Oudon, ses bords de Loire, son château médiéval et sa gare TER. Profitez d'un cadre de vie paisible, à moins de 10 minutes d'Ancenis, de sa gare TER et des accès autoroutes vers Nantes ou Angers et d'une maison conçue selon vos envies. – Terrain constructible : Nous vous aidons à trouver le terrain idéal. – Plans personnalisés : Créez la maison de vos rêves avec l'aide de nos architectes. – Finitions de qualité : Choisissez parmi une large gamme de matériaux et de finitions. – Accompagnement personnalisé : Nous sommes à vos côtés tout au long de votre projet. Contactez-nous dès maintenant pour une étude gratuite et personnalisée de votre projet.Demandez une étude gratuite et personnalisée de votre projet de construction !* Cette offre comprend :- Garanties constructeurs (dommages ouvrage, garantie de prix ferme et définitif, garantie de livraison, responsabilité civile et décennale).- Branchements aux compteurs et accès empierré sur 5m linéaires.Habitez une maison spécialement pensée et conçue pour vous et votre famille, prête à décorer, adaptée à vos modes de vie, personnalisée selon vos goûts grâce à un large choix d'options, de matériaux et d'innovations !Contactez Rodrigue BEAUVINEAU au (Numéro supprimé) (Alliance Construction – Agence d'Ancenis).*Prix indicatif pour un projet de construction d'une maison individuelle. Ne sont pas inclus les frais de branchements, raccordements aux réseaux publics, frais d'adaptations, aménagements intérieurs et extérieurs et options. terrain viabilisé, frais de notaire non compris, frais divers non compris. Garanties et assurances obligatoires incluses. Terrain sélectionné par ALLIANCE auprès de nos partenaires fonciers, selon disponibilité, pour la construction d'une maison neuve. Non mandaté pour réaliser la vente (loi du 2 janvier 1970 n°70-9). Visuels non contractuels. Voir détails en agence.Cette annonce a été créée et diffusée avec le logiciel VITAHOME.
Oudon
TERRAINPrêt à habiter une maison sur mesure à 5 minutes d'Ancenis ? Découvrez nos offres de construction à Oudon et de sa gare TER. Profitez d'un cadre de vie paisible, à moins de 10 minutes d'Ancenis, de sa gare TER et des accès autoroutes vers Nantes ou Angers et d'une maison conçue selon vos envies. – Terrain constructible : Nous vous aidons à trouver le terrain idéal. – Plans personnalisés : Créez la maison de vos rêves avec l'aide de nos architectes. – Finitions de qualité : Choisissez parmi une large gamme de matériaux et de finitions. – Accompagnement personnalisé : Nous sommes à vos côtés tout au long de votre projet. Contactez-nous dès maintenant pour une étude gratuite et personnalisée de votre projet.Prix : 120000 €.Sur ce terrain de 459 m² à OUDON, Alliance Construction vous propose de réaliser votre projet de construction de maison individuelle.Avec Alliance Construction, habitez une maison spécialement pensée et conçue pour vous et votre famille, prête à décorer, adaptée à vos modes de vie, personnalisée selon vos goûts grâce à un large choix d'options, de matériaux et d'innovations ! Demandez une étude gratuite et personnalisée de votre projet de construction sur ce terrain à OUDON !Contactez Rodrigue BEAUVINEAU au (Numéro supprimé) (Alliance Construction – Agence d'Ancenis).Prix hors frais de notaire. Terrain sélectionné par ALLIANCE auprès de nos partenaires fonciers, selon disponibilité, pour la construction d'une maison neuve. Non mandaté pour réaliser la vente (loi du 2 janvier 1970 n°70-9). Visuels non contractuels. Voir détails en agence.Cette annonce a été créée et diffusée avec le logiciel VITAHOME.
Oudon
TERRAINPrêt à habiter une maison sur mesure à 5 minutes d'Ancenis ? Terrain viabilisé et aménagé de 459m2. Découvrez nos offres de construction à Oudon, ses bords de Loire, son château médiéval et sa gare TER. Profitez d'un cadre de vie paisible, à moins de 10 minutes d'Ancenis, de sa gare TER et des accès autoroutes vers Nantes ou Angers et d'une maison conçue selon vos envies. – Terrain constructible : Nous vous aidons à trouver le terrain idéal. – Plans personnalisés : Créez la maison de vos rêves avec l'aide de nos architectes. – Finitions de qualité : Choisissez parmi une large gamme de matériaux et de finitions. – Accompagnement personnalisé : Nous sommes à vos côtés tout au long de votre projet. Contactez-nous dès maintenant pour une étude gratuite et personnalisée de votre projet.Prix : 115000 €.Sur ce terrain de 459 m² à OUDON, Alliance Construction vous propose de réaliser votre projet de construction de maison individuelle.Avec Alliance Construction, habitez une maison spécialement pensée et conçue pour vous et votre famille, prête à décorer, adaptée à vos modes de vie, personnalisée selon vos goûts grâce à un large choix d'options, de matériaux et d'innovations ! Demandez une étude gratuite et personnalisée de votre projet de construction sur ce terrain à OUDON !Contactez Rodrigue BEAUVINEAU au (Numéro supprimé) (Alliance Construction – Agence d'Ancenis).Prix hors frais de notaire. Terrain sélectionné par ALLIANCE auprès de nos partenaires fonciers, selon disponibilité, pour la construction d'une maison neuve. Non mandaté pour réaliser la vente (loi du 2 janvier 1970 n°70-9). Visuels non contractuels. Voir détails en agence.Cette annonce a été créée et diffusée avec le logiciel VITAHOME.
Orée d'Anjou
TERRAIN ET MAISONSitué à Champtoceaux, charmante commune des coteaux de la Loire à seulement 30 km de Nantes, ce terrain de 367 m² offre un cadre de vie paisible et verdoyant. Le village séduit par son environnement naturel exceptionnel, ses vues imprenables sur la vallée de la Loire, et son riche patrimoine historique. Proche des écoles, commerces, associations et des nombreux sentiers de randonnée, Champtoceaux allie douceur de vivre et dynamisme local. Un emplacement idéal pour construire votre maison dans un cadre authentique, entre nature, patrimoine et convivialité. Un style unique, un confort absolu – et si c’était votre maison ? Ici, chaque détail a été pensé pour allier design, espace et bien-être. Une suite parentale avec dressing et salle d’eau, un séjour lumineux, une cuisine qui donne envie de partager… Cette maison est un véritable cocon moderne et fonctionnel. À l’étage, deux belles chambres, une salle de bains et des espaces optimisés pour que chacun profite pleinement de son intimité. Besoin de plus ? Cette maison s’adapte à vos envies : un bureau, un espace détente, une salle de jeux ? C’est vous qui décidez !. Pour un confort optimal et conforme à la RE2025, cette maison dispose d’une PAC avec plancher chauffant, radiateurs à l’étage et volets roulants électriques. À noter : Le prix indiqué exclut les revêtements de sol des chambres, la cuisine aménagée, la peinture, la décoration, les raccordements, les frais de notaire et l’assurance dommages-ouvrage. (Piscine non contractuelle, non comprise dans le prix). Contactez-nous dès aujourd’hui pour concrétiser votre projet et façonner votre futur chez-vous !. . . // Réf. : 542-213553-RRI. Prix terrain : 68 000 €, hors frais d'agence à la charge de l'acquéreur. Ce terrain vous est proposé, par nos partenaires fonciers, dans le cadre d'un projet de construction avec nous. Les informations sur les risques auxquels ce bien est exposé sont disponibles sur le site Géorisques (www.georisques.gouv.fr). Prix maison : 275 003 €.
Orée d'Anjou
TERRAIN ET MAISONSitué à Champtoceaux, charmante commune des coteaux de la Loire à seulement 30 km de Nantes, ce terrain de 367 m² offre un cadre de vie paisible et verdoyant. Le village séduit par son environnement naturel exceptionnel, ses vues imprenables sur la vallée de la Loire, et son riche patrimoine historique. Proche des écoles, commerces, associations et des nombreux sentiers de randonnée, Champtoceaux allie douceur de vivre et dynamisme local. Un emplacement idéal pour construire votre maison dans un cadre authentique, entre nature, patrimoine et convivialité. Un cocon familial où il fait bon vivre – Un cadre moderne et accueillant, prêt à accueillir vos plus beaux projets. Laissez-vous séduire par cette maison moderne et chaleureuse, où chaque espace a été pensé pour s’adapter à votre quotidien. Son séjour lumineux de plus de 44 m² vous offre un cadre convivial et ouvert, idéal pour les moments en famille. Avec quatre chambres spacieuses, dont une au rez-de-chaussée, cette maison allie confort et praticité. Son étage parfaitement agencé assure à chacun son espace privé, tout en conservant une belle harmonie de vie. Un garage attenant, une arrière-cuisine fonctionnelle et des espaces optimisés viennent compléter ce bien conçu pour le bien-être de toute la famille. Pour un confort optimal et conforme à la RE2025, cette maison dispose d’une PAC avec plancher chauffant au rez-de-chaussée, radiateurs à l’étage et volets roulants électriques. À noter : Le prix indiqué exclut les revêtements de sol des chambres, la cuisine aménagée, la peinture, la décoration, les raccordements, les frais de notaire et l’assurance dommages-ouvrage. . // Réf. : 2636-213553-RRI. Prix terrain : 68 000 €, hors frais d'agence à la charge de l'acquéreur. Ce terrain vous est proposé, par nos partenaires fonciers, dans le cadre d'un projet de construction avec nous. Les informations sur les risques auxquels ce bien est exposé sont disponibles sur le site Géorisques (www.georisques.gouv.fr). Prix maison : 243 417 €.
Orée d'Anjou
TERRAIN ET MAISONSitué à Champtoceaux, charmante commune des coteaux de la Loire à seulement 30 km de Nantes, ce terrain de 367 m² offre un cadre de vie paisible et verdoyant. Le village séduit par son environnement naturel exceptionnel, ses vues imprenables sur la vallée de la Loire, et son riche patrimoine historique. Proche des écoles, commerces, associations et des nombreux sentiers de randonnée, Champtoceaux allie douceur de vivre et dynamisme local. Un emplacement idéal pour construire votre maison dans un cadre authentique, entre nature, patrimoine et convivialité. Un agencement intelligent et des espaces lumineux pour cette maison de plus de 110 m² habitables. Son grand séjour ouvert invite à la convivialité, tandis que ses 4 chambres bien réparties, dont une au rez-de-chaussée, assurent confort et intimité pour toute la famille. Un cadre de vie agréable, avec de belles ouvertures sur l’extérieur et des volumes optimisés pour un maximum de praticité. Garage et espaces de rangement intégrés, pensés pour s’adapter à votre quotidien. Une maison qui conjugue modernité, confort et adaptabilité. Pour un confort optimal et conforme à la RE2025, cette maison dispose d’une PAC avec plancher chauffant au rez-de-chaussée, radiateurs à l’étage et volets roulants électriques. À noter : Le prix indiqué exclut les revêtements de sol des chambres, la cuisine aménagée, la peinture, la décoration, les raccordements, les frais de notaire et l’assurance dommages-ouvrage. . // Réf. : 2637-213553-RRI. Prix terrain : 68 000 €, hors frais d'agence à la charge de l'acquéreur. Ce terrain vous est proposé, par nos partenaires fonciers, dans le cadre d'un projet de construction avec nous. Les informations sur les risques auxquels ce bien est exposé sont disponibles sur le site Géorisques (www.georisques.gouv.fr). Prix maison : 239 856 €.
Orée d'Anjou
TERRAINTerrain à vendre – 64015 €Une NOUVEAUTE Orée d’AnjouJe vous propose un terrain de 369 M² ,une partie de 251 M² pour y batir votre maison dans un bel environnement.L’atout supplémentaire une surface de 118M² en face à exploiter selon vos envies. Très bien situé sur la commune de Champtoceaux.Le terrain sera viabilisé et libre de constructeur.L’assainissement est au tout à l’égout.Pour plus d’informations contactez-moi au (Numéro supprimé). Prix -59000- € honoraires exclus.Honoraires de 5015- TTC à la charge de l’acquéreur.Les informations sur les risques auxquels ce bien est exposé sont disponibles sur le site Géorisques : www.georisques.gouv.fr .
Orée d'Anjou
TERRAINSitué à Champtoceaux, charmante commune des coteaux de la Loire à seulement 30 km de Nantes, ce terrain de 367 m² offre un cadre de vie paisible et verdoyant. Le village séduit par son environnement naturel exceptionnel, ses vues imprenables sur la vallée de la Loire, et son riche patrimoine historique. Proche des écoles, commerces, associations et des nombreux sentiers de randonnée, Champtoceaux allie douceur de vivre et dynamisme local. Un emplacement idéal pour construire votre maison dans un cadre authentique, entre nature, patrimoine et convivialité. // Réf. : T213554. Prix terrain : 68 000 €, hors frais d'agence et de notaire à la charge de l'acquéreur. Ce terrain vous est proposé, par nos partenaires fonciers, dans le cadre d'un projet de construction avec nous. Les informations sur les risques auxquels ce bien est exposé sont disponibles sur le site Géorisques (www.georisques.gouv.fr).
Orée d'Anjou
TERRAINSitué à Champtoceaux, charmante commune des coteaux de la Loire à seulement 30 km de Nantes, ce terrain de 367 m² offre un cadre de vie paisible et verdoyant. Le village séduit par son environnement naturel exceptionnel, ses vues imprenables sur la vallée de la Loire, et son riche patrimoine historique. Proche des écoles, commerces, associations et des nombreux sentiers de randonnée, Champtoceaux allie douceur de vivre et dynamisme local. Un emplacement idéal pour construire votre maison dans un cadre authentique, entre nature, patrimoine et convivialité. // Réf. : T213553. Prix terrain : 68 000 €, hors frais d'agence et de notaire à la charge de l'acquéreur. Ce terrain vous est proposé, par nos partenaires fonciers, dans le cadre d'un projet de construction avec nous. Les informations sur les risques auxquels ce bien est exposé sont disponibles sur le site Géorisques (www.georisques.gouv.fr).
L’actualité immobilière à Orée d'Anjou
27/11/2023
02/11/2023
30/10/2023
20/10/2023
16/10/2023
16/10/2023