Maison à construire à Tiercé (49125)
Images
Description
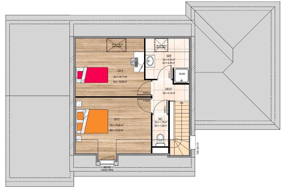
Tiercé : maison F5 (119 m²) à vendre
Proche d'Angers - Maison neuve 5 pièces à vendre à Tiercé (49125) avec 2 niveaux, une surface de 119 m² et de 596 m² de terrain. Elle compte trois chambres, une cuisine et deux salles de bains.
À proximité : gare (Tiercé), écoles, tennis, commerces, boulangeries, supermarché, bureau de poste et boucheries-charcuteries. Autoroutes A11, A85 et A87N accessibles à 13 km.
Cette maison de 5 pièces est proposée à l'achat pour 297 000 €.
Contactez Carole PORCHER ((Numéro supprimé)) pour plus d'informations sur la maison, sur les modalités de vente ou sur les démarches à suivre. Maisons Bernard Jambert Angers est là pour vous accompagner dans tous vos projets immobiliers.
Logement susceptibles de vous intéresser
Nous vous proposons de découvrir aussi cette sélection de logements situés à moins de 10km de Tiercé et qui seraient susceptibles de vous intéresser.
Rives-du-Loir-en-Anjou
TERRAIN ET MAISONVENTE d’une maison de 5 pièces (119 m²) à SoucellesProche d’Angers – À découvrir à Soucelles (49140) : maison neuve 5 pièces en vente. 2 niveaux, surface de 119 m² sur 551 m² de terrain. Son intérieur dispose de quatre chambres, d’une cuisine et de deux salles de bains.À dix minutes : gares (Le Vieux Briollay et Tiercé), écoles, tennis, port de plaisance, supermarchés, boulangerie et bureau de poste. Autoroutes A11, A85 et A87N accessibles à 10 km.Cette maison de 5 pièces est proposée à l’achat pour 341 000 €.Contactez Roman SALAS ((Numéro supprimé)) pour toute question sur la maison, sur les démarches à suivre ou sur les modalités de vente.
Tiercé
TERRAIN ET MAISONMaison de 4 pièces (50 m²) à vendre à TiercéProche d’Angers – À découvrir à Tiercé (49125) : maison neuve 4 pièces à vendre, 50 m² sur 596 m² de terrain. Son intérieur offre deux chambres, une cuisine et une salle de bains.À dix minutes : gare (Tiercé), écoles, tennis, commerces, boulangeries, supermarché, boucheries-charcuteries et épicerie. Autoroutes A11, A85 et A87N accessibles à 13 km.Le prix de vente de cette maison de 4 pièces est de 177 600 €.Prenez contact avec notre agence (Carole PORCHER : (Numéro supprimé)) pour obtenir de plus amples renseignements sur la maison, sur les modalités de vente ou sur les démarches à suivre.
Rives-du-Loir-en-Anjou
TERRAINVENTE d’un terrain de 551 m² à SoucellesProche d’Angers – En vente à Soucelles (49140) : terrain de 551 m².À dix minutes : gares (Le Vieux Briollay et Tiercé), écoles, tennis, port de plaisance, supermarchés, boulangerie et bureau de poste. Autoroutes A11, A85 et A87N accessibles à 10 km.Il est à vendre pour la somme de 90 915 €. Prenez contact avec Roman SALAS ((Numéro supprimé)) pour obtenir de plus amples informations sur le terrain ou sur les démarches à suivre.
Rives-du-Loir-en-Anjou
TERRAIN ET MAISONVENTE d’une maison F6 (141 m²) à SoucellesProche d’Angers – À Soucelles (49140), maison neuve en vente de 6 pièces, 2 niveaux, 141 m² sur 551 m² de terrain. Son intérieur se divise en quatre chambres, une cuisine et deux salles de bains.Proche gares (Le Vieux Briollay et Tiercé), écoles, tennis, port de plaisance, supermarchés, boulangerie et bureau de poste. Accès autoroutes A11, A85 et A87N à 10 km.Cette maison de 6 pièces est proposée à l’achat pour 375 800 €.Contactez Roman SALAS ((Numéro supprimé)) pour obtenir de plus amples informations sur la maison, sur les démarches à suivre ou sur les modalités de vente. Maisons Bernard Jambert Angers vous accompagne à toutes les étapes de l’achat et dans tous vos projets immobiliers.
Rives-du-Loir-en-Anjou
TERRAIN ET MAISONSoucelles : maison de 4 pièces (75 m²) en venteProche d’Angers – À découvrir à Soucelles (49140) : maison neuve 4 pièces en vente, 75 m² et 551 m² de terrain. Son intérieur comporte deux chambres, une cuisine et une salle de bains.À dix minutes : gares (Le Vieux Briollay et Tiercé), écoles, tennis, port de plaisance, supermarchés, boulangerie et bureau de poste. Accès autoroutes A11, A85 et A87N à 10 km.Cette maison de 4 pièces est à vendre pour la somme de 268 900 €.Prenez contact avec Roman SALAS (tél : (Numéro supprimé)) pour tout renseignement sur la maison ou sur les démarches à suivre. Maisons Bernard Jambert Angers est là pour vous accompagner à toutes les étapes de l’achat.
Tiercé
TERRAINVENTE d’un terrain de 596 m² à TiercéProche d’Angers – Réalisez votre projet sur ce terrain de 596 m² en vente à Tiercé (49125).À proximité : gare (Tiercé), écoles, tennis, commerces, boulangeries, supermarché, boucheries-charcuteries et épicerie. Autoroutes A11, A85 et A87N accessibles à 13 km.Son prix de vente est de 57 000 €. Contactez notre agence (PORCHER Carole : (Numéro supprimé)) pour obtenir de plus amples renseignements sur le terrain, sur les démarches à suivre ou sur les modalités de vente. Concrétisez vos projets immobiliers avec Maisons Bernard Jambert Angers.
Rives-du-Loir-en-Anjou
TERRAIN ET MAISONMaison T4 (85 m²) à vendre à SoucellesProche d’Angers – À découvrir à Soucelles (49140) : maison neuve 4 pièces à vendre, 85 m² et 551 m² de terrain. Elle propose trois chambres, une cuisine et une salle de bains.À proximité : gares (Le Vieux Briollay et Tiercé), écoles, tennis, port de plaisance, supermarchés, boulangerie et bureau de poste. Accès autoroutes A11, A85 et A87N à 10 km.Cette maison de 4 pièces est à vendre pour la somme de 281 200 €.N’hésitez pas à prendre contact avec Roman SALAS (tél : (Numéro supprimé)) pour tout renseignement sur la maison ou sur les modalités de vente. Maisons Bernard Jambert Angers vous accompagne dans tous vos projets immobiliers et dans toutes vos démarches.
Tiercé
TERRAIN ET MAISONTiercé : maison F5 (119 m²) à vendreProche d’Angers – Maison neuve 5 pièces à vendre à Tiercé (49125) avec 2 niveaux, une surface de 119 m² et de 596 m² de terrain. Elle compte trois chambres, une cuisine et deux salles de bains.À proximité : gare (Tiercé), écoles, tennis, commerces, boulangeries, supermarché, bureau de poste et boucheries-charcuteries. Autoroutes A11, A85 et A87N accessibles à 13 km.Cette maison de 5 pièces est proposée à l’achat pour 297 000 €.Contactez Carole PORCHER ((Numéro supprimé)) pour plus d’informations sur la maison, sur les modalités de vente ou sur les démarches à suivre. Maisons Bernard Jambert Angers est là pour vous accompagner dans tous vos projets immobiliers.
Tiercé
TERRAIN ET MAISONVENTE d’une maison de 5 pièces (90 m²) à TiercéProche d’Angers – Maison neuve 5 pièces à vendre à Tiercé (49125) avec 2 niveaux, une surface de 90 m² et de 596 m² de terrain. Son intérieur offre trois chambres, une cuisine et une salle de bains.À dix minutes : gare (Tiercé), écoles, tennis, commerces, boulangeries, supermarché, épicerie et bureau de poste. Accès autoroutes A11, A85 et A87N à 13 km.Cette maison de 5 pièces est à vendre pour la somme de 237 800 €.N’hésitez pas à prendre contact avec Carole PORCHER (tél : (Numéro supprimé)) pour plus de renseignements sur la maison. Donnez vie à vos projets immobiliers avec Maisons Bernard Jambert Angers.
L’actualité immobilière à Tiercé
27/11/2023
02/11/2023
30/10/2023
20/10/2023
16/10/2023
16/10/2023