Maison à construire à Berméricourt (51220)
Images
Description
À acheter à Berméricourt, maison neuve de 150 m² habitables bénéficiant de 5 chambres.
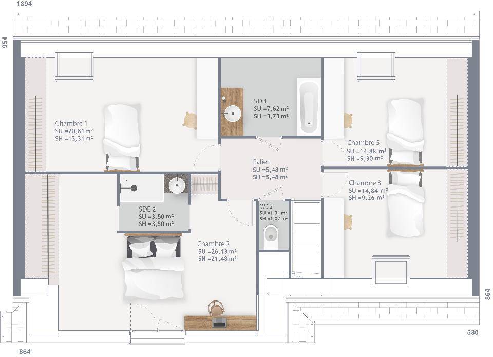
Le modèle de maison qui vous est présenté est Lumina 150 R+1 GI. Conception contemporaine pour ce projet de maison qui comprend 5 chambres avec espace pour les placards dont deux suites parentales avec dressing et salle d'eau privative (une au rez-de-chaussée), deux wc, une salle de bains, une grande pièce de vie ouverte sur la cuisine, un cellier et un garage.
La construction traditionnelle aux normes RE2020 de la maison est réalisée en brique et l'ensemble des matériaux utilisés sont de qualité afin de vous assurer un investissement durable.
Terrain constructible de 530m2 à Berméricourt idéalement situé au calme et proche de toutes les commodités (environnement vraiment de qualité), disposant d'une belle façade et entièrement viabilisé.
Berméricourt est une commune recherchée pour son axe direct, ses commodités aux alentours et sa proximité avec Reims, Hermonville, Cormicy, Villers Franqueux, Pouillon, Thil, Chenay, Merfy, Saint Thierry, Merfy, Courcy, Brimont et Loivre.
Pour plus de renseignements vous pouvez me contacter , Nicolas GUILLAUME de l'agence Maisons France Confort de Cormontreuil au (Numéro supprimé)
Logement susceptibles de vous intéresser
Nous vous proposons de découvrir aussi cette sélection de logements situés à moins de 10km de Berméricourt et qui seraient susceptibles de vous intéresser.

Berméricourt
TERRAINTerrain constructible de 530m2 à Berméricourt idéalement situé au calme et proche de toutes les commodités (environnement vraiment de qualité), disposant d’une belle façade et entièrement viabilisé.Berméricourt est une commune recherchée pour son axe direct, ses commodités aux alentours et sa proximité avec Reims, Hermonville, Cormicy, Villers Franqueux, Pouillon, Thil, Chenay, Merfy, Saint Thierry, Merfy, Courcy, Brimont et Loivre.Pour plus de renseignements vous pouvez me contacter , Nicolas GUILLAUME de l’agence Maisons France Confort de Cormontreuil au (Numéro supprimé)

Berméricourt
TERRAIN ET MAISONEn vente à Berméricourt maison neuve de plain-pied de 85m2 avec 3 chambres. Le modèle présenté est Open Nord PP GI 85 design, il est équipé d’une pièce de vie de 43m² ouverte sur la cuisine, d’une salle de bain avec douche ou baignoire, un wc séparé, 3 chambres avec placards, un cellier et un garage. Il est possible de personnaliser ces plans afin qu’ils répondent parfaitement à vos attentes, en ajoutant par exemple une suite parentale avec dressing, ou encore en aménageant le garage en pièce supplémentaire.La construction traditionnelle aux normes RE2020 de la maison est réalisée en brique et l’ensemble des matériaux utilisés sont de qualité afin de vous assurer un investissement durable.Terrain constructible de 530m2 à Berméricourt idéalement situé au calme et proche de toutes les commodités (environnement vraiment de qualité), disposant d’une belle façade et entièrement viabilisé.Berméricourt est une commune recherchée pour son axe direct, ses commodités aux alentours et sa proximité avec Reims, Hermonville, Cormicy, Villers Franqueux, Pouillon, Thil, Chenay, Merfy, Saint Thierry, Merfy, Courcy, Brimont et Loivre.Pour plus de renseignements vous pouvez me contacter , Nicolas GUILLAUME de l’agence Maisons France Confort de Cormontreuil au (Numéro supprimé)

Berméricourt
TERRAIN ET MAISONMaison de 155m² avec 5 chambres à Berméricourt.Le modèle de maison présenté sur le terrain est Actua 155 R+1 GA. Cette maison neuve totalisant 155m2 est composée d’une belle entrée, une pièce de vie ouverte sur la cuisine, 5 chambres avec espace pour les placards (dont une grande suite parentale au rez-de-chaussée avec dressing et salle d’eau privative), une salle de bains, un grand palier ouvert, deux wc, un cellier et un garage.La construction traditionnelle aux normes RE2020 de la maison est réalisée en brique et l’ensemble des matériaux utilisés sont de qualité afin de vous assurer un investissement durable.Terrain constructible de 530m2 à Berméricourt idéalement situé au calme et proche de toutes les commodités (environnement vraiment de qualité), disposant d’une belle façade et entièrement viabilisé.Berméricourt est une commune recherchée pour son axe direct, ses commodités aux alentours et sa proximité avec Reims, Hermonville, Cormicy, Villers Franqueux, Pouillon, Thil, Chenay, Merfy, Saint Thierry, Merfy, Courcy, Brimont et Loivre.Pour plus de renseignements vous pouvez me contacter , Nicolas GUILLAUME de l’agence Maisons France Confort de Cormontreuil au (Numéro supprimé)

Berméricourt
TERRAIN ET MAISONMaison neuve de 90m2 avec 3 chambres à vendre à Berméricourt, construction avec des matériaux de qualité (ossature en brique) répondant aux dernières normes RE2020.Le modèle présenté est Eco Concept 90 R+1 GI. Des lignes très design pour cette maison qui se compose de 3 chambres avec placards, un espace de vie ouvert sur la cuisine, une salle de bain, deux WC (dont un au rez-de-chaussée), un cellier et un garage.La construction traditionnelle aux normes RE2020 de la maison est réalisée en brique et l’ensemble des matériaux utilisés sont de qualité afin de vous assurer un investissement durable.Terrain constructible de 530m2 à Berméricourt idéalement situé au calme et proche de toutes les commodités (environnement vraiment de qualité), disposant d’une belle façade et entièrement viabilisé.Berméricourt est une commune recherchée pour son axe direct, ses commodités aux alentours et sa proximité avec Reims, Hermonville, Cormicy, Villers Franqueux, Pouillon, Thil, Chenay, Merfy, Saint Thierry, Merfy, Courcy, Brimont et Loivre.Pour plus de renseignements vous pouvez me contacter , Nicolas GUILLAUME de l’agence Maisons France Confort de Cormontreuil au (Numéro supprimé)

Berméricourt
TERRAIN ET MAISONEn vente à Berméricourt maison neuve de plain-pied de 100m2 avec 4 chambres. Le modèle présenté est Open Nord PP GI 100 design, il est équipé d’une pièce de vie de 43m² ouverte sur la cuisine, d’une salle de bain avec douche et baignoire, un wc séparé, 4 chambres avec placards, un cellier et un garage. Il est possible de personnaliser ces plans afin qu’ils répondent parfaitement à vos attentes, en ajoutant par exemple une suite parentale avec dressing, ou encore en aménageant le garage en pièce supplémentaire.La construction traditionnelle aux normes RE2020 de la maison est réalisée en brique et l’ensemble des matériaux utilisés sont de qualité afin de vous assurer un investissement durable.Terrain constructible de 530m2 à Berméricourt idéalement situé au calme et proche de toutes les commodités (environnement vraiment de qualité), disposant d’une belle façade et entièrement viabilisé.Berméricourt est une commune recherchée pour son axe direct, ses commodités aux alentours et sa proximité avec Reims, Hermonville, Cormicy, Villers Franqueux, Pouillon, Thil, Chenay, Merfy, Saint Thierry, Merfy, Courcy, Brimont et Loivre.Pour plus de renseignements vous pouvez me contacter , Nicolas GUILLAUME de l’agence Maisons France Confort de Cormontreuil au (Numéro supprimé)

Berméricourt
TERRAIN ET MAISONMaison neuve de 107m2 avec 4 chambres à vendre à Berméricourt, construction avec des matériaux de qualité (ossature en brique) répondant aux dernières normes RE2020.Le modèle présenté est Eco Concept 115 R+1 GI. Des lignes très design pour cette maison qui se compose de 4 chambres avec placards (dont une suite parentale au rez-de-chaussée avec dressing et salle d’eau privative), un espace de vie ouvert sur la cuisine, une salle de bain, deux WC (dont un au rez-de-chaussée), un cellier et un garage.La construction traditionnelle aux normes RE2020 de la maison est réalisée en brique et l’ensemble des matériaux utilisés sont de qualité afin de vous assurer un investissement durable.Terrain constructible de 530m2 à Berméricourt idéalement situé au calme et proche de toutes les commodités (environnement vraiment de qualité), disposant d’une belle façade et entièrement viabilisé.Berméricourt est une commune recherchée pour son axe direct, ses commodités aux alentours et sa proximité avec Reims, Hermonville, Cormicy, Villers Franqueux, Pouillon, Thil, Chenay, Merfy, Saint Thierry, Merfy, Courcy, Brimont et Loivre.Pour plus de renseignements vous pouvez me contacter , Nicolas GUILLAUME de l’agence Maisons France Confort de Cormontreuil au (Numéro supprimé)

Berméricourt
TERRAIN ET MAISONMaison neuve de 160m² à Berméricourt. Le modèle présenté est Concept 160. Maison à l’architecture très moderne et design composée d’une grande pièce de vie ouverte sur la cuisine, un cellier, 5 chambres (dont deux suites parentales), une salle d’eau et un garage. La construction traditionnelle aux normes RE2020 de la maison est réalisée en brique et l’ensemble des matériaux utilisés sont de qualité afin de vous assurer un investissement durable.Terrain constructible de 530m2 à Berméricourt idéalement situé au calme et proche de toutes les commodités (environnement vraiment de qualité), disposant d’une belle façade et entièrement viabilisé.Berméricourt est une commune recherchée pour son axe direct, ses commodités aux alentours et sa proximité avec Reims, Hermonville, Cormicy, Villers Franqueux, Pouillon, Thil, Chenay, Merfy, Saint Thierry, Merfy, Courcy, Brimont et Loivre.Pour plus de renseignements vous pouvez me contacter , Nicolas GUILLAUME de l’agence Maisons France Confort de Cormontreuil au (Numéro supprimé)

Berméricourt
TERRAIN ET MAISONÀ Berméricourt, grande maison neuve.La maison présentée sur ce terrain est Ultima 120. Architecture contemporaine pour cette maison à toit à 4 pans. Dans 120m2, l’intérieur est constitué d’une pièce de vie ouverte sur la cuisine, 4 chambres avec placards (dont une suite parentale avec salle d’eau privative et dressing) une salle de bains, un cellier et un garage. La construction traditionnelle aux normes RE2020 de la maison est réalisée en brique et l’ensemble des matériaux utilisés sont de qualité afin de vous assurer un investissement durable.Terrain constructible de 530m2 à Berméricourt idéalement situé au calme et proche de toutes les commodités (environnement vraiment de qualité), disposant d’une belle façade et entièrement viabilisé.Berméricourt est une commune recherchée pour son axe direct, ses commodités aux alentours et sa proximité avec Reims, Hermonville, Cormicy, Villers Franqueux, Pouillon, Thil, Chenay, Merfy, Saint Thierry, Merfy, Courcy, Brimont et Loivre.Pour plus de renseignements vous pouvez me contacter , Nicolas GUILLAUME de l’agence Maisons France Confort de Cormontreuil au (Numéro supprimé)

Berméricourt
TERRAIN ET MAISONÀ Berméricourt, grande maison neuve.La maison présentée sur ce terrain est Ultima 160. Architecture contemporaine pour cette maison à toit à 4 pans. Dans 160m2, l’intérieur est constitué d’une pièce de vie ouverte sur la cuisine, 5 chambres avec placards (dont une suite parentale au rez-de-chaussée avec salle d’eau privative et dressing) une salle de bains, un cellier et un garage. La construction traditionnelle aux normes RE2020 de la maison est réalisée en brique et l’ensemble des matériaux utilisés sont de qualité afin de vous assurer un investissement durable.Terrain constructible de 530m2 à Berméricourt idéalement situé au calme et proche de toutes les commodités (environnement vraiment de qualité), disposant d’une belle façade et entièrement viabilisé.Berméricourt est une commune recherchée pour son axe direct, ses commodités aux alentours et sa proximité avec Reims, Hermonville, Cormicy, Villers Franqueux, Pouillon, Thil, Chenay, Merfy, Saint Thierry, Merfy, Courcy, Brimont et Loivre.Pour plus de renseignements vous pouvez me contacter , Nicolas GUILLAUME de l’agence Maisons France Confort de Cormontreuil au (Numéro supprimé)
L’actualité immobilière à Berméricourt





