Maison à construire à Berru (51420)
Images
Description
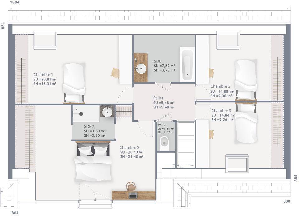
À acheter à Berru, maison neuve de 150 m² habitables bénéficiant de 5 chambres.
Le modèle de maison qui vous est présenté est Lumina 150 R+1 GI. Conception contemporaine pour ce projet de maison qui comprend 5 chambres avec espace pour les placards dont deux suites parentales avec dressing et salle d'eau privative (une au rez-de-chaussée), deux wc, une salle de bains, une grande pièce de vie ouverte sur la cuisine, un cellier et un garage.
La construction traditionnelle aux normes RE2020 de la maison est réalisée en brique et l'ensemble des matériaux utilisés sont de qualité afin de vous assurer un investissement durable.
Terrain constructible entièrement viabilisé de 471m² à Berru idéalement situé.
Berru est une commune très recherchée pour son axe direct et sa proximité avec Reims, Witry Lès Reims, Lavannes, Caurel, Pomacle, Bourgogne, Cernay, Fresnes Lès Reims, Nogent l'Abbesse et Bétheny.
Pour plus de renseignements vous pouvez me contacter , Nicolas GUILLAUME de l'agence Maisons France Confort de Cormontreuil au (Numéro supprimé)
Logement susceptibles de vous intéresser
Nous vous proposons de découvrir aussi cette sélection de logements situés à moins de 10km de Berru et qui seraient susceptibles de vous intéresser.

Caurel
TERRAINTerrain constructible de 541m² à Caurel idéalement situé et entièrement viabilisé.Caurel est une commune très recherchée pour son axe direct et sa proximité avec Reims, Witry Lès Reims, Lavannes, Berru, Pomacle, Bourgogne, Cernay, Fresnes Lès Reims, Nogent l’Abbesse et Bétheny.Pour plus de renseignements vous pouvez me contacter , Nicolas GUILLAUME de l’agence Maisons France Confort de Cormontreuil au (Numéro supprimé)

Caurel
TERRAIN ET MAISONEn vente à Caurel maison neuve de plain-pied de 85m2 avec 3 chambres. Le modèle présenté est Open Nord PP GI 85 design, il est équipé d’une pièce de vie de 43m² ouverte sur la cuisine, d’une salle de bain avec douche ou baignoire, un wc séparé, 3 chambres avec placards, un cellier et un garage. Il est possible de personnaliser ces plans afin qu’ils répondent parfaitement à vos attentes, en ajoutant par exemple une suite parentale avec dressing, ou encore en aménageant le garage en pièce supplémentaire.La construction traditionnelle aux normes RE2020 de la maison est réalisée en brique et l’ensemble des matériaux utilisés sont de qualité afin de vous assurer un investissement durable.Terrain constructible de 541m² à Caurel idéalement situé et entièrement viabilisé.Caurel est une commune très recherchée pour son axe direct et sa proximité avec Reims, Witry Lès Reims, Lavannes, Berru, Pomacle, Bourgogne, Cernay, Fresnes Lès Reims, Nogent l’Abbesse et Bétheny.Pour plus de renseignements vous pouvez me contacter , Nicolas GUILLAUME de l’agence Maisons France Confort de Cormontreuil au (Numéro supprimé)

Caurel
TERRAIN ET MAISONMaison neuve avec 4 chambres et 98m² habitables à vendre à Caurel.Le modèle présenté est Open Nord R+1 GA 98 trendy. Cette maison neuve individuelle est composée d’un espace de vie avec cuisine ouverte, une salle de bain avec douche et baignoire, deux wc dont un au rez-de-chaussée, 4 chambres avec placards (dont une au rez-de-chaussée, ainsi qu’une équipée d’un dressing à l’étage), un cellier et un garage. Il est possible de personnaliser ces plans afin qu’ils répondent parfaitement à vos attentes.La construction traditionnelle aux normes RE2020 de la maison est réalisée en brique et l’ensemble des matériaux utilisés sont de qualité afin de vous assurer un investissement durable.Terrain constructible de 541m² à Caurel idéalement situé et entièrement viabilisé.Caurel est une commune très recherchée pour son axe direct et sa proximité avec Reims, Witry Lès Reims, Lavannes, Berru, Pomacle, Bourgogne, Cernay, Fresnes Lès Reims, Nogent l’Abbesse et Bétheny.Pour plus de renseignements vous pouvez me contacter , Nicolas GUILLAUME de l’agence Maisons France Confort de Cormontreuil au (Numéro supprimé)

Caurel
TERRAIN ET MAISONMaison de 120m² de plain-pied à acheter à Caurel.Le modèle de maison qui vous est présenté est Family 120 GA, elle est composée d’une pièce de vie ouverte sur la cuisine, une salle de bains (avec douche et baignoire), deux wc, un espace nuit comprenant 4 chambres avec placards (dont une chambre twin et une suite parentale avec dressing et salle d’eau privative), un cellier et un garage. Il est possible de personnaliser ces plans afin qu’ils répondent parfaitement à vos attentes.La construction traditionnelle aux normes RE2020 de la maison est réalisée en brique et l’ensemble des matériaux utilisés sont de qualité afin de vous assurer un investissement durable.Terrain constructible de 541m² à Caurel idéalement situé et entièrement viabilisé.Caurel est une commune très recherchée pour son axe direct et sa proximité avec Reims, Witry Lès Reims, Lavannes, Berru, Pomacle, Bourgogne, Cernay, Fresnes Lès Reims, Nogent l’Abbesse et Bétheny.Pour plus de renseignements vous pouvez me contacter , Nicolas GUILLAUME de l’agence Maisons France Confort de Cormontreuil au (Numéro supprimé)

Caurel
TERRAIN ET MAISONMaison de 111m² de plain-pied en L à acheter à Caurel.Le modèle de maison qui vous est présenté est Lumina 106 GA, elle est composée d’une pièce de vie ouverte sur la cuisine, une salle de bains (avec douche et baignoire), deux wc, un espace nuit comprenant 4 chambres avec placards (dont une suite parentale avec dressing et salle d’eau privative), un cellier et un garage. Il est possible de personnaliser ces plans afin qu’ils répondent parfaitement à vos attentes.La construction traditionnelle aux normes RE2020 de la maison est réalisée en brique et l’ensemble des matériaux utilisés sont de qualité afin de vous assurer un investissement durable.Terrain constructible de 541m² à Caurel idéalement situé et entièrement viabilisé.Caurel est une commune très recherchée pour son axe direct et sa proximité avec Reims, Witry Lès Reims, Lavannes, Berru, Pomacle, Bourgogne, Cernay, Fresnes Lès Reims, Nogent l’Abbesse et Bétheny.Pour plus de renseignements vous pouvez me contacter , Nicolas GUILLAUME de l’agence Maisons France Confort de Cormontreuil au (Numéro supprimé)

Caurel
TERRAIN ET MAISONÀ Caurel, maison neuve de 115m² avec 4 chambres à acheter.Le modèle de maison qui vous est présenté est Horizon 115 GA. L’intérieur est constitué d’un espace de vie ouvert sur la cuisine, une salle de bains, deux wc, 4 chambres (dont une suite parentale avec dressing et salle d’eau privative au rez-de-chaussée), et un cellier. La maison dispose également d’un garage accolé communiquant par la maison via le cellier. La construction traditionnelle aux normes RE2020 de la maison est réalisée en brique et l’ensemble des matériaux utilisés sont de qualité afin de vous assurer un investissement durable.Terrain constructible de 541m² à Caurel idéalement situé et entièrement viabilisé.Caurel est une commune très recherchée pour son axe direct et sa proximité avec Reims, Witry Lès Reims, Lavannes, Berru, Pomacle, Bourgogne, Cernay, Fresnes Lès Reims, Nogent l’Abbesse et Bétheny.Pour plus de renseignements vous pouvez me contacter , Nicolas GUILLAUME de l’agence Maisons France Confort de Cormontreuil au (Numéro supprimé)

Caurel
TERRAIN ET MAISONÀ acheter à Caurel, maison neuve de 150 m² habitables bénéficiant de 5 chambres.Le modèle de maison qui vous est présenté est Lumina 150 R+1 GI. Conception contemporaine pour ce projet de maison qui comprend 5 chambres avec espace pour les placards dont deux suites parentales avec dressing et salle d’eau privative (une au rez-de-chaussée), deux wc, une salle de bains, une grande pièce de vie ouverte sur la cuisine, un cellier et un garage.La construction traditionnelle aux normes RE2020 de la maison est réalisée en brique et l’ensemble des matériaux utilisés sont de qualité afin de vous assurer un investissement durable.Terrain constructible de 541m² à Caurel idéalement situé et entièrement viabilisé.Caurel est une commune très recherchée pour son axe direct et sa proximité avec Reims, Witry Lès Reims, Lavannes, Berru, Pomacle, Bourgogne, Cernay, Fresnes Lès Reims, Nogent l’Abbesse et Bétheny.Pour plus de renseignements vous pouvez me contacter , Nicolas GUILLAUME de l’agence Maisons France Confort de Cormontreuil au (Numéro supprimé)

Caurel
TERRAIN ET MAISONMaison neuve à Caurel de 120m² avec 5 chambres.Le modèle présenté est Actua 120 R+1 GA. Dans 120m2, l’intérieur est constitué d’un espace de vie ouvert sur la cuisine, une salle de bains, deux wc, 5 chambres (dont une suite parentale avec dressing et salle d’eau privative), et un cellier. La maison dispose également d’un garage accolé communiquant par la maison via le cellier. La construction traditionnelle aux normes RE2020 de la maison est réalisée en brique et l’ensemble des matériaux utilisés sont de qualité afin de vous assurer un investissement durable.Terrain constructible de 541m² à Caurel idéalement situé et entièrement viabilisé.Caurel est une commune très recherchée pour son axe direct et sa proximité avec Reims, Witry Lès Reims, Lavannes, Berru, Pomacle, Bourgogne, Cernay, Fresnes Lès Reims, Nogent l’Abbesse et Bétheny.Pour plus de renseignements vous pouvez me contacter , Nicolas GUILLAUME de l’agence Maisons France Confort de Cormontreuil au (Numéro supprimé)

Caurel
TERRAIN ET MAISONMaison de 155m² avec 5 chambres à Caurel.Le modèle de maison présenté sur le terrain est Actua 155 R+1 GA. Cette maison neuve totalisant 155m2 est composée d’une belle entrée, une pièce de vie ouverte sur la cuisine, 5 chambres avec espace pour les placards (dont une grande suite parentale au rez-de-chaussée avec dressing et salle d’eau privative), une salle de bains, un grand palier ouvert, deux wc, un cellier et un garage.La construction traditionnelle aux normes RE2020 de la maison est réalisée en brique et l’ensemble des matériaux utilisés sont de qualité afin de vous assurer un investissement durable.Terrain constructible de 541m² à Caurel idéalement situé et entièrement viabilisé.Caurel est une commune très recherchée pour son axe direct et sa proximité avec Reims, Witry Lès Reims, Lavannes, Berru, Pomacle, Bourgogne, Cernay, Fresnes Lès Reims, Nogent l’Abbesse et Bétheny.Pour plus de renseignements vous pouvez me contacter , Nicolas GUILLAUME de l’agence Maisons France Confort de Cormontreuil au (Numéro supprimé)
L’actualité immobilière à Berru





