Images
Description
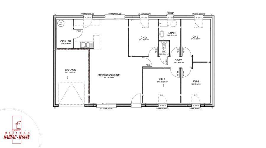
Sur ce terrain, nous vous proposons cette maison neuve, le modèle Ménilière, une maison plain-pied moderne qui intègre de base un garage et une longue galerie sur la face avant. Avec une surface de 100 m², cette maison dispose de 4 chambres et de 4 pièces, offrant ainsi un espace de vie confortable et fonctionnel pour toute la famille.
Véritable ""tout-en-un"" de la maison individuelle, ce modèle est idéal pour votre projet de construction sur-mesure. La Ménilière est disponible avec un toit à 2 pans ou 4 pans, selon vos préférences esthétiques. Le garage intégré et la galerie avant ajoutent une touche pratique et élégante à cette maison.
Les options les plus demandées par nos clients, telles que les menuiseries en aluminium et le sous-sol, sont également disponibles pour personnaliser davantage votre future maison. De plus, cette maison neuve est basse consommation et conforme à la réglementation environnementale RE2020, garantissant ainsi des performances énergétiques optimales et un impact environnemental réduit.
Le constructeur Babeau-Seguin, reconnu pour offrir le meilleur rapport qualité/prix du marché, vous accompagne dans la réalisation de votre projet immobilier. Avec un prix serré et une personnalisation facile, il n'est pas étonnant que la Ménilière soit dans le top 5 des ventes de Babeau-Seguin.
Ne manquez pas cette opportunité unique de devenir propriétaire d'une maison moderne, économe en énergie et parfaitement adaptée à vos besoins. Contactez-nous dès maintenant pour plus d'informations et pour planifier une visite de ce modèle exceptionnel.
Logement susceptibles de vous intéresser
Nous vous proposons de découvrir aussi cette sélection de logements situés à moins de 10km de Bussy-Lettrée et qui seraient susceptibles de vous intéresser.

Sommesous
TERRAINNous vous présentons un terrain exceptionnel d’une superficie de 641 m², idéalement situé à 10 minutes du charmant village de Sommesous, dans le département de la Marne. Ce terrain, déjà viabilisé, offre des caractéristiques uniques, telles qu’un cadre champêtre arboré, un environnement calme et ensoleillé, ainsi qu’un terrain plat propice à la construction de votre maison de rêve. Le prix attractif et la possibilité de division parcellaire, renforcés par un Plan Local d’Urbanisme (PLU) non contraignant, font de ce bien une opportunité rare sur le marché immobilier actuel. Le village de Sommesous est une destination paisible qui séduira les amateurs de nature et de tranquillité. Situé à proximité de diverses commodités, telles que des écoles, des commerces et des infrastructures de loisirs, ce charmant lieu de vie est idéal pour les familles en quête d’un cadre de vie agréable. La Marne est riche en attractions, allant des paysages viticoles pittoresques aux activités culturelles dynamiques. Que ce soit pour un déjeuner en famille dans un restaurant local ou des balades à travers la campagne environnante, chaque jour apportera son lot de découvertes. C’est un lieu où l’harmonie entre la vie citadine et la tranquillité rurale coexiste parfaitement. Ne manquez pas cette opportunité unique d’acquérir un terrain de qualité dans un cadre enchanteur. Envisagez dès maintenant de réaliser votre projet de construction dans ce secteur prometteur et attractif. Contactez-nous pour davantage d’informations et préparez-vous à donner vie à votre rêve !

Sommesous
TERRAIN ET MAISONSur ce terrain, nous vous proposons cette maison neuve, la Ménilière Sud, conçue par Babeau-Seguin, constructeur offrant le meilleur rapport qualité/prix du marché. Cette superbe maison traditionnelle du sud, avec ses galeries et ses tuiles canal, dispose d’une surface de 100 m² et comprend 3 chambres et 4 pièces.La Ménilière Sud est une maison basse consommation, conforme à la RE2020, garantissant des économies d’énergie et un confort optimal tout au long de l’année. Elle est équipée d’un garage intégré, et vous avez le choix entre un toit à 2 pans ou à 4 pans, selon vos préférences.Offrant beaucoup de cachet, la Ménilière Sud est facilement personnalisable pour répondre à vos besoins et à vos goûts. Son porche avant pratique vous évitera la panique de chercher vos clés les jours de pluie. Ce modèle est particulièrement apprécié pour son excellent rapport qualité/prix, ce qui en fait l’un des modèles sur-mesure les plus vendus.Ne manquez pas cette opportunité unique d’acquérir une maison neuve, économe en énergie et parfaitement adaptée à vos envies. Contactez-nous dès maintenant pour plus d’informations et pour découvrir toutes les possibilités de personnalisation de la Ménilière Sud.

Sommesous
TERRAINDécouvrez ce magnifique terrain viabilisé de 696 m² situé dans la commune prisée de Sommesous, dans le département de la Marne. Ce bien exceptionnel se trouve dans un environnement calme et arboré, idéal pour concrétiser votre projet de construction de maison. La parcelle est parfaitement plane, offrant une belle qualité de vie ainsi qu’un cadre champêtre, à deux pas du cœur de ville. N’attendez plus pour réaliser vos rêves de construction dans un quartier recherché, bénéficiant de toutes les commodités. Sommesous est une ville dynamique, bénéficiant d’un emplacement stratégique au sein de la région Grand Est. Elle est proche de toutes les commodités nécessaires au quotidien, avec des commerces, écoles, et transports en commun facilement accessibles. Profitez de l’attrait de cette charmante commune qui allie sécurité, tranquillité et ensoleillement. Les habitants apprécient la vie de quartier ainsi que le cadre naturel environnant, idéal pour les familles comme pour les couples en quête de tranquillité. Ce terrain offre une opportunité rare, tant par sa localisation que par ses caractéristiques uniques. Ne laissez pas passer cette chance d’acquérir un terrain au potentiel immense. Pensez à toutes les possibilités qui s’offrent à vous, et envisagez cet achat unique dès aujourd’hui. À noter qu’en tant que constructeur, nous ne sommes pas mandatés pour réaliser la vente de ce terrain.

Sommesous
TERRAIN ET MAISONSur ce terrain, nous vous proposons cette maison neuve : la Focus Family Sud. Conçue par Babeau-Seguin, constructeur reconnu pour offrir le meilleur rapport qualité/prix du marché, cette maison de 89 m² est idéale pour les familles à la recherche d’un logement moderne et économique.Vous avez un budget serré et rêvez d’une maison au style urbain et contemporain ? La Focus Family Sud est faite pour vous. Cette maison compacte et élégante dispose de 4 chambres et de 4 pièces, offrant un espace de vie optimisé pour votre confort. Le garage intégré de près de 15 m², l’enduit bi-ton et les tuiles Canal ajoutent une touche de charme et de fonctionnalité à cette habitation.Les options les plus demandées par nos clients, telles que les menuiseries en aluminium, sont disponibles pour personnaliser votre maison selon vos goûts. De plus, cette maison neuve est basse consommation et conforme à la réglementation environnementale RE2020, garantissant des économies d’énergie et un respect de l’environnement.Ne manquez pas cette opportunité de construire une maison accessible à tous les budgets sans faire l’impasse sur les équipements. Avec ses 4 chambres, un cellier, un large séjour et un garage, la Focus Family Sud n’a rien à envier aux autres modèles de la gamme Babeau-Seguin. Profitez d’une habitation qui allie petit prix et grande prestation.

Bussy-Lettrée
TERRAINÀ vendre, ce terrain exceptionnel de 1257 m², situé dans la charmante commune de Bussy-Lettrée, au cœur du département de la Marne. Ce bien, non-viabilisé, bénéficie de caractéristiques uniques telles qu’un environnement arboré, un cadre champêtre, et une exposition ensoleillée, garantissant ainsi un cadre de vie agréable et paisible. Idéal pour un projet de construction de maison, ce terrain plat vous offre de nombreuses possibilités pour réaliser la maison de vos rêves dans un environnement calme et sécurisé. La ville de Bussy-Lettrée est située à proximité de la ville de Sézanne, à seulement 21 km, offrant ainsi un accès facile aux commodités essentielles et aux attractions locales. Ce secteur résidentiel paisible permet de profiter de la richesse culturelle et historique de la Marne, tout en ayant à proximité des commerces, services éducatifs et activités de plein air. Les amoureux de la nature apprécieront les paysages environnants et les promenades dans la région, permettant ainsi de concilier tranquillité et dynamisme. Ne manquez pas cette occasion unique d’acquérir un terrain au potentiel exceptionnel ! Contactez-nous dès maintenant pour en savoir plus et envisager ce projet de vie.

Bussy-Lettrée
TERRAIN ET MAISONSur ce terrain, nous vous proposons cette maison neuve, le modèle Ménilière, une maison plain-pied moderne qui intègre de base un garage et une longue galerie sur la face avant. Avec une surface de 100 m², cette maison dispose de 4 chambres et de 4 pièces, offrant ainsi un espace de vie confortable et fonctionnel pour toute la famille.Véritable « »tout-en-un » » de la maison individuelle, ce modèle est idéal pour votre projet de construction sur-mesure. La Ménilière est disponible avec un toit à 2 pans ou 4 pans, selon vos préférences esthétiques. Le garage intégré et la galerie avant ajoutent une touche pratique et élégante à cette maison.Les options les plus demandées par nos clients, telles que les menuiseries en aluminium et le sous-sol, sont également disponibles pour personnaliser davantage votre future maison. De plus, cette maison neuve est basse consommation et conforme à la réglementation environnementale RE2020, garantissant ainsi des performances énergétiques optimales et un impact environnemental réduit.Le constructeur Babeau-Seguin, reconnu pour offrir le meilleur rapport qualité/prix du marché, vous accompagne dans la réalisation de votre projet immobilier. Avec un prix serré et une personnalisation facile, il n’est pas étonnant que la Ménilière soit dans le top 5 des ventes de Babeau-Seguin.Ne manquez pas cette opportunité unique de devenir propriétaire d’une maison moderne, économe en énergie et parfaitement adaptée à vos besoins. Contactez-nous dès maintenant pour plus d’informations et pour planifier une visite de ce modèle exceptionnel.

Soudron
TERRAINDécouvrez ce terrain non-viabilisé de 800 m², situé dans la charmante commune de Soudron, dans le département de la Marne. Ce bien présente un cadre champêtre et ensoleillé, parfaitement adapté pour la réalisation de votre projet de construction de maison. Son emplacement privilégié dans un quartier calme et arboré offre une qualité de vie exceptionnelle, où sécurité et tranquillité sont au rendez-vous. Idéalement situé à Soudron, ce terrain se trouve à proximité des principales attractions locales et commodités. En mésurant uniquement 10 000 habitants, la ville conserve un esprit convivial, propice à la vie de famille, tout en mettant à disposition des services variés. Profitez des promenades agréables dans la nature environnante et des nombreux espaces verts qui font de cet endroit un véritable havre de paix. La douceur de vivre et les activités de plein air à portée de main font de Soudron une destination prisée. Ne manquez pas cette opportunité exceptionnelle d’acquérir un terrain prometteur dans un secteur engagé pour le bien-être et la qualité de vie. Envisagez dès à présent votre future maison sur ce terrain à fort potentiel.

Soudron
TERRAIN ET MAISONSur ce terrain, nous vous proposons cette maison neuve : la Focus Family. Conçue par Babeau-Seguin, constructeur offrant le meilleur rapport qualité/prix du marché, cette maison familiale à tout petit prix est idéale pour ceux qui souhaitent allier confort et économies.Avec une surface habitable de 89 m², la Focus Family vous offre un espace généreux et bien agencé. Elle comprend 4 chambres, parfaites pour accueillir toute votre famille, ainsi qu’un grand séjour traversant avec cuisine ouverte, pour un total de 4 pièces. Vous apprécierez également le garage intégré, pratique pour stationner votre véhicule ou pour du rangement supplémentaire.L’enduit bi-ton de la façade apporte une touche moderne et élégante à cette maison. De plus, les options les plus demandées par nos clients, comme les menuiseries en aluminium, sont disponibles pour personnaliser votre future habitation selon vos goûts.La Focus Family est une maison basse consommation, conforme à la réglementation environnementale RE2020. Elle est équipée des dernières innovations technologiques pour garantir une isolation thermique et phonique optimale, tout en étant économique et respectueuse de l’environnement.Ne faites aucune concession sur la qualité avec cette maison low cost de luxe. Babeau-Seguin met tout son savoir-faire et son professionnalisme dans la construction de la gamme Focus, en utilisant les meilleurs matériaux et une charpente traditionnelle.N’attendez plus pour réaliser votre projet de maison familiale à petit prix avec la Focus Family, une maison spacieuse, écolo et accessible à tous les budgets.

Vatry
TERRAINÀ la recherche d’un cadre idéal pour réaliser votre projet de construction ? Ne cherchez plus ! Ce terrain viabilisé de 7805 m², situé au cœur de Vatry, dans la Marne, vous offre une opportunité unique d’ériger la maison de vos rêves. Profitez d’un environnement paisible et verdoyant, tout en étant à proximité des commodités nécessaires à un quotidien agréable. Ce bien rare allie surface généreuse et potentiel de construction, vous permettant de concevoir un espace de vie à votre image. Vatry, charmante commune de la Marne, est à seulement quelques kilomètres des principaux axes routiers, garantissant un accès facile aux villes environnantes. La localité ne manque pas d’attractions, avec ses paysages pittoresques et ses infrastructures locales, comme des écoles, des magasins et des activités de loisirs. La tranquillité de la campagne alliée à la proximité des services offre un cadre de vie idéal pour les familles et les amoureux de la nature. Plongez dans un environnement propice à l’épanouissement, tout en bénéficiant des richesses culturelles et historiques de la région. N’attendez plus pour saisir cette occasion rare d’acquérir un terrain avec un potentiel de construction exceptionnel à Vatry. Contactez-nous dès aujourd’hui pour discuter de ce projet qui pourrait devenir votre futur chez-vous !
L’actualité immobilière à Bussy-Lettrée





