Images
Description
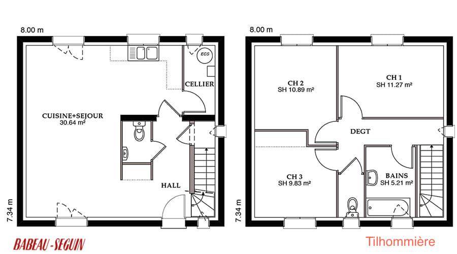
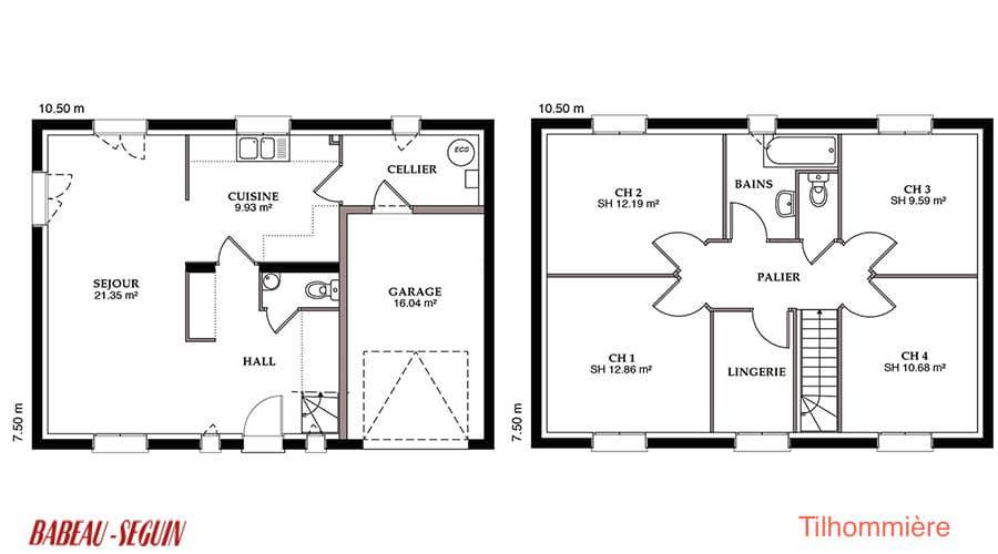
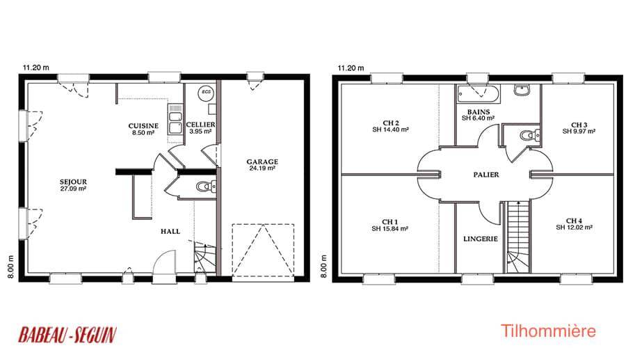
Sur ce terrain, nous vous proposons cette maison neuve : la Tilhommière sud. Inspirée directement des bastides du sud, cette maison combine subtilement tradition et modernisme !
Avec une surface de 120 m², la Tilhommière sud se compose de 4 chambres et de 4 pièces, réparties sur deux niveaux (R+1) avec une dalle étage en béton. Les pièces de jour sont situées au rez-de-chaussée, tandis que les chambres se trouvent à l'étage, faisant de cette maison une digne représentante des demeures familiales du catalogue Babeau-Seguin.
Cette maison aux lignes simples et rassurantes a été conçue avec un large séjour traversant, offrant un espace de vie lumineux et convivial. En définitive, la Tilhommière sud est une maison familiale idéale pour les amoureux des traditions architecturales du Sud.
De plus, cette maison neuve est basse consommation et conforme à la RE2020, garantissant ainsi des performances énergétiques optimales et un confort de vie inégalé.
Faites confiance à Babeau-Seguin, constructeur offrant le meilleur rapport qualité/prix du marché, pour réaliser votre projet de vie dans cette magnifique demeure.
Logement susceptibles de vous intéresser
Nous vous proposons de découvrir aussi cette sélection de logements situés à moins de 10km de Châlons-en-Champagne et qui seraient susceptibles de vous intéresser.
Châlons-en-Champagne
TERRAINTerrain à bâtir d’une surface 719M2 vendu Borné et viabilisé en eau et électricitésitué dans un environnement calme à quelques kms de Châlons en ChampagneMais ce n’est pas tout :Vous êtes propriétaire d’une Maison, Appartement ou d’un Terrain et vous réfléchissez à le mettre en vente ? Profitez d’une estimation professionnelle, fiable et gratuite, même si vous n’êtes pas encore décidé. Acheter, vendre, comparer : je vous accompagne avec transparence et expertise pour optimiser votre projet. Contactez moi pour découvrir les terrains disponibles ou pour évaluer la valeur réelle de votre bien.Cette annonce référence 313919 vous est présentée par votre agent commercial BSK Immobilier JÉROME JOUAULT (EI) immatriculé au RSAC de CHALONS-EN-CHAMPAGNE (51000) sous le numéro 88834723400039.Prix du bien : 64 900,00 €Les honoraires d’agence sont à la charge du vendeur.Les informations sur les risques auxquels ce bien est exposé sont disponibles sur le site Géorisques : www.georisques.gouv.fr
Sarry
TERRAINTerrain à bâtir d’une surface 643M2 vendu Borné et viabilisé en eau et électricitésitué dans un environnement calme à quelques kms de Châlons en ChampagneMais ce n’est pas tout :Vous êtes propriétaire d’une Maison, Appartement ou d’un Terrain et vous réfléchissez à le mettre en vente ? Profitez d’une estimation professionnelle, fiable et gratuite, même si vous n’êtes pas encore décidé. Acheter, vendre, comparer : je vous accompagne avec transparence et expertise pour optimiser votre projet. Contactez moi pour découvrir les terrains disponibles ou pour évaluer la valeur réelle de votre bien.Cette annonce référence 313921 vous est présentée par votre agent commercial BSK Immobilier JÉROME JOUAULT (EI) immatriculé au RSAC de CHALONS-EN-CHAMPAGNE (51000) sous le numéro 88834723400039.Prix du bien : 59 900,00 €Les honoraires d’agence sont à la charge du vendeur.Les informations sur les risques auxquels ce bien est exposé sont disponibles sur le site Géorisques : www.georisques.gouv.fr
Moncetz-Longevas
TERRAINOPPORTUNITÉ À SAISIR – Terrain à bâtir – Moncetz-LongevasÀ 10 minutes de Châlons-en-Champagne – Terrain à bâtir de 879 m², situé dans une commune agréable et bien desservie. Ce terrain constructible offre un cadre idéal pour votre projet de construction.Le terrain est libre de constructeur. Tous les réseaux sont à proximité pour une viabilisation facilitée.Un emplacement stratégique, un projet prêt à démarrer.À visiter rapidement !Référence : 2346 – 13065Prenez contact avec votre agent :Charlotte DUVAL EI(Numéro supprimé)Agent commercial n°RSAC Reims 980 722 235
Châlons-en-Champagne
TERRAIN ET MAISONRéalisez votre projet de construction de maison RE 2020 avec PAVILLONS D'ÎLE-DE-FRANCE (constructeur de maisons de gamme et sur-mesure depuis plus de 50 ans) :- Plan sur-mesure et personnalisé de 2 à 5 chambres- Mode de chauffage au choix- Grands choix d'équipements et de prestations- Matériaux de qualité selon les normes en vigueur- Accompagnement dans le choix et l’acquisition du terrainInformations du terrain : Dans rue calme, proche centre ville.Demandez une étude gratuite et personnalisée de votre projet de construction !Contactez Vincent AUGE au (Numéro supprimé) ou au (Numéro supprimé) (Pavillons d'Île-de-France – Agence de Reims).Prix avec assurance dommages-ouvrage comprise, hors VRD, terrain viabilisé, assainissement non compris, frais de notaire non compris, taxes non comprises, frais divers non compris. Terrain sélectionné et vu pour vous sous réserve de disponibilité et au prix indiqué par notre partenaire foncier. Visuels non contractuels.Cette annonce a été créée et diffusée avec le logiciel VITAHOME.
Châlons-en-Champagne
TERRAINÀ la recherche du terrain idéal pour concrétiser votre projet de construction de maison ? Ne manquez pas cette opportunité exceptionnelle ! Situé dans un lotissement prisé de 382 m², ce terrain viabilisé vous offre un cadre de vie calme et ensoleillé. Grâce à une surface agréable et un environnement arboré, ce terrain est le choix parfait pour bâtir la maison de vos rêves, au sein d’un quartier privilégié de Châlons-en-Champagne. Idéalement localisé en plein cœur de la ville de Châlons-en-Champagne, dans le département de la Marne en région Grand Est, ce terrain bénéficie de toutes les commodités nécessaires à votre quotidien. À proximité immédiate, vous trouverez des commerces, des services variés et un cadre champêtre attrayant qui vous séduira à coup sûr. La sécurité et la qualité de vie sont au rendez-vous, enrichies d’un accès facile aux attractions locales qui font la renommée de la ville. Ce secteur dynamique est parfait pour profiter de la vie urbaine tout en étant au calme. Ce terrain présente un potentiel exceptionnel pour ceux qui souhaitent s’installer dans une belle région. Ne laissez pas passer cette offre unique et prenez contact pour plus d’informations ! À noter qu’en tant que constructeur, nous ne sommes pas mandatés pour réaliser la vente de ce terrain.
Châlons-en-Champagne
TERRAINDécouvrez ce terrain d’une surface généreuse de 320 m², parfaitement viabilisé et prêt à accueillir votre futur projet de construction. Idéalement situé dans le lotissement recherché de Châlons-en-Champagne, ce terrain offre un panorama exceptionnel et une qualité de vie indiscutable. Il constitue une opportunité unique pour créer la maison de vos rêves dans un cadre alliant tranquillité et accessibilité. Châlons-en-Champagne, charmante ville du département de la Marne dans la région Grand Est, se distingue par ses nombreuses attractions et commodités. Vous profiterez de la beauté du coeur de ville, proche de commerces, d’écoles et de toutes les infrastructures nécessaires au quotidien. Les colléges et lycées sont également à proximité, garantissant un environnement éducatif de qualité pour vos enfants. De plus, la tranquillité du quartier arboré, la vue dégagée et le cadre champêtre vous promettent un véritable havre de paix, tout en restant à quelques minutes de toutes les animations urbaines. Ce terrain représente une occasion rare d’investir dans un secteur en pleine expansion, offrant ainsi un potentiel de valorisation intéressant. N’hésitez pas à envisager cette opportunité unique d’achat qui pourrait transformer vos aspirations en réalité ! À noter qu’en tant que constructeur, nous ne sommes pas mandatés pour réaliser la vente de ce terrain.
Châlons-en-Champagne
TERRAIN ET MAISONSur ce terrain, nous vous proposons cette maison neuve : la Tilhommière sud. Inspirée directement des bastides du sud, cette maison combine subtilement tradition et modernisme !Avec une surface de 120 m², la Tilhommière sud se compose de 4 chambres et de 4 pièces, réparties sur deux niveaux (R+1) avec une dalle étage en béton. Les pièces de jour sont situées au rez-de-chaussée, tandis que les chambres se trouvent à l’étage, faisant de cette maison une digne représentante des demeures familiales du catalogue Babeau-Seguin.Cette maison aux lignes simples et rassurantes a été conçue avec un large séjour traversant, offrant un espace de vie lumineux et convivial. En définitive, la Tilhommière sud est une maison familiale idéale pour les amoureux des traditions architecturales du Sud.De plus, cette maison neuve est basse consommation et conforme à la RE2020, garantissant ainsi des performances énergétiques optimales et un confort de vie inégalé.Faites confiance à Babeau-Seguin, constructeur offrant le meilleur rapport qualité/prix du marché, pour réaliser votre projet de vie dans cette magnifique demeure.
Châlons-en-Champagne
TERRAINDans rue calme, proche centre ville.Prix : 70000 €.Sur ce terrain, réalisez votre projet de construction de maison RE 2020 avec PAVILLONS D'ÎLE-DE-FRANCE (constructeur de maisons de gamme et sur-mesure depuis plus de 50 ans) :- Plan sur-mesure et personnalisé de 2 à 5 chambres- Mode de chauffage au choix- Grands choix d'équipements et de prestations- Matériaux de qualité selon les normes en vigueur- Accompagnement dans le choix et l’acquisition du terrainDemandez une étude gratuite et personnalisée de votre projet de construction sur ce terrain !Contactez Vincent AUGE au (Numéro supprimé) ou au (Numéro supprimé) (Pavillons d'Île-de-France – Agence de Reims).Prix hors frais de notaire. Terrain sélectionné et vu pour vous sous réserve de disponibilité et au prix indiqué par notre partenaire foncier. Visuels non contractuels.Cette annonce a été créée et diffusée avec le logiciel VITAHOME.
Châlons-en-Champagne
TERRAIN ET MAISONRéalisez votre projet de construction de maison RE 2020 avec PAVILLONS D'ÎLE-DE-FRANCE (constructeur de maisons de gamme et sur-mesure depuis plus de 50 ans) :- Plan sur-mesure et personnalisé de 2 à 5 chambres- Mode de chauffage au choix- Grands choix d'équipements et de prestations- Matériaux de qualité selon les normes en vigueur- Accompagnement dans le choix et l’acquisition du terrainInformations du terrain : Dans rue calme, proche centre ville.Demandez une étude gratuite et personnalisée de votre projet de construction !Contactez Vincent AUGE au (Numéro supprimé) ou au (Numéro supprimé) (Pavillons d'Île-de-France – Agence de Reims).Prix avec assurance dommages-ouvrage comprise, hors VRD, terrain viabilisé, assainissement non compris, frais de notaire non compris, taxes non comprises, frais divers non compris. Terrain sélectionné et vu pour vous sous réserve de disponibilité et au prix indiqué par notre partenaire foncier. Visuels non contractuels.Cette annonce a été créée et diffusée avec le logiciel VITAHOME.
L’actualité immobilière à Châlons-en-Champagne
27/11/2023
02/11/2023
30/10/2023
20/10/2023
16/10/2023
16/10/2023