Maison à construire à Courcy (51220)
Images
Description
À acheter à Courcy, maison neuve de 150 m² habitables bénéficiant de 5 chambres.
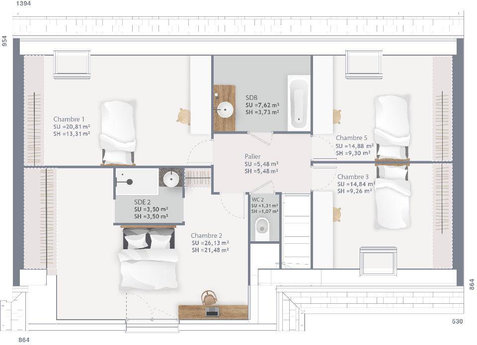
Le modèle de maison qui vous est présenté est Lumina 150 R+1 GI. Conception contemporaine pour ce projet de maison qui comprend 5 chambres avec espace pour les placards dont deux suites parentales avec dressing et salle d'eau privative (une au rez-de-chaussée), deux wc, une salle de bains, une grande pièce de vie ouverte sur la cuisine, un cellier et un garage.
La construction traditionnelle aux normes RE2020 de la maison est réalisée en brique et l'ensemble des matériaux utilisés sont de qualité afin de vous assurer un investissement durable.
Terrain constructible de 570m2 à Courcy idéalement situé au calme, au coeur du village et proche de toutes les commodités (environnement vraiment de qualité, parcelle située dans un petit lotissement de 3 lots), disposant d'une belle façade et entièrement viabilisé.
Courcy est une commune recherchée pour son axe direct, ses commodités (Ecole, gare, médecins, pharmacie, boulangerie, vie associative riche) et sa proximité avec Reims, Hermonville, Cormicy, Villers Franqueux, Pouillon, Thil, Chenay, Merfy, Saint Thierry, Merfy, Loivre, Brimont et Berméricourt.
Pour plus de renseignements vous pouvez me contacter , Nicolas GUILLAUME de l'agence Maisons France Confort de Cormontreuil au (Numéro supprimé)
Logement susceptibles de vous intéresser
Nous vous proposons de découvrir aussi cette sélection de logements situés à moins de 10km de Courcy et qui seraient susceptibles de vous intéresser.
Bourgogne-Fresne
TERRAINSitué sur la commune de Bourgogne-Fresne, à 10mm de Reims.Autres parcelles disponibles.Prix : 140760 €.Sur ce terrain, réalisez votre projet de construction de maison RE 2020 avec PAVILLONS D'ÎLE-DE-FRANCE (constructeur de maisons de gamme et sur-mesure depuis plus de 50 ans) :- Plan sur-mesure et personnalisé de 2 à 5 chambres- Mode de chauffage au choix- Grands choix d'équipements et de prestations- Matériaux de qualité selon les normes en vigueur- Accompagnement dans le choix et l’acquisition du terrainDemandez une étude gratuite et personnalisée de votre projet de construction sur ce terrain !Contactez Vincent AUGE au (Numéro supprimé) ou au (Numéro supprimé) (Pavillons d'Île-de-France – Agence de Reims).Prix hors frais de notaire. Terrain sélectionné et vu pour vous sous réserve de disponibilité et au prix indiqué par notre partenaire foncier. Visuels non contractuels.Cette annonce a été créée et diffusée avec le logiciel VITAHOME.
Witry-lès-Reims
TERRAIN ET MAISONMaison de 6 pièces (115 m²) en vente à CaurelPROCHE DE REIMS – MAISON 6 PIÈCES NEUVEÀ vendre à 9 km de Reims, à Caurel (51110), nous sommes heureux de vous proposer cette maison de 6 pièces de plain-pied de 115 m² et de 500 m² de terrain. Son intérieur dispose de trois chambres, d’une cuisine et de trois salles de bains.Cette maison est neuve.Une école élémentaire est implantée dans le quartier. Niveau transports, il y a la gare Bazancourt à moins de 10 minutes en voiture. L’autoroute A34 et la nationale N51 sont accessibles à moins de 4 km. On trouve un tennis, une bibliothèque et un commerce à proximité.Elle est proposée à l’achat pour 406 000 €.Prenez contact avec François TOTI (tél : (Numéro supprimé)) pour toute information sur la maison.
Auménancourt
TERRAINA 15mm de Reims, dans charmant village avec groupe scolaire.Autres parcelles disponibles.Prix : 82880 €.Sur ce terrain, réalisez votre projet de construction de maison RE 2020 avec PAVILLONS D'ÎLE-DE-FRANCE (constructeur de maisons de gamme et sur-mesure depuis plus de 50 ans) :- Plan sur-mesure et personnalisé de 2 à 5 chambres- Mode de chauffage au choix- Grands choix d'équipements et de prestations- Matériaux de qualité selon les normes en vigueur- Accompagnement dans le choix et l’acquisition du terrainDemandez une étude gratuite et personnalisée de votre projet de construction sur ce terrain !Contactez Vincent AUGE au (Numéro supprimé) ou au (Numéro supprimé) (Pavillons d'Île-de-France – Agence de Reims).Prix hors frais de notaire. Terrain sélectionné et vu pour vous sous réserve de disponibilité et au prix indiqué par notre partenaire foncier. Visuels non contractuels.Cette annonce a été créée et diffusée avec le logiciel VITAHOME.
Auménancourt
TERRAIN ET MAISONRéalisez votre projet de construction de maison RE 2020 avec PAVILLONS D'ÎLE-DE-FRANCE (constructeur de maisons de gamme et sur-mesure depuis plus de 50 ans) :- Plan sur-mesure et personnalisé de 2 à 5 chambres- Mode de chauffage au choix- Grands choix d'équipements et de prestations- Matériaux de qualité selon les normes en vigueur- Accompagnement dans le choix et l’acquisition du terrainInformations du terrain : A 15mm de Reims, dans charmant village avec groupe scolaire.Autres parcelles disponibles.Demandez une étude gratuite et personnalisée de votre projet de construction !Contactez Vincent AUGE au (Numéro supprimé) ou au (Numéro supprimé) (Pavillons d'Île-de-France – Agence de Reims).Prix avec assurance dommages-ouvrage comprise, hors VRD, terrain viabilisé, assainissement non compris, frais de notaire non compris, taxes non comprises, frais divers non compris. Terrain sélectionné et vu pour vous sous réserve de disponibilité et au prix indiqué par notre partenaire foncier. Visuels non contractuels.Cette annonce a été créée et diffusée avec le logiciel VITAHOME.
Auménancourt
TERRAIN ET MAISONRéalisez votre projet de construction de maison RE 2020 avec PAVILLONS D'ÎLE-DE-FRANCE (constructeur de maisons de gamme et sur-mesure depuis plus de 50 ans) :- Plan sur-mesure et personnalisé de 2 à 5 chambres- Mode de chauffage au choix- Grands choix d'équipements et de prestations- Matériaux de qualité selon les normes en vigueur- Accompagnement dans le choix et l’acquisition du terrainInformations du terrain : A 15mm de Reims, dans charmant village avec groupe scolaire.Autres parcelles disponibles.Demandez une étude gratuite et personnalisée de votre projet de construction !Contactez Vincent AUGE au (Numéro supprimé) ou au (Numéro supprimé) (Pavillons d'Île-de-France – Agence de Reims).Prix avec assurance dommages-ouvrage comprise, hors VRD, terrain viabilisé, assainissement non compris, frais de notaire non compris, taxes non comprises, frais divers non compris. Terrain sélectionné et vu pour vous sous réserve de disponibilité et au prix indiqué par notre partenaire foncier. Visuels non contractuels.Cette annonce a été créée et diffusée avec le logiciel VITAHOME.
Witry-lès-Reims
TERRAINVENTE : terrain de 500 m² à CaurelPROCHE DE REIMSTerrain de 500 m² à deux pas de Reims. Ce terrain se situe dans Caurel (51110). Le terrain est proche des écoles et des commerces. Une école élémentaire est implantée dans le quartier. Côté transports en commun, il y a la gare Bazancourt à moins de 10 minutes en voiture. L’autoroute A34 et la nationale N51 sont accessibles à moins de 4 km. On trouve un tennis, une bibliothèque et un commerce à quelques minutes du bien.Son prix de vente est de 100 000 €. Contactez François TOTI (tél : (Numéro supprimé)) pour tout renseignement sur le terrain ou sur les démarches à suivre. Maisons France Confort Cormontreuil vous accompagne dans tous vos projets immobiliers et dans toutes vos démarches.
Witry-lès-Reims
TERRAIN ET MAISONMaison de 5 pièces (101 m²) à vendre à CaurelPROCHE DE REIMS – MAISON 5 PIÈCES NEUVEEn vente : à deux pas de Reims, nous vous proposons à Caurel (51110), cette maison de 5 pièces de plain-pied de 101 m². Conçue de plain-pied, elle inclut quatre chambres, une cuisine et une salle de bains.Le terrain du bien est de 500 m².Cette maison est neuve.Une école élémentaire est implantée dans le quartier. Niveau transports, il y a la gare Bazancourt à moins de 10 minutes en voiture. L’autoroute A34 et la nationale N51 sont accessibles à moins de 4 km. On trouve un tennis, une bibliothèque et un commerce à quelques minutes à peine.Elle est proposée à l’achat pour 289 000 €.N’hésitez pas à prendre contact avec notre agence (François TOTI : (Numéro supprimé)) pour toute information sur cette maison, sur les démarches à suivre ou sur les modalités de vente.
Witry-lès-Reims
TERRAIN ET MAISONVENTE : maison de 4 pièces (140 m²) à CaurelPROCHE DE REIMS – MAISON 4 PIÈCES NEUVEÀ vendre : à deux pas de Reims, laissez vous charmer par cette maison de 4 pièces de 140 m² à Caurel (51110). Son intérieur comporte quatre chambres, une cuisine et deux salles de bains.Le terrain de cette maison s’étend sur 500 m².Cette maison compte 2 niveaux. Elle est neuve.Il y a une école élémentaire dans le quartier. Niveau transports en commun, on trouve la gare Bazancourt à moins de 10 minutes en voiture. L’autoroute A34 et la nationale N51 sont accessibles à moins de 4 km. Il y a un tennis, une bibliothèque et un commerce à proximité.Elle est à vendre pour la somme de 446 500 €.Contactez François TOTI ((Numéro supprimé)) pour toute information sur la propriété ou sur les modalités de vente. Donnez vie à vos projets immobiliers avec Maisons France Confort Cormontreuil.
Loivre
TERRAIN ET MAISONMaison de 5 pièces (90 m²) à vendre à LoivrePROCHE DE REIMS – MAISON 5 PIÈCES NEUVEÀ vendre : à 12 km de Reims, nous vous présentons cette maison de 5 pièces de plain-pied de 90 m² à Loivre (51220). Elle offre trois chambres, une cuisine et deux salles de bains.Le terrain de la maison est de 561 m².Cette maison est neuve.Des écoles primaires sont implantées dans le quartier et une structure d’accueil pour la petite enfance. Niveau transports en commun, on trouve la gare Loivre à moins de 10 minutes à pied. L’autoroute A26 et la nationale N31 sont accessibles à moins de 10 km. Il y a une bibliothèque à quelques minutes du bien.Elle est proposée à l’achat pour 323 279 €.N’hésitez pas à prendre contact avec notre agence (TOTI François : (Numéro supprimé)) pour toute information sur la maison.
L’actualité immobilière à Courcy
27/11/2023
02/11/2023
30/10/2023
20/10/2023
16/10/2023
16/10/2023