Images
Description
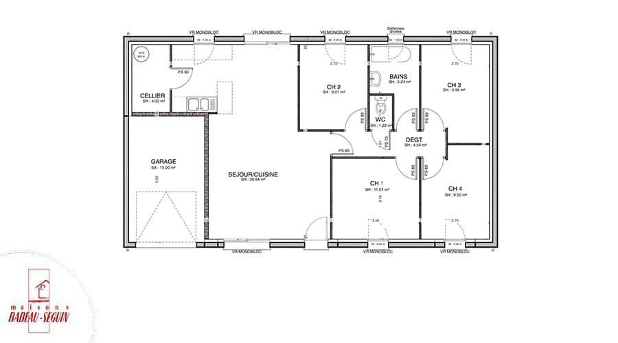
Sur ce terrain, nous vous proposons cette maison neuve : la Focus Family. Conçue par Babeau-Seguin, constructeur offrant le meilleur rapport qualité/prix du marché, cette maison familiale à tout petit prix est idéale pour ceux qui souhaitent allier confort et économies.
Avec une surface habitable de 89 m², la Focus Family vous offre un espace généreux et bien agencé. Elle comprend 4 chambres, parfaites pour accueillir toute votre famille, ainsi qu'un grand séjour traversant avec cuisine ouverte, pour un total de 4 pièces. Vous apprécierez également le garage intégré, pratique pour stationner votre véhicule ou pour du rangement supplémentaire.
L'enduit bi-ton de la façade apporte une touche moderne et élégante à cette maison. De plus, les options les plus demandées par nos clients, comme les menuiseries en aluminium, sont disponibles pour personnaliser votre future habitation selon vos goûts.
La Focus Family est une maison basse consommation, conforme à la réglementation environnementale RE2020. Elle est équipée des dernières innovations technologiques pour garantir une isolation thermique et phonique optimale, tout en étant économique et respectueuse de l'environnement.
Ne faites aucune concession sur la qualité avec cette maison low cost de luxe. Babeau-Seguin met tout son savoir-faire et son professionnalisme dans la construction de la gamme Focus, en utilisant les meilleurs matériaux et une charpente traditionnelle.
N'attendez plus pour réaliser votre projet de maison familiale à petit prix avec la Focus Family, une maison spacieuse, écolo et accessible à tous les budgets.
Logement susceptibles de vous intéresser
Nous vous proposons de découvrir aussi cette sélection de logements situés à moins de 10km de Courtisols et qui seraient susceptibles de vous intéresser.
Courtisols
TERRAIN ET MAISONSur ce terrain, nous vous proposons cette maison neuve Aubetière. Avec une surface de 96 m² et équipée de 4 chambres, cette maison traditionnelle est appréciée pour son excellent rapport qualité/prix. L’Aubetière, fleuron de la gamme traditionnelle Babeau-Seguin, est une maison moderne qui se décline en plusieurs versions pour répondre à vos besoins spécifiques. Vous pouvez choisir entre une toiture à 2 pans ou à 4 pans, et personnaliser votre maison avec des options comme un garage ou un sous-sol.Cette maison de plain-pied est conçue pour être basse consommation et conforme à la RE2020, garantissant ainsi des économies d’énergie et un confort optimal tout au long de l’année. Babeau-Seguin, constructeur reconnu pour offrir le meilleur rapport qualité/prix du marché, vous accompagne dans la réalisation de votre projet de construction sur mesure. Donnez vie à votre projet en optant pour l’Aubetière et profitez d’une maison neuve, performante et personnalisable selon vos envies.
Courtisols
TERRAINNous sommes ravis de vous présenter ce superbe terrain à vendre, situé dans le charmant lotissement à 10 minutes de Courtisols. Avec une superficie généreuse de 1173 m², cet espace non viabilisé se prête parfaitement à un projet de construction de maison. Bénéficiant d’une localisation exceptionnelle, ce terrain offre un cadre champêtre privilégié, arboré et ensoleillé, tout en garantissant une tranquillité rare dans un quartier recherché. Le Plan Local d’Urbanisme (PLU) non contraignant vous permettra d’explorer un large éventail de possibilités pour concevoir la maison de vos rêves. Idéalement situé dans la commune de Courtisols, dans le département de la Marne, en région Grand Est, ce terrain vous permettra de profiter de la qualité de vie qu’offre cette localité dynamique. Les attractions locales, tant culturelles que naturelles, ne sont pas en reste, et vous serez à proximité de commerces, de services essentiels et d’écoles. Que ce soit pour des balades en pleine nature ou pour profiter des infrastructures locales, Courtisols est l’endroit parfait pour établir un foyer. La combinaison de la sécurité, du calme et des commodités à proximité en fait un emplacement de choix pour votre projet immobilier. Ne manquez pas cette occasion unique d’investir dans un terrain qui allie tranquillité et potentiel de construction. Contactez-nous dès maintenant pour découvrir toutes les possibilités qu’offre ce bien exceptionnel. À noter qu’en tant que constructeur, nous ne sommes pas mandatés pour réaliser la vente de ce terrain.
Sarry
TERRAINTerrain à bâtir d’une surface 643M2 vendu Borné et viabilisé en eau et électricitésitué dans un environnement calme à quelques kms de Châlons en ChampagneMais ce n’est pas tout :Vous êtes propriétaire d’une Maison, Appartement ou d’un Terrain et vous réfléchissez à le mettre en vente ? Profitez d’une estimation professionnelle, fiable et gratuite, même si vous n’êtes pas encore décidé. Acheter, vendre, comparer : je vous accompagne avec transparence et expertise pour optimiser votre projet. Contactez moi pour découvrir les terrains disponibles ou pour évaluer la valeur réelle de votre bien.Cette annonce référence 313921 vous est présentée par votre agent commercial BSK Immobilier JÉROME JOUAULT (EI) immatriculé au RSAC de CHALONS-EN-CHAMPAGNE (51000) sous le numéro 88834723400039.Prix du bien : 59 900,00 €Les honoraires d’agence sont à la charge du vendeur.Les informations sur les risques auxquels ce bien est exposé sont disponibles sur le site Géorisques : www.georisques.gouv.fr
Moncetz-Longevas
TERRAINOPPORTUNITÉ À SAISIR – Terrain à bâtir – Moncetz-LongevasÀ 10 minutes de Châlons-en-Champagne – Terrain à bâtir de 879 m², situé dans une commune agréable et bien desservie. Ce terrain constructible offre un cadre idéal pour votre projet de construction.Le terrain est libre de constructeur. Tous les réseaux sont à proximité pour une viabilisation facilitée.Un emplacement stratégique, un projet prêt à démarrer.À visiter rapidement !Référence : 2346 – 13065Prenez contact avec votre agent :Charlotte DUVAL EI(Numéro supprimé)Agent commercial n°RSAC Reims 980 722 235
Courtisols
TERRAIN ET MAISONSur ce terrain, nous vous proposons cette maison neuve : la Focus Family. Conçue par Babeau-Seguin, constructeur offrant le meilleur rapport qualité/prix du marché, cette maison familiale à tout petit prix est idéale pour ceux qui souhaitent allier confort et économies.Avec une surface habitable de 89 m², la Focus Family vous offre un espace généreux et bien agencé. Elle comprend 4 chambres, parfaites pour accueillir toute votre famille, ainsi qu’un grand séjour traversant avec cuisine ouverte, pour un total de 4 pièces. Vous apprécierez également le garage intégré, pratique pour stationner votre véhicule ou pour du rangement supplémentaire.L’enduit bi-ton de la façade apporte une touche moderne et élégante à cette maison. De plus, les options les plus demandées par nos clients, comme les menuiseries en aluminium, sont disponibles pour personnaliser votre future habitation selon vos goûts.La Focus Family est une maison basse consommation, conforme à la réglementation environnementale RE2020. Elle est équipée des dernières innovations technologiques pour garantir une isolation thermique et phonique optimale, tout en étant économique et respectueuse de l’environnement.Ne faites aucune concession sur la qualité avec cette maison low cost de luxe. Babeau-Seguin met tout son savoir-faire et son professionnalisme dans la construction de la gamme Focus, en utilisant les meilleurs matériaux et une charpente traditionnelle.N’attendez plus pour réaliser votre projet de maison familiale à petit prix avec la Focus Family, une maison spacieuse, écolo et accessible à tous les budgets.
Courtisols
TERRAINDécouvrez ce terrain exceptionnel offrant une superficie généreuse de 1076 m², situé dans la charmante commune de Courtisols, au cœur de la Marne dans la région Grand Est. Ce terrain non-viabilisé, idéal pour concrétiser vos projets de construction de maison, bénéficie d’un cadre arboré et paisible, garantissant tranquillité et sécurité. Les caractéristiques uniques de cette ville en font un lieu de vie très prisé pour les familles cherchant à s’installer dans un environnement calme et serein. Courtisols est une ville qui séduira les amoureux de la nature et du calme, tout en restant proche de diverses commodités. Avec son cadre champêtre, vous pourrez profiter des paysages environnants tout en ayant accès aux services essentiels, tels que des écoles, des commerces et des infrastructures de loisirs. De plus, la proximité de la ville de Châlons-en-Champagne ajoute une dimension urbaine à ce havre de paix, offrant ainsi un parfait équilibre entre vie tranquille et activité citadine. Ce terrain représente une réelle opportunité d’investissement dans un secteur en plein développement. N’attendez plus pour envisager votre futur projet d’habitation dans ce cadre unique. À noter qu’en tant que constructeur, nous ne sommes pas mandatés pour réaliser la vente de ce terrain.
Sarry
TERRAINDécouvrez une opportunité exceptionnelle d’acquérir un terrain viabilisé de 383 m², idéalement situé en plein cœur de Sarry, dans le département de la Marne, région Grand Est. Ce terrain plat offre un cadre paisible et ensoleillé, parfaitement adapté à votre projet de construction de maison. Sa proximité avec le centre-ville et les commodités en fait un emplacement de choix pour bâtir votre futur chez-vous dans un environnement sécurisé et arboré. Sarry se distingue par son ambiance conviviale et ses nombreuses attractions locales. Vous bénéficierez de la proximité des commerces, des écoles, ainsi que d’un collège et d’un lycée, garantissant ainsi un accès facile aux services nécessaires pour votre famille. Lieu de calme et de sérénité, le terrain se trouve à quelques pas du cadre champêtre, tout en étant connecté aux infrastructures modernes dont vous pouvez rêver. Ne manquez pas cette occasion unique d’acquérir un terrain dans une ville dynamique et attrayante. Ne laissez pas passer ce terrain avec un potentiel immense pour concrétiser votre projet de vie. Contactez-nous pour plus d’informations et envisagez dès aujourd’hui cette opportunité d’achat rare. À noter qu’en tant que constructeur, nous ne sommes pas mandatés pour réaliser la vente de ce terrain.
Sarry
TERRAIN ET MAISONRéalisez votre projet de construction de maison RE 2020 avec PAVILLONS D'ÎLE-DE-FRANCE (constructeur de maisons de gamme et sur-mesure depuis plus de 50 ans) :- Plan sur-mesure et personnalisé de 2 à 5 chambres- Mode de chauffage au choix- Grands choix d'équipements et de prestations- Matériaux de qualité selon les normes en vigueur- Accompagnement dans le choix et l’acquisition du terrainInformations du terrain : Autres parcelles disponiblesDemandez une étude gratuite et personnalisée de votre projet de construction !Contactez Vincent AUGE au (Numéro supprimé) ou au (Numéro supprimé) (Pavillons d'Île-de-France – Agence de Reims).Prix avec assurance dommages-ouvrage comprise, hors VRD, terrain viabilisé, assainissement compris, frais de notaire non compris, taxes non comprises, frais divers non compris. Terrain sélectionné et vu pour vous sous réserve de disponibilité et au prix indiqué par notre partenaire foncier. Visuels non contractuels.Cette annonce a été créée et diffusée avec le logiciel VITAHOME.
Sarry
TERRAINAutres parcelles disponiblesPrix : 67280 €.Sur ce terrain, réalisez votre projet de construction de maison RE 2020 avec PAVILLONS D'ÎLE-DE-FRANCE (constructeur de maisons de gamme et sur-mesure depuis plus de 50 ans) :- Plan sur-mesure et personnalisé de 2 à 5 chambres- Mode de chauffage au choix- Grands choix d'équipements et de prestations- Matériaux de qualité selon les normes en vigueur- Accompagnement dans le choix et l’acquisition du terrainDemandez une étude gratuite et personnalisée de votre projet de construction sur ce terrain !Contactez Vincent AUGE au (Numéro supprimé) ou au (Numéro supprimé) (Pavillons d'Île-de-France – Agence de Reims).Prix hors frais de notaire. Terrain sélectionné et vu pour vous sous réserve de disponibilité et au prix indiqué par notre partenaire foncier. Visuels non contractuels.Cette annonce a été créée et diffusée avec le logiciel VITAHOME.
L’actualité immobilière à Courtisols
27/11/2023
02/11/2023
30/10/2023
20/10/2023
16/10/2023
16/10/2023