Images
Description
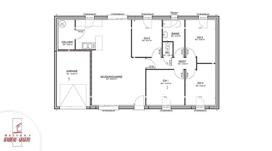
Sur ce terrain, nous vous proposons cette maison neuve : la Focus Family. Conçue par Babeau-Seguin, constructeur offrant le meilleur rapport qualité/prix du marché, cette maison familiale à tout petit prix est idéale pour ceux qui souhaitent allier confort et économies.
Avec une surface habitable de 89 m², la Focus Family vous offre un espace généreux et bien agencé. Elle comprend 4 chambres, parfaites pour accueillir toute votre famille, ainsi qu'un grand séjour traversant avec cuisine ouverte, pour un total de 4 pièces. Vous apprécierez également le garage intégré, pratique pour stationner votre véhicule ou pour du rangement supplémentaire.
L'enduit bi-ton de la façade apporte une touche moderne et élégante à cette maison. De plus, les options les plus demandées par nos clients, comme les menuiseries en aluminium, sont disponibles pour personnaliser votre future habitation selon vos goûts.
La Focus Family est une maison basse consommation, conforme à la réglementation environnementale RE2020. Elle est équipée des dernières innovations technologiques pour garantir une isolation thermique et phonique optimale, tout en étant économique et respectueuse de l'environnement.
Ne faites aucune concession sur la qualité avec cette maison low cost de luxe. Babeau-Seguin met tout son savoir-faire et son professionnalisme dans la construction de la gamme Focus, en utilisant les meilleurs matériaux et une charpente traditionnelle.
N'attendez plus pour réaliser votre projet de maison familiale à petit prix avec la Focus Family, une maison spacieuse, écolo et accessible à tous les budgets.
Logement susceptibles de vous intéresser
Nous vous proposons de découvrir aussi cette sélection de logements situés à moins de 10km de Frignicourt et qui seraient susceptibles de vous intéresser.
Plichancourt
TERRAIN ET MAISONSur ce terrain, nous vous proposons cette maison neuve : la Focus Family. Conçue par Babeau-Seguin, constructeur offrant le meilleur rapport qualité/prix du marché, cette maison familiale à tout petit prix est idéale pour ceux qui souhaitent allier confort et économies.Avec une surface habitable de 89 m², la Focus Family vous offre un espace généreux et bien agencé. Elle comprend 4 chambres, parfaites pour accueillir toute votre famille, ainsi qu’un grand séjour traversant avec cuisine ouverte, pour un total de 4 pièces. Vous apprécierez également le garage intégré, pratique pour stationner votre véhicule ou pour du rangement supplémentaire.L’enduit bi-ton de la façade apporte une touche moderne et élégante à cette maison. De plus, les options les plus demandées par nos clients, comme les menuiseries en aluminium, sont disponibles pour personnaliser votre future habitation selon vos goûts.La Focus Family est une maison basse consommation, conforme à la réglementation environnementale RE2020. Elle est équipée des dernières innovations technologiques pour garantir une isolation thermique et phonique optimale, tout en étant économique et respectueuse de l’environnement.Ne faites aucune concession sur la qualité avec cette maison low cost de luxe. Babeau-Seguin met tout son savoir-faire et son professionnalisme dans la construction de la gamme Focus, en utilisant les meilleurs matériaux et une charpente traditionnelle.N’attendez plus pour réaliser votre projet de maison familiale à petit prix avec la Focus Family, une maison spacieuse, écolo et accessible à tous les budgets.
Frignicourt
TERRAINÀ Frignicourt, dans le département de la Marne, nous vous présentons ce terrain idéal, offrant une surface généreuse de 615 m², parfaitement adapté pour un projet de construction de maison. Ce bien rare se distingue par son environnement paisible et arboré, garantissant un cadre de vie agréable au quotidien. Grâce à un plan local d’urbanisme non contraignant, vous avez la liberté d’imaginer la maison de vos rêves dans ce lieu ensoleillé et sécurisé. La localisation de Frignicourt dans la région Grand Est est un véritable atout. À proximité immédiate, vous trouverez toutes les commodités nécessaires : commerces, écoles et un collège/l Lycée, facilitant le quotidien des familles. Le cœur de la ville offre une vue dégagée et un cadre champêtre, tout en restant calme, permettant ainsi de profiter d’un environnement serein. Quelques minutes vous séparent des attractions locales qui font de cette ville un lieu de vie prisé. Ce terrain est une opportunité à saisir, tant pour sa situation géographique que son potentiel. Ne manquez pas cette occasion unique d’investir dans un terrain prometteur à Frignicourt, idéal pour réaliser votre projet de vie. À noter qu’en tant que constructeur, nous ne sommes pas mandatés pour réaliser la vente de ce terrain.
Plichancourt
TERRAINDécouvrez cette parcelle de terrain à vendre dans le quartier prisé de Plichancourt, un havre de paix au cœur du département de la Marne. Avec une surface généreuse de 750 m² et viabilisée, ce lotissement vous offre l’opportunité idéale pour réaliser votre projet de construction de maison. Profitez d’un environnement calme et arboré, où la qualité de vie est une priorité. Son emplacement stratégique vous permet de bénéficier d’une luminosité exceptionnelle et d’une atmosphère sereine, parfaite pour accueillir votre future demeure. Plichancourt, située en région Grand Est, est une ville charmante qui allie tranquillité et proximité avec les commodités. Les habitants apprécient les nombreuses activités locales, ainsi que les espaces verts propices à la détente et aux loisirs. La ville bénéficie d’une situation géographique idéale, à quelques pas des services essentiels tels que commerces, écoles et transports. De plus, sa proximité avec les attractions touristiques de la région renforce le potentiel d’attractivité de ce terrain. L’emplacement est véritablement un atout, alliant la vie de village et le dynamisme d’une région en pleine expansion. Ne manquez pas cette occasion unique d’acquérir un terrain avec un fort potentiel d’aménagement. Ce bien rare saura séduire tous ceux qui rêvent de construire leur maison idéale dans un cadre enchanteur. À noter qu’en tant que constructeur, nous ne sommes pas mandatés pour réaliser la vente de ce terrain.
Frignicourt
TERRAIN ET MAISONSur ce terrain, nous vous proposons cette maison neuve : la Focus Family. Conçue par Babeau-Seguin, constructeur offrant le meilleur rapport qualité/prix du marché, cette maison familiale à tout petit prix est idéale pour ceux qui souhaitent allier confort et économies.Avec une surface habitable de 89 m², la Focus Family vous offre un espace généreux et bien agencé. Elle comprend 4 chambres, parfaites pour accueillir toute votre famille, ainsi qu’un grand séjour traversant avec cuisine ouverte, pour un total de 4 pièces. Vous apprécierez également le garage intégré, pratique pour stationner votre véhicule ou pour du rangement supplémentaire.L’enduit bi-ton de la façade apporte une touche moderne et élégante à cette maison. De plus, les options les plus demandées par nos clients, comme les menuiseries en aluminium, sont disponibles pour personnaliser votre future habitation selon vos goûts.La Focus Family est une maison basse consommation, conforme à la réglementation environnementale RE2020. Elle est équipée des dernières innovations technologiques pour garantir une isolation thermique et phonique optimale, tout en étant économique et respectueuse de l’environnement.Ne faites aucune concession sur la qualité avec cette maison low cost de luxe. Babeau-Seguin met tout son savoir-faire et son professionnalisme dans la construction de la gamme Focus, en utilisant les meilleurs matériaux et une charpente traditionnelle.N’attendez plus pour réaliser votre projet de maison familiale à petit prix avec la Focus Family, une maison spacieuse, écolo et accessible à tous les budgets.
Matignicourt-Goncourt
TERRAIN ET MAISONSur ce terrain, nous vous proposons cette maison neuve : la Focus Tiny, un modèle idéal pour les familles à la recherche d’un logement confortable et économique. Conçue par Babeau-Seguin, constructeur reconnu pour offrir le meilleur rapport qualité/prix du marché, cette maison de 73 m² saura répondre à toutes vos attentes.La Focus Tiny est une habitation traditionnelle de plain-pied avec un garage intégré de 15 m². Elle se distingue par son design sobre et moderne, ainsi que par ses excellentes performances en matière d’économie d’énergie, conforme à la norme RE2020. Cette maison basse consommation est parfaite pour ceux qui souhaitent réduire leur empreinte écologique tout en bénéficiant d’un confort optimal.À l’intérieur, vous découvrirez un grand séjour-cuisine traversant qui offre une agréable sensation d’espace. Les trois chambres à coucher de dimensions raisonnables accueilleront confortablement votre famille. Les espaces sont si bien répartis que vous ne vous sentirez jamais à l’étroit.Les caractéristiques principales de la Focus Tiny incluent un enduit bi-ton qui ajoute une touche d’élégance à l’extérieur de la maison. Parmi les options les plus demandées par nos clients, vous trouverez les menuiseries en aluminium et la pompe à chaleur, qui peuvent être ajoutées pour encore plus de confort et d’efficacité énergétique.Pour un prix défiant toute concurrence, vous bénéficiez des meilleures technologies et d’un service irréprochable. Notre équipe d’experts réalisera votre maison avec un haut niveau d’exigence, vous assurant des finitions soignées et une qualité de construction exceptionnelle.Ne manquez pas cette opportunité de construire la maison de vos rêves avec Babeau-Seguin. La Focus Tiny est prête à être construite sur ce terrain, et ce, au meilleur prix. Visitez-la en 3D sur notre site et laissez-vous séduire par ses nombreux atouts. Avec la Focus Tiny, petit prix rime avec grande prestation !
Matignicourt-Goncourt
TERRAINDécouvrez ce magnifique terrain à vendre de 555m², situé au cœur du charmant village de Matignicourt-Goncourt, dans le département de la Marne, au sein de la région Grand Est. Ce terrain, non viabilisé, présente des caractéristiques uniques qui en font une toile vierge idéale pour un projet de construction de maison. Avec un cadre champêtre, ensoleillé et arboré, vous pourrez profiter d’un environnement calme et serein, parfait pour établir votre havre de paix. Idéalement positionné à Matignicourt-Goncourt, ce terrain bénéficie d’une localisation qui allie tranquillité et accessibilité. Vous serez à proximité des commodités essentielles ainsi que des attractions locales qui font le charme de cette région. Entre la beauté des paysages environnants et la convivialité du village, vous trouverez tout le nécessaire pour vivre et s’épanouir dans un cadre agréable. Le potentiel de ce terrain est immense, offrant une belle opportunité pour ceux qui souhaitent bâtir leur rêve dans un environnement enchanteur. N’attendez plus pour envisager cette opportunité d’achat unique et laissez libre cours à votre imagination pour construire la maison de vos rêves. À noter qu’en tant que constructeur, nous ne sommes pas mandatés pour réaliser la vente de ce terrain.
Plichancourt
TERRAINA seulement 10 minutes de Vitry Le François! Joli terrain plat de 750 m² situé à Plichancourt, offrant un cadre de vie exceptionnel et très prisé. Ce terrain viabilisé présente une opportunité rare pour ceux qui envisagent de construire leur maison dans un environnement serein. Avec ses contours réguliers et sa superficie généreuse, il se prête à de nombreux projets de construction, permettant ainsi de réaliser la maison de vos rêves tout en profitant de la qualité de vie qu’offre cette charmante ville. Ne laissez pas passer cette opportunité. Contactez nous dès aujourd’hui pour explorer cette belle offre et commencer à dessiner votre futur chez-vous.
Plichancourt
TERRAIN ET MAISONSur ce terrain, nous vous proposons cette maison neuve, le modèle Mirabelle, construite par Pavillons Parot. Cette belle demeure de standing au look élégant et design saura vous séduire par ses nombreuses qualités.Avec une surface de 100 m², cette maison de plain-pied dispose de 3 chambres et de 4 pièces, offrant ainsi un espace de vie fonctionnel et facile à vivre. Le porche d’entrée avec colonne confère à sa façade un aspect original et accueillant, tandis que son très beau toit habillé de tuiles en terre cuite H10 ajoute une touche de charme supplémentaire.L’organisation intérieure est pensée pour votre confort, avec un espace jour et un espace nuit bien séparés. Les chambres donnent sur un dégagement, garantissant tranquillité et intimité. La pièce de vie, très lumineuse, avec cuisine ouverte, offre des dimensions généreuses, idéales pour recevoir famille et amis. De plus, le garage intégré vous apportera un espace de rangement supplémentaire et pratique.Cette maison neuve est basse consommation et conforme à la RE2020, ce qui en fait une habitation moderne et économique. Vous bénéficierez de très bonnes performances énergétiques, pour une maison douillette et très confortable.Laissez-vous tenter par le modèle Mirabelle, une nouveauté dans notre catalogue qui ne vous décevra pas?!
Frignicourt
TERRAINDécouvrez ce terrain à vendre, idéalement situé à Frignicourt, dans le département de la Marne. Avec une surface généreuse de 615 m², ce terrain non-viabilisé offre un excellent potentiel pour un projet de construction de maison. Entouré d’un cadre arboré et paisible, il se prête parfaitement à la création de votre cocon familial dans un environnement serein. Les caractéristiques uniques de la ville de Frignicourt, telles que son esprit de communauté et ses espaces verts, contribuent à faire de cet endroit un choix privilégié pour votre avenir. Frignicourt est une charmante commune de la région Grand Est, bénéficiant d’un accès facile aux commodités locales. Proche du cœur de ville, vous trouverez des commerces, des services essentiels ainsi que des infrastructures sportives et culturelles. Sa localisation avantageuse vous permet de profiter d’une tranquillité sans pareil tout en restant à proximité de la vie urbaine dynamique. Le terrain se situe dans un environnement idéal, à la fois calme et ensoleillé, garantissant ainsi un cadre de vie agréable pour toute la famille. Ce terrain représente une opportunité unique d’investir dans un bien immobilier avec un potentiel exceptionnel. N’attendez plus pour concrétiser votre projet de construction dans ce lieu idyllique. À noter qu’en tant que constructeur, nous ne sommes pas mandatés pour réaliser la vente de ce terrain.
L’actualité immobilière à Frignicourt
27/11/2023
02/11/2023
30/10/2023
20/10/2023
16/10/2023
16/10/2023