Maison à construire à Les Petites-Loges (51400)
Images
Description
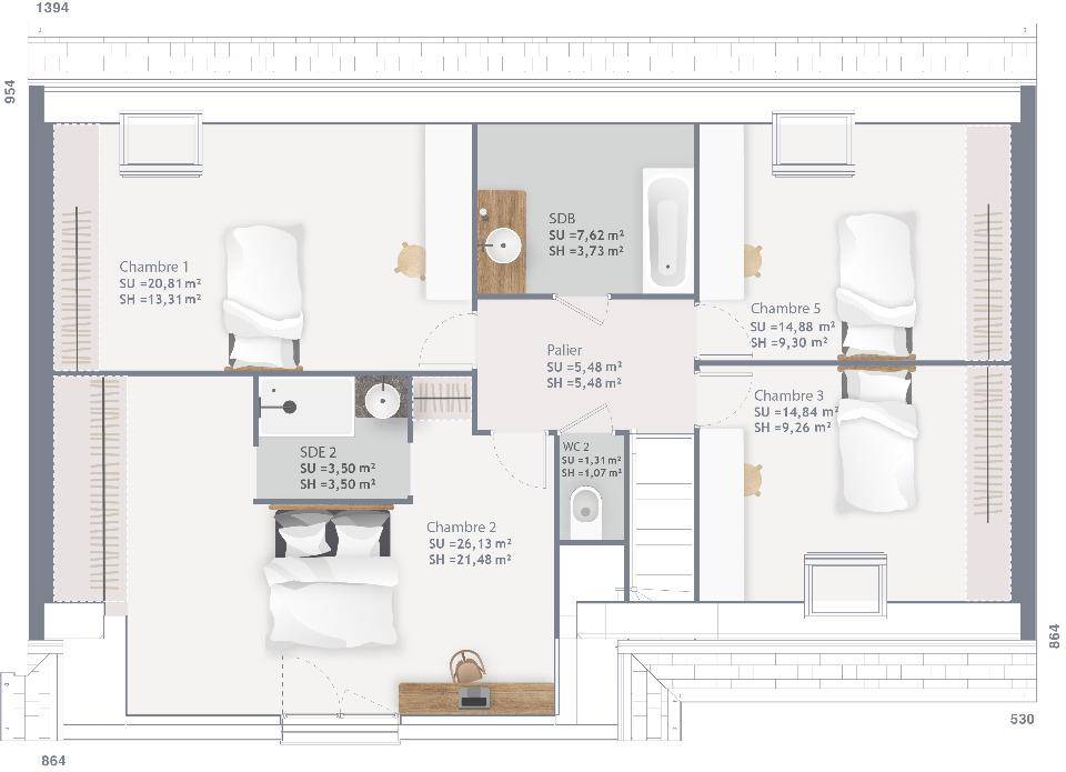
À acheter aux Petites Loges, maison neuve de 150 m² habitables bénéficiant de 5 chambres.
Le modèle de maison qui vous est présenté est Lumina 150 R+1 GI. Conception contemporaine pour ce projet de maison qui comprend 5 chambres avec espace pour les placards dont deux suites parentales avec dressing et salle d'eau privative (une au rez-de-chaussée), deux wc, une salle de bains, une grande pièce de vie ouverte sur la cuisine, un cellier et un garage.
La construction traditionnelle aux normes RE2020 de la maison est réalisée en brique et l'ensemble des matériaux utilisés sont de qualité afin de vous assurer un investissement durable.
Terrain constructible de 712m2 entièrement viabilisé aux Petites Loges parfaitement plat et idéalement situé proche de toutes les commodités. Environnement de qualité aux portes de Reims.
Les Petites Loges est une commune recherchée pour son axe direct, ses commodités à deux pas et sa proximité avec Reims, Verzy, Sept-Saulx, Trépail, Ambonnay, Bouzy, Vaudemange, Billy le Grand, Verzenay, Mailly-Champagne, Val-de-Vesle, Prunay, Beaumont sur Vesle, Mourmelon le Grand, Mourmelon le Petit, Sept Saulx, Bouy, Les Grandes Loges et Châlons en Champagne
Pour plus de renseignements vous pouvez me contacter , Nicolas GUILLAUME de l'agence Maisons France Confort de Cormontreuil au (Numéro supprimé)
Logement susceptibles de vous intéresser
Nous vous proposons de découvrir aussi cette sélection de logements situés à moins de 10km de Les Petites-Loges et qui seraient susceptibles de vous intéresser.

Les Petites-Loges
TERRAIN ET MAISONMaison neuve de 90m2 avec 3 chambres à vendre aux Petites Loges, construction avec des matériaux de qualité (ossature en brique) répondant aux dernières normes RE2020.Le modèle présenté est Eco Concept 90 R+1 GI. Des lignes très design pour cette maison qui se compose de 3 chambres avec placards, un espace de vie ouvert sur la cuisine, une salle de bain, deux WC (dont un au rez-de-chaussée), un cellier et un garage.La construction traditionnelle aux normes RE2020 de la maison est réalisée en brique et l’ensemble des matériaux utilisés sont de qualité afin de vous assurer un investissement durable.Terrain constructible de 712m2 entièrement viabilisé aux Petites Loges parfaitement plat et idéalement situé proche de toutes les commodités. Environnement de qualité aux portes de Reims.Les Petites Loges est une commune recherchée pour son axe direct, ses commodités à deux pas et sa proximité avec Reims, Verzy, Sept-Saulx, Trépail, Ambonnay, Bouzy, Vaudemange, Billy le Grand, Verzenay, Mailly-Champagne, Val-de-Vesle, Prunay, Beaumont sur Vesle, Mourmelon le Grand, Mourmelon le Petit, Sept Saulx, Bouy, Les Grandes Loges et Châlons en ChampagnePour plus de renseignements vous pouvez me contacter , Nicolas GUILLAUME de l’agence Maisons France Confort de Cormontreuil au (Numéro supprimé)

Les Petites-Loges
TERRAIN ET MAISONMaison neuve de 107m2 avec 4 chambres à vendre aux Petites Loges, construction avec des matériaux de qualité (ossature en brique) répondant aux dernières normes RE2020.Le modèle présenté est Eco Concept 115 R+1 GI. Des lignes très design pour cette maison qui se compose de 4 chambres avec placards (dont une suite parentale au rez-de-chaussée avec dressing et salle d’eau privative), un espace de vie ouvert sur la cuisine, une salle de bain, deux WC (dont un au rez-de-chaussée), un cellier et un garage.La construction traditionnelle aux normes RE2020 de la maison est réalisée en brique et l’ensemble des matériaux utilisés sont de qualité afin de vous assurer un investissement durable.Terrain constructible de 712m2 entièrement viabilisé aux Petites Loges parfaitement plat et idéalement situé proche de toutes les commodités. Environnement de qualité aux portes de Reims.Les Petites Loges est une commune recherchée pour son axe direct, ses commodités à deux pas et sa proximité avec Reims, Verzy, Sept-Saulx, Trépail, Ambonnay, Bouzy, Vaudemange, Billy le Grand, Verzenay, Mailly-Champagne, Val-de-Vesle, Prunay, Beaumont sur Vesle, Mourmelon le Grand, Mourmelon le Petit, Sept Saulx, Bouy, Les Grandes Loges et Châlons en ChampagnePour plus de renseignements vous pouvez me contacter , Nicolas GUILLAUME de l’agence Maisons France Confort de Cormontreuil au (Numéro supprimé)

Les Petites-Loges
TERRAIN ET MAISONÀ acheter aux Petites Loges : maison de plain-pied de 100m2 habitables avec 4 chambres et un garage.La maison neuve présentée sur ce terrain est Open PP GA 4 chambres design 100m². Elle est composée d’une pièce de vie ouverte sur la cuisine de 40m², d’une salle de bains avec baignoire et douche, un wc séparé, 4 chambres avec espace pour les placards, et un garage avec un accès par le cellier. Il est possible de personnaliser ces plans afin qu’ils répondent parfaitement à vos attentes, en ajoutant par exemple une suite parentale avec dressing, ou encore en aménageant le garage en pièce supplémentaire.La construction traditionnelle aux normes RE2020 de la maison est réalisée en brique et l’ensemble des matériaux utilisés sont de qualité afin de vous assurer un investissement durable.Terrain constructible de 712m2 entièrement viabilisé aux Petites Loges parfaitement plat et idéalement situé proche de toutes les commodités. Environnement de qualité aux portes de Reims.Les Petites Loges est une commune recherchée pour son axe direct, ses commodités à deux pas et sa proximité avec Reims, Verzy, Sept-Saulx, Trépail, Ambonnay, Bouzy, Vaudemange, Billy le Grand, Verzenay, Mailly-Champagne, Val-de-Vesle, Prunay, Beaumont sur Vesle, Mourmelon le Grand, Mourmelon le Petit, Sept Saulx, Bouy, Les Grandes Loges et Châlons en ChampagnePour plus de renseignements vous pouvez me contacter , Nicolas GUILLAUME de l’agence Maisons France Confort de Cormontreuil au (Numéro supprimé)

Les Petites-Loges
TERRAIN ET MAISONAux Petites Loges, grande maison neuve.La maison présentée sur ce terrain est Ultima 120. Architecture contemporaine pour cette maison à toit à 4 pans. Dans 120m2, l’intérieur est constitué d’une pièce de vie ouverte sur la cuisine, 4 chambres avec placards (dont une suite parentale avec salle d’eau privative et dressing) une salle de bains, un cellier et un garage. La construction traditionnelle aux normes RE2020 de la maison est réalisée en brique et l’ensemble des matériaux utilisés sont de qualité afin de vous assurer un investissement durable.Terrain constructible de 712m2 entièrement viabilisé aux Petites Loges parfaitement plat et idéalement situé proche de toutes les commodités. Environnement de qualité aux portes de Reims.Les Petites Loges est une commune recherchée pour son axe direct, ses commodités à deux pas et sa proximité avec Reims, Verzy, Sept-Saulx, Trépail, Ambonnay, Bouzy, Vaudemange, Billy le Grand, Verzenay, Mailly-Champagne, Val-de-Vesle, Prunay, Beaumont sur Vesle, Mourmelon le Grand, Mourmelon le Petit, Sept Saulx, Bouy, Les Grandes Loges et Châlons en ChampagnePour plus de renseignements vous pouvez me contacter , Nicolas GUILLAUME de l’agence Maisons France Confort de Cormontreuil au (Numéro supprimé)

Les Petites-Loges
TERRAIN ET MAISONAux Petites Loges, grande maison neuve.La maison présentée sur ce terrain est Ultima 160. Architecture contemporaine pour cette maison à toit à 4 pans. Dans 160m2, l’intérieur est constitué d’une pièce de vie ouverte sur la cuisine, 5 chambres avec placards (dont une suite parentale au rez-de-chaussée avec salle d’eau privative et dressing) une salle de bains, un cellier et un garage. La construction traditionnelle aux normes RE2020 de la maison est réalisée en brique et l’ensemble des matériaux utilisés sont de qualité afin de vous assurer un investissement durable.Terrain constructible de 712m2 entièrement viabilisé aux Petites Loges parfaitement plat et idéalement situé proche de toutes les commodités. Environnement de qualité aux portes de Reims.Les Petites Loges est une commune recherchée pour son axe direct, ses commodités à deux pas et sa proximité avec Reims, Verzy, Sept-Saulx, Trépail, Ambonnay, Bouzy, Vaudemange, Billy le Grand, Verzenay, Mailly-Champagne, Val-de-Vesle, Prunay, Beaumont sur Vesle, Mourmelon le Grand, Mourmelon le Petit, Sept Saulx, Bouy, Les Grandes Loges et Châlons en ChampagnePour plus de renseignements vous pouvez me contacter , Nicolas GUILLAUME de l’agence Maisons France Confort de Cormontreuil au (Numéro supprimé)

Les Petites-Loges
TERRAIN ET MAISONMaison neuve de 110m2 et 4 chambres à vendre aux Petites Loges construite en brique avec des matériaux de qualité répondant à la norme RE 2020. Le modèle de maison présenté sur le terrain est Rubic 110. Cette maison aux lignes très design totalisant 110m2 est composée d’une pièce de vie ouverte sur la cuisine, d’une salle d’eau, 4 chambres (dont une suite parentale avec dressing et salle d’eau privative), deux WC et un garage.Terrain constructible de 712m2 entièrement viabilisé aux Petites Loges parfaitement plat et idéalement situé proche de toutes les commodités. Environnement de qualité aux portes de Reims.Les Petites Loges est une commune recherchée pour son axe direct, ses commodités à deux pas et sa proximité avec Reims, Verzy, Sept-Saulx, Trépail, Ambonnay, Bouzy, Vaudemange, Billy le Grand, Verzenay, Mailly-Champagne, Val-de-Vesle, Prunay, Beaumont sur Vesle, Mourmelon le Grand, Mourmelon le Petit, Sept Saulx, Bouy, Les Grandes Loges et Châlons en ChampagnePour plus de renseignements vous pouvez me contacter , Nicolas GUILLAUME de l’agence Maisons France Confort de Cormontreuil au (Numéro supprimé)

Les Petites-Loges
TERRAIN ET MAISONMaison neuve de 6 pièces (122 m²) à vendre aux Petites Loges.La maison propose quatre chambres dont une suite parentale (avec salle d’eau et dressing), une salle de bains, une cuisine ouverte sur la pièce de vie , et un cellier.La construction traditionnelle aux normes RE2020 de la maison est réalisée en brique et l’ensemble des matériaux utilisés sont de qualité afin de vous assurer un investissement durable.Terrain constructible de 712m2 entièrement viabilisé aux Petites Loges parfaitement plat et idéalement situé proche de toutes les commodités. Environnement de qualité aux portes de Reims.Les Petites Loges est une commune recherchée pour son axe direct, ses commodités à deux pas et sa proximité avec Reims, Verzy, Sept-Saulx, Trépail, Ambonnay, Bouzy, Vaudemange, Billy le Grand, Verzenay, Mailly-Champagne, Val-de-Vesle, Prunay, Beaumont sur Vesle, Mourmelon le Grand, Mourmelon le Petit, Sept Saulx, Bouy, Les Grandes Loges et Châlons en ChampagnePour plus de renseignements vous pouvez me contacter , Nicolas GUILLAUME de l’agence Maisons France Confort de Cormontreuil au (Numéro supprimé)

Les Petites-Loges
TERRAIN ET MAISONÀ vendre aux Petites Loges une maison neuve individuelle de 90m² avec 4 chambres. Le modèle de maison est Open CA GA 90 design, il est composé d’une pièce de vie de 42m² ouverte sur la cuisine, 3 chambres avec placards dont une avec un dressing, un bureau au rez-de-chaussée, une salle de bain avec douche ou baignoire, deux wc (dont un au rez-de-chaussée), un cellier et un garage. Il est possible de personnaliser ces plans afin qu’ils répondent parfaitement à vos attentes.La construction traditionnelle aux normes RE2020 de la maison est réalisée en brique et l’ensemble des matériaux utilisés sont de qualité afin de vous assurer un investissement durable.Terrain constructible de 712m2 entièrement viabilisé aux Petites Loges parfaitement plat et idéalement situé proche de toutes les commodités. Environnement de qualité aux portes de Reims.Les Petites Loges est une commune recherchée pour son axe direct, ses commodités à deux pas et sa proximité avec Reims, Verzy, Sept-Saulx, Trépail, Ambonnay, Bouzy, Vaudemange, Billy le Grand, Verzenay, Mailly-Champagne, Val-de-Vesle, Prunay, Beaumont sur Vesle, Mourmelon le Grand, Mourmelon le Petit, Sept Saulx, Bouy, Les Grandes Loges et Châlons en ChampagnePour plus de renseignements vous pouvez me contacter , Nicolas GUILLAUME de l’agence Maisons France Confort de Cormontreuil au (Numéro supprimé)

Les Petites-Loges
TERRAIN ET MAISONMaison neuve avec 4 chambres et 98m² habitables à vendre aux Petites Loges.Le modèle présenté est Open Nord R+1 GA 98 trendy. Cette maison neuve individuelle est composée d’un espace de vie avec cuisine ouverte, une salle de bain avec douche et baignoire, deux wc dont un au rez-de-chaussée, 4 chambres avec placards (dont une au rez-de-chaussée, ainsi qu’une équipée d’un dressing à l’étage), un cellier et un garage. Il est possible de personnaliser ces plans afin qu’ils répondent parfaitement à vos attentes.La construction traditionnelle aux normes RE2020 de la maison est réalisée en brique et l’ensemble des matériaux utilisés sont de qualité afin de vous assurer un investissement durable.Terrain constructible de 712m2 entièrement viabilisé aux Petites Loges parfaitement plat et idéalement situé proche de toutes les commodités. Environnement de qualité aux portes de Reims.Les Petites Loges est une commune recherchée pour son axe direct, ses commodités à deux pas et sa proximité avec Reims, Verzy, Sept-Saulx, Trépail, Ambonnay, Bouzy, Vaudemange, Billy le Grand, Verzenay, Mailly-Champagne, Val-de-Vesle, Prunay, Beaumont sur Vesle, Mourmelon le Grand, Mourmelon le Petit, Sept Saulx, Bouy, Les Grandes Loges et Châlons en ChampagnePour plus de renseignements vous pouvez me contacter , Nicolas GUILLAUME de l’agence Maisons France Confort de Cormontreuil au (Numéro supprimé)
L’actualité immobilière à Les Petites-Loges





