Images
Description
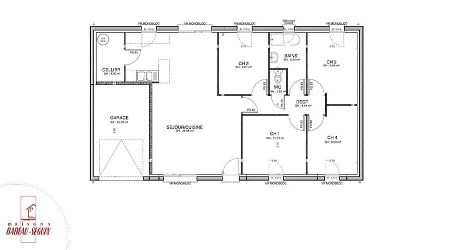
Sur ce terrain, nous vous proposons cette maison neuve : la Focus Family. Conçue par Babeau-Seguin, constructeur offrant le meilleur rapport qualité/prix du marché, cette maison familiale à tout petit prix est idéale pour ceux qui souhaitent allier confort et économies.
Avec une surface habitable de 89 m², la Focus Family vous offre un espace généreux et bien agencé. Elle comprend 4 chambres, parfaites pour accueillir toute votre famille, ainsi qu'un grand séjour traversant avec cuisine ouverte, pour un total de 4 pièces. Vous apprécierez également le garage intégré, pratique pour stationner votre véhicule ou pour du rangement supplémentaire.
L'enduit bi-ton de la façade apporte une touche moderne et élégante à cette maison. De plus, les options les plus demandées par nos clients, comme les menuiseries en aluminium, sont disponibles pour personnaliser votre future habitation selon vos goûts.
La Focus Family est une maison basse consommation, conforme à la réglementation environnementale RE2020. Elle est équipée des dernières innovations technologiques pour garantir une isolation thermique et phonique optimale, tout en étant économique et respectueuse de l'environnement.
Ne faites aucune concession sur la qualité avec cette maison low cost de luxe. Babeau-Seguin met tout son savoir-faire et son professionnalisme dans la construction de la gamme Focus, en utilisant les meilleurs matériaux et une charpente traditionnelle.
N'attendez plus pour réaliser votre projet de maison familiale à petit prix avec la Focus Family, une maison spacieuse, écolo et accessible à tous les budgets.
Logement susceptibles de vous intéresser
Nous vous proposons de découvrir aussi cette sélection de logements situés à moins de 10km de Matignicourt-Goncourt et qui seraient susceptibles de vous intéresser.

Frignicourt
TERRAINDécouvrez ce terrain de 18,85 ares situé dans le charmant village de Frignicourt, idéalement conçu pour la construction de votre future maison. Niché dans un lotissement attrayant, ce terrain non viabilisé présente une opportunité rare pour ceux qui souhaitent créer un espace de vie unique en son genre. Avec sa superficie généreuse et son environnement paisible, ce bien offre un cadre de vie de qualité, alliant tranquillité et sérénité. Ne manquez pas cette chance de réaliser votre projet tout en bénéficiant d’une vue dégagée et d’un espace sans vis-à-vis. Frignicourt, situé dans le département de la Marne, est un véritable havre de paix où il fait bon vivre. Ce village pittoresque ne manque pas d’atouts : à proximité des commerces et des commodités, vous trouverez tout ce dont vous avez besoin pour votre quotidien. Avec des établissements scolaires à proximité, comprenant collèges et lycées, cette localisation est parfaite pour les familles. L’environnement arboré et paisible, au cœur d’un cadre champêtre, vous assure un quotidien agréable, loin du tumulte urbain, tout en étant proche des principales axes de transport. Quel que soit votre projet, ce terrain à Frignicourt représente une opportunité d’achat unique à saisir. En résumé, ce terrain vous offre un potentiel exceptionnel pour implanter votre maison de rêve dans un quartier privilégié. N’attendez plus et envisagez dès maintenant cette opportunité à Frignicourt. À noter qu’en tant que constructeur, nous ne sommes pas mandatés pour réaliser la vente de ce terrain.

Frignicourt
TERRAIN ET MAISONSur ce terrain, nous vous proposons cette maison neuve : la Focus EVO, un modèle unique de 110 m² conçu par Babeau-Seguin, constructeur offrant le meilleur rapport qualité/prix du marché. Cette maison basse consommation est conforme à la norme RE2020, garantissant des performances énergétiques exceptionnelles.La Focus EVO se distingue par son concept évolutif, alliant une maison neuve prête à vivre et une maison prête à finir. Livrée avec 73 m² habitables, elle est conçue pour évoluer avec vos besoins futurs. Grâce à ses combles aménageables, vous pouvez facilement augmenter votre surface habitable à 110 m², ajoutant ainsi deux chambres supplémentaires et une salle de bain, pour un total de 4 chambres et 2 salles de bains.Les caractéristiques principales de cette maison incluent un garage intégré, un cellier, et des combles aménageables. Les options les plus demandées par nos clients, telles que la version Investisseur et les prises USB murales, sont également disponibles.La Focus EVO est idéale pour tous ceux qui recherchent une maison complète à un prix compétitif. Elle comprend une grande pièce de jour traversante, 4 chambres, une salle de bain, et un garage de 15 m². Que vous soyez un jeune couple, un célibataire ou une famille en pleine expansion, cette maison saura s’adapter à vos besoins et à vos envies.Ne manquez pas cette occasion unique de devenir propriétaire d’une maison évolutive, économe en énergie et conforme aux dernières normes environnementales. Contactez-nous dès aujourd’hui pour plus d’informations et pour planifier une visite.

Matignicourt-Goncourt
TERRAINVenez découvrir ce magnifique terrain non viabilisé de 555 m², idéalement situé dans le charmant lotissement de Matignicourt-Goncourt, dans le département de la Marne. Ce terrain, ensoleillé et arboré, offre un cadre champêtre et calme, parfait pour donner vie à votre projet de construction de maison. Sa configuration plate vous permettra de concevoir sereinement votre future demeure, en harmonie avec la nature environnante. Matignicourt-Goncourt est une petite perle du Grand Est, offrant un cadre de vie paisible et convivial. Profitez des attraits locaux tels que des promenades en pleine nature, tout en étant proche des commodités nécessaires pour votre quotidien. Ce village pittoresque est idéal pour les amoureux de la nature et ceux cherchant à s’éloigner du tumulte urbain tout en gardant un accès facile aux services de proximité. N’attendez plus pour saisir cette opportunité unique d’acquérir un terrain à fort potentiel ! À noter qu’en tant que constructeur, nous ne sommes pas mandatés pour réaliser la vente de ce terrain.

Matignicourt-Goncourt
TERRAIN ET MAISONSur ce terrain, nous vous proposons cette maison neuve : la Focus Family. Conçue par Babeau-Seguin, constructeur offrant le meilleur rapport qualité/prix du marché, cette maison familiale à tout petit prix est idéale pour ceux qui souhaitent allier confort et économies.Avec une surface habitable de 89 m², la Focus Family vous offre un espace généreux et bien agencé. Elle comprend 4 chambres, parfaites pour accueillir toute votre famille, ainsi qu’un grand séjour traversant avec cuisine ouverte, pour un total de 4 pièces. Vous apprécierez également le garage intégré, pratique pour stationner votre véhicule ou pour du rangement supplémentaire.L’enduit bi-ton de la façade apporte une touche moderne et élégante à cette maison. De plus, les options les plus demandées par nos clients, comme les menuiseries en aluminium, sont disponibles pour personnaliser votre future habitation selon vos goûts.La Focus Family est une maison basse consommation, conforme à la réglementation environnementale RE2020. Elle est équipée des dernières innovations technologiques pour garantir une isolation thermique et phonique optimale, tout en étant économique et respectueuse de l’environnement.Ne faites aucune concession sur la qualité avec cette maison low cost de luxe. Babeau-Seguin met tout son savoir-faire et son professionnalisme dans la construction de la gamme Focus, en utilisant les meilleurs matériaux et une charpente traditionnelle.N’attendez plus pour réaliser votre projet de maison familiale à petit prix avec la Focus Family, une maison spacieuse, écolo et accessible à tous les budgets.

Frignicourt
TERRAINÀ vendre : magnifique terrain de 615 m² situé dans le charmant lotissement de Frignicourt, au cœur du département de la Marne. Avec une surface idéale pour un projet de construction de maison, ce terrain non viabilisé offre des caractéristiques uniques telles qu’une vue dégagée et une exposition au soleil qui favoriseront un cadre de vie agréable. Que vous envisagiez une maison contemporaine ou traditionnelle, cet emplacement est parfait pour réaliser vos rêves de construction dans un quartier calme et recherché. Frignicourt, situé dans la région Grand Est, bénéficie d’une qualité de vie exceptionnelle avec toutes les commodités à proximité. Les commerces de centre-ville, les écoles, ainsi que des établissements secondaires tels que le collège et le lycée se trouvent à quelques pas, garantissant une accessibilité optimale. Profitez d’un environnement arboré et vérifiez les attractions locales qui font de Frignicourt un endroit privilégié pour s’installer. Ce terrain, à un prix attractif et dans un cadre champêtre, représente une opportunité à saisir qui saura séduire les acquéreurs en quête d’un bon investissement foncier. Ne laissez pas passer cette chance unique d’acquérir un terrain exceptionnel dans un secteur en plein essor. Contactez-nous dès aujourd’hui pour plus d’informations. À noter qu’en tant que constructeur, nous ne sommes pas mandatés pour réaliser la vente de ce terrain.

Frignicourt
TERRAIN ET MAISONSur ce terrain, nous vous proposons cette maison neuve : l’Intimity U de la gamme Evasihome, conçue par Babeau-Seguin, constructeur offrant le meilleur rapport qualité/prix du marché.Avec une surface de 95 m², cette maison en U vous séduira par sa conception ingénieuse et ses équipements modernes. Elle dispose de 3 chambres, dont une superbe suite parentale avec dressing et salle d’eau privative, offrant un espace de tranquillité pour les parents. Le grand séjour-cuisine central, baigné de lumière grâce à une verrière, est idéal pour les moments en famille. Les caractéristiques principales de cette maison incluent également des prises USB murales pour plus de praticité et un garage intégré pour votre confort. Les options les plus demandées par nos clients, telles que l’enduit bi-ton et la domotique, sont également disponibles pour personnaliser votre future demeure.Cette maison neuve est basse consommation et conforme à la RE2020, garantissant des économies d’énergie et un respect de l’environnement. Offrez-vous la tranquillité et le confort que vous méritez avec l’Intimity U. Rencontrons-nous en agence pour donner forme à votre rêve dès aujourd’hui !

Plichancourt
TERRAINDécouvrez ce magnifique terrain à vendre, d’une surface généreuse de 1257 m², situé dans le lotissement recherché de Plichancourt. Ce terrain viabilisé présente des caractéristiques uniques qui en font l’endroit idéal pour réaliser votre projet de construction de maison. Profitez d’un environnement calme et paisible, avec un cadre champêtre, arboré et ensoleillé, offrant une situation privilégiée pour vivre sereinement tout en étant proche des commodités. Idéalement situé dans la commune de Plichancourt, dans le département de la Marne en région Grand Est, ce terrain bénéficie d’un accès facile aux attractions locales ainsi qu’aux services essentiels. Les résidents de Plichancourt apprécient la tranquillité de leur quartier tout en ayant à proximité des infrastructures commerciales et récréatives, contribuant ainsi à une qualité de vie optimale. Les amoureux de la nature seront ravis d’explorer les espaces verts environnants et les activités de plein air accessibles depuis leur futur domicile. Ne manquez pas cette opportunité d’acquérir un terrain au potentiel remarquable, parfaitement adapté à votre projet de construction. Saisissez l’occasion de débuter la création de votre futur chez-vous dans ce cadre enchanteur ! À noter qu’en tant que constructeur, nous ne sommes pas mandatés pour réaliser la vente de ce terrain.

Plichancourt
TERRAIN ET MAISONSur ce terrain, nous vous proposons cette maison neuve : la Focus Family Sud. Conçue par Babeau-Seguin, constructeur reconnu pour offrir le meilleur rapport qualité/prix du marché, cette maison de 89 m² est idéale pour les familles à la recherche d’un logement moderne et économique.Vous avez un budget serré et rêvez d’une maison au style urbain et contemporain ? La Focus Family Sud est faite pour vous. Cette maison compacte et élégante dispose de 4 chambres et de 4 pièces, offrant un espace de vie optimisé pour votre confort. Le garage intégré de près de 15 m², l’enduit bi-ton et les tuiles Canal ajoutent une touche de charme et de fonctionnalité à cette habitation.Les options les plus demandées par nos clients, telles que les menuiseries en aluminium, sont disponibles pour personnaliser votre maison selon vos goûts. De plus, cette maison neuve est basse consommation et conforme à la réglementation environnementale RE2020, garantissant des économies d’énergie et un respect de l’environnement.Ne manquez pas cette opportunité de construire une maison accessible à tous les budgets sans faire l’impasse sur les équipements. Avec ses 4 chambres, un cellier, un large séjour et un garage, la Focus Family Sud n’a rien à envier aux autres modèles de la gamme Babeau-Seguin. Profitez d’une habitation qui allie petit prix et grande prestation.

Norrois
TERRAINNous vous proposons à la vente un magnifique terrain de 721 m² situé dans le charmant lotissement de Norrois, dans la Marne. Ce terrain viabilisé bénéficie d’une exposition ensoleillée et arborée, offrant un cadre champêtre et calme, idéal pour la construction de votre future maison. Avec un PLU non contraignant, ce bien rare vous permettra de concrétiser vos projets architecturaux dans un quartier privilégié, recherché pour sa qualité de vie. Située dans le département de la Marne, la commune de Norrois se distingue par son environnement paisible et verdoyant. À proximité, profitez des charmantes attractions locales qui incluent des chemins de randonnée pittoresques et des espaces de loisirs. Les diverses commodités comme les écoles, commerces, et services de santé sont facilement accessibles, ce qui fait de Norrois un lieu de vie idéal pour les familles et les jeunes couples en quête de tranquillité sans s’éloigner des avantages urbains. Ce terrain représente une opportunité unique pour ceux désireux de construire une maison dans un cadre naturel et serein. N’attendez plus pour visiter ce bien et donner vie à votre projet, contactez-nous dès aujourd’hui?!
L’actualité immobilière à Matignicourt-Goncourt





