Images
Description
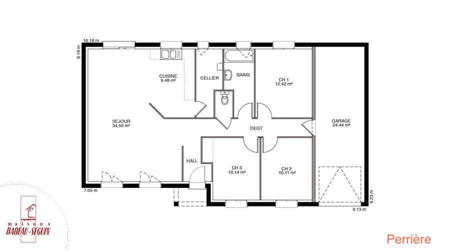
Sur ce terrain, nous vous proposons cette maison neuve Perrière Sud, un modèle de plain-pied au design typique du sud, alliant tradition et modernité. Avec une surface de 97 m², cette maison est idéale pour une famille grâce à ses 3 chambres et ses 4 pièces.
La Perrière Sud se distingue par ses deux hauteurs de toits, qui cassent la monotonie de la façade et apportent une touche d'originalité. Vous avez le choix entre une toiture à 2 pans ou à 4 pans, selon vos préférences esthétiques. De plus, cette maison peut être agrémentée d'un garage ou d'un sous-sol en option, pour répondre à vos besoins de rangement et de stationnement.
Les tuiles Canal ajoutent une note de charme et d'authenticité à cette maison moderne. Pour encore plus de confort et de personnalisation, les options les plus demandées par nos clients sont disponibles : un enduit bi-ton pour une façade élégante et des menuiseries en aluminium pour une meilleure isolation et un design contemporain.
Cette maison neuve est basse consommation et conforme à la réglementation environnementale RE2020, garantissant des performances énergétiques optimales et un impact environnemental réduit.
Le constructeur Babeau-Seguin, reconnu pour offrir le meilleur rapport qualité/prix du marché, vous propose cette maison familiale par excellence, qui saura vous séduire par son design et ses nombreuses possibilités de personnalisation.
N'attendez plus pour faire de la Perrière Sud votre future maison !
Logement susceptibles de vous intéresser
Nous vous proposons de découvrir aussi cette sélection de logements situés à moins de 10km de Matougues et qui seraient susceptibles de vous intéresser.
Saint-Martin-sur-le-Pré
TERRAIN ET MAISONSur ce terrain, nous vous proposons cette maison neuve, le modèle Ménilière, une maison plain-pied moderne qui intègre de base un garage et une longue galerie sur la face avant. Avec une surface de 100 m², cette maison dispose de 4 chambres et de 4 pièces, offrant ainsi un espace de vie confortable et fonctionnel pour toute la famille.Véritable « »tout-en-un » » de la maison individuelle, ce modèle est idéal pour votre projet de construction sur-mesure. La Ménilière est disponible avec un toit à 2 pans ou 4 pans, selon vos préférences esthétiques. Le garage intégré et la galerie avant ajoutent une touche pratique et élégante à cette maison.Les options les plus demandées par nos clients, telles que les menuiseries en aluminium et le sous-sol, sont également disponibles pour personnaliser davantage votre future maison. De plus, cette maison neuve est basse consommation et conforme à la réglementation environnementale RE2020, garantissant ainsi des performances énergétiques optimales et un impact environnemental réduit.Le constructeur Babeau-Seguin, reconnu pour offrir le meilleur rapport qualité/prix du marché, vous accompagne dans la réalisation de votre projet immobilier. Avec un prix serré et une personnalisation facile, il n’est pas étonnant que la Ménilière soit dans le top 5 des ventes de Babeau-Seguin.Ne manquez pas cette opportunité unique de devenir propriétaire d’une maison moderne, économe en énergie et parfaitement adaptée à vos besoins. Contactez-nous dès maintenant pour plus d’informations et pour planifier une visite de ce modèle exceptionnel.
Saint-Martin-sur-le-Pré
TERRAINNous vous présentons un terrain non-viabilisé d’une superficie généreuse de 525 m², idéalement situé à Saint-Martin-sur-le-Pré. Ce terrain offre une excellente opportunité pour l’élaboration d’un projet de construction de maison, bénéficiant d’une configuration plate et d’un environnement serein et arboré. Avec un prix attractif et un PLU non contraignant, ce bien est parfait pour réaliser la maison de ses rêves dans une commune agréable et accueillante. Saint-Martin-sur-le-Pré, située dans le département de la Marne en région Grand Est, combine le charme d’un cadre champêtre avec l’accessibilité aux infrastructures urbaines. Profitez d’un cœur de ville dynamique, offrant de nombreux commerces, commodités et établissements scolaires, allant des écoles aux collèges et lycées à proximité. Cette localité se distingue également par sa vue dégagée et sa tranquillité, le tout à quelques minutes des attractions locales et des services de la ville voisine. Ne manquez pas cette occasion unique d’acquérir un terrain au potentiel inégalé. Contactez-nous dès aujourd’hui pour explorer les possibilités de ce merveilleux projet de construction. À noter qu’en tant que constructeur, nous ne sommes pas mandatés pour réaliser la vente de ce terrain.
Vraux
TERRAIN ET MAISONSur ce terrain, nous vous proposons cette maison neuve : la Focus Cosy Sud. Conçue par Babeau-Seguin, constructeur reconnu pour offrir le meilleur rapport qualité/prix du marché, cette maison familiale et accessible est idéale pour ceux qui souhaitent devenir propriétaires sans se ruiner.Avec une surface de 79 m², la Focus Cosy Sud dispose de 3 chambres, d’une salle de bain, d’un WC indépendant, d’un cellier et d’un garage intégré de 15 m². Son plan bien pensé et sa taille compacte lui permettent de s’adapter à tous types de terrains, même les plus étroits.Cette version Sud se distingue par son toit à faible pente et ses tuiles Canal, parfaitement adaptées aux régions ensoleillées. L’enduit bi-ton ajoute une touche d’élégance à l’ensemble, rendant cette maison aussi esthétique que fonctionnelle.Les options les plus demandées par nos clients, telles que les menuiseries en aluminium, sont également disponibles pour personnaliser votre future maison selon vos goûts et besoins.En plus de son design moderne et de ses équipements complets, la Focus Cosy Sud est une maison basse consommation, conforme à la réglementation environnementale RE2020. Vous bénéficierez ainsi d’un confort optimal tout en réalisant des économies d’énergie.Ne manquez pas cette opportunité unique de devenir propriétaire d’une maison neuve, performante et accessible. Contactez-nous dès maintenant pour plus d’informations et pour découvrir toutes les possibilités offertes par le modèle Focus CosySud de Babeau-Seguin.
Vraux
TERRAINDécouvrez ce terrain exceptionnel de 595 m² à Vraux, un véritable écrin de nature idéalement situé pour concrétiser votre projet de construction de maison. Ce terrain non-viabilisé, ensoleillé et arboré, vous séduira par son environnement paisible au cœur d’un cadre champêtre. Avec sa vue dégagée et ses caractéristiques uniques, il représente une opportunité rare pour les acheteurs souhaitant bâtir leur maison de rêve dans une ville charmante. Située dans le département de la Marne en région Grand Est, Vraux est une commune tranquille offrant un cadre de vie agréable. Les commodités locales vous permettront de profiter d’un quotidien facilité, tout en bénéficiant de l’attrait des attractions environnantes. Que ce soit pour une balade au bord des rivières ou pour explorer la richesse historique de la région, Vraux allie tranquillité et accessibilité. Loin de l’effervescence urbaine, cet emplacement vous garantit un cadre de vie serein et agréable. Ce terrain représente une opportunité unique pour les intéressés souhaitant bâtir leur future maison. N’attendez plus pour envisager cet espace verdoyant qui saura répondre à toutes vos aspirations. À noter qu’en tant que constructeur, nous ne sommes pas mandatés pour réaliser la vente de ce terrain.
Châlons-en-Champagne
TERRAIN ET MAISONSur ce terrain, nous vous proposons cette maison neuve : la Provencière Urban Serie, un modèle moderne qui s’adapte parfaitement aux terrains urbains. Avec une surface de 82 m², cette maison dispose de 3 chambres et d’une pièce de vie spacieuse. Inspirée de l’architecture typique des maisons du sud de la France, la Provencière Urban Serie conserve tout le charme et le confort de la Provencière traditionnelle, tout en étant optimisée pour les terrains urbains. Avec une longueur de façade variant de 12 à 16 mètres, elle s’adapte à tous les terrains et permet de profiter des charmes de la Provencière où que vous souhaitiez faire construire.Les caractéristiques principales de cette maison incluent un garage intégré, une dalle étage en béton et des combles aménagés, offrant ainsi un espace de vie supplémentaire. Les options les plus demandées par nos clients, telles que la charpente traditionnelle, les menuiseries en aluminium et l’enduit bi-ton, sont également disponibles pour personnaliser votre maison selon vos goûts.Cette maison neuve est basse consommation et conforme à la réglementation environnementale RE2020, garantissant ainsi une performance énergétique optimale et un confort de vie inégalé.Le constructeur Babeau-Seguin, reconnu pour offrir le meilleur rapport qualité/prix du marché, vous accompagne dans la réalisation de votre projet immobilier. Ne manquez pas cette opportunité unique de devenir propriétaire d’une maison alliant tradition et modernité, parfaitement adaptée aux terrains urbains.
Châlons-en-Champagne
TERRAINNous vous proposons à la vente un terrain de 376 m², idéalement situé dans le charmant lotissement de la ville de Châlons-en-Champagne. Ce terrain, entièrement viabilisé, offre une opportunité unique pour la construction de votre maison de rêve. Avec une surface bien agencée, il saura s’adapter à votre projet personnalisé. Ce cadre idyllique, au cœur d’une ville dynamique, est parfait pour bénéficier d’une qualité de vie exceptionnelle tout en profitant d’un environnement paisible et arboré. Châlons-en-Champagne, localisée dans le département de la Marne en région Grand Est, se distingue par son patrimoine culturel riche et ses nombreuses commodités à proximité. La ville se situe à quelques pas des commerces, écoles, ainsi que des établissements scolaires tels que collèges et lycées. Vous apprécierez également l’accès à des espaces verts apaisants ainsi qu’une vue dégagée, offrant ainsi un cadre paisible et ensoleillé. En choisissant ce terrain, vous bénéficierez d’un emplacement de choix dans un quartier recherché, combinant tranquillité et proximité des activités urbaines. Ne manquez pas cette opportunité d’acquérir un terrain à fort potentiel. Ce bien rare saura séduire les acheteurs en quête d’un projet de construction dans un cadre privilégié. À noter qu’en tant que constructeur, nous ne sommes pas mandatés pour réaliser la vente de ce terrain.
Matougues
TERRAIN ET MAISONSur ce terrain, nous vous proposons cette maison neuve Perrière Sud, un modèle de plain-pied au design typique du sud, alliant tradition et modernité. Avec une surface de 97 m², cette maison est idéale pour une famille grâce à ses 3 chambres et ses 4 pièces. La Perrière Sud se distingue par ses deux hauteurs de toits, qui cassent la monotonie de la façade et apportent une touche d’originalité. Vous avez le choix entre une toiture à 2 pans ou à 4 pans, selon vos préférences esthétiques. De plus, cette maison peut être agrémentée d’un garage ou d’un sous-sol en option, pour répondre à vos besoins de rangement et de stationnement.Les tuiles Canal ajoutent une note de charme et d’authenticité à cette maison moderne. Pour encore plus de confort et de personnalisation, les options les plus demandées par nos clients sont disponibles : un enduit bi-ton pour une façade élégante et des menuiseries en aluminium pour une meilleure isolation et un design contemporain.Cette maison neuve est basse consommation et conforme à la réglementation environnementale RE2020, garantissant des performances énergétiques optimales et un impact environnemental réduit. Le constructeur Babeau-Seguin, reconnu pour offrir le meilleur rapport qualité/prix du marché, vous propose cette maison familiale par excellence, qui saura vous séduire par son design et ses nombreuses possibilités de personnalisation. N’attendez plus pour faire de la Perrière Sud votre future maison !
Matougues
TERRAINÀ saisir, magnifique terrain viabilisé d’une surface généreuse de 603m² situé dans la commune paisible de Matougues, dans le département de la Marne (51). Ce terrain plat se prête parfaitement à la réalisation d’un projet de construction de maison, dans un cadre champêtre et arboré, garantissant une qualité de vie exceptionnelle. Profitez d’un environnement calme, idéal pour accueillir votre future résidence, dans un quartier privilégié qui allie sécurité et ensoleillement. Matougues est une charmante ville du Grand Est, où le charme de la ruralité côtoie des commodités modernes. Vous trouverez à proximité des commerces de première nécessité, écoles et services, tout en étant à quelques minutes des attractions locales qui animent le territoire. Grâce à sa situation idéale, ce terrain est un point de départ parfait pour découvrir les beautés de la région, tout en bénéficiant d’un accès rapide aux grands axes routiers. Ne manquez pas cette opportunité unique d’investir dans un lieu où il fait bon vivre. Avec un potentiel aussi prometteur, ce terrain est une occasion à considérer sérieusement. Contactez-nous dès aujourd’hui pour en savoir plus et envisager votre avenir ici ! À noter qu’en tant que constructeur, nous ne sommes pas mandatés pour réaliser la vente de ce terrain.
Châlons-en-Champagne
TERRAIN ET MAISONSur ce terrain, nous vous proposons cette maison neuve : la Focus Cosy Sud. Conçue par Babeau-Seguin, constructeur reconnu pour offrir le meilleur rapport qualité/prix du marché, cette maison familiale et accessible est idéale pour ceux qui souhaitent devenir propriétaires sans se ruiner.Avec une surface de 79 m², la Focus Cosy Sud dispose de 3 chambres, d’une salle de bain, d’un WC indépendant, d’un cellier et d’un garage intégré de 15 m². Son plan bien pensé et sa taille compacte lui permettent de s’adapter à tous types de terrains, même les plus étroits.Cette version Sud se distingue par son toit à faible pente et ses tuiles Canal, parfaitement adaptées aux régions ensoleillées. L’enduit bi-ton ajoute une touche d’élégance à l’ensemble, rendant cette maison aussi esthétique que fonctionnelle.Les options les plus demandées par nos clients, telles que les menuiseries en aluminium, sont également disponibles pour personnaliser votre future maison selon vos goûts et besoins.En plus de son design moderne et de ses équipements complets, la Focus Cosy Sud est une maison basse consommation, conforme à la réglementation environnementale RE2020. Vous bénéficierez ainsi d’un confort optimal tout en réalisant des économies d’énergie.Ne manquez pas cette opportunité unique de devenir propriétaire d’une maison neuve, performante et accessible. Contactez-nous dès maintenant pour plus d’informations et pour découvrir toutes les possibilités offertes par le modèle Focus CosySud de Babeau-Seguin.
L’actualité immobilière à Matougues
27/11/2023
02/11/2023
30/10/2023
20/10/2023
16/10/2023
16/10/2023