Images
Description
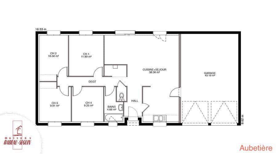
Sur ce terrain, nous vous proposons cette maison neuve Aubetière, un modèle traditionnel de la gamme Babeau-Seguin, constructeur reconnu pour offrir le meilleur rapport qualité/prix du marché. Avec une surface de 88 m², cette maison de plain-pied se compose de 4 pièces, dont 3 chambres spacieuses, idéales pour accueillir toute votre famille.
L'Aubetière se distingue par son excellent rapport qualité/prix et sa conformité aux normes RE2020, garantissant une basse consommation énergétique. Vous avez la possibilité de personnaliser votre maison en choisissant entre un toit à 2 pans ou à 4 pans, ainsi qu'en ajoutant un garage ou un sous-sol selon vos besoins.
Cette maison moderne et fonctionnelle est conçue pour s'adapter à vos envies et à votre mode de vie. Profitez de la flexibilité offerte par les nombreux plans et déclinaisons disponibles pour créer votre maison individuelle sur mesure.
Ne manquez pas cette opportunité de donner vie à votre projet de construction avec le modèle Aubetière, une maison neuve qui allie confort, économie d'énergie et personnalisation. Contactez-nous dès maintenant pour plus d'informations et pour découvrir toutes les options disponibles pour votre future maison.
Logement susceptibles de vous intéresser
Nous vous proposons de découvrir aussi cette sélection de logements situés à moins de 10km de Mœurs-Verdey et qui seraient susceptibles de vous intéresser.

Esternay
TERRAINGrégory Bié vous présente ce beau terrain plat de 657m2 situé au centre ville d’un charmant village de la Marne proche axe N4 à 1h de Paris, 20 minutes de Provins et moins de 10 minutes d’Esternay. Commerces dans village, écoles bus à pied proche.Le terrain est plat et borné, façade 18ml.DPE/GES : Non soumis. Prix de vente : 32600 euros Honoraires à la charge du vendeur.Pour visiter et vous accompagner dans votre projet, contactez Grégory BIÉ, au (Numéro supprimé) ou, par courriel à (Email supprimé).Selon l’article L.561.5 du Code Monétaire et Financier, pour l’organisation de la visite, la présentation d’une pièce d’identité vous sera demandée.Cette présente annonce a été rédigée sous la responsabilité éditoriale de Grégory BIÉ agissant sous le statut d’agent commercial immatriculé au RSAC MEAUX 901 202 283 auprès de SAS PROPRIETES PRIVEES, au capital de 44 920 euros, ZAC LE CHÊNE FERRÉ – 44 ALLÉE DES CINQ CONTINENTS 44120 VERTOU; SIRET 487 624 777 00040, RCS Nantes. Carte Professionnelle Transactions sur immeubles et fonds de commerce (T) et Gestion immobilière (G) n°CPI 4401 2016 000 010 388 délivrée par la CCI Nantes – Saint Nazaire. Compte séquestre n(Numéro supprimé)67 BPA SAINT-SEBASTIEN-SUR-LOIRE (44230). Garantie GALIAN-SMABTP – 89 rue de la Boétie, 75008 Paris – n°28137 J pour 2 000 000 euros pour T et 120 000 euros pour G. Assurance responsabilité civile professionnelle par GALIAN-SMABTP n° de police 28137.JMandat réf : 395556 – Le professionnel garantit et sécurise votre projet immobilier. Grégory BIÉ (EI) Agent Commercial – Numéro RSAC : MEAUX 901 202 283 – .

Le Gault-Soigny
TERRAIN ET MAISONSur ce terrain, nous vous proposons cette maison neuve Aubetière, un modèle traditionnel de la gamme Babeau-Seguin, constructeur reconnu pour offrir le meilleur rapport qualité/prix du marché. Avec une surface de 88 m², cette maison de plain-pied se compose de 4 pièces, dont 3 chambres spacieuses, idéales pour accueillir toute votre famille.L’Aubetière se distingue par son excellent rapport qualité/prix et sa conformité aux normes RE2020, garantissant une basse consommation énergétique. Vous avez la possibilité de personnaliser votre maison en choisissant entre un toit à 2 pans ou à 4 pans, ainsi qu’en ajoutant un garage ou un sous-sol selon vos besoins.Cette maison moderne et fonctionnelle est conçue pour s’adapter à vos envies et à votre mode de vie. Profitez de la flexibilité offerte par les nombreux plans et déclinaisons disponibles pour créer votre maison individuelle sur mesure.Ne manquez pas cette opportunité de donner vie à votre projet de construction avec le modèle Aubetière, une maison neuve qui allie confort, économie d’énergie et personnalisation. Contactez-nous dès maintenant pour plus d’informations et pour découvrir toutes les options disponibles pour votre future maison.

Le Gault-Soigny
TERRAINÀ vendre, un magnifique terrain plat de 1408 m², situé au cœur de la charmante commune de Le Gault-Soigny, dans le département de la Marne, Grand Est. Ce terrain, encore non viabilisé, offre un potentiel exceptionnel pour la construction de votre future maison dans un cadre champêtre et au calme, parfait pour les amateurs de nature et de tranquillité. Imaginez votre projet de construction dans cet environnement paisible, à proximité des commodités tout en bénéficiant d’un emplacement privilégié. Le Gault-Soigny est une commune dynamique, connue pour son charme rural et ses paysages enchanteurs. Vous pourrez profiter de la tranquillité de la campagne tout en restant à proximité des principales attractions locales. La région offre diverses commodités, notamment des commerces de proximité, des écoles, et des activités de plein air qui raviront les familles. Également proche des grands axes routiers, Le Gault-Soigny garantit un accès facile aux villes environnantes, alliant ainsi sérénité et praticité. Ne laissez pas passer cette belle opportunité d’acquérir un terrain au potentiel certain, idéalement situé. Nous vous invitons à envisager ce projet immobilier unique. À noter qu’en tant que constructeur, nous ne sommes pas mandatés pour réaliser la vente de ce terrain.

La Forestière
TERRAIN ET MAISONSur ce terrain, nous vous proposons cette maison neuve : la Focus Family. Conçue par Babeau-Seguin, constructeur offrant le meilleur rapport qualité/prix du marché, cette maison familiale à tout petit prix est idéale pour ceux qui souhaitent allier confort et économies.Avec une surface habitable de 89 m², la Focus Family vous offre un espace généreux et bien agencé. Elle comprend 4 chambres, parfaites pour accueillir toute votre famille, ainsi qu’un grand séjour traversant avec cuisine ouverte, pour un total de 4 pièces. Vous apprécierez également le garage intégré, pratique pour stationner votre véhicule ou pour du rangement supplémentaire.L’enduit bi-ton de la façade apporte une touche moderne et élégante à cette maison. De plus, les options les plus demandées par nos clients, comme les menuiseries en aluminium, sont disponibles pour personnaliser votre future habitation selon vos goûts.La Focus Family est une maison basse consommation, conforme à la réglementation environnementale RE2020. Elle est équipée des dernières innovations technologiques pour garantir une isolation thermique et phonique optimale, tout en étant économique et respectueuse de l’environnement.Ne faites aucune concession sur la qualité avec cette maison low cost de luxe. Babeau-Seguin met tout son savoir-faire et son professionnalisme dans la construction de la gamme Focus, en utilisant les meilleurs matériaux et une charpente traditionnelle.N’attendez plus pour réaliser votre projet de maison familiale à petit prix avec la Focus Family, une maison spacieuse, écolo et accessible à tous les budgets.

La Forestière
TERRAINNous vous présentons un terrain exceptionnel de 3 469 m², situé dans un cadre champêtre, idéal pour un projet de construction de maison. Ce terrain plat offre un environnement calme, propice à la sérénité et à la vie paisible, tout en étant à proximité de commodités essentielles. Une opportunité rare d’acquérir un espace où votre vision peut prendre vie dans la charmante commune de La Forestière, au cœur de la région Grand Est. La Forestière, dans le département de la Marne, est une ville qui mêle tradition et modernité. Son atmosphère conviviale et chaleureuse en fait un lieu de vie agréable pour les familles. À proximité, vous trouverez diverses attractions locales, telles que des espaces verts propices à la détente. Cette localisation stratégique permet un accès facilité aux grandes villes environnantes tout en préservant la tranquillité de la campagne. Ce terrain représente une opportunité unique de créer un foyer dans un cadre apaisant, tout en profitant des atouts d’une région dynamique. Ne manquez pas cette chance d’acquérir un terrain au potentiel exceptionnel. Contactez-nous dès maintenant pour découvrir cette opportunité d’achat unique. À noter qu’en tant que constructeur, nous ne sommes pas mandatés pour réaliser la vente de ce terrain.

Sézanne
TERRAIN ET MAISONSur ce terrain, nous vous proposons cette maison neuve : la Focus Family city. Conçue par Babeau-Seguin, constructeur reconnu pour offrir le meilleur rapport qualité/prix du marché, cette maison de 91 m² est idéale pour les familles à la recherche d’un logement confortable et économique.### Une surface généreuse pour une maison à petit prixLa Focus Family city est une maison lumineuse et écologique, offrant une belle surface habitable de 91 m². C’est l’option idéale pour les familles cherchant une maison de qualité avec une surface confortable pour un budget limité. Respectueuse de la règlementation RE2020 pour l’environnement, elle offre par conséquent un excellent rapport qualité-prix.### Un agencement parfaitement optimiséCette maison de plain-pied est parfaitement agencée avec ses quatre chambres de plus de 10 m² chacune, offrant ainsi un espace de vie confortable pour chaque membre de la famille. Une grande pièce de vie lumineuse traversante avec cuisine ouverte, un cellier en prolongement ainsi qu’une salle de bain avec baignoire et des WC séparés viennent compléter son aménagement. ### Caractéristiques principales- **Surface habitable** : 91 m²- **Nombre de chambres** : 4- **Nombre de pièces** : 4- **Cellier** : Oui- **Basse Consommation** : Oui, conforme à la RE2020### Options les plus demandéesPour répondre aux attentes des clients, cette maison peut être équipée de domotique pour un confort optimal et d’un enduit bi-ton pour une touche d’originalité sur la façade avant ou arrière.### Économie à la construction, économie à la consommationCette maison neuve écologique répond aux standards stricts de la RE2020, garantissant ainsi des économies à la construction et à la consommation. Ne manquez pas cette opportunité unique d’acquérir une maison neuve, basse consommation, et parfaitement adaptée aux besoins de votre famille. Contactez-nous dès maintenant pour plus d’informations et pour planifier une visite du terrain.

Sézanne
TERRAINSituation idéale pour votre projet de construction de maison ! Ce terrain de 800 mètres carrés, situé dans la charmante commune de Sézanne, est disponible à la vente à un prix attractif de 80 000 euros. Il offre de nombreuses possibilités pour réaliser votre rêve immobilier. Situé dans le département de la Marne, ce terrain bénéficie d’un emplacement stratégique « diffus », dans un quartier calme et résidentiel. Vous serez séduit par son cadre verdoyant et paisible à seulement cinq minutes à pied du centre-ville, offrant un accès facile aux commerces et aux services de proximité. La ville de Sézanne est réputée pour sa qualité de vie, son dynamisme et ses nombreux attraits. Vous pourrez profiter des nombreuses activités culturelles et sportives proposées, ainsi que de sa proximité avec les vignobles champenois. De plus, grâce aux commodités offertes par sa localisation, vous pourrez facilement accéder aux principales villes environnantes telles que Reims, Troyes ou Paris. Ne manquez pas l’opportunité d’acquérir ce terrain idéalement situé, offrant un cadre de vie paisible tout en étant proche des commodités. N’attendez plus pour réaliser votre projet de construction de maison sur ce terrain de 800 mètres carrés à Sézanne. Contactez-nous dès maintenant pour organiser une visite et découvrir son potentiel !

Soizy-aux-Bois
TERRAIN ET MAISONSur ce terrain, nous vous proposons cette maison neuve Aubetière, un modèle traditionnel de la gamme Babeau-Seguin, constructeur reconnu pour offrir le meilleur rapport qualité/prix du marché. Avec une surface de 88 m², cette maison de plain-pied se compose de 4 pièces, dont 3 chambres spacieuses, idéales pour accueillir toute votre famille.L’Aubetière se distingue par son excellent rapport qualité/prix et sa conformité aux normes RE2020, garantissant une basse consommation énergétique. Vous avez la possibilité de personnaliser votre maison en choisissant entre un toit à 2 pans ou à 4 pans, ainsi qu’en ajoutant un garage ou un sous-sol selon vos besoins.Cette maison moderne et fonctionnelle est conçue pour s’adapter à vos envies et à votre mode de vie. Profitez de la flexibilité offerte par les nombreux plans et déclinaisons disponibles pour créer votre maison individuelle sur mesure.Ne manquez pas cette opportunité de donner vie à votre projet de construction avec le modèle Aubetière, une maison neuve qui allie confort, économie d’énergie et personnalisation. Contactez-nous dès maintenant pour plus d’informations et pour découvrir toutes les options disponibles pour votre future maison.

Esternay
TERRAINSophie CATOLICOT vous présente « SUZY », terrain à bâtir situé sur la commune de CHAMPAGNEMAY (51310), proposée au prix de 49 000 euros, honoraires charge vendeur.Terrain à bâtir de 1900m2, avec une façade de 9 mètres, terrain plat, ouvert sur la plaine.Non viabilisé, mais électricité, eau et téléphone en bord de route.Assainissement individuel à prévoir.Pour visiter et vous accompagner dans votre projet, contactez Sophie CATOLICOT, votre conseillère immobilier indépendante auprès de la SAS PROPRIETES PRIVEES, au (Numéro supprimé) ou par mail (Email supprimé)RSAC REIMS 493 718 639 – Mandat réf 403135ATO – Le professionnel garantie et sécurise votre projet immobilier.SAS PROPRIETES PRIVEES, 44 allée des 5 continents, ZAC Le Chêne Ferré, 44120 Vertou – CPI 4401 2016 000 010 388 CCI Nantes-Saint Nazaire Sophie CATOLICOT (EI) Agent Commercial – Numéro RSAC : REIMS 493 718 639 – .
L’actualité immobilière à Mœurs-Verdey





