Images
Description
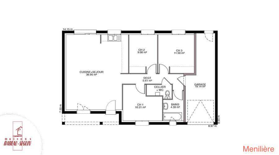
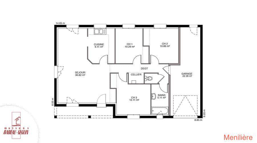
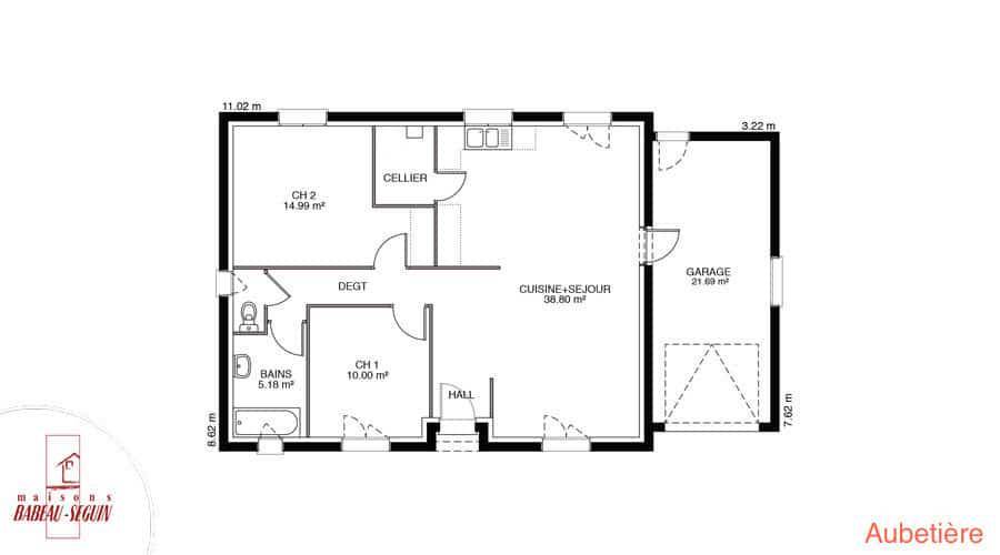
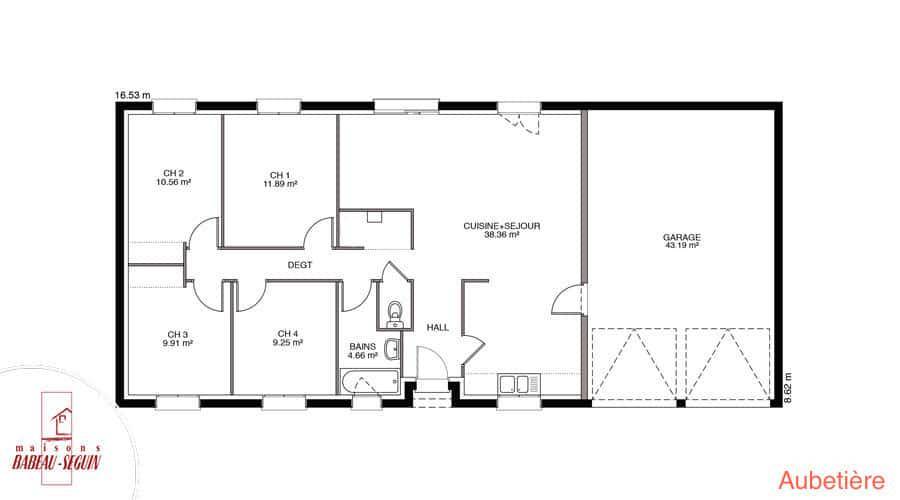
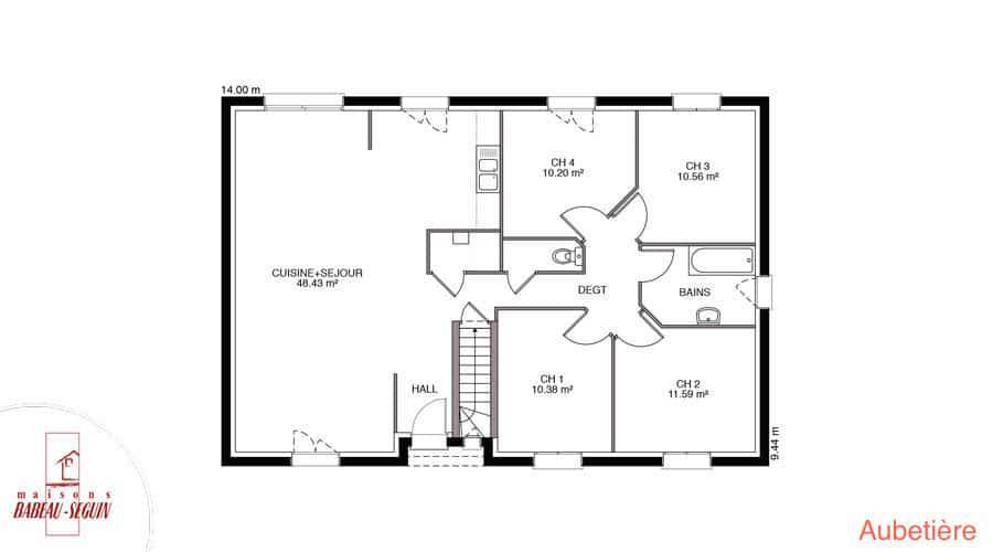
Sur ce terrain, nous vous proposons cette maison neuve Aubetière. Avec une surface de 96 m² et équipée de 4 chambres, cette maison traditionnelle est appréciée pour son excellent rapport qualité/prix.
L'Aubetière, fleuron de la gamme traditionnelle Babeau-Seguin, est une maison moderne qui se décline en plusieurs versions pour répondre à vos besoins spécifiques. Vous pouvez choisir entre une toiture à 2 pans ou à 4 pans, et personnaliser votre maison avec des options comme un garage ou un sous-sol.
Cette maison de plain-pied est conçue pour être basse consommation et conforme à la RE2020, garantissant ainsi des économies d'énergie et un confort optimal tout au long de l'année.
Babeau-Seguin, constructeur reconnu pour offrir le meilleur rapport qualité/prix du marché, vous accompagne dans la réalisation de votre projet de construction sur mesure. Donnez vie à votre projet en optant pour l'Aubetière et profitez d'une maison neuve, performante et personnalisable selon vos envies.
Logement susceptibles de vous intéresser
Nous vous proposons de découvrir aussi cette sélection de logements situés à moins de 10km de Mourmelon-le-Grand et qui seraient susceptibles de vous intéresser.

Mourmelon-le-Grand
TERRAINTerrain constructible de 400m2 entièrement viabilisé à Mourmelon le Grand parfaitement plat et idéalement situé au calme et proche de toutes les commodités.Mourmelon est une commune recherchée pour son axe direct, ses commodités (écoles jusqu’au collège, commerces, nombreuses associations sportives et culturelles pour la famille et gare à proximité) la commune est proche de Châlons en Champagne, Suippes, Mourmelon le Petit, Livry-Louvercy et Reims.Pour plus de renseignements vous pouvez me contacter , Nicolas GUILLAUME de l’agence Maisons France Confort de Cormontreuil au (Numéro supprimé)

Mourmelon-le-Grand
TERRAIN ET MAISONEn vente à Mourmelon le Grand maison neuve de plain-pied de 85m2 avec 3 chambres. Le modèle présenté est Open Nord PP GI 85 design, il est équipé d’une pièce de vie de 43m² ouverte sur la cuisine, d’une salle de bain avec douche ou baignoire, un wc séparé, 3 chambres avec placards, un cellier et un garage. Il est possible de personnaliser ces plans afin qu’ils répondent parfaitement à vos attentes, en ajoutant par exemple une suite parentale avec dressing, ou encore en aménageant le garage en pièce supplémentaire.La construction traditionnelle aux normes RE2020 de la maison est réalisée en brique et l’ensemble des matériaux utilisés sont de qualité afin de vous assurer un investissement durable.Terrain constructible de 400m2 entièrement viabilisé à Mourmelon le Grand parfaitement plat et idéalement situé au calme et proche de toutes les commodités.Mourmelon est une commune recherchée pour son axe direct, ses commodités (écoles jusqu’au collège, commerces, nombreuses associations sportives et culturelles pour la famille et gare à proximité) la commune est proche de Châlons en Champagne, Suippes, Mourmelon le Petit, Livry-Louvercy et Reims.Pour plus de renseignements vous pouvez me contacter , Nicolas GUILLAUME de l’agence Maisons France Confort de Cormontreuil au (Numéro supprimé)

Mourmelon-le-Grand
TERRAIN ET MAISONMaison neuve de plain-pied en V à vendre à Mourmelon le Grand de 90m² habitables et 3 chambres. Le modèle présenté est Inova 90, qui profite d’une architecture en V, concept qui offre une belle exposition au soleil. Architecture de style contemporain qui comprend une pièce de vie ouverte sur la cuisine, un espace nuit avec 3 chambres équipées d’espace pour les placards (dont une suite parentale avec dressing et salle d’eau privative), une salle de bains, un cellier et un garage. La construction traditionnelle aux normes RE2020 de la maison est réalisée en brique et l’ensemble des matériaux utilisés sont de qualité afin de vous assurer un investissement durable.Terrain constructible de 400m2 entièrement viabilisé à Mourmelon le Grand parfaitement plat et idéalement situé au calme et proche de toutes les commodités.Mourmelon est une commune recherchée pour son axe direct, ses commodités (écoles jusqu’au collège, commerces, nombreuses associations sportives et culturelles pour la famille et gare à proximité) la commune est proche de Châlons en Champagne, Suippes, Mourmelon le Petit, Livry-Louvercy et Reims.Pour plus de renseignements vous pouvez me contacter , Nicolas GUILLAUME de l’agence Maisons France Confort de Cormontreuil au (Numéro supprimé)

Mourmelon-le-Grand
TERRAIN ET MAISONMaison de 111m² de plain-pied en L à acheter à Mourmelon le Grand.Le modèle de maison qui vous est présenté est Lumina 106 GA, elle est composée d’une pièce de vie ouverte sur la cuisine, une salle de bains (avec douche et baignoire), deux wc, un espace nuit comprenant 4 chambres avec placards (dont une suite parentale avec dressing et salle d’eau privative), un cellier et un garage. Il est possible de personnaliser ces plans afin qu’ils répondent parfaitement à vos attentes.La construction traditionnelle aux normes RE2020 de la maison est réalisée en brique et l’ensemble des matériaux utilisés sont de qualité afin de vous assurer un investissement durable.Terrain constructible de 400m2 entièrement viabilisé à Mourmelon le Grand parfaitement plat et idéalement situé au calme et proche de toutes les commodités.Mourmelon est une commune recherchée pour son axe direct, ses commodités (écoles jusqu’au collège, commerces, nombreuses associations sportives et culturelles pour la famille et gare à proximité) la commune est proche de Châlons en Champagne, Suippes, Mourmelon le Petit, Livry-Louvercy et Reims.Pour plus de renseignements vous pouvez me contacter , Nicolas GUILLAUME de l’agence Maisons France Confort de Cormontreuil au (Numéro supprimé)

Mourmelon-le-Grand
TERRAIN ET MAISONMaison neuve de 95m² à Mourmelon le Grand. Le modèle présenté est Concept PPGI 95. Maison à l’architecture très moderne et design composée d’une grande pièce de vie ouverte sur la cuisine, 3 chambres (dont une suite parentale avec dressing et salle de bain privative), une salle d’eau, deux wc, un cellier et un garage. La construction traditionnelle aux normes RE2020 de la maison est réalisée en brique et l’ensemble des matériaux utilisés sont de qualité afin de vous assurer un investissement durable.Terrain constructible de 400m2 entièrement viabilisé à Mourmelon le Grand parfaitement plat et idéalement situé au calme et proche de toutes les commodités.Mourmelon est une commune recherchée pour son axe direct, ses commodités (écoles jusqu’au collège, commerces, nombreuses associations sportives et culturelles pour la famille et gare à proximité) la commune est proche de Châlons en Champagne, Suippes, Mourmelon le Petit, Livry-Louvercy et Reims.Pour plus de renseignements vous pouvez me contacter , Nicolas GUILLAUME de l’agence Maisons France Confort de Cormontreuil au (Numéro supprimé)

Mourmelon-le-Grand
TERRAIN ET MAISONÀ Mourmelon le Grand maison neuve de 125 m² habitables et 4 chambres. Le modèle de maison est Inova 125. Conception contemporaine pour ce projet de maison à toit à 4 pans composé d’un espace de vie ouvert sur la cuisine, une salle d’eau, un espace nuit comprenant 4 chambres avec placards (dont une suite parentale au rez-de-chaussée avec salle d’eau privative et dressing), un cellier et un garage. La construction traditionnelle aux normes RE2020 de la maison est réalisée en brique et l’ensemble des matériaux utilisés sont de qualité afin de vous assurer un investissement durable.Terrain constructible de 400m2 entièrement viabilisé à Mourmelon le Grand parfaitement plat et idéalement situé au calme et proche de toutes les commodités.Mourmelon est une commune recherchée pour son axe direct, ses commodités (écoles jusqu’au collège, commerces, nombreuses associations sportives et culturelles pour la famille et gare à proximité) la commune est proche de Châlons en Champagne, Suippes, Mourmelon le Petit, Livry-Louvercy et Reims.Pour plus de renseignements vous pouvez me contacter , Nicolas GUILLAUME de l’agence Maisons France Confort de Cormontreuil au (Numéro supprimé)

Mourmelon-le-Grand
TERRAIN ET MAISONÀ Mourmelon le Grand, maison neuve de 115m² avec 4 chambres à acheter.Le modèle de maison qui vous est présenté est Horizon 115 GA. L’intérieur est constitué d’un espace de vie ouvert sur la cuisine, une salle de bains, deux wc, 4 chambres (dont une suite parentale avec dressing et salle d’eau privative au rez-de-chaussée), et un cellier. La maison dispose également d’un garage accolé communiquant par la maison via le cellier. La construction traditionnelle aux normes RE2020 de la maison est réalisée en brique et l’ensemble des matériaux utilisés sont de qualité afin de vous assurer un investissement durable.Terrain constructible de 400m2 entièrement viabilisé à Mourmelon le Grand parfaitement plat et idéalement situé au calme et proche de toutes les commodités.Mourmelon est une commune recherchée pour son axe direct, ses commodités (écoles jusqu’au collège, commerces, nombreuses associations sportives et culturelles pour la famille et gare à proximité) la commune est proche de Châlons en Champagne, Suippes, Mourmelon le Petit, Livry-Louvercy et Reims.Pour plus de renseignements vous pouvez me contacter , Nicolas GUILLAUME de l’agence Maisons France Confort de Cormontreuil au (Numéro supprimé)

Mourmelon-le-Grand
TERRAIN ET MAISONÀ acheter à Mourmelon le Grand, maison neuve de 150 m² habitables bénéficiant de 5 chambres.Le modèle de maison qui vous est présenté est Lumina 150 R+1 GI. Conception contemporaine pour ce projet de maison qui comprend 5 chambres avec espace pour les placards dont deux suites parentales avec dressing et salle d’eau privative (une au rez-de-chaussée), deux wc, une salle de bains, une grande pièce de vie ouverte sur la cuisine, un cellier et un garage.La construction traditionnelle aux normes RE2020 de la maison est réalisée en brique et l’ensemble des matériaux utilisés sont de qualité afin de vous assurer un investissement durable.Terrain constructible de 400m2 entièrement viabilisé à Mourmelon le Grand parfaitement plat et idéalement situé au calme et proche de toutes les commodités.Mourmelon est une commune recherchée pour son axe direct, ses commodités (écoles jusqu’au collège, commerces, nombreuses associations sportives et culturelles pour la famille et gare à proximité) la commune est proche de Châlons en Champagne, Suippes, Mourmelon le Petit, Livry-Louvercy et Reims.Pour plus de renseignements vous pouvez me contacter , Nicolas GUILLAUME de l’agence Maisons France Confort de Cormontreuil au (Numéro supprimé)

Mourmelon-le-Grand
TERRAIN ET MAISONMaison neuve à Mourmelon le Grand de 120m² avec 5 chambres.Le modèle présenté est Actua 120 R+1 GA. Dans 120m2, l’intérieur est constitué d’un espace de vie ouvert sur la cuisine, une salle de bains, deux wc, 5 chambres (dont une suite parentale avec dressing et salle d’eau privative), et un cellier. La maison dispose également d’un garage accolé communiquant par la maison via le cellier. La construction traditionnelle aux normes RE2020 de la maison est réalisée en brique et l’ensemble des matériaux utilisés sont de qualité afin de vous assurer un investissement durable.Terrain constructible de 400m2 entièrement viabilisé à Mourmelon le Grand parfaitement plat et idéalement situé au calme et proche de toutes les commodités.Mourmelon est une commune recherchée pour son axe direct, ses commodités (écoles jusqu’au collège, commerces, nombreuses associations sportives et culturelles pour la famille et gare à proximité) la commune est proche de Châlons en Champagne, Suippes, Mourmelon le Petit, Livry-Louvercy et Reims.Pour plus de renseignements vous pouvez me contacter , Nicolas GUILLAUME de l’agence Maisons France Confort de Cormontreuil au (Numéro supprimé)
L’actualité immobilière à Mourmelon-le-Grand





