Images
Description
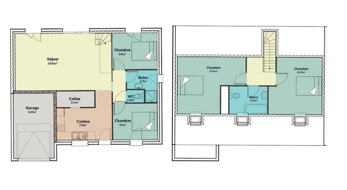
Sur ce terrain, nous vous proposons cette maison neuve : la Focus EVO, un modèle unique de 110 m² conçu par Babeau-Seguin, constructeur offrant le meilleur rapport qualité/prix du marché. Cette maison basse consommation est conforme à la norme RE2020, garantissant des performances énergétiques exceptionnelles.
La Focus EVO se distingue par son concept évolutif, alliant une maison neuve prête à vivre et une maison prête à finir. Livrée avec 73 m² habitables, elle est conçue pour évoluer avec vos besoins futurs. Grâce à ses combles aménageables, vous pouvez facilement augmenter votre surface habitable à 110 m², ajoutant ainsi deux chambres supplémentaires et une salle de bain, pour un total de 4 chambres et 2 salles de bains.
Les caractéristiques principales de cette maison incluent un garage intégré, un cellier, et des combles aménageables. Les options les plus demandées par nos clients, telles que la version Investisseur et les prises USB murales, sont également disponibles.
La Focus EVO est idéale pour tous ceux qui recherchent une maison complète à un prix compétitif. Elle comprend une grande pièce de jour traversante, 4 chambres, une salle de bain, et un garage de 15 m². Que vous soyez un jeune couple, un célibataire ou une famille en pleine expansion, cette maison saura s'adapter à vos besoins et à vos envies.
Ne manquez pas cette occasion unique de devenir propriétaire d'une maison évolutive, économe en énergie et conforme aux dernières normes environnementales. Contactez-nous dès aujourd'hui pour plus d'informations et pour planifier une visite.
Logement susceptibles de vous intéresser
Nous vous proposons de découvrir aussi cette sélection de logements situés à moins de 10km de Plivot et qui seraient susceptibles de vous intéresser.
Athis
TERRAINDécouvrez cette opportunité rare d’acquérir un terrain viabilisé de 701 m², idéalement situé à Athis, dans la Marne (51150). Ce terrain, parfaitement plat et ensoleillé, offre un cadre champêtre et arboré, propice à la construction de votre future demeure. Au calme, il jouit d’un PLU non contraignant, vous permettant de donner vie à vos projets de construction sans contrainte. Athis, une commune dynamique et accueillante du Grand Est, se distingue par son charme et ses commodités. Vous pourrez profiter du cœur de ville, avec ses commerces de proximité, ainsi que des activités culturelles et de loisirs qui animent la région. À quelques pas, les magnifiques paysages environnants offrent de nombreuses possibilités d’évasion et de détente. De plus, la proximité des axes routiers facilite l’accès aux grandes villes environnantes, rendant ce lieu de vie des plus attirants. Ne manquez pas cette occasion unique d’investir dans un terrain au potentiel exceptionnel. N’hésitez pas à envisager ce projet qui pourrait transformer votre rêve en réalité. À noter qu’en tant que constructeur, nous ne sommes pas mandatés pour réaliser la vente de ce terrain.
Avize
TERRAIN ET MAISONSur ce terrain, nous vous proposons cette maison neuve : l’Intimity U de la gamme Evasihome, conçue par Babeau-Seguin, constructeur offrant le meilleur rapport qualité/prix du marché.Avec une surface de 95 m², cette maison en U vous séduira par sa conception ingénieuse et ses équipements modernes. Elle dispose de 3 chambres, dont une superbe suite parentale avec dressing et salle d’eau privative, offrant un espace de tranquillité pour les parents. Le grand séjour-cuisine central, baigné de lumière grâce à une verrière, est idéal pour les moments en famille. Les caractéristiques principales de cette maison incluent également des prises USB murales pour plus de praticité et un garage intégré pour votre confort. Les options les plus demandées par nos clients, telles que l’enduit bi-ton et la domotique, sont également disponibles pour personnaliser votre future demeure.Cette maison neuve est basse consommation et conforme à la RE2020, garantissant des économies d’énergie et un respect de l’environnement. Offrez-vous la tranquillité et le confort que vous méritez avec l’Intimity U. Rencontrons-nous en agence pour donner forme à votre rêve dès aujourd’hui !
Athis
TERRAIN ET MAISONSur ce terrain, nous vous proposons cette maison neuve : la Verdania. Conçue par Babeau-Seguin, constructeur reconnu pour offrir le meilleur rapport qualité/prix du marché, cette maison de 91 m² allie confort, modernité et économie d’énergie.L’équilibre parfait entre confort et accessibilitéDécouvrez la maison Verdania, un modèle ingénieux qui incarne l’alliance entre le confort familial et un prix canon. Bénéficiant de notre collaboration étroite avec des partenaires industriels de confiance, Verdania offre une généreuse superficie de 91 m² au meilleur rapport qualité-prix.Cette maison en L, caractérisée par un porche accueillant à l’entrée, est conçue pour répondre aux attentes des familles modernes soucieuses de leur budget. La toiture à 4 pans et les baies coulissantes apportent une touche d’élégance et de modernité à l’ensemble.Verdania : Économique, écologique et intelligemment conçueVerdania va au-delà de l’aspect financier maîtrisé en intégrant des équipements économiques et écologiques de pointe, alignés avec les normes de la RE2020. L’architecture en L offre un grand séjour lumineux, illuminé par deux baies vitrées, créant ainsi un espace convivial et chaleureux. La maison inclut également un cellier et un garage intelligemment intégré dans la partie en L.Avec une salle de bain comprenant à la fois douche et baignoire, ainsi que trois chambres dont une suite parentale, Verdania répond aux besoins d’un grand nombre de familles tout en respectant leur budget. L’équilibre parfait entre prix maîtrisé et confort de vie optimum.Les options les plus demandées par nos clients, telles qu’une terrasse bétonnée, peuvent être ajoutées pour parfaire votre projet.Ne manquez pas cette opportunité unique d’acquérir une maison neuve, basse consommation et conforme à la RE2020, qui saura répondre à toutes vos attentes. Contactez-nous dès aujourd’hui pour plus d’informations et pour planifier une visite.
Avize
TERRAINNous vous proposons un terrain d’exception situé au cœur du charmant lotissement d’Avize, dans le département de la Marne, Grand Est. S’étendant sur une superficie de 542 m², ce terrain viabilisé offre un cadre plat et ensoleillé, idéal pour concrétiser votre projet de construction de maison. Vous apprécierez la tranquillité de ce quartier privilégié, tout en bénéficiant d’une qualité de vie optimale en raison de son emplacement stratégique. Au sein de la ville d’Avize, vous serez entouré par une multitude d’attractions et de commodités. Ce cadre arboré et sécurisé est proche des commerces essentiels, ainsi que des écoles, collèges et lycées, facilitant ainsi la vie quotidienne pour les familles. Profitez d’une vue dégagée et d’un environnement calme, tout en étant à proximité du centre-ville animé. Avize est une commune recherchée qui allie le charme d’un cadre champêtre à la praticité des infrastructures urbaines. Ce terrain constitue une opportunité unique pour réaliser votre rêve de maison. Ne manquez pas cette chance de vous installer dans un lieu alliant confort, tranquillité et accessibilité. À noter qu’en tant que constructeur, nous ne sommes pas mandatés pour réaliser la vente de ce terrain.
Plivot
TERRAINAutres parcelles disponibles.Prix : 78520 €.Sur ce terrain, réalisez votre projet de construction de maison RE 2020 avec PAVILLONS D'ÎLE-DE-FRANCE (constructeur de maisons de gamme et sur-mesure depuis plus de 50 ans) :- Plan sur-mesure et personnalisé de 2 à 5 chambres- Mode de chauffage au choix- Grands choix d'équipements et de prestations- Matériaux de qualité selon les normes en vigueur- Accompagnement dans le choix et l’acquisition du terrainDemandez une étude gratuite et personnalisée de votre projet de construction sur ce terrain !Contactez Vincent AUGE au (Numéro supprimé) ou au (Numéro supprimé) (Pavillons d'Île-de-France – Agence de Reims).Prix hors frais de notaire. Terrain sélectionné et vu pour vous sous réserve de disponibilité et au prix indiqué par notre partenaire foncier. Visuels non contractuels.Cette annonce a été créée et diffusée avec le logiciel VITAHOME.
Plivot
TERRAIN ET MAISONRéalisez votre projet de construction de maison RE 2020 avec PAVILLONS D'ÎLE-DE-FRANCE (constructeur de maisons de gamme et sur-mesure depuis plus de 50 ans) :- Plan sur-mesure et personnalisé de 2 à 5 chambres- Mode de chauffage au choix- Grands choix d'équipements et de prestations- Matériaux de qualité selon les normes en vigueur- Accompagnement dans le choix et l’acquisition du terrainInformations du terrain : A 10mm d'Epernay.Autres parcelles disponiblesDemandez une étude gratuite et personnalisée de votre projet de construction !Contactez Vincent AUGE au (Numéro supprimé) ou au (Numéro supprimé) (Pavillons d'Île-de-France – Agence de Reims).Prix avec assurance dommages-ouvrage comprise, hors VRD, terrain viabilisé, assainissement non compris, frais de notaire non compris, taxes non comprises, frais divers non compris. Terrain sélectionné et vu pour vous sous réserve de disponibilité et au prix indiqué par notre partenaire foncier. Visuels non contractuels.Cette annonce a été créée et diffusée avec le logiciel VITAHOME.
Plivot
TERRAIN ET MAISONRéalisez votre projet de construction de maison RE 2020 avec PAVILLONS D'ÎLE-DE-FRANCE (constructeur de maisons de gamme et sur-mesure depuis plus de 50 ans) :- Plan sur-mesure et personnalisé de 2 à 5 chambres- Mode de chauffage au choix- Grands choix d'équipements et de prestations- Matériaux de qualité selon les normes en vigueur- Accompagnement dans le choix et l’acquisition du terrainInformations du terrain : A 10mm d'Epernay.Autres parcelles disponiblesDemandez une étude gratuite et personnalisée de votre projet de construction !Contactez Vincent AUGE au (Numéro supprimé) ou au (Numéro supprimé) (Pavillons d'Île-de-France – Agence de Reims).Prix avec assurance dommages-ouvrage comprise, hors VRD, terrain viabilisé, assainissement non compris, frais de notaire non compris, taxes non comprises, frais divers non compris. Terrain sélectionné et vu pour vous sous réserve de disponibilité et au prix indiqué par notre partenaire foncier. Visuels non contractuels.Cette annonce a été créée et diffusée avec le logiciel VITAHOME.
Plivot
TERRAINA 10mm d'Epernay.Autres parcelles disponiblesPrix : 71500 €.Sur ce terrain, réalisez votre projet de construction de maison RE 2020 avec PAVILLONS D'ÎLE-DE-FRANCE (constructeur de maisons de gamme et sur-mesure depuis plus de 50 ans) :- Plan sur-mesure et personnalisé de 2 à 5 chambres- Mode de chauffage au choix- Grands choix d'équipements et de prestations- Matériaux de qualité selon les normes en vigueur- Accompagnement dans le choix et l’acquisition du terrainDemandez une étude gratuite et personnalisée de votre projet de construction sur ce terrain !Contactez Vincent AUGE au (Numéro supprimé) ou au (Numéro supprimé) (Pavillons d'Île-de-France – Agence de Reims).Prix hors frais de notaire. Terrain sélectionné et vu pour vous sous réserve de disponibilité et au prix indiqué par notre partenaire foncier. Visuels non contractuels.Cette annonce a été créée et diffusée avec le logiciel VITAHOME.
Plivot
TERRAIN ET MAISONRéalisez votre projet de construction de maison RE 2020 avec PAVILLONS D'ÎLE-DE-FRANCE (constructeur de maisons de gamme et sur-mesure depuis plus de 50 ans) :- Plan sur-mesure et personnalisé de 2 à 5 chambres- Mode de chauffage au choix- Grands choix d'équipements et de prestations- Matériaux de qualité selon les normes en vigueur- Accompagnement dans le choix et l’acquisition du terrainInformations du terrain : A 10mm d'Epernay.Autres parcelles disponiblesDemandez une étude gratuite et personnalisée de votre projet de construction !Contactez Vincent AUGE au (Numéro supprimé) ou au (Numéro supprimé) (Pavillons d'Île-de-France – Agence de Reims).Prix avec assurance dommages-ouvrage comprise, hors VRD, terrain viabilisé, assainissement non compris, frais de notaire non compris, taxes non comprises, frais divers non compris. Terrain sélectionné et vu pour vous sous réserve de disponibilité et au prix indiqué par notre partenaire foncier. Visuels non contractuels.Cette annonce a été créée et diffusée avec le logiciel VITAHOME.
L’actualité immobilière à Plivot
27/11/2023
02/11/2023
30/10/2023
20/10/2023
16/10/2023
16/10/2023