Images
Description
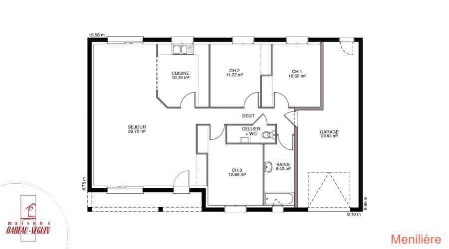
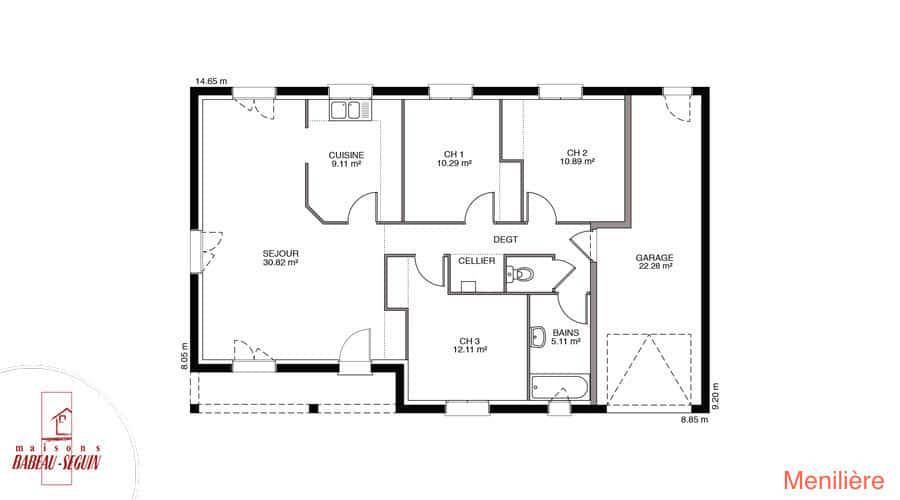
Sur ce terrain, nous vous proposons cette maison neuve, le modèle Ménilière, une maison plain-pied moderne qui intègre de base un garage et une longue galerie sur la face avant. Avec une surface de 100 m², cette maison dispose de 4 chambres et de 4 pièces, offrant ainsi un espace de vie confortable et fonctionnel pour toute la famille.
Véritable ""tout-en-un"" de la maison individuelle, ce modèle est idéal pour votre projet de construction sur-mesure. La Ménilière est disponible avec un toit à 2 pans ou 4 pans, selon vos préférences esthétiques. Le garage intégré et la galerie avant ajoutent une touche pratique et élégante à cette maison.
Les options les plus demandées par nos clients, telles que les menuiseries en aluminium et le sous-sol, sont également disponibles pour personnaliser davantage votre future maison. De plus, cette maison neuve est basse consommation et conforme à la réglementation environnementale RE2020, garantissant ainsi des performances énergétiques optimales et un impact environnemental réduit.
Le constructeur Babeau-Seguin, reconnu pour offrir le meilleur rapport qualité/prix du marché, vous accompagne dans la réalisation de votre projet immobilier. Avec un prix serré et une personnalisation facile, il n'est pas étonnant que la Ménilière soit dans le top 5 des ventes de Babeau-Seguin.
Ne manquez pas cette opportunité unique de devenir propriétaire d'une maison moderne, économe en énergie et parfaitement adaptée à vos besoins. Contactez-nous dès maintenant pour plus d'informations et pour planifier une visite de ce modèle exceptionnel.
Logement susceptibles de vous intéresser
Nous vous proposons de découvrir aussi cette sélection de logements situés à moins de 10km de Sarry et qui seraient susceptibles de vous intéresser.

Courtisols
TERRAINNous vous proposons un terrain exceptionnel d’une superficie de 1139 m², situé dans la charmante commune de Courtisols, dans le département de la Marne, au cœur de la région Grand Est. Ce terrain, idéal pour la construction de votre maison de rêve, se distingue par son environnement calme et arboré, offrant un cadre champêtre propice à la détente. Le Plan Local d’Urbanisme (PLU) non contraignant laisse place à votre imagination pour réaliser le projet qui vous tient à cœur. Idéalement positionné, ce terrain bénéficie de la proximité avec le centre-ville où vous trouverez toutes les commodités nécessaires : commerces, services et écoles. Courtisols offre également un cadre de vie agréable grâce à ses espaces verts et son ambiance paisible. N’hésitez pas à explorer les riches attractions locales qui font la renommée de la région, ainsi que les diverses activités de loisirs à proximité, contribuant à faire de Courtisols un lieu prisé pour s’établir. Ce terrain présente un potentiel remarquable pour tous ceux qui envisagent de bâtir leur future maison dans un cadre paisible et verdoyant. Ne manquez pas cette opportunité unique d’investir dans un bien propre à réaliser vos projets futurs. À noter qu’en tant que constructeur, nous ne sommes pas mandatés pour réaliser la vente de ce terrain.

Courtisols
TERRAIN ET MAISONSur ce terrain, nous vous proposons cette maison neuve : l’Intimity U de la gamme Evasihome, conçue par Babeau-Seguin, constructeur offrant le meilleur rapport qualité/prix du marché.Avec une surface de 95 m², cette maison en U vous séduira par sa conception ingénieuse et ses équipements modernes. Elle dispose de 3 chambres, dont une superbe suite parentale avec dressing et salle d’eau privative, offrant un espace de tranquillité pour les parents. Le grand séjour-cuisine central, baigné de lumière grâce à une verrière, est idéal pour les moments en famille. Les caractéristiques principales de cette maison incluent également des prises USB murales pour plus de praticité et un garage intégré pour votre confort. Les options les plus demandées par nos clients, telles que l’enduit bi-ton et la domotique, sont également disponibles pour personnaliser votre future demeure.Cette maison neuve est basse consommation et conforme à la RE2020, garantissant des économies d’énergie et un respect de l’environnement. Offrez-vous la tranquillité et le confort que vous méritez avec l’Intimity U. Rencontrons-nous en agence pour donner forme à votre rêve dès aujourd’hui !

Marson
TERRAINDécouvrez ce magnifique terrain à vendre, idéalement situé dans le charmant lotissement de Marson, au cœur de la Marne. Avec une surface généreuse de 637 m², ce terrain viabilisé offre une opportunité unique pour réaliser votre projet de construction de maison. Profitez d’un cadre de vie privilégié, alliant tranquillité et accessibilité. La parcelle se distingue par sa topographie plate et son ambiance arborée, vous garantissant un ensoleillement optimal et une qualité de vie remarquable. Marson, un véritable bijou de la région, propose un cadre de vie paisible en plein centre-ville, où la sécurité et le calme sont de mise. Les commodités locales sont à portée de main, avec des commerces, des écoles et des services de proximité. La ville est également bien desservie par les accès autoroutiers, facilitant vos déplacements vers les grandes agglomérations. Ce secteur recherché vous séduira par ses attractions locales et son ambiance conviviale. Ne manquez pas cette occasion rare d’investir dans un terrain qui promet de nombreuses possibilités d’aménagement et un cadre de vie d’exception. Ce terrain représente une opportunité unique d’acquérir un espace de vie dans un lieu de qualité. N’attendez plus pour envisager cette offre alléchante et concrétiser votre rêve immobilier. À noter qu’en tant que constructeur, nous ne sommes pas mandatés pour réaliser la vente de ce terrain.

Marson
TERRAIN ET MAISONSur ce terrain, nous vous proposons cette maison neuve Perrière Sud, un modèle de plain-pied au design typique du sud, alliant tradition et modernité. Avec une surface de 97 m², cette maison est idéale pour une famille grâce à ses 3 chambres et ses 4 pièces. La Perrière Sud se distingue par ses deux hauteurs de toits, qui cassent la monotonie de la façade et apportent une touche d’originalité. Vous avez le choix entre une toiture à 2 pans ou à 4 pans, selon vos préférences esthétiques. De plus, cette maison peut être agrémentée d’un garage ou d’un sous-sol en option, pour répondre à vos besoins de rangement et de stationnement.Les tuiles Canal ajoutent une note de charme et d’authenticité à cette maison moderne. Pour encore plus de confort et de personnalisation, les options les plus demandées par nos clients sont disponibles : un enduit bi-ton pour une façade élégante et des menuiseries en aluminium pour une meilleure isolation et un design contemporain.Cette maison neuve est basse consommation et conforme à la réglementation environnementale RE2020, garantissant des performances énergétiques optimales et un impact environnemental réduit. Le constructeur Babeau-Seguin, reconnu pour offrir le meilleur rapport qualité/prix du marché, vous propose cette maison familiale par excellence, qui saura vous séduire par son design et ses nombreuses possibilités de personnalisation. N’attendez plus pour faire de la Perrière Sud votre future maison !

Sarry
TERRAINÀ la recherche d’un terrain idéal pour réaliser votre projet de construction de maison ? Ne manquez pas cette opportunité exceptionnelle ! Situé dans le charmant lotissement de SARRY, ce terrain viabilisé de 382 m² vous offre un cadre de vie agréable et paisible. Arboré et ensoleillé, il se trouve dans un quartier privilégié, garantissant un quotidien serein et de qualité. Grâce à sa topographie plate et à sa situation calme, ce terrain constitue le choix parfait pour bâtir la maison de vos rêves. SARRY, dans le département de la Marne et la région Grand Est, est une ville dynamique qui allie tranquillité et commodités modernes. Vous profiterez d’une proximité immédiate avec le cœur de la ville, proposant commerces, restaurants et services variés. La sécurité et le cadre champêtre font de cet endroit un lieu de vie prisé, avec de belles opportunités de loisirs à proximité. Venez découvrir ses attraits et la qualité de vie exceptionnelle qu’elle offre ! Ne laissez pas passer cette chance unique d’acquérir un terrain avec un potentiel remarquable. Contactez-nous dès maintenant pour envisager ce projet qui pourrait devenir réalité ! À noter qu’en tant que constructeur, nous ne sommes pas mandatés pour réaliser la vente de ce terrain.

Sarry
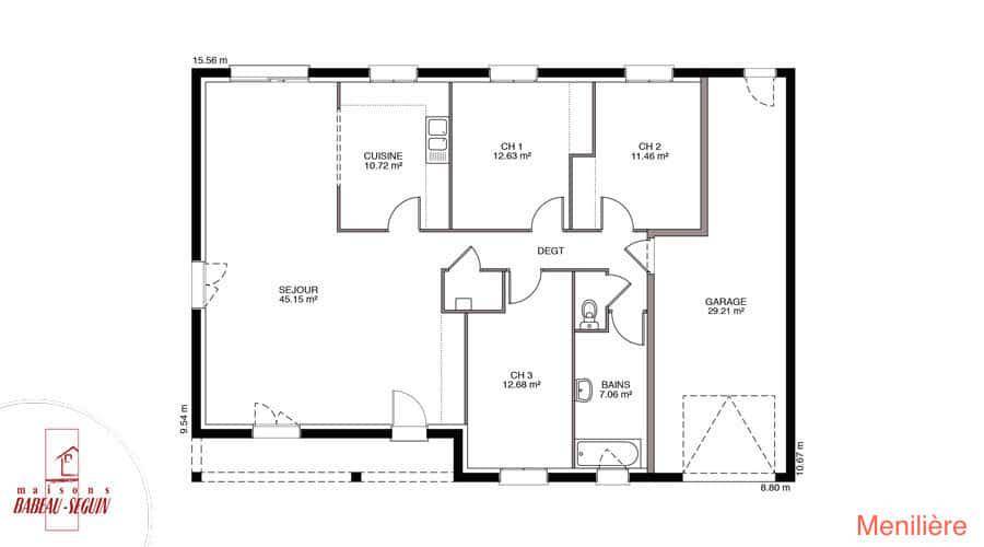
TERRAIN ET MAISONSur ce terrain, nous vous proposons cette maison neuve, le modèle Ménilière, une maison plain-pied moderne qui intègre de base un garage et une longue galerie sur la face avant. Avec une surface de 100 m², cette maison dispose de 4 chambres et de 4 pièces, offrant ainsi un espace de vie confortable et fonctionnel pour toute la famille.Véritable « »tout-en-un » » de la maison individuelle, ce modèle est idéal pour votre projet de construction sur-mesure. La Ménilière est disponible avec un toit à 2 pans ou 4 pans, selon vos préférences esthétiques. Le garage intégré et la galerie avant ajoutent une touche pratique et élégante à cette maison.Les options les plus demandées par nos clients, telles que les menuiseries en aluminium et le sous-sol, sont également disponibles pour personnaliser davantage votre future maison. De plus, cette maison neuve est basse consommation et conforme à la réglementation environnementale RE2020, garantissant ainsi des performances énergétiques optimales et un impact environnemental réduit.Le constructeur Babeau-Seguin, reconnu pour offrir le meilleur rapport qualité/prix du marché, vous accompagne dans la réalisation de votre projet immobilier. Avec un prix serré et une personnalisation facile, il n’est pas étonnant que la Ménilière soit dans le top 5 des ventes de Babeau-Seguin.Ne manquez pas cette opportunité unique de devenir propriétaire d’une maison moderne, économe en énergie et parfaitement adaptée à vos besoins. Contactez-nous dès maintenant pour plus d’informations et pour planifier une visite de ce modèle exceptionnel.

Courtisols
TERRAINDécouvrez ce magnifique terrain non viabilisé de 1196 à 10 minutes de Courtisols, dans le département de la Marne (Grand Est). Ce bien rare est idéal pour un projet de construction de maison, offrant une surface généreusement proportionnée pour réaliser vos rêves d’habitat. Situé dans un quartier privilégié, ce terrain se distingue par sa tranquillité, son ensoleillement et son cadre champêtre. Ne laissez pas passer cette opportunité dans un secteur recherché, où qualité de vie et sécurité se conjuguent parfaitement. Courtisols, à proximité de la ville de Châlons-en-Champagne, vous séduira par son ambiance paisible et sa proximité avec toutes les commodités nécessaires. Les attractions locales telles que les parcs, les écoles et les petits commerces contribuent à une qualité de vie exceptionnelle. Profitez de l’accès aisé aux routes principales et des activités de plein air à proximité. Ce cadre verdoyant et arboré est propice à l’épanouissement et à la détente, tout en étant à proximité des services et des animations urbaines. Ce terrain représente une opportunité unique pour les investisseurs et futurs propriétaires souhaitant bâtir la maison de leurs rêves. N’hésitez pas à nous contacter pour en savoir plus et saisir cette occasion exceptionnelle. À noter qu’en tant que constructeur, nous ne sommes pas mandatés pour réaliser la vente de ce terrain.

Courtisols
TERRAIN ET MAISONSur ce terrain, nous vous proposons cette maison neuve Perrière Sud, un modèle de plain-pied au design typique du sud, alliant tradition et modernité. Avec une surface de 97 m², cette maison est idéale pour une famille grâce à ses 3 chambres et ses 4 pièces. La Perrière Sud se distingue par ses deux hauteurs de toits, qui cassent la monotonie de la façade et apportent une touche d’originalité. Vous avez le choix entre une toiture à 2 pans ou à 4 pans, selon vos préférences esthétiques. De plus, cette maison peut être agrémentée d’un garage ou d’un sous-sol en option, pour répondre à vos besoins de rangement et de stationnement.Les tuiles Canal ajoutent une note de charme et d’authenticité à cette maison moderne. Pour encore plus de confort et de personnalisation, les options les plus demandées par nos clients sont disponibles : un enduit bi-ton pour une façade élégante et des menuiseries en aluminium pour une meilleure isolation et un design contemporain.Cette maison neuve est basse consommation et conforme à la réglementation environnementale RE2020, garantissant des performances énergétiques optimales et un impact environnemental réduit. Le constructeur Babeau-Seguin, reconnu pour offrir le meilleur rapport qualité/prix du marché, vous propose cette maison familiale par excellence, qui saura vous séduire par son design et ses nombreuses possibilités de personnalisation. N’attendez plus pour faire de la Perrière Sud votre future maison !

Mairy-sur-Marne
TERRAINÀ vendre, un terrain exceptionnel situé à Mairy-sur-Marne, dans le département de la Marne, s’étendant sur une surface totale de 973?m². Ce terrain non viabilisé présente des caractéristiques uniques, telles qu’un environnement sécurisant, ensoleillé et arboré, offrant un cadre champêtre au calme idéal pour un projet de construction de maison. Le potentiel de cette parcelle est immense grâce à son top emplacement à saisir et à son prix attractif. Mairy-sur-Marne est une charmante commune du Grand Est, qui se distingue par son ambiance paisible et ses attraits locaux. Les résidents peuvent profiter d’un cadre de vie agréable entouré de nature, tout en étant à proximité des commodités essentielles. Découvrez des activités de plein air telles que la randonnée et les promenades à vélo, ainsi que des services variés pour faciliter votre quotidien. Ce terrain est le choix parfait pour ceux qui recherchent une qualité de vie sans compromis dans une région riche en beauté naturelle. Ne manquez pas cette opportunité d’acquérir un terrain prometteur dont le potentiel est à explorer. Prenez rendez-vous dès maintenant pour en savoir plus?! À noter qu’en tant que constructeur, nous ne sommes pas mandatés pour réaliser la vente de ce terrain.
L’actualité immobilière à Sarry





