Images
Description
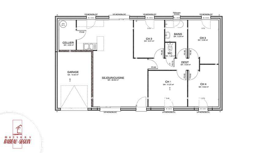
Sur ce terrain, nous vous proposons cette maison neuve : la Focus Family. Conçue par Babeau-Seguin, constructeur offrant le meilleur rapport qualité/prix du marché, cette maison familiale à tout petit prix est idéale pour ceux qui souhaitent allier confort et économies.
Avec une surface habitable de 89 m², la Focus Family vous offre un espace généreux et bien agencé. Elle comprend 4 chambres, parfaites pour accueillir toute votre famille, ainsi qu'un grand séjour traversant avec cuisine ouverte, pour un total de 4 pièces. Vous apprécierez également le garage intégré, pratique pour stationner votre véhicule ou pour du rangement supplémentaire.
L'enduit bi-ton de la façade apporte une touche moderne et élégante à cette maison. De plus, les options les plus demandées par nos clients, comme les menuiseries en aluminium, sont disponibles pour personnaliser votre future habitation selon vos goûts.
La Focus Family est une maison basse consommation, conforme à la réglementation environnementale RE2020. Elle est équipée des dernières innovations technologiques pour garantir une isolation thermique et phonique optimale, tout en étant économique et respectueuse de l'environnement.
Ne faites aucune concession sur la qualité avec cette maison low cost de luxe. Babeau-Seguin met tout son savoir-faire et son professionnalisme dans la construction de la gamme Focus, en utilisant les meilleurs matériaux et une charpente traditionnelle.
N'attendez plus pour réaliser votre projet de maison familiale à petit prix avec la Focus Family, une maison spacieuse, écolo et accessible à tous les budgets.
Logement susceptibles de vous intéresser
Nous vous proposons de découvrir aussi cette sélection de logements situés à moins de 10km de Sommepy-Tahure et qui seraient susceptibles de vous intéresser.
Souain-Perthes-lès-Hurlus
TERRAINPrix : 33500 €.Sur ce terrain, réalisez votre projet de construction de maison RE 2020 avec PAVILLONS D'ÎLE-DE-FRANCE (constructeur de maisons de gamme et sur-mesure depuis plus de 50 ans) :- Plan sur-mesure et personnalisé de 2 à 5 chambres- Mode de chauffage au choix- Grands choix d'équipements et de prestations- Matériaux de qualité selon les normes en vigueur- Accompagnement dans le choix et l’acquisition du terrainDemandez une étude gratuite et personnalisée de votre projet de construction sur ce terrain !Contactez Vincent AUGE au (Numéro supprimé) ou au (Numéro supprimé) (Pavillons d'Île-de-France – Agence de Reims).Prix hors frais de notaire. Terrain sélectionné et vu pour vous sous réserve de disponibilité et au prix indiqué par notre partenaire foncier. Visuels non contractuels.Cette annonce a été créée et diffusée avec le logiciel VITAHOME.
Souain-Perthes-lès-Hurlus
TERRAIN ET MAISONRéalisez votre projet de construction de maison RE 2020 avec PAVILLONS D'ÎLE-DE-FRANCE (constructeur de maisons de gamme et sur-mesure depuis plus de 50 ans) :- Plan sur-mesure et personnalisé de 2 à 5 chambres- Mode de chauffage au choix- Grands choix d'équipements et de prestations- Matériaux de qualité selon les normes en vigueur- Accompagnement dans le choix et l’acquisition du terrainDemandez une étude gratuite et personnalisée de votre projet de construction !Contactez Vincent AUGE au (Numéro supprimé) ou au (Numéro supprimé) (Pavillons d'Île-de-France – Agence de Reims).Prix avec assurance dommages-ouvrage comprise, hors VRD, terrain viabilisé, assainissement non compris, frais de notaire non compris, taxes non comprises, frais divers non compris. Terrain sélectionné et vu pour vous sous réserve de disponibilité et au prix indiqué par notre partenaire foncier. Visuels non contractuels.Cette annonce a été créée et diffusée avec le logiciel VITAHOME.
Souain-Perthes-lès-Hurlus
TERRAIN ET MAISONRéalisez votre projet de construction de maison RE 2020 avec PAVILLONS D'ÎLE-DE-FRANCE (constructeur de maisons de gamme et sur-mesure depuis plus de 50 ans) :- Plan sur-mesure et personnalisé de 2 à 5 chambres- Mode de chauffage au choix- Grands choix d'équipements et de prestations- Matériaux de qualité selon les normes en vigueur- Accompagnement dans le choix et l’acquisition du terrainDemandez une étude gratuite et personnalisée de votre projet de construction !Contactez Vincent AUGE au (Numéro supprimé) ou au (Numéro supprimé) (Pavillons d'Île-de-France – Agence de Reims).Prix avec assurance dommages-ouvrage comprise, hors VRD, terrain viabilisé, assainissement non compris, frais de notaire non compris, taxes non comprises, frais divers non compris. Terrain sélectionné et vu pour vous sous réserve de disponibilité et au prix indiqué par notre partenaire foncier. Visuels non contractuels.Cette annonce a été créée et diffusée avec le logiciel VITAHOME.
Souain-Perthes-lès-Hurlus
TERRAIN ET MAISONRéalisez votre projet de construction de maison RE 2020 avec PAVILLONS D'ÎLE-DE-FRANCE (constructeur de maisons de gamme et sur-mesure depuis plus de 50 ans) :- Plan sur-mesure et personnalisé de 2 à 5 chambres- Mode de chauffage au choix- Grands choix d'équipements et de prestations- Matériaux de qualité selon les normes en vigueur- Accompagnement dans le choix et l’acquisition du terrainDemandez une étude gratuite et personnalisée de votre projet de construction !Contactez Vincent AUGE au (Numéro supprimé) ou au (Numéro supprimé) (Pavillons d'Île-de-France – Agence de Reims).Prix avec assurance dommages-ouvrage comprise, hors VRD, terrain viabilisé, assainissement non compris, frais de notaire non compris, taxes non comprises, frais divers non compris. Terrain sélectionné et vu pour vous sous réserve de disponibilité et au prix indiqué par notre partenaire foncier. Visuels non contractuels.Cette annonce a été créée et diffusée avec le logiciel VITAHOME.
Sommepy-Tahure
TERRAINÀ vendre, un terrain exceptionnel de 750 m² situé dans le charmant lotissement de Sommepy-Tahure, dans la Marne. Ce terrain viabilisé offre un cadre de vie unique, idéal pour la construction de la maison de vos rêves. Avec ses caractéristiques distinctives telles qu’un environnement calme, arboré et ensoleillé, vous pourrez profiter d’un cadre champêtre de qualité. Le terrain est plat et se trouve dans un quartier recherché, parfait pour y établir une résidence paisible. Sommepy-Tahure, située dans la belle région du Grand Est, est une ville qui combine harmonieusement tranquillité et qualité de vie. À proximité, vous pourrez découvrir des attractions locales qui enrichissent le quotidien, ainsi que des services essentiels pour votre bien-être. Le charme de la campagne environnante et la sécurité du quartier en font un lieu d’exception pour les familles et les amoureux de la nature. N’attendez plus pour concrétiser votre projet de construction sur ce terrain rare et profitez d’une opportunité d’achat unique dans un cadre idyllique. À noter qu’en tant que constructeur, nous ne sommes pas mandatés pour réaliser la vente de ce terrain.
Sommepy-Tahure
TERRAIN ET MAISONSur ce terrain, nous vous proposons cette maison neuve : la Focus Family. Conçue par Babeau-Seguin, constructeur offrant le meilleur rapport qualité/prix du marché, cette maison familiale à tout petit prix est idéale pour ceux qui souhaitent allier confort et économies.Avec une surface habitable de 89 m², la Focus Family vous offre un espace généreux et bien agencé. Elle comprend 4 chambres, parfaites pour accueillir toute votre famille, ainsi qu’un grand séjour traversant avec cuisine ouverte, pour un total de 4 pièces. Vous apprécierez également le garage intégré, pratique pour stationner votre véhicule ou pour du rangement supplémentaire.L’enduit bi-ton de la façade apporte une touche moderne et élégante à cette maison. De plus, les options les plus demandées par nos clients, comme les menuiseries en aluminium, sont disponibles pour personnaliser votre future habitation selon vos goûts.La Focus Family est une maison basse consommation, conforme à la réglementation environnementale RE2020. Elle est équipée des dernières innovations technologiques pour garantir une isolation thermique et phonique optimale, tout en étant économique et respectueuse de l’environnement.Ne faites aucune concession sur la qualité avec cette maison low cost de luxe. Babeau-Seguin met tout son savoir-faire et son professionnalisme dans la construction de la gamme Focus, en utilisant les meilleurs matériaux et une charpente traditionnelle.N’attendez plus pour réaliser votre projet de maison familiale à petit prix avec la Focus Family, une maison spacieuse, écolo et accessible à tous les budgets.
Souain-Perthes-lès-Hurlus
TERRAINÀ vendre, magnifique terrain non viabilisé de 815 m² situé au cœur de Souain-Perthes-lès-Hurlus, une charmante commune de la Marne. Ce terrain plat bénéficie d’un cadre champêtre, arboré et ensoleillé, idéal pour concrétiser votre projet de construction de maison. Sa situation calme et sécurisée en fait un lieu parfait pour accueillir votre future habitation, où tranquillité et confort se rejoignent. Souain-Perthes-lès-Hurlus, bien que petite, est riche en attraits : vous y trouverez des paysages pittoresques et un environnement apaisant, tout en étant à proximité des commodités essentielles. La ville est idéalement placée à quelques kilomètres des grandes agglomérations, vous permettant ainsi de profiter de la vie rurale tout en ayant accès aux services urbains. Les passionnés de nature apprécieront les nombreux parcours de randonnée et les paysages bucoliques qui entourent la commune, faisant de cet endroit un véritable havre de paix. Ce terrain constitue une opportunité d’achat unique, offrant un potentiel de construction remarquable dans une commune à caractère rural. N’hésitez pas à envisager cette chance de réaliser votre projet de vie dans ce cadre enchanteur.
Souain-Perthes-lès-Hurlus
TERRAIN ET MAISONSur ce terrain, nous vous proposons cette maison neuve Aubetière, un modèle traditionnel de la gamme Babeau-Seguin, constructeur reconnu pour offrir le meilleur rapport qualité/prix du marché. Avec une surface de 88 m², cette maison de plain-pied se compose de 4 pièces, dont 3 chambres spacieuses, idéales pour accueillir toute votre famille.L’Aubetière se distingue par son excellent rapport qualité/prix et sa conformité aux normes RE2020, garantissant une basse consommation énergétique. Vous avez la possibilité de personnaliser votre maison en choisissant entre un toit à 2 pans ou à 4 pans, ainsi qu’en ajoutant un garage ou un sous-sol selon vos besoins.Cette maison moderne et fonctionnelle est conçue pour s’adapter à vos envies et à votre mode de vie. Profitez de la flexibilité offerte par les nombreux plans et déclinaisons disponibles pour créer votre maison individuelle sur mesure.Ne manquez pas cette opportunité de donner vie à votre projet de construction avec le modèle Aubetière, une maison neuve qui allie confort, économie d’énergie et personnalisation. Contactez-nous dès maintenant pour plus d’informations et pour découvrir toutes les options disponibles pour votre future maison.
Saint-Souplet-sur-Py
TERRAINDécouvrez un terrain d’exception à Saint-Souplet-sur-Py, offrant une surface généreuse de 1 000 m², idéal pour réaliser votre projet de construction de maison. Ce terrain viabilisé se distingue par ses caractéristiques uniques : un environnement ensoleillé, arboré et plat, vous garantissant une construction facile et envisageant une qualité de vie agréable. Niché dans un cadre champêtre et au calme, ce bien saura séduire les amoureux de nature tout en étant proche des commodités. Saint-Souplet-sur-Py, situé dans le département de la Marne, est une commune qui allie charmante ruralité et accessibilité. Profitez de la tranquillité tout en étant à proximité des activités locales, des services essentiels et des écoles. Les attraits de ce village pittoresque et ses paysages verdoyants en font un lieu de vie particulièrement agréable. Que ce soit pour se promener dans les environs ou pour profiter des fêtes et événements locaux, ce terrain est en parfaite harmonie avec ce que la région a à offrir. Ne manquez pas cette opportunité unique d’acquérir un terrain au potentiel exceptionnel à Saint-Souplet-sur-Py. Vos rêves de construction n’attendent plus que vous !
L’actualité immobilière à Sommepy-Tahure
27/11/2023
02/11/2023
30/10/2023
20/10/2023
16/10/2023
16/10/2023