Images
Description
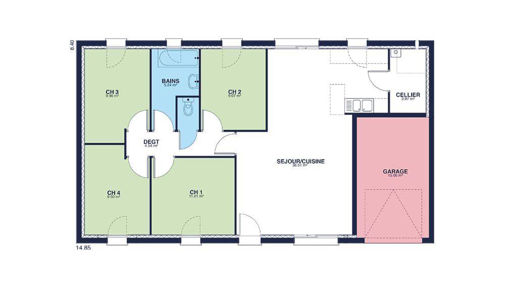
Sur ce terrain, nous vous proposons cette maison neuve : la Focus Family Sud. Conçue par Babeau-Seguin, constructeur reconnu pour offrir le meilleur rapport qualité/prix du marché, cette maison de 89 m² est idéale pour les familles à la recherche d'un logement moderne et économique.
Vous avez un budget serré et rêvez d’une maison au style urbain et contemporain ? La Focus Family Sud est faite pour vous. Cette maison compacte et élégante dispose de 4 chambres et de 4 pièces, offrant un espace de vie optimisé pour votre confort. Le garage intégré de près de 15 m², l'enduit bi-ton et les tuiles Canal ajoutent une touche de charme et de fonctionnalité à cette habitation.
Les options les plus demandées par nos clients, telles que les menuiseries en aluminium, sont disponibles pour personnaliser votre maison selon vos goûts. De plus, cette maison neuve est basse consommation et conforme à la réglementation environnementale RE2020, garantissant des économies d'énergie et un respect de l'environnement.
Ne manquez pas cette opportunité de construire une maison accessible à tous les budgets sans faire l’impasse sur les équipements. Avec ses 4 chambres, un cellier, un large séjour et un garage, la Focus Family Sud n’a rien à envier aux autres modèles de la gamme Babeau-Seguin. Profitez d'une habitation qui allie petit prix et grande prestation.
Logement susceptibles de vous intéresser
Nous vous proposons de découvrir aussi cette sélection de logements situés à moins de 10km de Sommesous et qui seraient susceptibles de vous intéresser.

Sommesous
TERRAINNous vous présentons un terrain exceptionnel d’une superficie de 641 m², idéalement situé à 10 minutes du charmant village de Sommesous, dans le département de la Marne. Ce terrain, déjà viabilisé, offre des caractéristiques uniques, telles qu’un cadre champêtre arboré, un environnement calme et ensoleillé, ainsi qu’un terrain plat propice à la construction de votre maison de rêve. Le prix attractif et la possibilité de division parcellaire, renforcés par un Plan Local d’Urbanisme (PLU) non contraignant, font de ce bien une opportunité rare sur le marché immobilier actuel. Le village de Sommesous est une destination paisible qui séduira les amateurs de nature et de tranquillité. Situé à proximité de diverses commodités, telles que des écoles, des commerces et des infrastructures de loisirs, ce charmant lieu de vie est idéal pour les familles en quête d’un cadre de vie agréable. La Marne est riche en attractions, allant des paysages viticoles pittoresques aux activités culturelles dynamiques. Que ce soit pour un déjeuner en famille dans un restaurant local ou des balades à travers la campagne environnante, chaque jour apportera son lot de découvertes. C’est un lieu où l’harmonie entre la vie citadine et la tranquillité rurale coexiste parfaitement. Ne manquez pas cette opportunité unique d’acquérir un terrain de qualité dans un cadre enchanteur. Envisagez dès maintenant de réaliser votre projet de construction dans ce secteur prometteur et attractif. Contactez-nous pour davantage d’informations et préparez-vous à donner vie à votre rêve !

Sommesous
TERRAIN ET MAISONSur ce terrain, nous vous proposons cette maison neuve, la Ménilière Sud, conçue par Babeau-Seguin, constructeur offrant le meilleur rapport qualité/prix du marché. Cette superbe maison traditionnelle du sud, avec ses galeries et ses tuiles canal, dispose d’une surface de 100 m² et comprend 3 chambres et 4 pièces.La Ménilière Sud est une maison basse consommation, conforme à la RE2020, garantissant des économies d’énergie et un confort optimal tout au long de l’année. Elle est équipée d’un garage intégré, et vous avez le choix entre un toit à 2 pans ou à 4 pans, selon vos préférences.Offrant beaucoup de cachet, la Ménilière Sud est facilement personnalisable pour répondre à vos besoins et à vos goûts. Son porche avant pratique vous évitera la panique de chercher vos clés les jours de pluie. Ce modèle est particulièrement apprécié pour son excellent rapport qualité/prix, ce qui en fait l’un des modèles sur-mesure les plus vendus.Ne manquez pas cette opportunité unique d’acquérir une maison neuve, économe en énergie et parfaitement adaptée à vos envies. Contactez-nous dès maintenant pour plus d’informations et pour découvrir toutes les possibilités de personnalisation de la Ménilière Sud.

Sommesous
TERRAINDécouvrez ce magnifique terrain viabilisé de 696 m² situé dans la commune prisée de Sommesous, dans le département de la Marne. Ce bien exceptionnel se trouve dans un environnement calme et arboré, idéal pour concrétiser votre projet de construction de maison. La parcelle est parfaitement plane, offrant une belle qualité de vie ainsi qu’un cadre champêtre, à deux pas du cœur de ville. N’attendez plus pour réaliser vos rêves de construction dans un quartier recherché, bénéficiant de toutes les commodités. Sommesous est une ville dynamique, bénéficiant d’un emplacement stratégique au sein de la région Grand Est. Elle est proche de toutes les commodités nécessaires au quotidien, avec des commerces, écoles, et transports en commun facilement accessibles. Profitez de l’attrait de cette charmante commune qui allie sécurité, tranquillité et ensoleillement. Les habitants apprécient la vie de quartier ainsi que le cadre naturel environnant, idéal pour les familles comme pour les couples en quête de tranquillité. Ce terrain offre une opportunité rare, tant par sa localisation que par ses caractéristiques uniques. Ne laissez pas passer cette chance d’acquérir un terrain au potentiel immense. Pensez à toutes les possibilités qui s’offrent à vous, et envisagez cet achat unique dès aujourd’hui. À noter qu’en tant que constructeur, nous ne sommes pas mandatés pour réaliser la vente de ce terrain.

Sommesous
TERRAIN ET MAISONSur ce terrain, nous vous proposons cette maison neuve : la Focus Family Sud. Conçue par Babeau-Seguin, constructeur reconnu pour offrir le meilleur rapport qualité/prix du marché, cette maison de 89 m² est idéale pour les familles à la recherche d’un logement moderne et économique.Vous avez un budget serré et rêvez d’une maison au style urbain et contemporain ? La Focus Family Sud est faite pour vous. Cette maison compacte et élégante dispose de 4 chambres et de 4 pièces, offrant un espace de vie optimisé pour votre confort. Le garage intégré de près de 15 m², l’enduit bi-ton et les tuiles Canal ajoutent une touche de charme et de fonctionnalité à cette habitation.Les options les plus demandées par nos clients, telles que les menuiseries en aluminium, sont disponibles pour personnaliser votre maison selon vos goûts. De plus, cette maison neuve est basse consommation et conforme à la réglementation environnementale RE2020, garantissant des économies d’énergie et un respect de l’environnement.Ne manquez pas cette opportunité de construire une maison accessible à tous les budgets sans faire l’impasse sur les équipements. Avec ses 4 chambres, un cellier, un large séjour et un garage, la Focus Family Sud n’a rien à envier aux autres modèles de la gamme Babeau-Seguin. Profitez d’une habitation qui allie petit prix et grande prestation.

Mailly-le-Camp
TERRAINDécouvrez ce charmant terrain à vendre situé dans le lotissement de Mailly-le-Camp, d’une superficie généreuse idéale pour la construction de votre maison de rêve. Viabilisé et prêt à accueillir votre projet, ce terrain se distingue par sa situation exceptionnelle. À deux pas des accès autoroute, il vous permettra de profiter d’un cadre de vie paisible tout en restant connecté aux avantages urbains. Située dans le département de l’Aube, Mailly-le-Camp se caractérise par sa qualité de vie et ses nombreux atouts. Vous serez séduit par la proximité de commerces, d’écoles et de services nécessaires au quotidien. La région est également riche en attractions locales, offrant des paysages naturels magnifiques et des activités de plein air. Que vous souhaitiez vous lancer dans un projet résidentiel ou investir, ce terrain se trouve dans une localité dynamique qui ne manquera pas de combler vos attentes. Ce terrain représente une opportunité unique dans un cadre agréable. Ne laissez pas passer cette chance d’acquérir un bien dans une ville prometteuse et en pleine expansion. Contactez-nous dès aujourd’hui pour visiter ce terrain et envisager les possibilités qui s’offrent à vous !

Mailly-le-Camp
TERRAIN ET MAISONSur ce terrain, nous vous proposons cette maison neuve, modèle Prunière, l’un des modèles les plus vendus par Babeau-Seguin, constructeur offrant le meilleur rapport qualité/prix du marché. Figurant dans le top 5 des maisons individuelles Babeau-Seguin, cette maison plain-pied Prunière séduit par son renfoncement qui casse la monotonie de la façade avant et offre un abri de seuil.Avec une surface de 85 m², cette maison traditionnelle comprend 4 pièces, dont 3 chambres, et un garage intégré. Elle se décline en versions à 2 pans ou 4 pans, selon vos préférences. Parfaitement équipée, la Prunière est en effet la maison à petit prix par excellence.En plus de son design attrayant, cette maison neuve est basse consommation et conforme à la RE2020, garantissant ainsi des performances énergétiques optimales et un confort de vie inégalé. Ne manquez pas cette opportunité de construire la maison de vos rêves avec Babeau-Seguin, le constructeur qui allie qualité, prix et satisfaction client.

Mailly-le-Camp
TERRAINNous sommes ravis de vous proposer ce magnifique terrain viabilisé de 611 m², situé dans le charmant lotissement de Mailly-le-Camp, dans le département de l’Aube (10230). Ce terrain est l’opportunité idéale pour un projet de construction de maison personnalisée, offrant un cadre de vie paisible et agréable. Vous serez enchanté par la qualité de vie exceptionnelle qu’offre cette localité, où le calme et la tranquillité règnent en maîtres. Mailly-le-Camp se distingue par son ambiance conviviale et ses commodités accessibles. À proximité, vous trouverez des écoles, idéal pour les familles, ainsi que diverses structures nécessaires au quotidien. Profitez de la beauté naturelle des environs tout en bénéficiant d’une vie de quartier recherchée. Ce secteur est également connu pour ses activités récréatives et ses espaces verts, parfaits pour les moments de détente en pleine nature. Ce terrain représente une opportunité unique pour construire la maison de vos rêves dans un environnement serein. Ne laissez pas passer cette chance : contactez-nous dès aujourd’hui pour découvrir votre futur chez-vous à Mailly-le-Camp !

Mailly-le-Camp
TERRAIN ET MAISONSur ce terrain, nous vous proposons cette maison neuve : le modèle Focus Cosy city. Conçue par Babeau-Seguin, constructeur reconnu pour offrir le meilleur rapport qualité/prix du marché, cette maison de plain-pied traditionnelle offre une surface habitable de 79 m², parfaitement optimisée pour répondre aux besoins des familles.Idéale pour les petits budgets, la Focus Cosy city est une maison neuve écologique, conforme aux normes strictes de la RE2020. Elle garantit une basse consommation énergétique, ce qui se traduit par des coûts d’usage et d’entretien très faibles, notamment pour le chauffage.Cette maison se compose de 4 pièces, dont 3 chambres lumineuses, parfaites pour accueillir une famille. Le grand séjour de 33 m² est baigné de lumière naturelle grâce à une baie vitrée coulissante, créant un espace de vie convivial et chaleureux. La cuisine ouverte sur le séjour permet de partager des moments agréables en famille ou entre amis. Un cellier, situé dans le prolongement de la cuisine, offre un espace de rangement pratique pour les provisions.La maison dispose également d’une salle de bain avec des WC séparés, offrant un espace de vie fonctionnel et bien organisé pour toute la famille. Les options les plus demandées par les clients, telles que la domotique et l’enduit bi-ton, peuvent être intégrées pour personnaliser votre maison selon vos préférences.En résumé, le modèle Focus Cosy city est une maison neuve économique et écologique, qui combine une conception pratique avec une haute efficacité énergétique. Elle offre ainsi un cadre de vie confortable et abordable pour les familles à la recherche d’un logement durable et respectueux de l’environnement. Économie à la construction, économie à la consommation !

Mailly-le-Camp
TERRAINDécouvrez ce magnifique terrain viabilisé de 617 m², parfait pour la réalisation de votre projet de construction de maison. Situé dans le lotissement de Mailly-le-Camp, ce terrain offre une opportunité unique de construire l’habitat de vos rêves dans une ville alliant tranquillité et qualité de vie. Avec une vue dégagée, ce terrain s’inscrit dans un cadre naturel agréable, idéal pour les familles cherchant à s’établir dans un environnement paisible. Mailly-le-Camp, localisé dans le département de l’Aube, est une ville pleine de charme qui saura séduire les acheteurs par ses commodités variées. À proximité, vous trouverez des écoles de qualité, ainsi que de nombreuses infrastructures qui facilitent le quotidien. Ce secteur est également connu pour sa convivialité et son esprit de communauté, faisant de Mailly-le-Camp un lieu de vie exceptionnel. Profitez d’un cadre agréable et de la tranquillité de la campagne, tout en ayant accès à tous les services nécessaires. Cet emplacement de choix constitue une opportunité rare sur le marché immobilier. Ne laissez pas passer cette chance d’investir dans un terrain qui a tant à offrir. Contactez-nous dès aujourd’hui pour découvrir le potentiel de ce bien d’exception.
L’actualité immobilière à Sommesous





