Images
Description
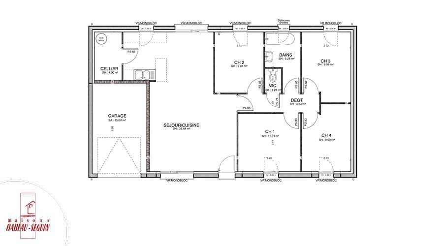
Sur ce terrain, nous vous proposons cette maison neuve : la Focus Family. Conçue par Babeau-Seguin, constructeur offrant le meilleur rapport qualité/prix du marché, cette maison familiale à tout petit prix est idéale pour ceux qui souhaitent allier confort et économies.
Avec une surface habitable de 89 m², la Focus Family vous offre un espace généreux et bien agencé. Elle comprend 4 chambres, parfaites pour accueillir toute votre famille, ainsi qu'un grand séjour traversant avec cuisine ouverte, pour un total de 4 pièces. Vous apprécierez également le garage intégré, pratique pour stationner votre véhicule ou pour du rangement supplémentaire.
L'enduit bi-ton de la façade apporte une touche moderne et élégante à cette maison. De plus, les options les plus demandées par nos clients, comme les menuiseries en aluminium, sont disponibles pour personnaliser votre future habitation selon vos goûts.
La Focus Family est une maison basse consommation, conforme à la réglementation environnementale RE2020. Elle est équipée des dernières innovations technologiques pour garantir une isolation thermique et phonique optimale, tout en étant économique et respectueuse de l'environnement.
Ne faites aucune concession sur la qualité avec cette maison low cost de luxe. Babeau-Seguin met tout son savoir-faire et son professionnalisme dans la construction de la gamme Focus, en utilisant les meilleurs matériaux et une charpente traditionnelle.
N'attendez plus pour réaliser votre projet de maison familiale à petit prix avec la Focus Family, une maison spacieuse, écolo et accessible à tous les budgets.
Logement susceptibles de vous intéresser
Nous vous proposons de découvrir aussi cette sélection de logements situés à moins de 10km de Soulières et qui seraient susceptibles de vous intéresser.

Avize
TERRAINTerrain constructible de 542m2 entièrement viabilisé à Avize parfaitement plat, entièrement viabilisé et idéalement situé au calme et proche de toutes les commodités.Avize est une commune recherchée pour son axe direct, ses commodités (écoles jusqu’au collège, commerces et nombreuses associations sportives et culturelles pour la famille) et sa proximité avec Epernay, Vertus, Mancy, Chavot-Courcourt, Cramant, Grauves, Cuis, Chouilly, Flavigny, Oger, et Le Mesnil sur Oger.Pour plus de renseignements vous pouvez me contacter , Nicolas GUILLAUME de l’agence Maisons France Confort de Cormontreuil au (Numéro supprimé)

Avize
TERRAIN ET MAISONEn vente à Avize maison neuve de plain-pied de 85m2 avec 3 chambres. Le modèle présenté est Open Nord PP GI 85 design, il est équipé d’une pièce de vie de 43m² ouverte sur la cuisine, d’une salle de bain avec douche ou baignoire, un wc séparé, 3 chambres avec placards, un cellier et un garage. Il est possible de personnaliser ces plans afin qu’ils répondent parfaitement à vos attentes, en ajoutant par exemple une suite parentale avec dressing, ou encore en aménageant le garage en pièce supplémentaire.La construction traditionnelle aux normes RE2020 de la maison est réalisée en brique et l’ensemble des matériaux utilisés sont de qualité afin de vous assurer un investissement durable.Terrain constructible de 542m2 entièrement viabilisé à Avize parfaitement plat, entièrement viabilisé et idéalement situé au calme et proche de toutes les commodités.Avize est une commune recherchée pour son axe direct, ses commodités (écoles jusqu’au collège, commerces et nombreuses associations sportives et culturelles pour la famille) et sa proximité avec Epernay, Vertus, Mancy, Chavot-Courcourt, Cramant, Grauves, Cuis, Chouilly, Flavigny, Oger, et Le Mesnil sur Oger.Pour plus de renseignements vous pouvez me contacter , Nicolas GUILLAUME de l’agence Maisons France Confort de Cormontreuil au (Numéro supprimé)

Avize
TERRAIN ET MAISONÀ Avize, grande maison neuve.La maison présentée sur ce terrain est Ultima 120. Architecture contemporaine pour cette maison à toit à 4 pans. Dans 120m2, l’intérieur est constitué d’une pièce de vie ouverte sur la cuisine, 4 chambres avec placards (dont une suite parentale avec salle d’eau privative et dressing) une salle de bains, un cellier et un garage. La construction traditionnelle aux normes RE2020 de la maison est réalisée en brique et l’ensemble des matériaux utilisés sont de qualité afin de vous assurer un investissement durable.Terrain constructible de 542m2 entièrement viabilisé à Avize parfaitement plat, entièrement viabilisé et idéalement situé au calme et proche de toutes les commodités.Avize est une commune recherchée pour son axe direct, ses commodités (écoles jusqu’au collège, commerces et nombreuses associations sportives et culturelles pour la famille) et sa proximité avec Epernay, Vertus, Mancy, Chavot-Courcourt, Cramant, Grauves, Cuis, Chouilly, Flavigny, Oger, et Le Mesnil sur Oger.Pour plus de renseignements vous pouvez me contacter , Nicolas GUILLAUME de l’agence Maisons France Confort de Cormontreuil au (Numéro supprimé)

Avize
TERRAIN ET MAISONÀ Avize, grande maison neuve.La maison présentée sur ce terrain est Ultima 160. Architecture contemporaine pour cette maison à toit à 4 pans. Dans 160m2, l’intérieur est constitué d’une pièce de vie ouverte sur la cuisine, 5 chambres avec placards (dont une suite parentale au rez-de-chaussée avec salle d’eau privative et dressing) une salle de bains, un cellier et un garage. La construction traditionnelle aux normes RE2020 de la maison est réalisée en brique et l’ensemble des matériaux utilisés sont de qualité afin de vous assurer un investissement durable.Terrain constructible de 542m2 entièrement viabilisé à Avize parfaitement plat, entièrement viabilisé et idéalement situé au calme et proche de toutes les commodités.Avize est une commune recherchée pour son axe direct, ses commodités (écoles jusqu’au collège, commerces et nombreuses associations sportives et culturelles pour la famille) et sa proximité avec Epernay, Vertus, Mancy, Chavot-Courcourt, Cramant, Grauves, Cuis, Chouilly, Flavigny, Oger, et Le Mesnil sur Oger.Pour plus de renseignements vous pouvez me contacter , Nicolas GUILLAUME de l’agence Maisons France Confort de Cormontreuil au (Numéro supprimé)

Avize
TERRAIN ET MAISONÀ acheter à Avize : maison de plain-pied de 100m2 habitables avec 4 chambres et un garage.La maison neuve présentée sur ce terrain est Open PP GA 4 chambres design 100m². Elle est composée d’une pièce de vie ouverte sur la cuisine de 40m², d’une salle de bains avec baignoire et douche, un wc séparé, 4 chambres avec espace pour les placards, et un garage avec un accès par le cellier. Il est possible de personnaliser ces plans afin qu’ils répondent parfaitement à vos attentes, en ajoutant par exemple une suite parentale avec dressing, ou encore en aménageant le garage en pièce supplémentaire.La construction traditionnelle aux normes RE2020 de la maison est réalisée en brique et l’ensemble des matériaux utilisés sont de qualité afin de vous assurer un investissement durable.Terrain constructible de 542m2 entièrement viabilisé à Avize parfaitement plat, entièrement viabilisé et idéalement situé au calme et proche de toutes les commodités.Avize est une commune recherchée pour son axe direct, ses commodités (écoles jusqu’au collège, commerces et nombreuses associations sportives et culturelles pour la famille) et sa proximité avec Epernay, Vertus, Mancy, Chavot-Courcourt, Cramant, Grauves, Cuis, Chouilly, Flavigny, Oger, et Le Mesnil sur Oger.Pour plus de renseignements vous pouvez me contacter , Nicolas GUILLAUME de l’agence Maisons France Confort de Cormontreuil au (Numéro supprimé)

Avize
TERRAIN ET MAISONMaison neuve de 6 pièces (122 m²) à vendre à Avize.La maison propose quatre chambres dont une suite parentale (avec salle d’eau et dressing), une salle de bains, une cuisine ouverte sur la pièce de vie , et un cellier.La construction traditionnelle aux normes RE2020 de la maison est réalisée en brique et l’ensemble des matériaux utilisés sont de qualité afin de vous assurer un investissement durable.Terrain constructible de 542m2 entièrement viabilisé à Avize parfaitement plat, entièrement viabilisé et idéalement situé au calme et proche de toutes les commodités.Avize est une commune recherchée pour son axe direct, ses commodités (écoles jusqu’au collège, commerces et nombreuses associations sportives et culturelles pour la famille) et sa proximité avec Epernay, Vertus, Mancy, Chavot-Courcourt, Cramant, Grauves, Cuis, Chouilly, Flavigny, Oger, et Le Mesnil sur Oger.Pour plus de renseignements vous pouvez me contacter , Nicolas GUILLAUME de l’agence Maisons France Confort de Cormontreuil au (Numéro supprimé)

Avize
TERRAIN ET MAISONÀ vendre à Avize une maison neuve individuelle de 90m² avec 4 chambres. Le modèle de maison est Open CA GA 90 design, il est composé d’une pièce de vie de 42m² ouverte sur la cuisine, 3 chambres avec placards dont une avec un dressing, un bureau au rez-de-chaussée, une salle de bain avec douche ou baignoire, deux wc (dont un au rez-de-chaussée), un cellier et un garage. Il est possible de personnaliser ces plans afin qu’ils répondent parfaitement à vos attentes.La construction traditionnelle aux normes RE2020 de la maison est réalisée en brique et l’ensemble des matériaux utilisés sont de qualité afin de vous assurer un investissement durable.Terrain constructible de 542m2 entièrement viabilisé à Avize parfaitement plat, entièrement viabilisé et idéalement situé au calme et proche de toutes les commodités.Avize est une commune recherchée pour son axe direct, ses commodités (écoles jusqu’au collège, commerces et nombreuses associations sportives et culturelles pour la famille) et sa proximité avec Epernay, Vertus, Mancy, Chavot-Courcourt, Cramant, Grauves, Cuis, Chouilly, Flavigny, Oger, et Le Mesnil sur Oger.Pour plus de renseignements vous pouvez me contacter , Nicolas GUILLAUME de l’agence Maisons France Confort de Cormontreuil au (Numéro supprimé)

Avize
TERRAIN ET MAISONMaison neuve avec 4 chambres et 98m² habitables à vendre à Avize.Le modèle présenté est Open Nord R+1 GA 98 trendy. Cette maison neuve individuelle est composée d’un espace de vie avec cuisine ouverte, une salle de bain avec douche et baignoire, deux wc dont un au rez-de-chaussée, 4 chambres avec placards (dont une au rez-de-chaussée, ainsi qu’une équipée d’un dressing à l’étage), un cellier et un garage. Il est possible de personnaliser ces plans afin qu’ils répondent parfaitement à vos attentes.La construction traditionnelle aux normes RE2020 de la maison est réalisée en brique et l’ensemble des matériaux utilisés sont de qualité afin de vous assurer un investissement durable.Terrain constructible de 542m2 entièrement viabilisé à Avize parfaitement plat, entièrement viabilisé et idéalement situé au calme et proche de toutes les commodités.Avize est une commune recherchée pour son axe direct, ses commodités (écoles jusqu’au collège, commerces et nombreuses associations sportives et culturelles pour la famille) et sa proximité avec Epernay, Vertus, Mancy, Chavot-Courcourt, Cramant, Grauves, Cuis, Chouilly, Flavigny, Oger, et Le Mesnil sur Oger.Pour plus de renseignements vous pouvez me contacter , Nicolas GUILLAUME de l’agence Maisons France Confort de Cormontreuil au (Numéro supprimé)

Avize
TERRAIN ET MAISONÀ Avize, maison neuve (normes RE 2020) de 90m2 avec patio.Maison de construction traditionnelle (matériaux de qualité, ossature en brique) de 3 chambres (possibilité d’une quatrième). Le modèle présenté est le modèle Open Nord ETG L GA accès Sud 90 so chic d’une surface habitable de 90m2 et compte une pièce de vie ouverte sur la cuisine, une salle de bain, 3 chambres, avec espace pour les placards, deux wc, un cellier et un garage. Il est possible de personnaliser ces plans afin qu’ils répondent parfaitement à vos attentes.Terrain constructible de 542m2 entièrement viabilisé à Avize parfaitement plat, entièrement viabilisé et idéalement situé au calme et proche de toutes les commodités.Avize est une commune recherchée pour son axe direct, ses commodités (écoles jusqu’au collège, commerces et nombreuses associations sportives et culturelles pour la famille) et sa proximité avec Epernay, Vertus, Mancy, Chavot-Courcourt, Cramant, Grauves, Cuis, Chouilly, Flavigny, Oger, et Le Mesnil sur Oger.Pour plus de renseignements vous pouvez me contacter , Nicolas GUILLAUME de l’agence Maisons France Confort de Cormontreuil au (Numéro supprimé)
L’actualité immobilière à Soulières





