Images
Description
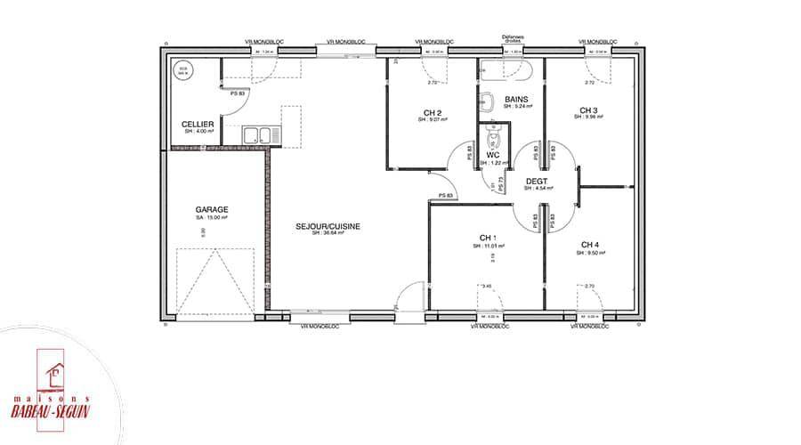
Sur ce terrain, nous vous proposons cette maison neuve : la Focus Family. Conçue par Babeau-Seguin, constructeur offrant le meilleur rapport qualité/prix du marché, cette maison familiale à tout petit prix est idéale pour ceux qui souhaitent allier confort et économies.
Avec une surface habitable de 89 m², la Focus Family vous offre un espace généreux et bien agencé. Elle comprend 4 chambres, parfaites pour accueillir toute votre famille, ainsi qu'un grand séjour traversant avec cuisine ouverte, pour un total de 4 pièces. Vous apprécierez également le garage intégré, pratique pour stationner votre véhicule ou pour du rangement supplémentaire.
L'enduit bi-ton de la façade apporte une touche moderne et élégante à cette maison. De plus, les options les plus demandées par nos clients, comme les menuiseries en aluminium, sont disponibles pour personnaliser votre future habitation selon vos goûts.
La Focus Family est une maison basse consommation, conforme à la réglementation environnementale RE2020. Elle est équipée des dernières innovations technologiques pour garantir une isolation thermique et phonique optimale, tout en étant économique et respectueuse de l'environnement.
Ne faites aucune concession sur la qualité avec cette maison low cost de luxe. Babeau-Seguin met tout son savoir-faire et son professionnalisme dans la construction de la gamme Focus, en utilisant les meilleurs matériaux et une charpente traditionnelle.
N'attendez plus pour réaliser votre projet de maison familiale à petit prix avec la Focus Family, une maison spacieuse, écolo et accessible à tous les budgets.
Logement susceptibles de vous intéresser
Nous vous proposons de découvrir aussi cette sélection de logements situés à moins de 10km de Saint-Germain-la-Ville et qui seraient susceptibles de vous intéresser.
Sarry
TERRAIN ET MAISONSur ce terrain, nous vous proposons cette maison neuve : la Focus Family Sud. Conçue par Babeau-Seguin, constructeur reconnu pour offrir le meilleur rapport qualité/prix du marché, cette maison de 89 m² est idéale pour les familles à la recherche d’un logement moderne et économique.Vous avez un budget serré et rêvez d’une maison au style urbain et contemporain ? La Focus Family Sud est faite pour vous. Cette maison compacte et élégante dispose de 4 chambres et de 4 pièces, offrant un espace de vie optimisé pour votre confort. Le garage intégré de près de 15 m², l’enduit bi-ton et les tuiles Canal ajoutent une touche de charme et de fonctionnalité à cette habitation.Les options les plus demandées par nos clients, telles que les menuiseries en aluminium, sont disponibles pour personnaliser votre maison selon vos goûts. De plus, cette maison neuve est basse consommation et conforme à la réglementation environnementale RE2020, garantissant des économies d’énergie et un respect de l’environnement.Ne manquez pas cette opportunité de construire une maison accessible à tous les budgets sans faire l’impasse sur les équipements. Avec ses 4 chambres, un cellier, un large séjour et un garage, la Focus Family Sud n’a rien à envier aux autres modèles de la gamme Babeau-Seguin. Profitez d’une habitation qui allie petit prix et grande prestation.
Sarry
TERRAINNous vous présentons une opportunité exceptionnelle d’acquérir un terrain viabilisé de 383 m² situé dans le charmant lotissement de Sarry, au cœur du département de la Marne. Ce terrain plat offre un cadre idyllique pour la construction de votre future maison, alliant tranquillité et commodité. Avec sa situation privilégiée, ce bien bénéficie d’un Plan Local d’Urbanisme (PLU) non contraignant, vous permettant ainsi de donner libre cours à votre créativité architecturale. Ne ratez pas cette chance de concevoir un projet sur mesure dans un quartier recherché et apprécié. Sarry, une commune dynamique de la région Grand Est, est idéalement située à proximité de commerces, d’écoles et de diverses commodités, tout en offrant un environnement calme et serein. Les transports en commun sont facilement accessibles, avec un arrêt de bus à proximité, facilitant les déplacements vers les villes environnantes. Cette commune combine le charme d’un cadre urbain avec la qualité de vie d’un espace verdoyant, faisant de ce terrain une opportunité d’investissement à ne pas manquer. Entre vie locale animée et tranquillité, Sarry vous offre le meilleur des deux mondes. N’attendez plus pour saisir cette occasion unique d’acquérir un terrain offrant un potentiel illimité pour votre projet de construction. Contactez-nous dès aujourd’hui pour plus d’informations et pour concrétiser votre rêve immobilier! À noter qu’en tant que constructeur, nous ne sommes pas mandatés pour réaliser la vente de ce terrain.
Sarry
TERRAINAutres parcelles disponiblesPrix : 67280 €.Sur ce terrain, réalisez votre projet de construction de maison RE 2020 avec PAVILLONS D'ÎLE-DE-FRANCE (constructeur de maisons de gamme et sur-mesure depuis plus de 50 ans) :- Plan sur-mesure et personnalisé de 2 à 5 chambres- Mode de chauffage au choix- Grands choix d'équipements et de prestations- Matériaux de qualité selon les normes en vigueur- Accompagnement dans le choix et l’acquisition du terrainDemandez une étude gratuite et personnalisée de votre projet de construction sur ce terrain !Contactez Vincent AUGE au (Numéro supprimé) ou au (Numéro supprimé) (Pavillons d'Île-de-France – Agence de Reims).Prix hors frais de notaire. Terrain sélectionné et vu pour vous sous réserve de disponibilité et au prix indiqué par notre partenaire foncier. Visuels non contractuels.Cette annonce a été créée et diffusée avec le logiciel VITAHOME.
Sarry
TERRAIN ET MAISONRéalisez votre projet de construction de maison RE 2020 avec PAVILLONS D'ÎLE-DE-FRANCE (constructeur de maisons de gamme et sur-mesure depuis plus de 50 ans) :- Plan sur-mesure et personnalisé de 2 à 5 chambres- Mode de chauffage au choix- Grands choix d'équipements et de prestations- Matériaux de qualité selon les normes en vigueur- Accompagnement dans le choix et l’acquisition du terrainInformations du terrain : Autres parcelles disponiblesDemandez une étude gratuite et personnalisée de votre projet de construction !Contactez Vincent AUGE au (Numéro supprimé) ou au (Numéro supprimé) (Pavillons d'Île-de-France – Agence de Reims).Prix avec assurance dommages-ouvrage comprise, hors VRD, terrain viabilisé, assainissement compris, frais de notaire non compris, taxes non comprises, frais divers non compris. Terrain sélectionné et vu pour vous sous réserve de disponibilité et au prix indiqué par notre partenaire foncier. Visuels non contractuels.Cette annonce a été créée et diffusée avec le logiciel VITAHOME.
Sarry
TERRAIN ET MAISONRéalisez votre projet de construction de maison RE 2020 avec PAVILLONS D'ÎLE-DE-FRANCE (constructeur de maisons de gamme et sur-mesure depuis plus de 50 ans) :- Plan sur-mesure et personnalisé de 2 à 5 chambres- Mode de chauffage au choix- Grands choix d'équipements et de prestations- Matériaux de qualité selon les normes en vigueur- Accompagnement dans le choix et l’acquisition du terrainInformations du terrain : Autres parcelles disponiblesDemandez une étude gratuite et personnalisée de votre projet de construction !Contactez Vincent AUGE au (Numéro supprimé) ou au (Numéro supprimé) (Pavillons d'Île-de-France – Agence de Reims).Prix avec assurance dommages-ouvrage comprise, hors VRD, terrain viabilisé, assainissement compris, frais de notaire non compris, taxes non comprises, frais divers non compris. Terrain sélectionné et vu pour vous sous réserve de disponibilité et au prix indiqué par notre partenaire foncier. Visuels non contractuels.Cette annonce a été créée et diffusée avec le logiciel VITAHOME.
Sarry
TERRAIN ET MAISONRéalisez votre projet de construction de maison RE 2020 avec PAVILLONS D'ÎLE-DE-FRANCE (constructeur de maisons de gamme et sur-mesure depuis plus de 50 ans) :- Plan sur-mesure et personnalisé de 2 à 5 chambres- Mode de chauffage au choix- Grands choix d'équipements et de prestations- Matériaux de qualité selon les normes en vigueur- Accompagnement dans le choix et l’acquisition du terrainInformations du terrain : Autres parcelles disponiblesDemandez une étude gratuite et personnalisée de votre projet de construction !Contactez Vincent AUGE au (Numéro supprimé) ou au (Numéro supprimé) (Pavillons d'Île-de-France – Agence de Reims).Prix avec assurance dommages-ouvrage comprise, hors VRD, terrain viabilisé, assainissement compris, frais de notaire non compris, taxes non comprises, frais divers non compris. Terrain sélectionné et vu pour vous sous réserve de disponibilité et au prix indiqué par notre partenaire foncier. Visuels non contractuels.Cette annonce a été créée et diffusée avec le logiciel VITAHOME.
La Chaussée-sur-Marne
TERRAINNous vous proposons à la vente un terrain non-viabilisé d’une surface généreuse de 1060 m2, situé dans la charmante commune de La Chaussée-sur-Marne, dans le département de la Marne, région Grand Est. Ce terrain plat, arboré et ensoleillé, offre un cadre champêtre exceptionnel, propice à la réalisation de votre projet de construction de maison. Sa situation au calme en fait un lieu de vie idéal pour ceux qui recherchent sérénité et tranquillité. La Chaussée-sur-Marne est une commune dynamique qui combine le charme rural et la proximité des commodités nécessaires au quotidien. Vous y trouverez des commerces de proximité, ainsi que des services essentiels, le tout dans une ambiance conviviale et chaleureuse. En outre, la localisation stratégique de La Chaussée-sur-Marne permet un accès facile aux attractions locales et aux activités de plein air, enrichissant ainsi votre cadre de vie. Que vous soyez passionné de nature ou amateur de tranquillité, ce terrain possède un potentiel exceptionnel, tant sur le plan résidentiel que pour créer un véritable havre de paix. Ne manquez pas cette opportunité unique d’acquérir un terrain au fort potentiel. Pour plus d’informations, n’hésitez pas à nous contacter. À noter qu’en tant que constructeur, nous ne sommes pas mandatés pour réaliser la vente de ce terrain.
La Chaussée-sur-Marne
TERRAIN ET MAISONSur ce terrain, nous vous proposons cette maison neuve, la Ménilière Sud, conçue par Babeau-Seguin, constructeur offrant le meilleur rapport qualité/prix du marché. Cette superbe maison traditionnelle du sud, avec ses galeries et ses tuiles canal, dispose d’une surface de 100 m² et comprend 3 chambres et 4 pièces.La Ménilière Sud est une maison basse consommation, conforme à la RE2020, garantissant des économies d’énergie et un confort optimal tout au long de l’année. Elle est équipée d’un garage intégré, et vous avez le choix entre un toit à 2 pans ou à 4 pans, selon vos préférences.Offrant beaucoup de cachet, la Ménilière Sud est facilement personnalisable pour répondre à vos besoins et à vos goûts. Son porche avant pratique vous évitera la panique de chercher vos clés les jours de pluie. Ce modèle est particulièrement apprécié pour son excellent rapport qualité/prix, ce qui en fait l’un des modèles sur-mesure les plus vendus.Ne manquez pas cette opportunité unique d’acquérir une maison neuve, économe en énergie et parfaitement adaptée à vos envies. Contactez-nous dès maintenant pour plus d’informations et pour découvrir toutes les possibilités de personnalisation de la Ménilière Sud.
Sarry
TERRAINÀ vendre : Offrez-vous le terrain idéal pour bâtir la maison de vos rêves sur une parcelle de 375 m², située dans le charmant lotissement de Sarry, au cœur de la Marne. Ce terrain viabilisé présente de nombreuses caractéristiques qui en font un emplacement privilégié pour un projet de construction, notamment son environnement calme et arboré. La configuration plate du terrain vous permettra de réaliser une construction facilement accessible et personnalisée selon vos envies et besoins. Sarry, une petite commune du Grand Est, se distingue par son cadre de vie agréable, alliant tranquillité et accès aux commodités. À proximité, vous trouverez toutes les infrastructures nécessaires au quotidien : commerces, écoles, collégial et lycées, ainsi que des transports en commun avec un arrêt de bus proche. Profitez également de vues dégagées et d’un environnement calme, propice à la détente, sans être éloigné des accès autoroutiers. Ce secteur vous propose ainsi de multiples attractions locales, assurant un cadre de vie de qualité pour votre future maison. Ne manquez pas cette occasion unique de réaliser votre projet immobilier dans une ville en plein développement, à la fois agréable et pratique. Ce terrain saura répondre à toutes vos attentes de construction. À noter qu’en tant que constructeur, nous ne sommes pas mandatés pour réaliser la vente de ce terrain.
L’actualité immobilière à Saint-Germain-la-Ville
27/11/2023
02/11/2023
30/10/2023
20/10/2023
16/10/2023
16/10/2023