Images
Description
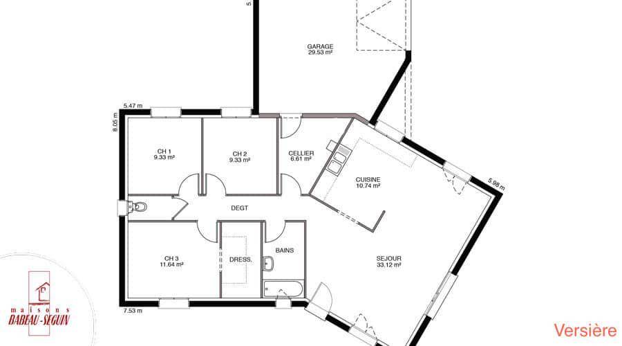
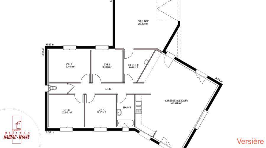
Sur ce terrain, nous vous proposons cette maison neuve : la Versière Sud. Avec une surface de 92 m², cette maison de plain-pied se distingue par son design moderne et original, grâce à ses plans en V qui s'intègrent parfaitement aux paysages du sud.
La Versière Sud comprend 4 pièces, dont 3 chambres spacieuses, offrant un espace de vie confortable et fonctionnel. Vous avez la possibilité de personnaliser l'aménagement intérieur selon vos besoins et vos envies, pour créer un espace qui vous ressemble.
Cette maison est également compatible avec de nombreuses options, telles qu'un garage ou un sous-sol, pour répondre à toutes vos exigences. Vous pouvez choisir entre une toiture à 2 pans ou à 4 pans, selon vos préférences esthétiques.
En plus de son design attrayant, la Versière Sud est une maison basse consommation, conforme à la réglementation environnementale RE2020. Cela garantit une performance énergétique optimale et un confort de vie tout au long de l'année, tout en respectant l'environnement.
Le constructeur Babeau-Seguin, reconnu pour offrir le meilleur rapport qualité/prix du marché, vous accompagne dans la réalisation de ce projet. Avec la Versière Sud, vous optez pour une villa coup de cœur, alliant modernité, originalité et performance énergétique.
N'attendez plus pour découvrir cette maison unique et personnalisable, qui saura répondre à toutes vos attentes.
Logement susceptibles de vous intéresser
Nous vous proposons de découvrir aussi cette sélection de logements situés à moins de 10km de Saint-Germain-la-Ville et qui seraient susceptibles de vous intéresser.
Saint-Germain-la-Ville
TERRAINÀ la recherche d’un terrain pour concrétiser votre projet de construction ? Découvrez ce terrain viabilisé de 596 m², situé à Saint-Germain-la-Ville, dans le département de la Marne. Ce lotissement offre une qualité de vie exceptionnelle, entouré d’un cadre champêtre arboré et calme. Profitez d’un emplacement prisé, idéal pour bâtir la maison de vos rêves, où sécurité et ensoleillement se rejoignent harmonieusement. Saint-Germain-la-Ville, localisé dans la région Grand Est, est une commune dynamique qui saura séduire les familles et les amoureux de la nature. Grâce à ses commodités locales, vous bénéficiez d’un cadre de vie agréable tout en étant à proximité des principales attractions de la région. Des services de première nécessité et des espaces de loisirs à portée de main vous assurent un quotidien confortable. Cet environnement privilégie le calme et la sérénité, tout en restant accessible pour des escapades en ville ou vers les charmantes villes environnantes. Ne manquez pas cette opportunité unique d’investir dans un terrain d’exception à Saint-Germain-la-Ville. Ce projet est parfait pour ceux qui souhaitent allier tranquillité et accessibilité. Contactez-nous vite pour en savoir plus ! À noter qu’en tant que constructeur, nous ne sommes pas mandatés pour réaliser la vente de ce terrain.
Saint-Germain-la-Ville
TERRAIN ET MAISONSur ce terrain, nous vous proposons cette maison neuve : la Versière Sud. Avec une surface de 92 m², cette maison de plain-pied se distingue par son design moderne et original, grâce à ses plans en V qui s’intègrent parfaitement aux paysages du sud. La Versière Sud comprend 4 pièces, dont 3 chambres spacieuses, offrant un espace de vie confortable et fonctionnel. Vous avez la possibilité de personnaliser l’aménagement intérieur selon vos besoins et vos envies, pour créer un espace qui vous ressemble.Cette maison est également compatible avec de nombreuses options, telles qu’un garage ou un sous-sol, pour répondre à toutes vos exigences. Vous pouvez choisir entre une toiture à 2 pans ou à 4 pans, selon vos préférences esthétiques.En plus de son design attrayant, la Versière Sud est une maison basse consommation, conforme à la réglementation environnementale RE2020. Cela garantit une performance énergétique optimale et un confort de vie tout au long de l’année, tout en respectant l’environnement.Le constructeur Babeau-Seguin, reconnu pour offrir le meilleur rapport qualité/prix du marché, vous accompagne dans la réalisation de ce projet. Avec la Versière Sud, vous optez pour une villa coup de cœur, alliant modernité, originalité et performance énergétique.N’attendez plus pour découvrir cette maison unique et personnalisable, qui saura répondre à toutes vos attentes.
Sarry
TERRAINTerrain à bâtir d’une surface 643M2 vendu Borné et viabilisé en eau et électricitésitué dans un environnement calme à quelques kms de Châlons en ChampagneMais ce n’est pas tout :Vous êtes propriétaire d’une Maison, Appartement ou d’un Terrain et vous réfléchissez à le mettre en vente ? Profitez d’une estimation professionnelle, fiable et gratuite, même si vous n’êtes pas encore décidé. Acheter, vendre, comparer : je vous accompagne avec transparence et expertise pour optimiser votre projet. Contactez moi pour découvrir les terrains disponibles ou pour évaluer la valeur réelle de votre bien.Cette annonce référence 313921 vous est présentée par votre agent commercial BSK Immobilier JÉROME JOUAULT (EI) immatriculé au RSAC de CHALONS-EN-CHAMPAGNE (51000) sous le numéro 88834723400039.Prix du bien : 59 900,00 €Les honoraires d’agence sont à la charge du vendeur.Les informations sur les risques auxquels ce bien est exposé sont disponibles sur le site Géorisques : www.georisques.gouv.fr
Pogny
TERRAINTerrain à bâtir d’une surface 645M2 vendu Borné et viabilisé en eau et électricitésitué dans un environnement calme à quelques kms de Châlons en ChampagneMais ce n’est pas tout :Vous êtes propriétaire d’une Maison, Appartement ou d’un Terrain et vous réfléchissez à le mettre en vente ? Profitez d’une estimation professionnelle, fiable et gratuite, même si vous n’êtes pas encore décidé. Acheter, vendre, comparer : je vous accompagne avec transparence et expertise pour optimiser votre projet. Contactez moi pour découvrir les terrains disponibles ou pour évaluer la valeur réelle de votre bien.Cette annonce référence 313917 vous est présentée par votre agent commercial BSK Immobilier JÉROME JOUAULT (EI) immatriculé au RSAC de CHALONS-EN-CHAMPAGNE (51000) sous le numéro 88834723400039.Prix du bien : 59 900,00 €Les honoraires d’agence sont à la charge du vendeur.Les informations sur les risques auxquels ce bien est exposé sont disponibles sur le site Géorisques : www.georisques.gouv.fr
Moncetz-Longevas
TERRAINOPPORTUNITÉ À SAISIR – Terrain à bâtir – Moncetz-LongevasÀ 10 minutes de Châlons-en-Champagne – Terrain à bâtir de 879 m², situé dans une commune agréable et bien desservie. Ce terrain constructible offre un cadre idéal pour votre projet de construction.Le terrain est libre de constructeur. Tous les réseaux sont à proximité pour une viabilisation facilitée.Un emplacement stratégique, un projet prêt à démarrer.À visiter rapidement !Référence : 2346 – 13065Prenez contact avec votre agent :Charlotte DUVAL EI(Numéro supprimé)Agent commercial n°RSAC Reims 980 722 235
Mairy-sur-Marne
TERRAINDécouvrez cette magnifique parcelle de terrain non-viabilisé, sise au cœur de Mairy-sur-Marne, offrant une surface généreuse de 973 m². Idéalement située dans un quartier privilégié, ce terrain représente l’opportunité parfaite pour la réalisation de votre projet de construction de maison. Profitez d’un cadre de vie privilégié, alliant calme et proximité des commodités, dans une ville où la qualité de vie est accentuée par des paysages enchanteurs et une atmosphère conviviale. Mairy-sur-Marne, située dans le département de la Marne, au sein de la région Grand Est, est une localité riche en charme et en commodités. La ville saura vous séduire avec ses nombreuses attractions locales, ses commerces de proximité et ses infrastructures, contribuant à un quotidien agréable. Entre le cadre naturel apaisant et l’animation du centre-ville, Mairy-sur-Marne offre un cadre de vie idéal pour les familles et les amoureux de la tranquillité. N’attendez plus pour envisager de construire votre future maison dans ce lieu d’exception ! Ne manquez pas cette opportunité unique d’acquérir un terrain au potentiel incroyable, permettant de concrétiser vos rêves de construction. Contactez-nous dès maintenant pour plus d’informations ! À noter qu’en tant que constructeur, nous ne sommes pas mandatés pour réaliser la vente de ce terrain.
Mairy-sur-Marne
TERRAIN ET MAISONSur ce terrain, nous vous proposons cette maison neuve Perrière de 89 m², conçue par Babeau-Seguin, le constructeur offrant le meilleur rapport qualité/prix du marché. Cette maison traditionnelle se distingue par une avancée de toit qui protège les portes-fenêtres de la façade avant ainsi que la porte d’entrée, ajoutant à la fois charme et fonctionnalité.La Perrière dispose de 4 pièces, dont 3 chambres, ce qui en fait une maison familiale par excellence. Vous avez la possibilité de choisir entre une toiture à 2 pans ou à 4 pans, selon vos préférences esthétiques. De plus, ce modèle peut être agrémenté d’un garage ou d’un sous-sol, disponibles en option, pour répondre à vos besoins spécifiques.Cette maison neuve est basse consommation et conforme à la RE2020, garantissant des performances énergétiques optimales et un respect des normes environnementales actuelles. Avec un très bon rapport qualité/prix et tout le savoir-faire de Babeau-Seguin, la Perrière est une maison à prix réduit sans pour autant être une maison low-cost.Le plan de cette maison est personnalisable en fonction de votre mode de vie, vous permettant de créer un espace qui vous ressemble. Ne manquez pas cette opportunité de construire la maison de vos rêves sur ce terrain !
Sarry
TERRAINDécouvrez une opportunité exceptionnelle d’acquérir un terrain viabilisé de 383 m², idéalement situé en plein cœur de Sarry, dans le département de la Marne, région Grand Est. Ce terrain plat offre un cadre paisible et ensoleillé, parfaitement adapté à votre projet de construction de maison. Sa proximité avec le centre-ville et les commodités en fait un emplacement de choix pour bâtir votre futur chez-vous dans un environnement sécurisé et arboré. Sarry se distingue par son ambiance conviviale et ses nombreuses attractions locales. Vous bénéficierez de la proximité des commerces, des écoles, ainsi que d’un collège et d’un lycée, garantissant ainsi un accès facile aux services nécessaires pour votre famille. Lieu de calme et de sérénité, le terrain se trouve à quelques pas du cadre champêtre, tout en étant connecté aux infrastructures modernes dont vous pouvez rêver. Ne manquez pas cette occasion unique d’acquérir un terrain dans une ville dynamique et attrayante. Ne laissez pas passer ce terrain avec un potentiel immense pour concrétiser votre projet de vie. Contactez-nous pour plus d’informations et envisagez dès aujourd’hui cette opportunité d’achat rare. À noter qu’en tant que constructeur, nous ne sommes pas mandatés pour réaliser la vente de ce terrain.
Sarry
TERRAIN ET MAISONRéalisez votre projet de construction de maison RE 2020 avec PAVILLONS D'ÎLE-DE-FRANCE (constructeur de maisons de gamme et sur-mesure depuis plus de 50 ans) :- Plan sur-mesure et personnalisé de 2 à 5 chambres- Mode de chauffage au choix- Grands choix d'équipements et de prestations- Matériaux de qualité selon les normes en vigueur- Accompagnement dans le choix et l’acquisition du terrainInformations du terrain : Autres parcelles disponiblesDemandez une étude gratuite et personnalisée de votre projet de construction !Contactez Vincent AUGE au (Numéro supprimé) ou au (Numéro supprimé) (Pavillons d'Île-de-France – Agence de Reims).Prix avec assurance dommages-ouvrage comprise, hors VRD, terrain viabilisé, assainissement compris, frais de notaire non compris, taxes non comprises, frais divers non compris. Terrain sélectionné et vu pour vous sous réserve de disponibilité et au prix indiqué par notre partenaire foncier. Visuels non contractuels.Cette annonce a été créée et diffusée avec le logiciel VITAHOME.
L’actualité immobilière à Saint-Germain-la-Ville
27/11/2023
02/11/2023
30/10/2023
20/10/2023
16/10/2023
16/10/2023