Maison à construire à Suippes (51600)
Images
Description
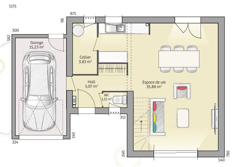
À Suippes, maison neuve (normes RE 2020) de 90m2 avec patio.
Maison de construction traditionnelle (matériaux de qualité, ossature en brique) de 3 chambres (possibilité d'une quatrième). Le modèle présenté est le modèle Open Nord ETG L GA accès Sud 90 so chic d'une surface habitable de 90m2 et compte une pièce de vie ouverte sur la cuisine, une salle de bain, 3 chambres, avec espace pour les placards, deux wc, un cellier et un garage. Il est possible de personnaliser ces plans afin qu'ils répondent parfaitement à vos attentes.
Terrain constructible de 400m2 entièrement viabilisé à Suippes parfaitement plat et idéalement situé au calme et proche de toutes les commodités.
Suippes est une commune recherchée pour son axe direct, ses commodités (écoles, commerces et gare sur place) et sa proximité avec Châlons en Champagne, Mourmelon le Grand, Mourmelon le Petit, Livry-Louvercy et Reims.
Pour plus de renseignements vous pouvez me contacter , Nicolas GUILLAUME de l'agence Maisons France Confort de Cormontreuil au (Numéro supprimé)
Logement susceptibles de vous intéresser
Nous vous proposons de découvrir aussi cette sélection de logements situés à moins de 10km de Suippes et qui seraient susceptibles de vous intéresser.

Suippes
TERRAINTerrain constructible de 400m2 entièrement viabilisé à Suippes parfaitement plat et idéalement situé au calme et proche de toutes les commodités.Suippes est une commune recherchée pour son axe direct, ses commodités (écoles, commerces et gare sur place) et sa proximité avec Châlons en Champagne, Mourmelon le Grand, Mourmelon le Petit, Livry-Louvercy et Reims.Pour plus de renseignements vous pouvez me contacter , Nicolas GUILLAUME de l’agence Maisons France Confort de Cormontreuil au (Numéro supprimé)

Suippes
TERRAIN ET MAISONEn vente à Suippes maison neuve de plain-pied de 85m2 avec 3 chambres. Le modèle présenté est Open Nord PP GI 85 design, il est équipé d’une pièce de vie de 43m² ouverte sur la cuisine, d’une salle de bain avec douche ou baignoire, un wc séparé, 3 chambres avec placards, un cellier et un garage. Il est possible de personnaliser ces plans afin qu’ils répondent parfaitement à vos attentes, en ajoutant par exemple une suite parentale avec dressing, ou encore en aménageant le garage en pièce supplémentaire.La construction traditionnelle aux normes RE2020 de la maison est réalisée en brique et l’ensemble des matériaux utilisés sont de qualité afin de vous assurer un investissement durable.Terrain constructible de 400m2 entièrement viabilisé à Suippes parfaitement plat et idéalement situé au calme et proche de toutes les commodités.Suippes est une commune recherchée pour son axe direct, ses commodités (écoles, commerces et gare sur place) et sa proximité avec Châlons en Champagne, Mourmelon le Grand, Mourmelon le Petit, Livry-Louvercy et Reims.Pour plus de renseignements vous pouvez me contacter , Nicolas GUILLAUME de l’agence Maisons France Confort de Cormontreuil au (Numéro supprimé)

Suippes
TERRAIN ET MAISONMaison de 111m² de plain-pied en L à acheter à Suippes.Le modèle de maison qui vous est présenté est Lumina 106 GA, elle est composée d’une pièce de vie ouverte sur la cuisine, une salle de bains (avec douche et baignoire), deux wc, un espace nuit comprenant 4 chambres avec placards (dont une suite parentale avec dressing et salle d’eau privative), un cellier et un garage. Il est possible de personnaliser ces plans afin qu’ils répondent parfaitement à vos attentes.La construction traditionnelle aux normes RE2020 de la maison est réalisée en brique et l’ensemble des matériaux utilisés sont de qualité afin de vous assurer un investissement durable.Terrain constructible de 400m2 entièrement viabilisé à Suippes parfaitement plat et idéalement situé au calme et proche de toutes les commodités.Suippes est une commune recherchée pour son axe direct, ses commodités (écoles, commerces et gare sur place) et sa proximité avec Châlons en Champagne, Mourmelon le Grand, Mourmelon le Petit, Livry-Louvercy et Reims.Pour plus de renseignements vous pouvez me contacter , Nicolas GUILLAUME de l’agence Maisons France Confort de Cormontreuil au (Numéro supprimé)

Suippes
TERRAIN ET MAISONMaison neuve de 95m² à Suippes. Le modèle présenté est Concept PPGI 95. Maison à l’architecture très moderne et design composée d’une grande pièce de vie ouverte sur la cuisine, 3 chambres (dont une suite parentale avec dressing et salle de bain privative), une salle d’eau, deux wc, un cellier et un garage. La construction traditionnelle aux normes RE2020 de la maison est réalisée en brique et l’ensemble des matériaux utilisés sont de qualité afin de vous assurer un investissement durable.Terrain constructible de 400m2 entièrement viabilisé à Suippes parfaitement plat et idéalement situé au calme et proche de toutes les commodités.Suippes est une commune recherchée pour son axe direct, ses commodités (écoles, commerces et gare sur place) et sa proximité avec Châlons en Champagne, Mourmelon le Grand, Mourmelon le Petit, Livry-Louvercy et Reims.Pour plus de renseignements vous pouvez me contacter , Nicolas GUILLAUME de l’agence Maisons France Confort de Cormontreuil au (Numéro supprimé)

Suippes
TERRAIN ET MAISONÀ Suippes maison neuve de 125 m² habitables et 4 chambres. Le modèle de maison est Inova 125. Conception contemporaine pour ce projet de maison à toit à 4 pans composé d’un espace de vie ouvert sur la cuisine, une salle d’eau, un espace nuit comprenant 4 chambres avec placards (dont une suite parentale au rez-de-chaussée avec salle d’eau privative et dressing), un cellier et un garage. La construction traditionnelle aux normes RE2020 de la maison est réalisée en brique et l’ensemble des matériaux utilisés sont de qualité afin de vous assurer un investissement durable.Terrain constructible de 400m2 entièrement viabilisé à Suippes parfaitement plat et idéalement situé au calme et proche de toutes les commodités.Suippes est une commune recherchée pour son axe direct, ses commodités (écoles, commerces et gare sur place) et sa proximité avec Châlons en Champagne, Mourmelon le Grand, Mourmelon le Petit, Livry-Louvercy et Reims.Pour plus de renseignements vous pouvez me contacter , Nicolas GUILLAUME de l’agence Maisons France Confort de Cormontreuil au (Numéro supprimé)

Suippes
TERRAIN ET MAISONÀ Suippes, maison neuve de 115m² avec 4 chambres à acheter.Le modèle de maison qui vous est présenté est Horizon 115 GA. L’intérieur est constitué d’un espace de vie ouvert sur la cuisine, une salle de bains, deux wc, 4 chambres (dont une suite parentale avec dressing et salle d’eau privative au rez-de-chaussée), et un cellier. La maison dispose également d’un garage accolé communiquant par la maison via le cellier. La construction traditionnelle aux normes RE2020 de la maison est réalisée en brique et l’ensemble des matériaux utilisés sont de qualité afin de vous assurer un investissement durable.Terrain constructible de 400m2 entièrement viabilisé à Suippes parfaitement plat et idéalement situé au calme et proche de toutes les commodités.Suippes est une commune recherchée pour son axe direct, ses commodités (écoles, commerces et gare sur place) et sa proximité avec Châlons en Champagne, Mourmelon le Grand, Mourmelon le Petit, Livry-Louvercy et Reims.Pour plus de renseignements vous pouvez me contacter , Nicolas GUILLAUME de l’agence Maisons France Confort de Cormontreuil au (Numéro supprimé)

Suippes
TERRAIN ET MAISONÀ acheter à Suippes, maison neuve de 150 m² habitables bénéficiant de 5 chambres.Le modèle de maison qui vous est présenté est Lumina 150 R+1 GI. Conception contemporaine pour ce projet de maison qui comprend 5 chambres avec espace pour les placards dont deux suites parentales avec dressing et salle d’eau privative (une au rez-de-chaussée), deux wc, une salle de bains, une grande pièce de vie ouverte sur la cuisine, un cellier et un garage.La construction traditionnelle aux normes RE2020 de la maison est réalisée en brique et l’ensemble des matériaux utilisés sont de qualité afin de vous assurer un investissement durable.Terrain constructible de 400m2 entièrement viabilisé à Suippes parfaitement plat et idéalement situé au calme et proche de toutes les commodités.Suippes est une commune recherchée pour son axe direct, ses commodités (écoles, commerces et gare sur place) et sa proximité avec Châlons en Champagne, Mourmelon le Grand, Mourmelon le Petit, Livry-Louvercy et Reims.Pour plus de renseignements vous pouvez me contacter , Nicolas GUILLAUME de l’agence Maisons France Confort de Cormontreuil au (Numéro supprimé)

Suippes
TERRAIN ET MAISONMaison neuve à Suippes de 120m² avec 5 chambres.Le modèle présenté est Actua 120 R+1 GA. Dans 120m2, l’intérieur est constitué d’un espace de vie ouvert sur la cuisine, une salle de bains, deux wc, 5 chambres (dont une suite parentale avec dressing et salle d’eau privative), et un cellier. La maison dispose également d’un garage accolé communiquant par la maison via le cellier. La construction traditionnelle aux normes RE2020 de la maison est réalisée en brique et l’ensemble des matériaux utilisés sont de qualité afin de vous assurer un investissement durable.Terrain constructible de 400m2 entièrement viabilisé à Suippes parfaitement plat et idéalement situé au calme et proche de toutes les commodités.Suippes est une commune recherchée pour son axe direct, ses commodités (écoles, commerces et gare sur place) et sa proximité avec Châlons en Champagne, Mourmelon le Grand, Mourmelon le Petit, Livry-Louvercy et Reims.Pour plus de renseignements vous pouvez me contacter , Nicolas GUILLAUME de l’agence Maisons France Confort de Cormontreuil au (Numéro supprimé)

Suippes
TERRAIN ET MAISONMaison de 155m² avec 5 chambres à Suippes.Le modèle de maison présenté sur le terrain est Actua 155 R+1 GA. Cette maison neuve totalisant 155m2 est composée d’une belle entrée, une pièce de vie ouverte sur la cuisine, 5 chambres avec espace pour les placards (dont une grande suite parentale au rez-de-chaussée avec dressing et salle d’eau privative), une salle de bains, un grand palier ouvert, deux wc, un cellier et un garage.La construction traditionnelle aux normes RE2020 de la maison est réalisée en brique et l’ensemble des matériaux utilisés sont de qualité afin de vous assurer un investissement durable.Terrain constructible de 400m2 entièrement viabilisé à Suippes parfaitement plat et idéalement situé au calme et proche de toutes les commodités.Suippes est une commune recherchée pour son axe direct, ses commodités (écoles, commerces et gare sur place) et sa proximité avec Châlons en Champagne, Mourmelon le Grand, Mourmelon le Petit, Livry-Louvercy et Reims.Pour plus de renseignements vous pouvez me contacter , Nicolas GUILLAUME de l’agence Maisons France Confort de Cormontreuil au (Numéro supprimé)
L’actualité immobilière à Suippes





