Maison à construire à Villers-Marmery (51380)
Images
Description
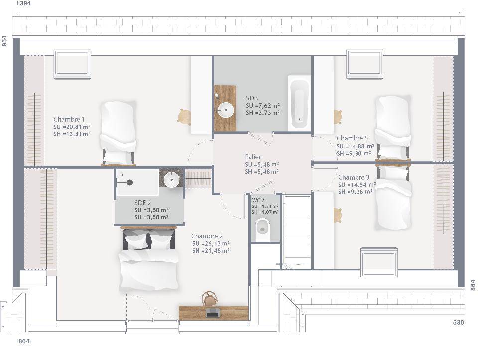
À acheter à Villers-Marmery, maison neuve de 150 m² habitables bénéficiant de 5 chambres.
Le modèle de maison qui vous est présenté est Lumina 150 R+1 GI. Conception contemporaine pour ce projet de maison qui comprend 5 chambres avec espace pour les placards dont deux suites parentales avec dressing et salle d'eau privative (une au rez-de-chaussée), deux wc, une salle de bains, une grande pièce de vie ouverte sur la cuisine, un cellier et un garage.
La construction traditionnelle aux normes RE2020 de la maison est réalisée en brique et l'ensemble des matériaux utilisés sont de qualité afin de vous assurer un investissement durable.
Terrain constructible de 475m2 entièrement viabilisé à Villers-Marmery parfaitement plat et idéalement situé au calme et proche de toutes les commodités. Environnement de qualité aux portes de Reims.
Villers-Marmery est une commune recherchée pour son axe direct, ses commodités à deux pas et sa proximité avec Reims, Verzy, Les Petites Loges, Sept-Saulx, Trépail, Ambonnay, Bouzy, Vaudemange, Billy le Grand, Verzenay, Mailly-Champagne, Val-de-Vesle, Prunay, et Beaumont sur Vesle.
Pour plus de renseignements vous pouvez me contacter , Nicolas GUILLAUME de l'agence Maisons France Confort de Cormontreuil au (Numéro supprimé)
Logement susceptibles de vous intéresser
Nous vous proposons de découvrir aussi cette sélection de logements situés à moins de 10km de Villers-Marmery et qui seraient susceptibles de vous intéresser.

Condé-sur-Marne
TERRAINNous proposons à la vente un terrain de 723 m², situé dans le charmant lotissement de Condé-sur-Marne, au cœur du département de la Marne en région Grand Est. Ce terrain viabilisé, parfaitement plat, offre un cadre champêtre à la fois sécurisé et ensoleillé, idéal pour un projet de construction de maison individuelle. Sa situation au calme en fait un véritable havre de paix, propice à la détente et à l’épanouissement familial, permettant de réaliser la maison de vos rêves dans un environnement privilégié. Condé-sur-Marne est une ville qui conjugue harmonieusement nature et proximité des commodités, offrant aux résidents un cadre de vie agréable. Vous serez à proximité immédiate des attractions locales telles que des espaces verts, des chemins de randonnée et des infrastructures éducatives. De plus, la commune bénéficie de toutes les commodités nécessaires au quotidien, tout en étant idéalement située pour accéder aux grands axes routiers. Ce terrain représente ainsi une opportunité rare dans une localité prisée, garantissant un équilibre parfait entre tranquillité et accessibilité. Ce terrain promet d’être le terrain parfait pour réaliser votre projet de vie. N’attendez plus pour envisager cette belle opportunité d’achat unique ! À noter qu’en tant que constructeur, nous ne sommes pas mandatés pour réaliser la vente de ce terrain.

Condé-sur-Marne
TERRAIN ET MAISONSur ce terrain, nous vous proposons cette maison neuve : la Focus Family. Conçue par Babeau-Seguin, constructeur offrant le meilleur rapport qualité/prix du marché, cette maison familiale à tout petit prix est idéale pour ceux qui souhaitent allier confort et économies.Avec une surface habitable de 89 m², la Focus Family vous offre un espace généreux et bien agencé. Elle comprend 4 chambres, parfaites pour accueillir toute votre famille, ainsi qu’un grand séjour traversant avec cuisine ouverte, pour un total de 4 pièces. Vous apprécierez également le garage intégré, pratique pour stationner votre véhicule ou pour du rangement supplémentaire.L’enduit bi-ton de la façade apporte une touche moderne et élégante à cette maison. De plus, les options les plus demandées par nos clients, comme les menuiseries en aluminium, sont disponibles pour personnaliser votre future habitation selon vos goûts.La Focus Family est une maison basse consommation, conforme à la réglementation environnementale RE2020. Elle est équipée des dernières innovations technologiques pour garantir une isolation thermique et phonique optimale, tout en étant économique et respectueuse de l’environnement.Ne faites aucune concession sur la qualité avec cette maison low cost de luxe. Babeau-Seguin met tout son savoir-faire et son professionnalisme dans la construction de la gamme Focus, en utilisant les meilleurs matériaux et une charpente traditionnelle.N’attendez plus pour réaliser votre projet de maison familiale à petit prix avec la Focus Family, une maison spacieuse, écolo et accessible à tous les budgets.

Les Petites-Loges
TERRAIN ET MAISONMaison neuve de 90m2 avec 3 chambres à vendre aux Petites Loges, construction avec des matériaux de qualité (ossature en brique) répondant aux dernières normes RE2020.Le modèle présenté est Eco Concept 90 R+1 GI. Des lignes très design pour cette maison qui se compose de 3 chambres avec placards, un espace de vie ouvert sur la cuisine, une salle de bain, deux WC (dont un au rez-de-chaussée), un cellier et un garage.La construction traditionnelle aux normes RE2020 de la maison est réalisée en brique et l’ensemble des matériaux utilisés sont de qualité afin de vous assurer un investissement durable.Terrain constructible de 712m2 entièrement viabilisé aux Petites Loges parfaitement plat et idéalement situé proche de toutes les commodités. Environnement de qualité aux portes de Reims.Les Petites Loges est une commune recherchée pour son axe direct, ses commodités à deux pas et sa proximité avec Reims, Verzy, Sept-Saulx, Trépail, Ambonnay, Bouzy, Vaudemange, Billy le Grand, Verzenay, Mailly-Champagne, Val-de-Vesle, Prunay, Beaumont sur Vesle, Mourmelon le Grand, Mourmelon le Petit, Sept Saulx, Bouy, Les Grandes Loges et Châlons en ChampagnePour plus de renseignements vous pouvez me contacter , Nicolas GUILLAUME de l’agence Maisons France Confort de Cormontreuil au (Numéro supprimé)

Les Petites-Loges
TERRAIN ET MAISONMaison neuve de 107m2 avec 4 chambres à vendre aux Petites Loges, construction avec des matériaux de qualité (ossature en brique) répondant aux dernières normes RE2020.Le modèle présenté est Eco Concept 115 R+1 GI. Des lignes très design pour cette maison qui se compose de 4 chambres avec placards (dont une suite parentale au rez-de-chaussée avec dressing et salle d’eau privative), un espace de vie ouvert sur la cuisine, une salle de bain, deux WC (dont un au rez-de-chaussée), un cellier et un garage.La construction traditionnelle aux normes RE2020 de la maison est réalisée en brique et l’ensemble des matériaux utilisés sont de qualité afin de vous assurer un investissement durable.Terrain constructible de 712m2 entièrement viabilisé aux Petites Loges parfaitement plat et idéalement situé proche de toutes les commodités. Environnement de qualité aux portes de Reims.Les Petites Loges est une commune recherchée pour son axe direct, ses commodités à deux pas et sa proximité avec Reims, Verzy, Sept-Saulx, Trépail, Ambonnay, Bouzy, Vaudemange, Billy le Grand, Verzenay, Mailly-Champagne, Val-de-Vesle, Prunay, Beaumont sur Vesle, Mourmelon le Grand, Mourmelon le Petit, Sept Saulx, Bouy, Les Grandes Loges et Châlons en ChampagnePour plus de renseignements vous pouvez me contacter , Nicolas GUILLAUME de l’agence Maisons France Confort de Cormontreuil au (Numéro supprimé)

Les Petites-Loges
TERRAIN ET MAISONÀ acheter aux Petites Loges : maison de plain-pied de 100m2 habitables avec 4 chambres et un garage.La maison neuve présentée sur ce terrain est Open PP GA 4 chambres design 100m². Elle est composée d’une pièce de vie ouverte sur la cuisine de 40m², d’une salle de bains avec baignoire et douche, un wc séparé, 4 chambres avec espace pour les placards, et un garage avec un accès par le cellier. Il est possible de personnaliser ces plans afin qu’ils répondent parfaitement à vos attentes, en ajoutant par exemple une suite parentale avec dressing, ou encore en aménageant le garage en pièce supplémentaire.La construction traditionnelle aux normes RE2020 de la maison est réalisée en brique et l’ensemble des matériaux utilisés sont de qualité afin de vous assurer un investissement durable.Terrain constructible de 712m2 entièrement viabilisé aux Petites Loges parfaitement plat et idéalement situé proche de toutes les commodités. Environnement de qualité aux portes de Reims.Les Petites Loges est une commune recherchée pour son axe direct, ses commodités à deux pas et sa proximité avec Reims, Verzy, Sept-Saulx, Trépail, Ambonnay, Bouzy, Vaudemange, Billy le Grand, Verzenay, Mailly-Champagne, Val-de-Vesle, Prunay, Beaumont sur Vesle, Mourmelon le Grand, Mourmelon le Petit, Sept Saulx, Bouy, Les Grandes Loges et Châlons en ChampagnePour plus de renseignements vous pouvez me contacter , Nicolas GUILLAUME de l’agence Maisons France Confort de Cormontreuil au (Numéro supprimé)

Les Petites-Loges
TERRAIN ET MAISONAux Petites Loges, grande maison neuve.La maison présentée sur ce terrain est Ultima 120. Architecture contemporaine pour cette maison à toit à 4 pans. Dans 120m2, l’intérieur est constitué d’une pièce de vie ouverte sur la cuisine, 4 chambres avec placards (dont une suite parentale avec salle d’eau privative et dressing) une salle de bains, un cellier et un garage. La construction traditionnelle aux normes RE2020 de la maison est réalisée en brique et l’ensemble des matériaux utilisés sont de qualité afin de vous assurer un investissement durable.Terrain constructible de 712m2 entièrement viabilisé aux Petites Loges parfaitement plat et idéalement situé proche de toutes les commodités. Environnement de qualité aux portes de Reims.Les Petites Loges est une commune recherchée pour son axe direct, ses commodités à deux pas et sa proximité avec Reims, Verzy, Sept-Saulx, Trépail, Ambonnay, Bouzy, Vaudemange, Billy le Grand, Verzenay, Mailly-Champagne, Val-de-Vesle, Prunay, Beaumont sur Vesle, Mourmelon le Grand, Mourmelon le Petit, Sept Saulx, Bouy, Les Grandes Loges et Châlons en ChampagnePour plus de renseignements vous pouvez me contacter , Nicolas GUILLAUME de l’agence Maisons France Confort de Cormontreuil au (Numéro supprimé)

Les Petites-Loges
TERRAIN ET MAISONAux Petites Loges, grande maison neuve.La maison présentée sur ce terrain est Ultima 160. Architecture contemporaine pour cette maison à toit à 4 pans. Dans 160m2, l’intérieur est constitué d’une pièce de vie ouverte sur la cuisine, 5 chambres avec placards (dont une suite parentale au rez-de-chaussée avec salle d’eau privative et dressing) une salle de bains, un cellier et un garage. La construction traditionnelle aux normes RE2020 de la maison est réalisée en brique et l’ensemble des matériaux utilisés sont de qualité afin de vous assurer un investissement durable.Terrain constructible de 712m2 entièrement viabilisé aux Petites Loges parfaitement plat et idéalement situé proche de toutes les commodités. Environnement de qualité aux portes de Reims.Les Petites Loges est une commune recherchée pour son axe direct, ses commodités à deux pas et sa proximité avec Reims, Verzy, Sept-Saulx, Trépail, Ambonnay, Bouzy, Vaudemange, Billy le Grand, Verzenay, Mailly-Champagne, Val-de-Vesle, Prunay, Beaumont sur Vesle, Mourmelon le Grand, Mourmelon le Petit, Sept Saulx, Bouy, Les Grandes Loges et Châlons en ChampagnePour plus de renseignements vous pouvez me contacter , Nicolas GUILLAUME de l’agence Maisons France Confort de Cormontreuil au (Numéro supprimé)

Les Petites-Loges
TERRAIN ET MAISONMaison neuve de 110m2 et 4 chambres à vendre aux Petites Loges construite en brique avec des matériaux de qualité répondant à la norme RE 2020. Le modèle de maison présenté sur le terrain est Rubic 110. Cette maison aux lignes très design totalisant 110m2 est composée d’une pièce de vie ouverte sur la cuisine, d’une salle d’eau, 4 chambres (dont une suite parentale avec dressing et salle d’eau privative), deux WC et un garage.Terrain constructible de 712m2 entièrement viabilisé aux Petites Loges parfaitement plat et idéalement situé proche de toutes les commodités. Environnement de qualité aux portes de Reims.Les Petites Loges est une commune recherchée pour son axe direct, ses commodités à deux pas et sa proximité avec Reims, Verzy, Sept-Saulx, Trépail, Ambonnay, Bouzy, Vaudemange, Billy le Grand, Verzenay, Mailly-Champagne, Val-de-Vesle, Prunay, Beaumont sur Vesle, Mourmelon le Grand, Mourmelon le Petit, Sept Saulx, Bouy, Les Grandes Loges et Châlons en ChampagnePour plus de renseignements vous pouvez me contacter , Nicolas GUILLAUME de l’agence Maisons France Confort de Cormontreuil au (Numéro supprimé)

Les Petites-Loges
TERRAIN ET MAISONMaison neuve de 6 pièces (122 m²) à vendre aux Petites Loges.La maison propose quatre chambres dont une suite parentale (avec salle d’eau et dressing), une salle de bains, une cuisine ouverte sur la pièce de vie , et un cellier.La construction traditionnelle aux normes RE2020 de la maison est réalisée en brique et l’ensemble des matériaux utilisés sont de qualité afin de vous assurer un investissement durable.Terrain constructible de 712m2 entièrement viabilisé aux Petites Loges parfaitement plat et idéalement situé proche de toutes les commodités. Environnement de qualité aux portes de Reims.Les Petites Loges est une commune recherchée pour son axe direct, ses commodités à deux pas et sa proximité avec Reims, Verzy, Sept-Saulx, Trépail, Ambonnay, Bouzy, Vaudemange, Billy le Grand, Verzenay, Mailly-Champagne, Val-de-Vesle, Prunay, Beaumont sur Vesle, Mourmelon le Grand, Mourmelon le Petit, Sept Saulx, Bouy, Les Grandes Loges et Châlons en ChampagnePour plus de renseignements vous pouvez me contacter , Nicolas GUILLAUME de l’agence Maisons France Confort de Cormontreuil au (Numéro supprimé)
L’actualité immobilière à Villers-Marmery





