Maison à construire à Saint-Fort (53200)
Images
Description
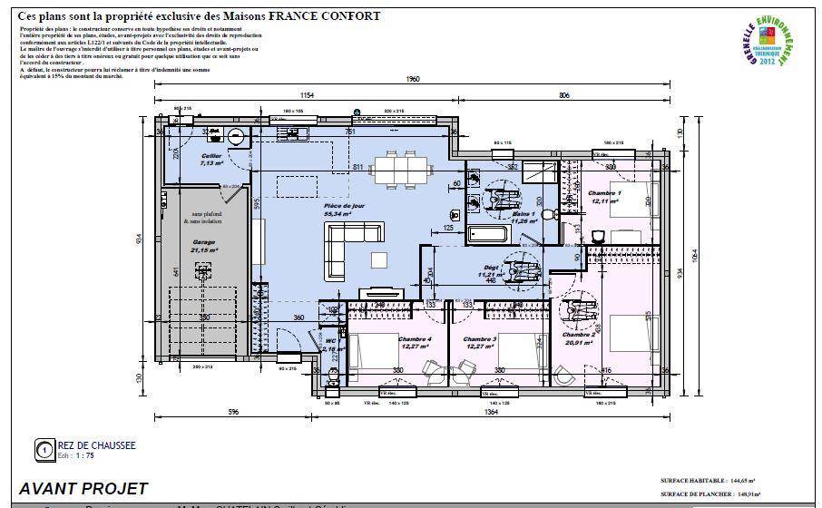
Saint-Fort : maison T5 (144 m²) à vendre
IDÉALEMENT SITUÉE - MAISON 5 PIÈCES NEUVE
À 29 km de Laval, à vendre idéalement située dans Saint-Fort (53200), nous vous présentons cette maison de 5 pièces de plain-pied de 144 m². Conçue de plain-pied, elle offre quatre chambres, une cuisine et une salle de bains.
Le terrain du bien est de 903 m².
Cette maison est neuve.
Cette maison se situe dans un secteur recherché. La nationale N162 est accessible à 4 km. Il y a un tennis à quelques minutes à peine.
Elle est à vendre pour la somme de 391 200 €.
Contactez Claire FERBER (tél : (Numéro supprimé)) pour toute question sur la maison ou sur les démarches à suivre. Maisons France Confort Bonchamp-lès-Laval vous accompagne à toutes les étapes de l'achat et dans tous vos projets immobiliers.
Logement susceptibles de vous intéresser
Nous vous proposons de découvrir aussi cette sélection de logements situés à moins de 10km de Château-Gontier-sur-Mayenne et qui seraient susceptibles de vous intéresser.
Château-Gontier-sur-Mayenne
TERRAIN ET MAISONA CHATEAU-GONTIER sur un terrain de 299 m², Alliance Construction vous propose de réaliser votre projet de construction de maison individuelle d'une surface de 102.5 m² habitables avec 4 chambres, à partir de 277300€*Demandez une étude gratuite et personnalisée de votre projet de construction !* Cette offre comprend :- Garanties constructeurs (dommages ouvrage, garantie de prix ferme et définitif, garantie de livraison, responsabilité civile et décennale).- Branchements aux compteurs et accès empierré sur 5m linéaires.Habitez une maison spécialement pensée et conçue pour vous et votre famille, prête à décorer, adaptée à vos modes de vie, personnalisée selon vos goûts grâce à un large choix d'options, de matériaux et d'innovations !Contactez Patrice (Numéro supprimé)*Prix indicatif pour un projet de construction d'une maison individuelle. Ne sont pas inclus les frais de branchements, raccordements aux réseaux publics, frais d'adaptations, aménagements intérieurs et extérieurs et options. terrain viabilisé, frais de notaire non compris, frais divers non compris. Garanties et assurances obligatoires incluses. Terrain sélectionné par ALLIANCE auprès de nos partenaires fonciers, selon disponibilité, pour la construction d'une maison neuve. Non mandaté pour réaliser la vente (loi du 2 janvier 1970 n°70-9). Visuels non contractuels. Voir détails en agence.Cette annonce a été créée et diffusée avec le logiciel VITAHOME.
Château-Gontier-sur-Mayenne
TERRAIN ET MAISONA CHATEAU-GONTIER sur un terrain de 299 m², Alliance Construction vous propose de réaliser votre projet de construction de maison individuelle d'une surface de 103.51 m² habitables avec 3 chambres, à partir de 265300€*Demandez une étude gratuite et personnalisée de votre projet de construction !* Cette offre comprend :- Garanties constructeurs (dommages ouvrage, garantie de prix ferme et définitif, garantie de livraison, responsabilité civile et décennale).- Branchements aux compteurs et accès empierré sur 5m linéaires.Habitez une maison spécialement pensée et conçue pour vous et votre famille, prête à décorer, adaptée à vos modes de vie, personnalisée selon vos goûts grâce à un large choix d'options, de matériaux et d'innovations !Contactez Patrice (Numéro supprimé)*Prix indicatif pour un projet de construction d'une maison individuelle. Ne sont pas inclus les frais de branchements, raccordements aux réseaux publics, frais d'adaptations, aménagements intérieurs et extérieurs et options. terrain viabilisé, frais de notaire non compris, frais divers non compris. Garanties et assurances obligatoires incluses. Terrain sélectionné par ALLIANCE auprès de nos partenaires fonciers, selon disponibilité, pour la construction d'une maison neuve. Non mandaté pour réaliser la vente (loi du 2 janvier 1970 n°70-9). Visuels non contractuels. Voir détails en agence.Cette annonce a été créée et diffusée avec le logiciel VITAHOME.
Château-Gontier-sur-Mayenne
TERRAINTerrains viabilisés de 315 m² à 434 m², libres de constructeur sur la commune de Château-Gontier-sur-Mayenne, en MayenneDécouvrez notre opération composée de 25 lots « Les Enrouées » située chemin des Enrouées.Idéalement située à 35 minutes de Laval.Au centre d’un triangle Rennes, Angers, Le Mans et à 35 minutes de Laval, Château-Gontier-sur-Mayenne offre un accès facile aux grandes métropoles tout en conservant le charme d’une ville à taille humaine.Retrouvez l’ensemble de nos lots disponibles sur notre site internet.
Château-Gontier-sur-Mayenne
TERRAIN ET MAISONA CHATEAU-GONTIER sur un terrain de 299 m², Alliance Construction vous propose de réaliser votre projet de construction de maison individuelle d'une surface de 98.02 m² habitables avec 3 chambres, à partir de 242100€*Demandez une étude gratuite et personnalisée de votre projet de construction !* Cette offre comprend :- Garanties constructeurs (dommages ouvrage, garantie de prix ferme et définitif, garantie de livraison, responsabilité civile et décennale).- Branchements aux compteurs et accès empierré sur 5m linéaires.Habitez une maison spécialement pensée et conçue pour vous et votre famille, prête à décorer, adaptée à vos modes de vie, personnalisée selon vos goûts grâce à un large choix d'options, de matériaux et d'innovations !Contactez Patrice (Numéro supprimé)*Prix indicatif pour un projet de construction d'une maison individuelle. Ne sont pas inclus les frais de branchements, raccordements aux réseaux publics, frais d'adaptations, aménagements intérieurs et extérieurs et options. terrain viabilisé, frais de notaire non compris, frais divers non compris. Garanties et assurances obligatoires incluses. Terrain sélectionné par ALLIANCE auprès de nos partenaires fonciers, selon disponibilité, pour la construction d'une maison neuve. Non mandaté pour réaliser la vente (loi du 2 janvier 1970 n°70-9). Visuels non contractuels. Voir détails en agence.Cette annonce a été créée et diffusée avec le logiciel VITAHOME.
Château-Gontier-sur-Mayenne
TERRAINPrix : 44000 €.Sur ce terrain de 299 m² à CHATEAU-GONTIER, Alliance Construction vous propose de réaliser votre projet de construction de maison individuelle.Avec Alliance Construction, habitez une maison spécialement pensée et conçue pour vous et votre famille, prête à décorer, adaptée à vos modes de vie, personnalisée selon vos goûts grâce à un large choix d'options, de matériaux et d'innovations ! Demandez une étude gratuite et personnalisée de votre projet de construction sur ce terrain à CHATEAU-GONTIER !Contactez Patrice GIRARD au (Numéro supprimé) (Alliance Construction – Agence d'Angers).Prix hors frais de notaire. Terrain sélectionné par ALLIANCE auprès de nos partenaires fonciers, selon disponibilité, pour la construction d'une maison neuve. Non mandaté pour réaliser la vente (loi du 2 janvier 1970 n°70-9). Visuels non contractuels. Voir détails en agence.Cette annonce a été créée et diffusée avec le logiciel VITAHOME.
Château-Gontier-sur-Mayenne
TERRAIN ET MAISONSaint-Fort : maison T5 (144 m²) à vendreIDÉALEMENT SITUÉE – MAISON 5 PIÈCES NEUVEÀ 29 km de Laval, à vendre idéalement située dans Saint-Fort (53200), nous vous présentons cette maison de 5 pièces de plain-pied de 144 m². Conçue de plain-pied, elle offre quatre chambres, une cuisine et une salle de bains.Le terrain du bien est de 903 m².Cette maison est neuve.Cette maison se situe dans un secteur recherché. La nationale N162 est accessible à 4 km. Il y a un tennis à quelques minutes à peine.Elle est à vendre pour la somme de 391 200 €.Contactez Claire FERBER (tél : (Numéro supprimé)) pour toute question sur la maison ou sur les démarches à suivre. Maisons France Confort Bonchamp-lès-Laval vous accompagne à toutes les étapes de l’achat et dans tous vos projets immobiliers.
Château-Gontier-sur-Mayenne
TERRAIN ET MAISONVENTE d’une maison de 4 pièces (105 m²) à Saint-FortIDÉALEMENT SITUÉE – MAISON 4 PIÈCES NEUVEÀ deux pas de Laval, Maisons France Confort Bonchamp-lès-Laval vous propose cette maison de 4 pièces de plain-pied de 105 m² idéalement située dans Saint-Fort (53200).Son intérieur dispose de trois chambres, d’une cuisine et d’une salle de bains. Cette maison est neuve.Le terrain du bien s’étend sur 903 m².Le bien se situe dans un secteur prisé. La nationale N162 est accessible à 4 km. On trouve un tennis à proximité du logement.Il est proposé à l’achat pour 308 900 €.Contactez notre agence (FERBER Claire : (Numéro supprimé)) pour toute question sur la maison. Concrétisez vos projets immobiliers avec Maisons France Confort Bonchamp-lès-Laval.
Château-Gontier-sur-Mayenne
TERRAIN ET MAISONVENTE d’une maison F5 (105 m²) à Saint-FortIDÉALEMENT SITUÉE – MAISON 5 PIÈCES NEUVEÀ vendre à 29 km de Laval, idéalement située dans Saint-Fort (53200), notre agence Maisons France Confort Bonchamp-lès-Laval est heureuse de vous présenter cette maison de 5 pièces de 105 m² et de 903 m² de terrain. Elle comporte quatre chambres, une cuisine et deux salles de bains.Il s’agit d’une maison de 2 niveaux. Elle est neuve.Cette maison est située dans un quartier convoité. La nationale N162 est accessible à 4 km. On trouve un tennis à proximité.Elle est à vendre pour la somme de 312 700 €.Prenez contact avec Claire FERBER (tél : (Numéro supprimé)) pour toute question sur la maison.
Château-Gontier-sur-Mayenne
TERRAIN ET MAISONSaint-Fort : maison de 5 pièces (120 m²) à vendreIDÉALEMENT SITUÉE – MAISON 5 PIÈCES NEUVEÀ vendre : située à 29 km de Laval, notre agence Maisons France Confort Bonchamp-lès-Laval est heureuse de vous présenter cette maison de 5 pièces de 120 m² et de 903 m² de terrain idéalement située dans Saint-Fort (53200). Son intérieur inclut quatre chambres, une cuisine et deux salles de bains.Cette maison possède 2 niveaux. Elle est neuve.Cette maison se trouve dans un quartier convoité. Il y a un accès à la nationale N162 à 4 km. Il y a un tennis à quelques minutes.Son prix de vente est de 345 200 €.Contactez Claire FERBER ((Numéro supprimé)) pour toute information sur la maison. Concrétisez vos projets immobiliers avec Maisons France Confort Bonchamp-lès-Laval.
L’actualité immobilière à Château-Gontier-sur-Mayenne
27/11/2023
02/11/2023
30/10/2023
20/10/2023
16/10/2023
16/10/2023