Maison à construire à Parné-sur-Roc (53260)
Images
Description
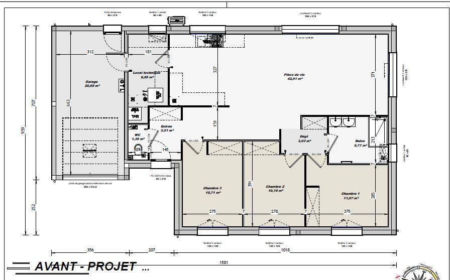
Parné-sur-Roc : maison F4 (94 m²) en vente
IDÉALEMENT SITUÉE - MAISON 4 PIÈCES NEUVE
À vendre : située à quelques kilomètres de Laval, nous sommes heureux de vous proposer, idéalement située dans Parné-sur-Roc (53260), cette maison de 4 pièces de plain-pied de 94 m².
Conçue de plain-pied, elle offre trois chambres, une cuisine et une salle de bains. Cette maison est neuve.
Le terrain du bien est de 564 m².
La maison se situe dans un secteur convoité. On y trouve une école primaire. Il y a un accès à la nationale N162 à 5 km. On trouve un tennis, une bibliothèque et une épicerie dans les environs.
Elle est à vendre pour la somme de 244 300 €.
Contactez Claire FERBER ((Numéro supprimé)) pour tout renseignement sur la propriété et sur les modalités de vente. Maisons France Confort Bonchamp-lès-Laval vous accompagne dans toutes vos démarches et dans tous vos projets immobiliers.
Logement susceptibles de vous intéresser
Nous vous proposons de découvrir aussi cette sélection de logements situés à moins de 10km de Parné-sur-Roc et qui seraient susceptibles de vous intéresser.
Laval
TERRAINLAVAL. Terrain à bâtir de 305 m² , viabilisé une partie, les réseaux sont à proximité . Proches des commerces, .il offre de multiples possibilités de construction pour réaliser un projet personnalisé. Sa superficie généreuse permet d’envisager tout autre aménagement extérieur selon les envies des futurs propriétaires. Opportunité rare pour concrétiser un projet de construction sur mesure dans un environnement privilégiéLes informations sur les risques auxquels ce bien est exposé sont disponibles sur le site Géorisques : www.georisques.gouv.frPrix de vente : 75 000 €Honoraires charge vendeurContactez votre consultant megAgence : Katia BRIAND, Tél. : (Numéro supprimé), E-mail : (Email supprimé) – EI – Agent commercial immatriculé au RSAC de LAVAL sous le numéro 478 424 724
Laval
TERRAINVENTE d’un terrain de 1 000 m² à LavalQUARTIER RECHERCHÉ – VUE SANS VIS-À-VISÀ Laval (53000) niché dans un quartier recherché, découvrez ce terrain de 1 000 m². Il profite d’une vue sans vis-à-vis. Dans un secteur prisé, ce terrain est proche des écoles et des commerces. Il y a des écoles (de la maternelle au lycée) à moins de 10 minutes à pied. Côté transports, on trouve la gare Laval à proximité. L’autoroute A81 et la nationale N162 sont accessibles à moins de 4 km. Il y a des commerces, des boulangeries, trois supermarchés, un bureau de poste et deux épiceries à quelques minutes.Ce terrain est proposé à l’achat pour 123 000 €. Contactez notre agence (FERBER Claire : (Numéro supprimé)) pour tout renseignement sur le terrain ou sur les démarches à suivre. Maisons France Confort Bonchamp-lès-Laval vous accompagne dans tous vos projets immobiliers et à toutes les étapes de l’achat.
Laval
TERRAIN ET MAISONVENTE d’une maison F5 (120 m²) à LavalQUARTIER RECHERCHÉ – MAISON 5 PIÈCES NEUVEVotre agence Maisons France Confort Bonchamp-lès-Laval est heureuse de vous présenter en vente, dans un quartier convoité de Laval (53000), cette maison de 5 pièces de 120 m².Cette maison comporte 2 niveaux. Elle comporte quatre chambres, une cuisine et deux salles de bains. La maison est neuve.Le terrain du bien est de 1 000 m².Ce bien est situé dans un secteur prisé. On trouve des écoles (de la maternelle au lycée) à moins de 10 minutes à pied. Niveau transports, il y a la gare Laval dans les environs. L’autoroute A81 et la nationale N162 sont accessibles à moins de 4 km. On trouve des commerces, des boulangeries, trois supermarchés, trois boucheries-charcuteries et une poissonnerie à quelques minutes.Son prix de vente est de 411 000 €.Contactez Claire FERBER ((Numéro supprimé)) pour tout renseignement sur la maison et sur les démarches à suivre.
Laval
TERRAIN ET MAISONVENTE : maison T5 (130 m²) à LavalQUARTIER RECHERCHÉ – MAISON 5 PIÈCES NEUVENous sommes heureux de vous présenter cette maison de 5 pièces de 130 m² nichée dans un quartier prisé de Laval (53000). Elle se divise en quatre chambres, une cuisine et deux salles de bains.Le terrain du bien s’étend sur 1 000 m².Cette maison possède 2 niveaux. Elle est neuve.La maison se situe dans un secteur recherché. Des établissements scolaires (de la maternelle au lycée) sont implantés à moins de 10 minutes à pied. Niveau transports en commun, il y a la gare Laval dans un rayon de 1 km. L’autoroute A81 et la nationale N162 sont accessibles à moins de 4 km. On trouve des commerces, des boulangeries, trois supermarchés, une poissonnerie et un bureau de poste dans les environs.Son prix de vente est de 436 000 €.Contactez notre agence (Claire FERBER : (Numéro supprimé)) pour tout renseignement sur la maison ou sur les modalités de vente. Maisons France Confort Bonchamp-lès-Laval vous accompagne dans tous vos projets immobiliers et à toutes les étapes de votre projet.
Laval
TERRAIN ET MAISONLaval : maison de 5 pièces (135 m²) à vendreQUARTIER RECHERCHÉ – MAISON 5 PIÈCES NEUVEEn vente : située dans un secteur convoité de Laval (53000), Maisons France Confort Bonchamp-lès-Laval vous propose cette maison de 5 pièces de 135 m².C’est une maison de 2 niveaux. Elle est composée de quatre chambres, d’une cuisine et de deux salles de bains. Cette maison est neuve.Le terrain du bien s’étend sur 1 000 m².La maison se situe dans un quartier attractif. On trouve des écoles de tous niveaux (de la maternelle au lycée) à moins de 10 minutes à pied. Niveau transports, il y a la gare Laval juste à côté. L’autoroute A81 et la nationale N162 sont accessibles à moins de 4 km. On trouve des commerces, des boulangeries, trois supermarchés, un bureau de poste et une poissonnerie dans les environs.Elle est à vendre pour la somme de 448 500 €.Contactez notre agence (Claire FERBER : (Numéro supprimé)) pour plus de renseignements sur la maison, sur les démarches à suivre ou sur les modalités de vente. Maisons France Confort Bonchamp-lès-Laval est là pour vous accompagner dans tous vos projets immobiliers.
Laval
TERRAIN ET MAISONVENTE : maison F5 (116 m²) à LavalQUARTIER RECHERCHÉ – MAISON 5 PIÈCES NEUVEEn vente dans un quartier prisé de Laval (53000), notre agence Maisons France Confort Bonchamp-lès-Laval est heureuse de vous présenter cette maison de 5 pièces de plain-pied de 116 m².Conçue de plain-pied, elle dispose de trois chambres, d’une cuisine et d’une salle de bains. Cette maison est neuve.Le terrain de la propriété est de 1 000 m².Cette maison est située dans un secteur attractif. On trouve des établissements scolaires de tous niveaux (de la maternelle au lycée) à moins de 10 minutes à pied. Niveau transports en commun, il y a la gare Laval à quelques pas de la maison. L’autoroute A81 et la nationale N162 sont accessibles à moins de 4 km. On trouve des commerces, des boulangeries, trois supermarchés, une poissonnerie et trois boucheries-charcuteries à quelques minutes du logement.Elle est proposée à l’achat pour 394 600 €.Contactez Claire FERBER (tél : (Numéro supprimé)) pour tout renseignement sur la maison ou sur les modalités de vente. Donnez vie à vos projets immobiliers avec Maisons France Confort Bonchamp-lès-Laval.
Laval
TERRAIN ET MAISONLaval : maison T4 (100 m²) en venteQUARTIER RECHERCHÉ – MAISON 4 PIÈCES NEUVEÀ vendre située dans un quartier recherché de Laval (53000), nous sommes heureux de vous présenter cette maison de 4 pièces de plain-pied de 100 m².Conçue de plain-pied, elle compte trois chambres, une cuisine et une salle de bains. Cette maison est neuve.Le terrain de la propriété s’étend sur 1 000 m².Le bien se trouve dans un secteur convoité. Il y a des écoles de tous types à moins de 10 minutes à pied. Niveau transports en commun, on trouve la gare Laval à quelques pas du bien. L’autoroute A81 et la nationale N162 sont accessibles à moins de 4 km. Il y a des commerces, des boulangeries, trois supermarchés, trois boucheries-charcuteries et un bureau de poste à quelques minutes à peine.Son prix de vente est de 357 800 €.N’hésitez pas à prendre contact avec Claire FERBER ((Numéro supprimé)) pour toute question sur la maison et sur les modalités de vente.
Laval
TERRAIN ET MAISONVENTE : maison de 4 pièces (105 m²) à LavalQUARTIER RECHERCHÉ – MAISON 4 PIÈCES NEUVENotre agence Maisons France Confort Bonchamp-lès-Laval est ravie de vous proposer cette maison de 4 pièces de plain-pied de 105 m² en vente, dans un quartier recherché de Laval (53000). Elle compte trois chambres, une cuisine et une salle de bains.Le terrain de la propriété est de 1 000 m².Cette maison est neuve.Cette maison est située dans un secteur attractif. On trouve des établissements scolaires (de la maternelle au lycée) à moins de 10 minutes à pied. Niveau transports, il y a la gare Laval à proximité. L’autoroute A81 et la nationale N162 sont accessibles à moins de 4 km. On trouve des commerces, des boulangeries, trois supermarchés, trois boucheries-charcuteries et deux épiceries dans les environs.Elle est à vendre pour la somme de 373 400 €.Contactez Claire FERBER ((Numéro supprimé)) pour tout renseignement sur le bien.
Parné-sur-Roc
TERRAINTerrain de 502 m² à vendre à Parné-sur-RocPROCHE DE LAVALGrand terrain à vendre à 10 km de Laval. De 502 m², ce terrain se situe dans Parné-sur-Roc (53260). Une école primaire est implantée dans le quartier. On trouve un accès à la nationale N162 à 5 km. Il y a un tennis, une bibliothèque et une épicerie dans les environs.Son prix de vente est de 48 000 €. N’hésitez pas à prendre contact avec notre agence (Claire FERBER : (Numéro supprimé)) pour tout renseignement sur ce terrain, sur les démarches à suivre ou sur les modalités de vente. Maisons France Confort Bonchamp-lès-Laval est là pour vous accompagner dans tous vos projets immobiliers.
L’actualité immobilière à Parné-sur-Roc
27/11/2023
02/11/2023
30/10/2023
20/10/2023
16/10/2023
16/10/2023