Maison à construire à Parné-sur-Roc (53260)
Images
Description
VENTE d'une maison de 3 pièces (60 m²) à Parné-sur-Roc
PROCHE DE LAVAL - MAISON 3 PIÈCES NEUVE
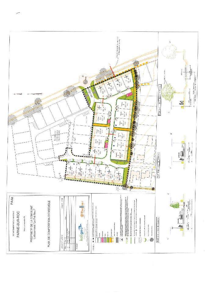
À vendre : située à 10 km de Laval, à Parné-sur-Roc (53260), nous vous proposons cette maison de 3 pièces de plain-pied de 60 m².
Elle inclut une chambre, une cuisine et une salle de bains. Cette maison est neuve.
Le terrain de la propriété s'étend sur 502 m².
Une école primaire est implantée dans le quartier. On trouve un accès à la nationale N162 à 5 km. Il y a un tennis, une bibliothèque et une épicerie dans les environs.
Son prix de vente est de 196 700 €.
Prenez contact avec Claire FERBER (tél : (Numéro supprimé)) pour plus d'informations sur la maison, sur les démarches à suivre ou sur les modalités de vente.
Logement susceptibles de vous intéresser
Nous vous proposons de découvrir aussi cette sélection de logements situés à moins de 10km de Parné-sur-Roc et qui seraient susceptibles de vous intéresser.
Bonchamp-lès-Laval
TERRAIN ET MAISONVENTE : maison F4 (95 m²) à Bonchamp-lès-LavalIDÉALEMENT SITUÉE – MAISON 4 PIÈCES NEUVEÀ vendre à quelques kilomètres de Laval, Maisons France Confort Bonchamp-lès-Laval vous présente cette maison de 4 pièces de 95 m² et de 261 m² de terrain idéalement située dans Bonchamp-lès-Laval (53960).Il s’agit d’une maison de 2 niveaux. Elle dispose de trois chambres, d’une cuisine et de deux salles de bains. Cette maison est neuve.La maison se situe dans un quartier attractif. Il y a l’École Élémentaire Publique, l’École Maternelle Publique Bono Campo et l’École Primaire Privée Nazareth à moins de 10 minutes à pied. Côté transports, on trouve les gares Laval et Louverné à moins de 10 minutes en voiture. L’autoroute A81 et la nationale N162 sont accessibles à moins de 5 km. Il y a une bibliothèque, deux boulangeries, trois commerces, un supermarché, un bureau de poste et une boucherie-charcuterie à quelques minutes du bien.Son prix de vente est de 248 600 €.Contactez notre agence (Claire FERBER : (Numéro supprimé)) pour obtenir de plus amples renseignements sur la maison.
Bonchamp-lès-Laval
TERRAIN ET MAISONVENTE d’une maison de 4 pièces (82 m²) à Bonchamp-lès-LavalIDÉALEMENT SITUÉE – MAISON 4 PIÈCES NEUVEEn vente : localisée à 6 km de Laval, ayez le coup de coeur pour, idéalement située dans Bonchamp-lès-Laval (53960), cette maison de 4 pièces de 82 m² et de 261 m² de terrain. Elle se divise en trois chambres, une cuisine et une salle de bains.Il s’agit d’une maison de 2 niveaux. Elle est neuve.Cette maison se trouve dans un quartier prisé. L’École Élémentaire Publique, l’École Maternelle Publique Bono Campo et l’École Primaire Privée Nazareth sont implantées à moins de 10 minutes à pied. Niveau transports en commun, on trouve deux gares (Laval et Louverné) à moins de 10 minutes en voiture. L’autoroute A81 et la nationale N162 sont accessibles à moins de 5 km. Il y a une bibliothèque, deux boulangeries, trois commerces, un supermarché, un bureau de poste et une boucherie-charcuterie à proximité du logement.Son prix de vente est de 221 300 €.Prenez contact avec notre agence (Claire FERBER : (Numéro supprimé)) pour toute question sur la maison. Maisons France Confort Bonchamp-lès-Laval vous accompagne dans tous vos projets immobiliers et dans toutes vos démarches.
Bonchamp-lès-Laval
TERRAINBonchamp-lès-Laval : terrain de 261 m² en venteIDÉALEMENT SITUÉ – PROCHE DE LAVALÀ 6 km de Laval à Bonchamp-lès-Laval (53960), terrain de 261 m². Il est prêt à accueillir votre résidence principale ou secondaire pour toute la famille. Dans un secteur recherché, ce terrain idéalement situé est proche des commerces et des écoles. L’École Élémentaire Publique, l’École Maternelle Publique Bono Campo et l’École Primaire Privée Nazareth sont implantées à moins de 10 minutes à pied. Niveau transports, il y a les gares Laval et Louverné à moins de 10 minutes en voiture. L’autoroute A81 et la nationale N162 sont accessibles à moins de 5 km. On trouve une bibliothèque, deux boulangeries, trois commerces, un supermarché, un bureau de poste et une boucherie-charcuterie à proximité.Ce terrain est proposé à l’achat pour 38 900 €. Contactez Claire FERBER (tél : (Numéro supprimé)) pour toute information sur le terrain. Maisons France Confort Bonchamp-lès-Laval est là pour vous accompagner à toutes les étapes de votre projet.
Bonchamp-lès-Laval
TERRAIN ET MAISONVENTE : maison T5 (90 m²) à Bonchamp-lès-LavalIDÉALEMENT SITUÉE – MAISON 5 PIÈCES NEUVEÀ deux pas de Laval, votre agence Maisons France Confort Bonchamp-lès-Laval est ravie de vous proposer cette maison de 5 pièces de 90 m² et de 261 m² de terrain idéalement située dans Bonchamp-lès-Laval (53960). Elle se divise en trois chambres, une cuisine et une salle de bains.Cette maison compte 2 niveaux. Elle est neuve.La maison se trouve dans un quartier prisé. Il y a l’École Élémentaire Publique, l’École Maternelle Publique Bono Campo et l’École Primaire Privée Nazareth à moins de 10 minutes à pied. Côté transports, on trouve les gares Laval et Louverné à moins de 10 minutes en voiture. L’autoroute A81 et la nationale N162 sont accessibles à moins de 5 km. Il y a une bibliothèque, deux boulangeries, trois commerces, un supermarché, un bureau de poste et une boucherie-charcuterie à proximité.Son prix de vente est de 238 400 €.Prenez contact avec notre agence (Claire FERBER : (Numéro supprimé)) pour toute information sur le bien. Donnez vie à vos projets immobiliers avec Maisons France Confort Bonchamp-lès-Laval.
Forcé
TERRAIN ET MAISONForcé : maison de 5 pièces (80 m²) à vendreIDÉALEMENT SITUÉE – MAISON 5 PIÈCES NEUVEEn vente : située à 6 km de Laval, nous vous proposons, idéalement située dans Forcé (53260), cette maison de 5 pièces de plain-pied de 80 m².Son intérieur propose trois chambres, une cuisine et une salle de bains. Cette maison est neuve.Le terrain de la propriété s’étend sur 447 m².Cette maison est située dans un secteur convoité. L’École Primaire Publique Pierre Girard se trouve à moins de 10 minutes à pied. Côté transports, il y a deux gares (Laval et Louverné) à moins de 10 minutes en voiture. L’autoroute A81 et la nationale N162 sont accessibles à moins de 9 km. On trouve un tennis et une bibliothèque dans les environs.Elle est proposée à l’achat pour 231 400 €.N’hésitez pas à prendre contact avec notre agence (FERBER Claire : (Numéro supprimé)) pour toute question sur la maison, sur les modalités de vente ou sur les démarches à suivre. Maisons France Confort Bonchamp-lès-Laval vous accompagne à toutes les étapes de l’achat et dans tous vos projets immobiliers.
Soulgé-sur-Ouette
TERRAIN ET MAISONMaison de 4 pièces (79 m²) en vente à Soulgé-sur-OuetteIDÉALEMENT SITUÉE – MAISON 4 PIÈCES NEUVEÀ quelques kilomètres de Laval, nous vous proposons à vendre, idéalement située dans Soulgé-sur-Ouette (53210), cette maison de 4 pièces de plain-pied de 79 m². Son intérieur offre deux chambres, une cuisine et une salle de bains.Le terrain de la propriété s’étend sur 533 m².La maison est neuve.Cette maison est située dans un quartier convoité. On y trouve une école primaire. Côté transports, on trouve la gare Montsûrs à moins de 10 minutes en voiture. Il y a un accès à l’autoroute A81 à 6 km. Il y a un commerce à quelques minutes du bien.Elle est proposée à l’achat pour 216 800 €.Contactez notre agence (Claire FERBER : (Numéro supprimé)) pour plus d’informations sur la maison, sur les modalités de vente ou sur les démarches à suivre.
Forcé
TERRAIN ET MAISONVENTE : maison de 6 pièces (124 m²) à ForcéIDÉALEMENT SITUÉE – MAISON 6 PIÈCES NEUVEEn vente : située à 6 km de Laval, Maisons France Confort Bonchamp-lès-Laval vous présente cette maison de 6 pièces de 124 m² idéalement située dans Forcé (53260). Elle inclut cinq chambres, une cuisine et deux salles de bains.Le terrain du bien s’étend sur 447 m².C’est une maison de 2 niveaux. Elle est neuve.Cette maison est située dans un secteur recherché. L’École Primaire Publique Pierre Girard est implantée à moins de 10 minutes à pied. Niveau transports, il y a les gares Laval et Louverné à moins de 10 minutes en voiture. L’autoroute A81 et la nationale N162 sont accessibles à moins de 9 km. On trouve un tennis et une bibliothèque à proximité de la maison.Elle est à vendre pour la somme de 329 600 €.N’hésitez pas à prendre contact avec notre agence (FERBER Claire : (Numéro supprimé)) pour obtenir de plus amples informations sur la maison ou sur les démarches à suivre. Maisons France Confort Bonchamp-lès-Laval vous accompagne à toutes les étapes de l’achat et dans tous vos projets immobiliers.
Forcé
TERRAIN ET MAISONMaison F4 (95 m²) à vendre à ForcéIDÉALEMENT SITUÉE – MAISON 4 PIÈCES NEUVEÀ vendre à 6 km de Laval, idéalement située dans Forcé (53260), nous sommes ravis de vous proposer cette maison de 4 pièces de 95 m² et de 447 m² de terrain. Son intérieur comporte quatre chambres, une cuisine et deux salles de bains.C’est une maison de 2 niveaux. Elle est neuve.Cette maison est située dans un quartier convoité. Il y a l’École Primaire Publique Pierre Girard à moins de 10 minutes à pied. Niveau transports en commun, on trouve deux gares (Laval et Louverné) à moins de 10 minutes en voiture. L’autoroute A81 et la nationale N162 sont accessibles à moins de 9 km. Il y a un tennis et une bibliothèque à proximité de la maison.Son prix de vente est de 271 300 €.N’hésitez pas à prendre contact avec Claire FERBER ((Numéro supprimé)) pour obtenir de plus amples informations sur la maison. Maisons France Confort Bonchamp-lès-Laval est là pour vous accompagner dans toutes vos démarches.
Forcé
TERRAINForcé : terrain de 447 m² en venteIDÉALEMENT SITUÉ – PROCHE DE LAVALÀ Forcé (53260) à vendre à quelques kilomètres de Laval, projetez la maison de vos rêves sur ce terrain de 447 m². Dans un quartier attractif, le terrain idéalement situé est proche des écoles et des commerces. L’École Primaire Publique Pierre Girard est implantée à moins de 10 minutes à pied. Niveau transports en commun, on trouve les gares Laval et Louverné à moins de 10 minutes en voiture. L’autoroute A81 et la nationale N162 sont accessibles à moins de 9 km. Il y a un tennis et une bibliothèque dans les environs.Son prix de vente est de 60 000 €. N’hésitez pas à prendre contact avec Claire FERBER (tél : (Numéro supprimé)) pour obtenir de plus amples informations sur ce terrain, sur les démarches à suivre ou sur les modalités de vente.
L’actualité immobilière à Parné-sur-Roc
27/11/2023
02/11/2023
30/10/2023
20/10/2023
16/10/2023
16/10/2023