Images
Description
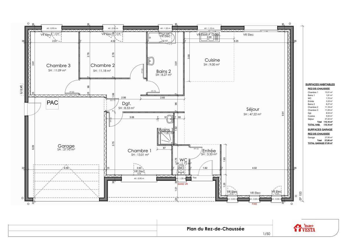
Nous vous proposons cette maison neuve, baptisée Alabama, une perle rare dans notre collection de Maisons Vesta. Ce modèle, inspiré de notre modèle phare, se distingue par son allure contemporaine et son design soigné, faisant d'elle le choix idéal pour ceux qui recherchent à la fois le confort d'une maison de plain-pied et l'élégance d'une architecture moderne.
L'Alabama, avec sa toiture à 4 pans caractéristique et son porche accueillant, offre une esthétique à la fois classique et moderne. Ses vastes ouvertures, notamment grâce à des menuiseries en aluminium, très demandées pour leur durabilité et leur esthétique, baignent l'intérieur de lumière naturelle, créant une atmosphère chaleureuse et accueillante.
Ce modèle se déploie sur une surface généreuse de 115 m², intelligemment répartie en 4 pièces, dont 3 chambres confortables. La suite parentale, un véritable havre de paix, promet intimité et tranquillité. Le garage intégré offre non seulement un espace de stationnement sécurisé mais aussi un espace de rangement supplémentaire ou la possibilité d'aménager un atelier pour les bricoleurs.
L'Alabama est également conçue pour répondre aux attentes les plus exigeantes en termes de performance énergétique. Cette maison basse consommation est entièrement conforme à la réglementation environnementale RE2020, garantissant ainsi des économies d'énergie significatives et un confort de vie optimal en toutes saisons. Pour ceux qui désirent encore plus d'espace, l'option d'un sous-sol est disponible, offrant ainsi une flexibilité supplémentaire pour aménager selon vos envies et besoins.
Choisir l'Alabama, c'est opter pour une maison qui allie parfaitement fonctionnalité, esthétique et respect de l'environnement. Une opportunité à ne pas manquer pour réaliser le projet de vos rêves dans une maison qui vous ressemble.
Logement susceptibles de vous intéresser
Nous vous proposons de découvrir aussi cette sélection de logements situés à moins de 10km de Bouxières-aux-Chênes et qui seraient susceptibles de vous intéresser.
Essey-lès-Nancy
TERRAINNancy : terrain de 240 m² à vendreEmplacement privilégié – Terrain de 240 m² en vente à Nancy (54100).Proche gares, écoles, crèches, bassins de natation, tennis, commerces, boulangeries, supermarché, boucherie-charcuterie et bureau de poste. Accès autoroute A31 à 1 km.Il est proposé à l’achat pour 65 000 €. N’hésitez pas à prendre contact avec notre agence (PAPA Luigi : (Numéro supprimé)) pour toute question sur le terrain ou sur les démarches à suivre. Maisons Horizon Metz est là pour vous accompagner dans tous vos projets immobiliers.
Essey-lès-Nancy
TERRAIN ET MAISONMaison de 5 pièces (86 m²) en vente à NancyEmplacement privilégié – À découvrir à Nancy (54100) : maison neuve 5 pièces en vente. 2 niveaux, surface de 86 m² sur 240 m² de terrain. Elle comporte trois chambres, une cuisine et une salle de bains.Proche gares, écoles, crèches, bassins de natation, tennis, commerces, boulangeries, supermarché, épiceries et bureau de poste. Accès autoroute A31 à 1 km.Cette maison de 5 pièces est à vendre pour la somme de 254 999 €.N’hésitez pas à prendre contact avec notre agence (PAPA Luigi : (Numéro supprimé)) pour tout renseignement sur la maison ou sur les démarches à suivre. Maisons Horizon Metz est là pour vous accompagner à toutes les étapes de l’achat.
Bouxières-aux-Chênes
TERRAIN ET MAISONNous vous proposons cette maison neuve, baptisée Alabama, une perle rare dans notre collection de Maisons Vesta. Ce modèle, inspiré de notre modèle phare, se distingue par son allure contemporaine et son design soigné, faisant d’elle le choix idéal pour ceux qui recherchent à la fois le confort d’une maison de plain-pied et l’élégance d’une architecture moderne. L’Alabama, avec sa toiture à 4 pans caractéristique et son porche accueillant, offre une esthétique à la fois classique et moderne. Ses vastes ouvertures, notamment grâce à des menuiseries en aluminium, très demandées pour leur durabilité et leur esthétique, baignent l’intérieur de lumière naturelle, créant une atmosphère chaleureuse et accueillante. Ce modèle se déploie sur une surface généreuse de 115 m², intelligemment répartie en 4 pièces, dont 3 chambres confortables. La suite parentale, un véritable havre de paix, promet intimité et tranquillité. Le garage intégré offre non seulement un espace de stationnement sécurisé mais aussi un espace de rangement supplémentaire ou la possibilité d’aménager un atelier pour les bricoleurs.L’Alabama est également conçue pour répondre aux attentes les plus exigeantes en termes de performance énergétique. Cette maison basse consommation est entièrement conforme à la réglementation environnementale RE2020, garantissant ainsi des économies d’énergie significatives et un confort de vie optimal en toutes saisons. Pour ceux qui désirent encore plus d’espace, l’option d’un sous-sol est disponible, offrant ainsi une flexibilité supplémentaire pour aménager selon vos envies et besoins.Choisir l’Alabama, c’est opter pour une maison qui allie parfaitement fonctionnalité, esthétique et respect de l’environnement. Une opportunité à ne pas manquer pour réaliser le projet de vos rêves dans une maison qui vous ressemble.
Champenoux
TERRAIN ET MAISONSur ce terrain, nous vous proposons cette maison neuve : le modèle SEATTLE de Maisons Vesta. Avec une surface de 96 m², cette maison à étage est idéale pour les familles souhaitant allier confort et économies d’énergie. Le modèle SEATTLE se distingue par son excellent rapport qualité/prix et sa capacité à s’adapter à des terrains avec une façade courte. Dès l’entrée, vous serez séduit par un espace salon/séjour/cuisine ouverte, entièrement modulable selon vos goûts et vos besoins. Un WC indépendant et un cellier viennent compléter le rez-de-chaussée, offrant ainsi des espaces de rangement pratiques et fonctionnels.À l’étage, vous découvrirez quatre chambres spacieuses, chacune conçue pour intégrer un dressing sur mesure, répondant ainsi aux besoins de rangement de toute la famille. Un second WC indépendant et une grande salle de bain, équipée pour accueillir à la fois une baignoire, une douche et une double vasque, complètent la partie nuit. Cette configuration est parfaite pour les matins chargés des familles actives.Cette maison neuve est basse consommation et conforme à la réglementation environnementale RE2020, garantissant ainsi des performances énergétiques optimales et un impact environnemental réduit. Ne manquez pas cette opportunité de construire la maison de vos rêves avec Maisons Vesta, un constructeur reconnu pour la qualité de ses réalisations et son engagement en faveur de l’environnement. Contactez-nous dès maintenant pour plus d’informations et pour découvrir les différentes configurations disponibles selon la surface désirée.
Brin-sur-Seille
TERRAIN ET MAISONNous vous proposons cette maison neuve, le modèle AGONA, idéale pour une vie de famille confortable et moderne. Avec une surface de 81 m², cette maison de plain-pied dispose de 3 chambres et 4 pièces, offrant un espace de vie fonctionnel et lumineux.Les caractéristiques principales de la maison AGONA incluent des baies coulissantes qui inondent le salon-séjour de lumière naturelle, une suite parentale avec salle de bains privative pour plus d’intimité, et un garage intégré pour un stationnement pratique.Les options les plus demandées par les clients, telles que la domotique et les menuiseries en aluminium, sont disponibles pour répondre à vos besoins en termes de confort et de modernité.Cette maison neuve est également basse consommation et conforme à la RE2020, assurant des économies d’énergie et un impact environnemental réduit. Ne manquez pas l’opportunité d’acquérir une maison à construire alliant design contemporain et fonctionnalité pour votre famille.
Brin-sur-Seille
TERRAIN ET MAISONNous vous proposons cette maison neuve, baptisée BAHAMAS, un modèle emblématique qui a su séduire de nombreuses familles depuis plus de 30 ans grâce à son design intemporel et ses fonctionnalités pensées pour le confort de tous. Avec une surface habitable de 110 m², cette maison est idéalement conçue pour répondre aux besoins des familles modernes, offrant 4 chambres spacieuses et un total de 4 pièces bien agencées pour maximiser l’espace et la luminosité.Dès l’entrée, vous serez accueilli par un espace salon/séjour impressionnant, bénéficiant d’une hauteur sous plafond généreuse et d’un vide sur séjour qui baigne la pièce de lumière naturelle, créant une atmosphère chaleureuse et accueillante. La cuisine, semi-ouverte, permet une convivialité et une fluidité entre les espaces de vie, tout en offrant la possibilité de cuisiner en toute tranquillité. Un WC indépendant se trouve également au rez-de-chaussée pour plus de commodité, ainsi qu’un grand garage intégré qui offre non seulement un espace de stationnement sécurisé mais aussi de multiples possibilités d’aménagement selon vos besoins et envies.L’étage de la maison BAHAMAS est tout aussi bien pensé, avec quatre chambres allant de 10 à 13 m², permettant à chaque membre de la famille de bénéficier de son propre espace personnel, ou d’accueillir confortablement vos invités. La salle de bains, spacieuse de plus de 8 m², est conçue pour faciliter le quotidien des familles actives, complétée par un second WC indépendant pour une meilleure fonctionnalité.La maison BAHAMAS se distingue également par ses caractéristiques techniques de pointe, telles qu’une dalle d’étage en béton garantissant solidité et durabilité, ainsi que des murs rideaux qui offrent une esthétique moderne et permettent une luminosité exceptionnelle dans toute la maison. Les menuiseries en aluminium, l’une des options les plus plébiscitées par nos clients, ajoutent une touche d’élégance et de modernité, tout en assurant une excellente isolation t
Saulxures-lès-Nancy
TERRAIN ET MAISONSur ce terrain, nous vous proposons de découvrir l’élégance moderne et l’efficacité énergétique du modèle de maison Alaska par Maisons Vesta. Cette demeure contemporaine offre un confort optimal avec une entrée accueillante menant à un vaste séjour de 30 m², baigné de lumière naturelle grâce à ses grandes ouvertures vitrées, avec une cuisine attenante de 7,5 m², parfaitement aménageable.Le rez-de-chaussée inclut également des toilettes pratiques près de l’entrée et un grand garage intégré de 20,29 m², offrant à la fois un abri sécurisé pour votre véhicule et un espace de rangement supplémentaire.À l’étage, la maison Alaska continue de séduire avec trois chambres lumineuses et un bureau. La suite parentale de 15,90 m² offre un espace généreux pour un lit king-size et du mobilier complémentaire. Les deux autres chambres, respectivement de 11,64 m² et 11,06 m², sont idéales pour des enfants ou des invités. Un bureau de 8,25 m², parfait pour le télétravail ou les études, ainsi qu’une salle de bains moderne de 6,58 m² et un second WC complètent cet étage.Optez pour le modèle Alaska de Maisons Vesta, une maison qui allie style, fonctionnalité et respect de l’environnement.
Velaine-sous-Amance
TERRAINDans un environnement paisible et verdoyant, venez découvrir ce terrain de plus de 1 100 m², idéalement situé au calme, à seulement quelques minutes de Nancy.Ce terrain, non viabilisé, offre un magnifique cadre naturel avec des arbres fruitiers et un beau potentiel pour réaliser votre projet de construction sur mesure.Les atouts :Secteur recherché, proche de Nancy-Est,Environnement résidentiel et campagne,Terrain plat, facilement accessible,Parcelle généreuse permettant toutes les configurations,Laissez libre cours à vos envies et imaginez votre future maison dans un cadre bucolique. Les honoraires sont à la charge du vendeur.Les informations sur les risques auxquels ce bien est exposé sont disponibles sur le site Géorisques : www. georisques. gouv. fr.Contactez Sabine MORETTI Entrepreneur Individuel, Agent commercial OptimHome (RSAC N(Numéro supprimé) Greffe de NANCY) (Numéro supprimé) (réf. 595603 )
Bouxières-aux-Dames
TERRAINA vendre terrain constructible de 235m2, proche de Nancy à Bouxières aux Dames. Très belle vue. Idéal pour construire la maison de vos rêves.Largeur de façade 10 mètres, profondeur du terrain 28 mètres.Quartier calme et résidentiel.Pour plus d’informations, contactez nous au (Numéro supprimé). Ne ratez pas cette opportunitéLes informations sur les risques auxquels ce bien est exposé sont disponibles sur le site Géorisques : www.georisques.gouv.fr.
L’actualité immobilière à Bouxières-aux-Chênes
27/11/2023
02/11/2023
30/10/2023
20/10/2023
16/10/2023
16/10/2023