Images
Description
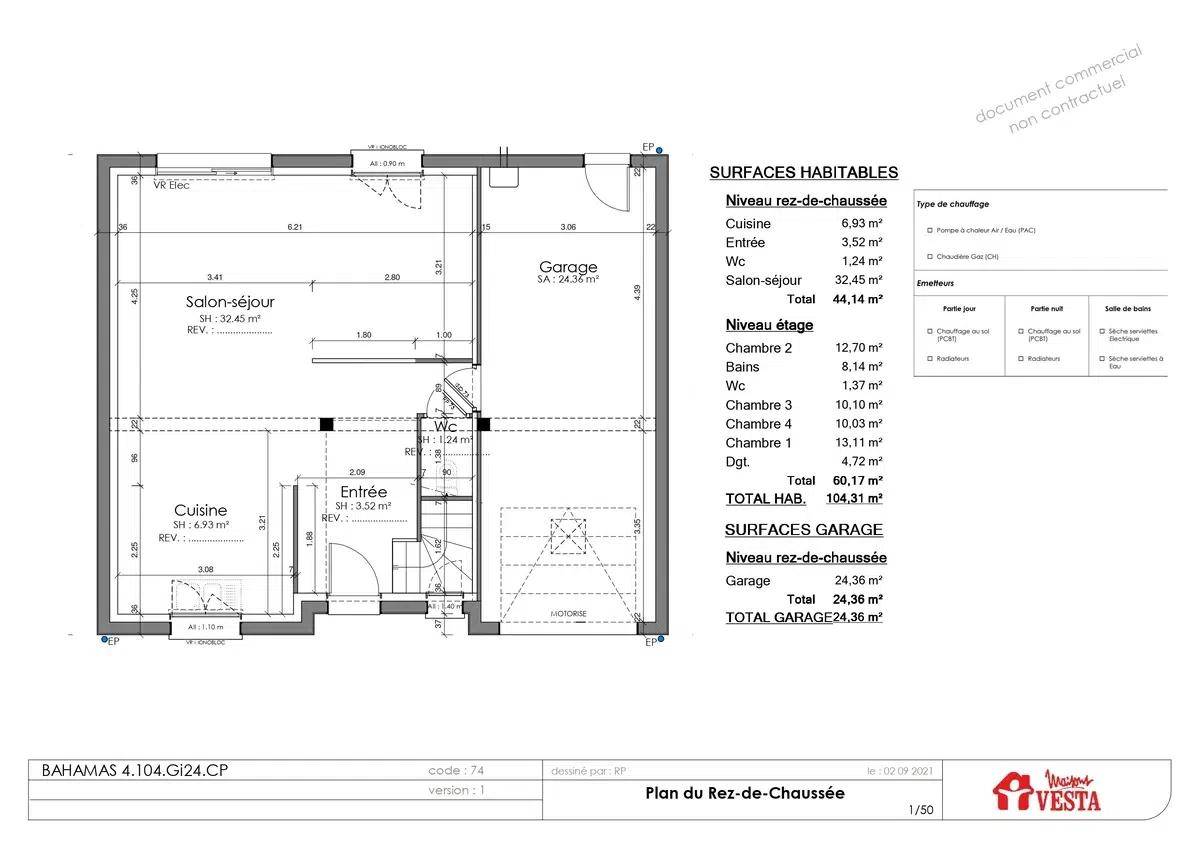
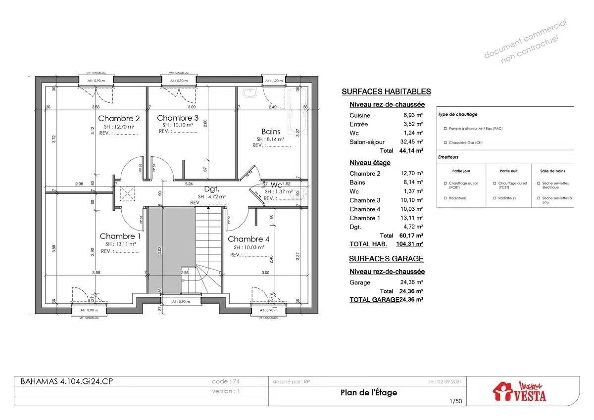
Nous vous proposons cette maison neuve, baptisée BAHAMAS, un modèle emblématique qui a su séduire de nombreuses familles depuis plus de 30 ans grâce à son design intemporel et ses fonctionnalités pensées pour le confort de tous. Avec une surface habitable de 110 m², cette maison est idéalement conçue pour répondre aux besoins des familles modernes, offrant 4 chambres spacieuses et un total de 4 pièces bien agencées pour maximiser l'espace et la luminosité.
Dès l'entrée, vous serez accueilli par un espace salon/séjour impressionnant, bénéficiant d'une hauteur sous plafond généreuse et d'un vide sur séjour qui baigne la pièce de lumière naturelle, créant une atmosphère chaleureuse et accueillante. La cuisine, semi-ouverte, permet une convivialité et une fluidité entre les espaces de vie, tout en offrant la possibilité de cuisiner en toute tranquillité. Un WC indépendant se trouve également au rez-de-chaussée pour plus de commodité, ainsi qu'un grand garage intégré qui offre non seulement un espace de stationnement sécurisé mais aussi de multiples possibilités d'aménagement selon vos besoins et envies.
L'étage de la maison BAHAMAS est tout aussi bien pensé, avec quatre chambres allant de 10 à 13 m², permettant à chaque membre de la famille de bénéficier de son propre espace personnel, ou d'accueillir confortablement vos invités. La salle de bains, spacieuse de plus de 8 m², est conçue pour faciliter le quotidien des familles actives, complétée par un second WC indépendant pour une meilleure fonctionnalité.
La maison BAHAMAS se distingue également par ses caractéristiques techniques de pointe, telles qu'une dalle d'étage en béton garantissant solidité et durabilité, ainsi que des murs rideaux qui offrent une esthétique moderne et permettent une luminosité exceptionnelle dans toute la maison. Les menuiseries en aluminium, l'une des options les plus plébiscitées par nos clients, ajoutent une touche d'élégance et de modernité, tout en assurant une excellente isolation t
Logement susceptibles de vous intéresser
Nous vous proposons de découvrir aussi cette sélection de logements situés à moins de 10km de Giraumont et qui seraient susceptibles de vous intéresser.
Sainte-Marie-aux-Chênes
TERRAIN ET MAISONVENTE : maison F5 (104 m²) à Sainte-Marie-aux-ChênesEmplacement privilégié – En vente à Sainte-Marie-aux-Chênes (57255) : maison neuve 5 pièces de 104 m² sur un terrain de 215 m². Elle se divise en trois chambres, une cuisine et une salle de bains.Proche gares, établissements scolaires, bibliothèque, tennis, boulangeries, commerces, supermarché, boucherie-charcuterie et bureau de poste. Autoroute A4 à 1 km. Luxembourg à 28 km, Belgique à 43 km et Allemagne à 49 km. Metz à 16 km.Cette maison de 5 pièces est proposée à l’achat pour 252 500 €.Contactez notre agence (PAPA Luigi : (Numéro supprimé)) pour plus d’informations sur la maison.
Giraumont
TERRAIN ET MAISONSur ce terrain, nous vous proposons cette maison neuve : le modèle SEATTLE de Maisons Vesta. Avec une surface de 96 m², cette maison à étage est idéale pour les familles souhaitant allier confort et économies d’énergie. Le modèle SEATTLE se distingue par son excellent rapport qualité/prix et sa capacité à s’adapter à des terrains avec une façade courte. Dès l’entrée, vous serez séduit par un espace salon/séjour/cuisine ouverte, entièrement modulable selon vos goûts et vos besoins. Un WC indépendant et un cellier viennent compléter le rez-de-chaussée, offrant ainsi des espaces de rangement pratiques et fonctionnels.À l’étage, vous découvrirez quatre chambres spacieuses, chacune conçue pour intégrer un dressing sur mesure, répondant ainsi aux besoins de rangement de toute la famille. Un second WC indépendant et une grande salle de bain, équipée pour accueillir à la fois une baignoire, une douche et une double vasque, complètent la partie nuit. Cette configuration est parfaite pour les matins chargés des familles actives.Cette maison neuve est basse consommation et conforme à la réglementation environnementale RE2020, garantissant ainsi des performances énergétiques optimales et un impact environnemental réduit. Ne manquez pas cette opportunité de construire la maison de vos rêves avec Maisons Vesta, un constructeur reconnu pour la qualité de ses réalisations et son engagement en faveur de l’environnement. Contactez-nous dès maintenant pour plus d’informations et pour découvrir les différentes configurations disponibles selon la surface désirée.
Giraumont
TERRAIN ET MAISONSur ce terrain, nous vous proposons de découvrir l’élégance moderne et l’efficacité énergétique du modèle de maison Alaska par Maisons Vesta. Cette demeure contemporaine offre un confort optimal avec une entrée accueillante menant à un vaste séjour de 30 m², baigné de lumière naturelle grâce à ses grandes ouvertures vitrées, avec une cuisine attenante de 7,5 m², parfaitement aménageable.Le rez-de-chaussée inclut également des toilettes pratiques près de l’entrée et un grand garage intégré de 20,29 m², offrant à la fois un abri sécurisé pour votre véhicule et un espace de rangement supplémentaire.À l’étage, la maison Alaska continue de séduire avec trois chambres lumineuses et un bureau. La suite parentale de 15,90 m² offre un espace généreux pour un lit king-size et du mobilier complémentaire. Les deux autres chambres, respectivement de 11,64 m² et 11,06 m², sont idéales pour des enfants ou des invités. Un bureau de 8,25 m², parfait pour le télétravail ou les études, ainsi qu’une salle de bains moderne de 6,58 m² et un second WC complètent cet étage.Optez pour le modèle Alaska de Maisons Vesta, une maison qui allie style, fonctionnalité et respect de l’environnement.
Giraumont
TERRAIN ET MAISONNous vous proposons cette maison neuve, baptisée BAHAMAS, un modèle emblématique qui a su séduire de nombreuses familles depuis plus de 30 ans grâce à son design intemporel et ses fonctionnalités pensées pour le confort de tous. Avec une surface habitable de 110 m², cette maison est idéalement conçue pour répondre aux besoins des familles modernes, offrant 4 chambres spacieuses et un total de 4 pièces bien agencées pour maximiser l’espace et la luminosité.Dès l’entrée, vous serez accueilli par un espace salon/séjour impressionnant, bénéficiant d’une hauteur sous plafond généreuse et d’un vide sur séjour qui baigne la pièce de lumière naturelle, créant une atmosphère chaleureuse et accueillante. La cuisine, semi-ouverte, permet une convivialité et une fluidité entre les espaces de vie, tout en offrant la possibilité de cuisiner en toute tranquillité. Un WC indépendant se trouve également au rez-de-chaussée pour plus de commodité, ainsi qu’un grand garage intégré qui offre non seulement un espace de stationnement sécurisé mais aussi de multiples possibilités d’aménagement selon vos besoins et envies.L’étage de la maison BAHAMAS est tout aussi bien pensé, avec quatre chambres allant de 10 à 13 m², permettant à chaque membre de la famille de bénéficier de son propre espace personnel, ou d’accueillir confortablement vos invités. La salle de bains, spacieuse de plus de 8 m², est conçue pour faciliter le quotidien des familles actives, complétée par un second WC indépendant pour une meilleure fonctionnalité.La maison BAHAMAS se distingue également par ses caractéristiques techniques de pointe, telles qu’une dalle d’étage en béton garantissant solidité et durabilité, ainsi que des murs rideaux qui offrent une esthétique moderne et permettent une luminosité exceptionnelle dans toute la maison. Les menuiseries en aluminium, l’une des options les plus plébiscitées par nos clients, ajoutent une touche d’élégance et de modernité, tout en assurant une excellente isolation t
Giraumont
TERRAIN ET MAISONNous vous proposons cette maison neuve, baptisée Mindanao, une demeure qui incarne l’élégance et le confort moderne, spécialement conçue pour répondre aux besoins des familles en quête d’un habitat à la fois chaleureux et fonctionnel. Avec une surface habitable de 82 m², cette maison à étage se distingue par son architecture contemporaine et son agencement pensé pour optimiser chaque espace.La Mindanao est le choix parfait pour une vie familiale épanouie, offrant 3 chambres spacieuses qui accueilleront confortablement chaque membre de la famille. Les 4 pièces de la maison sont réparties de manière à favoriser l’intimité tout en conservant des espaces de vie communs conviviaux et accueillants. Le salon, la cuisine et le séjour se combinent harmonieusement pour former un espace de vie ouvert, idéal pour les moments de partage et de détente en famille. Un cellier et un garage intégré viennent compléter les prestations de ce bien, assurant praticité et confort au quotidien.L’architecture de la Mindanao, avec son toit élégant à quatre pans et son garage en saillie, disponible en option avec un toit traditionnel ou plat, séduira les amateurs de design. La façade est sublimée par une charmante marquise, pouvant être choisie en version pergola, offrant une protection élégante à vos portes-fenêtres et enrichissant l’esthétique extérieure de la maison.Cette maison neuve est également une réponse aux préoccupations écologiques actuelles, étant conforme à la norme RE2020. Elle est conçue pour être basse consommation, vous assurant ainsi des économies d’énergie significatives tout en contribuant à la protection de l’environnement. L’enduit bi-ton, l’une des options les plus plébiscitées par nos clients, ajoute une touche de modernité et de personnalisation à votre façade, reflétant votre style et vos préférences.En choisissant la Mindanao, vous optez pour une maison qui allie confort, fonctionnalité et respect de l’environnement, le tout dans un cadre de vie idéal pour v
Giraumont
TERRAIN ET MAISONSur ce terrain, nous vous proposons cette maison neuve : le modèle SEATTLE, conçu par Maisons Vesta. Avec une surface de 81 m², cette maison à étage offre un excellent rapport qualité/prix et s’adapte parfaitement aux terrains avec une façade courte. Dès l’entrée, vous serez séduit par un espace salon/séjour/cuisine ouverte, entièrement modulable selon vos goûts et vos besoins. Le rez-de-chaussée comprend également un WC indépendant et un cellier, ajoutant une touche de praticité à votre quotidien.À l’étage, vous découvrirez trois chambres spacieuses, chacune conçue pour intégrer un dressing sur mesure, offrant ainsi un espace de rangement optimal. La partie nuit est complétée par un second WC indépendant et une très grande salle de bain, équipée pour accueillir à la fois une baignoire, une douche et une double vasque, idéale pour les matins animés des familles actives.Cette maison neuve est basse consommation et conforme à la RE2020, garantissant ainsi des performances énergétiques optimales et un confort de vie inégalé. Ne manquez pas cette opportunité unique de devenir propriétaire d’une maison moderne, fonctionnelle et éco-responsable avec Maisons Vesta. Contactez-nous dès aujourd’hui pour plus d’informations et pour découvrir les différentes configurations disponibles selon la surface désirée.
Giraumont
TERRAIN ET MAISONNous vous proposons cette maison neuve, baptisée MADEIRA, un modèle phare de notre gamme de maisons à étage qui allie avec brio fonctionnalité et esthétique moderne. Conçue pour répondre aux besoins variés, de la petite à la grande famille, MADEIRA offre une surface habitable de 86 m², judicieusement répartie pour maximiser le confort et l’espace de vie.Cette maison se distingue par ses 3 chambres spacieuses, permettant à chacun de trouver son espace personnel, et un total de 4 pièces conçues pour favoriser la convivialité et le bien-être familial. Le salon-séjour-cuisine ouverte, véritable cœur de la maison, offre un espace de vie lumineux et aéré de 36 à 43m², idéal pour partager des moments précieux en famille ou entre amis.L’architecture de MADEIRA, de style classique avec une touche résolument moderne, est rehaussée par des options très prisées telles que la modénature d’enduit et les menuiseries en aluminium, conférant à la maison un caractère unique et une élégance intemporelle. Le garage intégré ajoute une commodité supplémentaire, soulignant la fonctionnalité de ce modèle.Conforme à la norme RE2020, MADEIRA est une maison basse consommation, conçue pour minimiser votre empreinte écologique tout en optimisant votre confort. Cette performance énergétique de pointe, au cœur de nos préoccupations, assure une réduction significative de vos factures énergétiques et contribue à la protection de l’environnement.En choisissant MADEIRA, vous optez pour une maison qui allie esthétique, confort et respect de l’environnement. Une maison familiale par excellence, où chaque détail a été pensé pour répondre à vos attentes les plus élevées. Faites le premier pas vers la maison de vos rêves et laissez MADEIRA vous accueillir dans un cadre de vie exceptionnel.
Giraumont
TERRAIN ET MAISONSur ce terrain, nous vous proposons cette maison neuve : le modèle SEATTLE de Maisons Vesta. Avec une surface de 96 m², cette maison à étage est idéale pour les familles souhaitant allier confort et économies d’énergie. Le modèle SEATTLE se distingue par son excellent rapport qualité/prix et sa capacité à s’adapter à des terrains avec une façade courte. Dès l’entrée, vous serez séduit par un espace salon/séjour/cuisine ouverte, entièrement modulable selon vos goûts et vos besoins. Un WC indépendant et un cellier viennent compléter le rez-de-chaussée, offrant ainsi des espaces de rangement pratiques et fonctionnels.À l’étage, vous découvrirez quatre chambres spacieuses, chacune conçue pour intégrer un dressing sur mesure, répondant ainsi aux besoins de rangement de toute la famille. Un second WC indépendant et une grande salle de bain, équipée pour accueillir à la fois une baignoire, une douche et une double vasque, complètent la partie nuit. Cette configuration est parfaite pour les matins chargés des familles actives.Cette maison neuve est basse consommation et conforme à la réglementation environnementale RE2020, garantissant ainsi des performances énergétiques optimales et un impact environnemental réduit. Ne manquez pas cette opportunité de construire la maison de vos rêves avec Maisons Vesta, un constructeur reconnu pour la qualité de ses réalisations et son engagement en faveur de l’environnement. Contactez-nous dès maintenant pour plus d’informations et pour découvrir les différentes configurations disponibles selon la surface désirée.
Hatrize
TERRAIN ET MAISONSur ce terrain, nous vous proposons cette maison neuve : la My First 91, un modèle signé Maisons Vesta. Avec une surface généreuse de 91 m², cette maison lumineuse et écologique est idéale pour les familles à la recherche d’un espace de vie confortable et de qualité, tout en respectant un budget maîtrisé.La My First 91 se distingue par son agencement parfaitement optimisé. Elle dispose de quatre chambres spacieuses, chacune de plus de 10 m², offrant ainsi un espace de vie confortable pour chaque membre de la famille. La maison comprend également une grande pièce de vie traversante et lumineuse avec une cuisine ouverte, un cellier attenant, une salle de bain avec baignoire et des WC séparés.Les caractéristiques principales de cette maison incluent une dalle étage en béton, un garage intégré et un garage accolé, répondant ainsi aux besoins de stationnement et de rangement de votre famille. De plus, les options les plus demandées par nos clients, telles que l’enduit bi-ton, les menuiseries en aluminium et la pergola, peuvent être ajoutées pour personnaliser votre maison selon vos goûts.Cette maison neuve est basse consommation et conforme à la réglementation environnementale RE2020, garantissant ainsi une habitation respectueuse de l’environnement et des économies d’énergie substantielles.Ne manquez pas cette opportunité unique d’acquérir une maison de qualité, parfaitement agencée et respectueuse de l’environnement, avec Maisons Vesta. Contactez-nous dès aujourd’hui pour plus d’informations et pour planifier une visite de ce modèle exceptionnel.
L’actualité immobilière à Giraumont
27/11/2023
02/11/2023
30/10/2023
20/10/2023
16/10/2023
16/10/2023