Images
Description
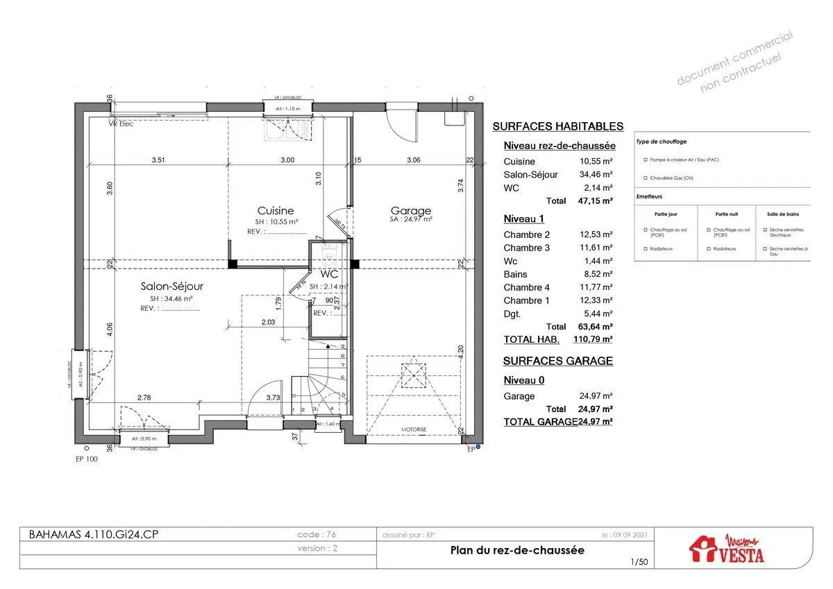
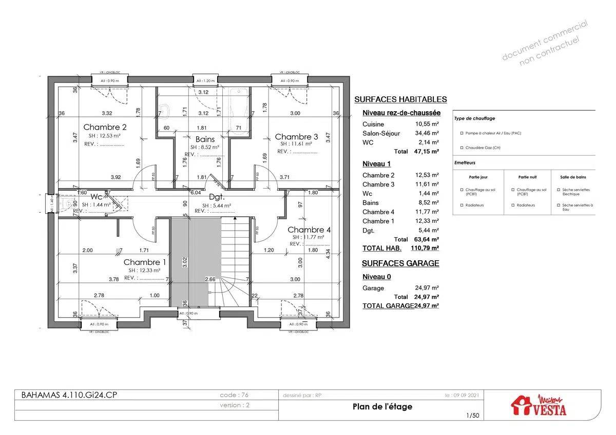
Nous vous proposons cette maison neuve, baptisée BAHAMAS, un modèle emblématique qui a su séduire de nombreuses familles depuis plus de 30 ans grâce à son design intemporel et ses fonctionnalités pensées pour le confort de tous. Avec une surface habitable de 110 m², cette maison est idéalement conçue pour répondre aux besoins des familles modernes, offrant 4 chambres spacieuses et un total de 4 pièces bien agencées pour maximiser l'espace et la luminosité.
Dès l'entrée, vous serez accueilli par un espace salon/séjour impressionnant, bénéficiant d'une hauteur sous plafond généreuse et d'un vide sur séjour qui baigne la pièce de lumière naturelle, créant une atmosphère chaleureuse et accueillante. La cuisine, semi-ouverte, permet une convivialité et une fluidité entre les espaces de vie, tout en offrant la possibilité de cuisiner en toute tranquillité. Un WC indépendant se trouve également au rez-de-chaussée pour plus de commodité, ainsi qu'un grand garage intégré qui offre non seulement un espace de stationnement sécurisé mais aussi de multiples possibilités d'aménagement selon vos besoins et envies.
L'étage de la maison BAHAMAS est tout aussi bien pensé, avec quatre chambres allant de 10 à 13 m², permettant à chaque membre de la famille de bénéficier de son propre espace personnel, ou d'accueillir confortablement vos invités. La salle de bains, spacieuse de plus de 8 m², est conçue pour faciliter le quotidien des familles actives, complétée par un second WC indépendant pour une meilleure fonctionnalité.
La maison BAHAMAS se distingue également par ses caractéristiques techniques de pointe, telles qu'une dalle d'étage en béton garantissant solidité et durabilité, ainsi que des murs rideaux qui offrent une esthétique moderne et permettent une luminosité exceptionnelle dans toute la maison. Les menuiseries en aluminium, l'une des options les plus plébiscitées par nos clients, ajoutent une touche d'élégance et de modernité, tout en assurant une excellente isolation t
Logement susceptibles de vous intéresser
Nous vous proposons de découvrir aussi cette sélection de logements situés à moins de 10km de Haraucourt et qui seraient susceptibles de vous intéresser.
Haraucourt
TERRAIN ET MAISONNous vous proposons cette maison neuve, baptisée BAHAMAS, un modèle emblématique qui a su séduire de nombreuses familles depuis plus de 30 ans grâce à son design intemporel et ses fonctionnalités pensées pour le confort de tous. Avec une surface habitable de 110 m², cette maison est idéalement conçue pour répondre aux besoins des familles modernes, offrant 4 chambres spacieuses et un total de 4 pièces bien agencées pour maximiser l’espace et la luminosité.Dès l’entrée, vous serez accueilli par un espace salon/séjour impressionnant, bénéficiant d’une hauteur sous plafond généreuse et d’un vide sur séjour qui baigne la pièce de lumière naturelle, créant une atmosphère chaleureuse et accueillante. La cuisine, semi-ouverte, permet une convivialité et une fluidité entre les espaces de vie, tout en offrant la possibilité de cuisiner en toute tranquillité. Un WC indépendant se trouve également au rez-de-chaussée pour plus de commodité, ainsi qu’un grand garage intégré qui offre non seulement un espace de stationnement sécurisé mais aussi de multiples possibilités d’aménagement selon vos besoins et envies.L’étage de la maison BAHAMAS est tout aussi bien pensé, avec quatre chambres allant de 10 à 13 m², permettant à chaque membre de la famille de bénéficier de son propre espace personnel, ou d’accueillir confortablement vos invités. La salle de bains, spacieuse de plus de 8 m², est conçue pour faciliter le quotidien des familles actives, complétée par un second WC indépendant pour une meilleure fonctionnalité.La maison BAHAMAS se distingue également par ses caractéristiques techniques de pointe, telles qu’une dalle d’étage en béton garantissant solidité et durabilité, ainsi que des murs rideaux qui offrent une esthétique moderne et permettent une luminosité exceptionnelle dans toute la maison. Les menuiseries en aluminium, l’une des options les plus plébiscitées par nos clients, ajoutent une touche d’élégance et de modernité, tout en assurant une excellente isolation t
Courbesseaux
TERRAIN ET MAISONNous vous proposons cette maison neuve, baptisée MALAGA, une demeure qui allie élégance, confort et modernité. Conçue pour répondre aux attentes des familles en quête d’espace et de bien-être, la MALAGA offre une surface habitable de 105 m², judicieusement répartie pour maximiser le confort de vie.Le modèle MALAGA se distingue par son architecture en L avec une avancée à l’avant, offrant ainsi une discrétion appréciable par rapport à la rue et un espace extérieur plus intime. Le porche d’entrée vous accueille, ajoutant une touche d’élégance à l’ensemble. À l’intérieur, la pièce de vie spacieuse de plus de 40 m² baigne dans la lumière naturelle grâce à ses nombreuses ouvertures sur trois murs, créant un espace de vie chaleureux et accueillant.La maison MALAGA comprend également quatre chambres confortables, permettant à chaque membre de la famille de bénéficier de son propre espace. Un grand cellier de 7 m² et un garage intégré offrent des solutions de rangement pratiques et accessibles, répondant ainsi aux besoins des familles modernes.Les caractéristiques techniques de la MALAGA incluent une dalle d’étage en béton, garantissant solidité et durabilité. Les options les plus plébiscitées, telles que l’enduit bi-ton pour une façade personnalisée et des combles aménageables pour un espace supplémentaire, sont disponibles pour faire de cette maison le reflet de vos désirs.Construite dans le respect des normes de la RE2020, cette maison basse consommation est un choix responsable, assurant un confort optimal tout en minimisant l’impact environnemental. La MALAGA est donc une invitation à vivre dans un espace sain, économique en énergie et respectueux de l’environnement.Choisir la maison MALAGA, c’est opter pour une demeure où chaque détail a été pensé pour votre bien-être. Vivez l’expérience d’une maison neuve, moderne et éco-responsable, conçue pour s’adapter à l’évolution de votre famille. Bienvenue chez vous, bienvenue dans la maison MALAGA.
Champenoux
TERRAIN ET MAISONSur ce terrain, nous vous proposons cette maison neuve : le modèle SEATTLE de Maisons Vesta. Avec une surface de 96 m², cette maison à étage est idéale pour les familles souhaitant allier confort et économies d’énergie. Le modèle SEATTLE se distingue par son excellent rapport qualité/prix et sa capacité à s’adapter à des terrains avec une façade courte. Dès l’entrée, vous serez séduit par un espace salon/séjour/cuisine ouverte, entièrement modulable selon vos goûts et vos besoins. Un WC indépendant et un cellier viennent compléter le rez-de-chaussée, offrant ainsi des espaces de rangement pratiques et fonctionnels.À l’étage, vous découvrirez quatre chambres spacieuses, chacune conçue pour intégrer un dressing sur mesure, répondant ainsi aux besoins de rangement de toute la famille. Un second WC indépendant et une grande salle de bain, équipée pour accueillir à la fois une baignoire, une douche et une double vasque, complètent la partie nuit. Cette configuration est parfaite pour les matins chargés des familles actives.Cette maison neuve est basse consommation et conforme à la réglementation environnementale RE2020, garantissant ainsi des performances énergétiques optimales et un impact environnemental réduit. Ne manquez pas cette opportunité de construire la maison de vos rêves avec Maisons Vesta, un constructeur reconnu pour la qualité de ses réalisations et son engagement en faveur de l’environnement. Contactez-nous dès maintenant pour plus d’informations et pour découvrir les différentes configurations disponibles selon la surface désirée.
Saint-Nicolas-de-Port
TERRAIN ET MAISONMaison neuve évolutive livrée avec 50 m² prête à vivre et une surface flexible de 48 m² aménageable selon vos envies. Parfaite pour les jeunes couples ou familles en devenir, elle allie confort moderne, évolutivité, et respect des normes RE2020. À partir de moins de 100 000 €, pour une maison qui s’adapte à votre vie !
Courbesseaux
TERRAIN ET MAISONNous vous proposons cette maison neuve, baptisée Mindanao, une demeure qui incarne l’élégance et le confort moderne, spécialement conçue pour répondre aux besoins des familles en quête d’un habitat à la fois chaleureux et fonctionnel. Avec une surface habitable de 82 m², cette maison à étage se distingue par son architecture contemporaine et son agencement pensé pour optimiser chaque espace.La Mindanao est le choix parfait pour une vie familiale épanouie, offrant 3 chambres spacieuses qui accueilleront confortablement chaque membre de la famille. Les 4 pièces de la maison sont réparties de manière à favoriser l’intimité tout en conservant des espaces de vie communs conviviaux et accueillants. Le salon, la cuisine et le séjour se combinent harmonieusement pour former un espace de vie ouvert, idéal pour les moments de partage et de détente en famille. Un cellier et un garage intégré viennent compléter les prestations de ce bien, assurant praticité et confort au quotidien.L’architecture de la Mindanao, avec son toit élégant à quatre pans et son garage en saillie, disponible en option avec un toit traditionnel ou plat, séduira les amateurs de design. La façade est sublimée par une charmante marquise, pouvant être choisie en version pergola, offrant une protection élégante à vos portes-fenêtres et enrichissant l’esthétique extérieure de la maison.Cette maison neuve est également une réponse aux préoccupations écologiques actuelles, étant conforme à la norme RE2020. Elle est conçue pour être basse consommation, vous assurant ainsi des économies d’énergie significatives tout en contribuant à la protection de l’environnement. L’enduit bi-ton, l’une des options les plus plébiscitées par nos clients, ajoute une touche de modernité et de personnalisation à votre façade, reflétant votre style et vos préférences.En choisissant la Mindanao, vous optez pour une maison qui allie confort, fonctionnalité et respect de l’environnement, le tout dans un cadre de vie idéal pour v
Saulxures-lès-Nancy
TERRAIN ET MAISONSur ce terrain, nous vous proposons de découvrir l’élégance moderne et l’efficacité énergétique du modèle de maison Alaska par Maisons Vesta. Cette demeure contemporaine offre un confort optimal avec une entrée accueillante menant à un vaste séjour de 30 m², baigné de lumière naturelle grâce à ses grandes ouvertures vitrées, avec une cuisine attenante de 7,5 m², parfaitement aménageable.Le rez-de-chaussée inclut également des toilettes pratiques près de l’entrée et un grand garage intégré de 20,29 m², offrant à la fois un abri sécurisé pour votre véhicule et un espace de rangement supplémentaire.À l’étage, la maison Alaska continue de séduire avec trois chambres lumineuses et un bureau. La suite parentale de 15,90 m² offre un espace généreux pour un lit king-size et du mobilier complémentaire. Les deux autres chambres, respectivement de 11,64 m² et 11,06 m², sont idéales pour des enfants ou des invités. Un bureau de 8,25 m², parfait pour le télétravail ou les études, ainsi qu’une salle de bains moderne de 6,58 m² et un second WC complètent cet étage.Optez pour le modèle Alaska de Maisons Vesta, une maison qui allie style, fonctionnalité et respect de l’environnement.
Dombasle-sur-Meurthe
TERRAIN ET MAISONSur ce terrain, nous vous proposons cette maison neuve : le modèle SEATTLE, conçu par Maisons Vesta. Avec une surface de 81 m², cette maison à étage offre un excellent rapport qualité/prix et s’adapte parfaitement aux terrains avec une façade courte. Dès l’entrée, vous serez séduit par un espace salon/séjour/cuisine ouverte, entièrement modulable selon vos goûts et vos besoins. Le rez-de-chaussée comprend également un WC indépendant et un cellier, ajoutant une touche de praticité à votre quotidien.À l’étage, vous découvrirez trois chambres spacieuses, chacune conçue pour intégrer un dressing sur mesure, offrant ainsi un espace de rangement optimal. La partie nuit est complétée par un second WC indépendant et une très grande salle de bain, équipée pour accueillir à la fois une baignoire, une douche et une double vasque, idéale pour les matins animés des familles actives.Cette maison neuve est basse consommation et conforme à la RE2020, garantissant ainsi des performances énergétiques optimales et un confort de vie inégalé. Ne manquez pas cette opportunité unique de devenir propriétaire d’une maison moderne, fonctionnelle et éco-responsable avec Maisons Vesta. Contactez-nous dès aujourd’hui pour plus d’informations et pour découvrir les différentes configurations disponibles selon la surface désirée.
Dombasle-sur-Meurthe
TERRAIN ET MAISONSur ce terrain, nous vous proposons cette maison neuve : la My First 75, un modèle idéal pour les familles à la recherche d’un logement à petit prix. Conçue par Maisons Vesta, cette maison de 75 m² offre 4 pièces, dont 3 chambres, et se distingue par ses excellentes performances énergétiques conformes à la norme RE2020.La My First 75 est la championne toutes catégories de notre gamme low cost ! C’est en effet la maison la moins chère, tout simplement ! Quand simplicité et qualité riment avec meilleur prix, cela donne une jolie habitation traditionnelle de plain-pied avec garage intégré, très sympa et affichant d’excellentes performances en matière d’économie d’énergie (RE2020), ce qui est indispensable à l’heure actuelle. Même avec un budget serré, votre projet se réalisera avec Maisons Vesta !Ce joli petit pavillon dispose d’un garage de 15m². Quant à sa surface habitable, elle est de 75m². Un grand séjour-cuisine traversant donne une agréable sensation d’espace. Trois chambres à coucher de dimension raisonnable accueilleront votre famille ! Le design sobre et moderne tout à la fois en fait un modèle très apprécié de nos clients.Fonctionnelle, elle a une petite surface, mais des espaces si bien répartis qu’on est loin de se sentir à l’étroit. La My First 75 a vraiment tous les arguments pour séduire le plus exigeant de nos clients ! Visitez-la en 3D sur notre site !Pour un prix défiant toute concurrence, vous bénéficiez de nos meilleures technologies et d’un service sans failles ! Soyez-en assuré, son tout petit prix ne vous privera pas d’une maison bien isolée, aux finitions soignées, dans laquelle vous et votre famille vous sentirez vraiment chez vous !Cette My First est prête à construire… et ce au meilleur prix. Ne manquez pas cette opportunité unique de devenir propriétaire d’une maison neuve, basse consommation et conforme à la RE2020, avec Maisons Vesta.
Velaine-sous-Amance
TERRAINDans un environnement paisible et verdoyant, venez découvrir ce terrain de plus de 1 100 m², idéalement situé au calme, à seulement quelques minutes de Nancy.Ce terrain, non viabilisé, offre un magnifique cadre naturel avec des arbres fruitiers et un beau potentiel pour réaliser votre projet de construction sur mesure.Les atouts :Secteur recherché, proche de Nancy-Est,Environnement résidentiel et campagne,Terrain plat, facilement accessible,Parcelle généreuse permettant toutes les configurations,Laissez libre cours à vos envies et imaginez votre future maison dans un cadre bucolique. Les honoraires sont à la charge du vendeur.Les informations sur les risques auxquels ce bien est exposé sont disponibles sur le site Géorisques : www. georisques. gouv. fr.Contactez Sabine MORETTI Entrepreneur Individuel, Agent commercial OptimHome (RSAC N(Numéro supprimé) Greffe de NANCY) (Numéro supprimé) (réf. 595603 )
L’actualité immobilière à Haraucourt
27/11/2023
02/11/2023
30/10/2023
20/10/2023
16/10/2023
16/10/2023