Maison à construire à Belz (56550)
Images
Description
VENTE d'une maison de 5 pièces (91 m²) à Belz
QUARTIER RECHERCHÉ - MAISON 5 PIÈCES NEUVE
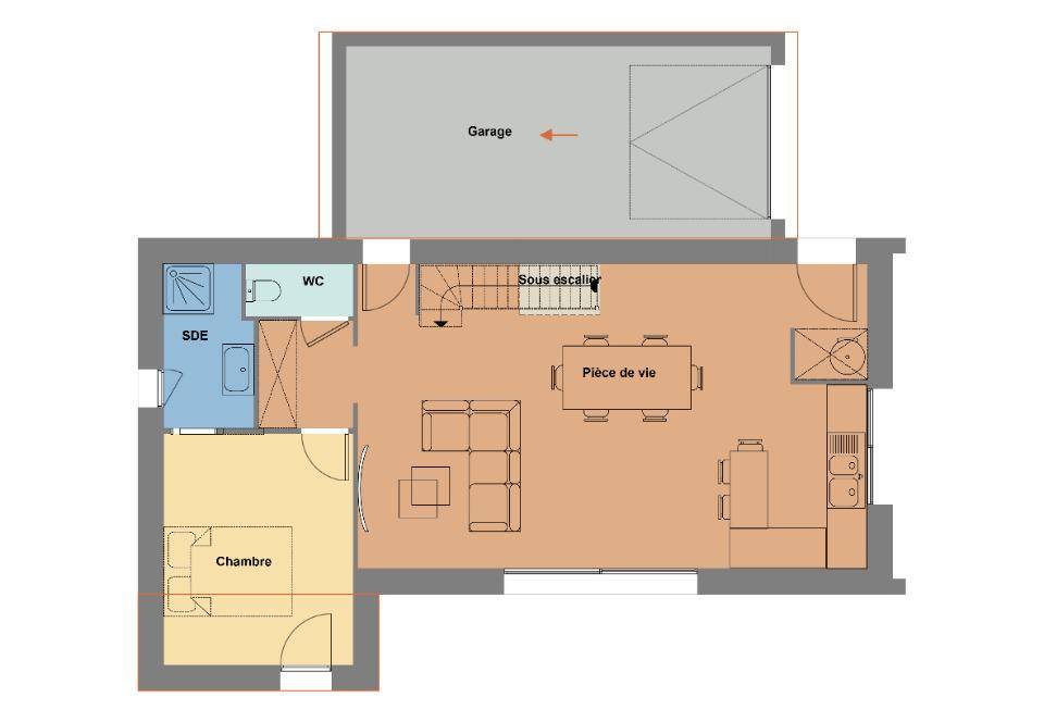
À vendre : localisée sur le littoral atlantique et à 18 km de Lorient, nous vous proposons, située dans un secteur prisé de Belz (56550), cette maison de 5 pièces de 91 m².
Il s'agit d'une maison de 2 niveaux. Elle se divise en quatre chambres, une cuisine et deux salles de bains. La maison est neuve.
Le terrain de la propriété est de 354 m².
La maison est située dans un quartier convoité. L'École Primaire Privée Saint Jean et l'École Primaire Publique Per Jakez Hélias sont implantées à moins de 10 minutes à pied. Côté transports en commun, il y a quatre gares à moins de 10 minutes en voiture. La nationale N165 est accessible à 9 km. On trouve une bibliothèque, un tennis, des commerces, deux boulangeries, une épicerie, un bureau de poste et une boucherie-charcuterie à quelques minutes à peine.
Elle est proposée à l'achat pour 375 000 €.
Prenez contact avec notre agence (Christophe COLLOCH : (Numéro supprimé)) pour toute information sur la propriété.
Logement susceptibles de vous intéresser
Nous vous proposons de découvrir aussi cette sélection de logements situés à moins de 10km de Belz et qui seraient susceptibles de vous intéresser.
Plouhinec
TERRAIN ET MAISONVENTE : maison de 6 pièces (130 m²) à PlouhinecPROCHE DE LORIENT – MAISON 6 PIÈCES NEUVESur le littoral atlantique et à deux pas de Lorient, à vendre à Plouhinec (56680), notre agence Maisons de l’Avenir Lorient est heureuse de vous présenter cette maison de 6 pièces de 130 m² et de 434 m² de terrain. Elle propose cinq chambres, une cuisine et deux salles de bains.C’est une maison de 2 niveaux. Elle est à vendre pour la somme de 430 000 €.Contactez notre constructeur (Anne-Sophie LAPART : (Numéro supprimé)) pour plus d’informations sur la maison, sur les modalités de vente ou sur les démarches à suivre. Concrétisez vos projets immobiliers avec Maisons de l’Avenir Lorient.
Merlevenez
TERRAINSitué dans la charmante commune de Merlevenez (56700), ce terrain de 493 m² offre un cadre de vie idéal pour les amoureux de la tranquillité. Proche des commerces, cet emplacement bénéficie d’une atmosphère chaleureuse propre aux petites villes, garantissant un quotidien pratique et agréable.Ce terrain vierge, d’une surface habitable de 493 m², constitue une toile vierge parfaite pour concrétiser le projet de construction de votre futur habitat sur mesure. Doté de multiples orientations telles que le sud et l’ouest, il offre la possibilité d’exploiter au mieux l’ensoleillement et de créer un espace extérieur harmonieux. Bénéficiant d’un emplacement stratégique et d’un environnement serein, ce terrain représente une opportunité rare pour réaliser votre résidence personnalisée.Les informations sur les risques auxquels ce bien est exposé sont disponibles sur le site Géorisques : www.georisques.gouv.frPrix de vente : 126 000 €Honoraires charge vendeurContactez votre consultant megAgence : Sebastien PEDRONO, Tél. : (Numéro supprimé), E-mail : (Email supprimé) – EI – Agent commercial immatriculé au RSAC de VANNES sous le numéro 803 527 886
Plouhinec
TERRAIN ET MAISONMaison de 4 pièces (85 m²) à vendre à PlouhinecMAISON 4 PIÈCES NEUVE – PROCHE DE LORIENTÀ 5 km de la côte atlantique et à 12 km de Lorient, venez découvrir en vente à Plouhinec (56680), cette maison de 4 pièces de plain-pied de 85 m².Conçue de plain-pied, elle inclut trois chambres, une cuisine et une salle de bains.Elle est proposée à l’achat pour 316 000 €.Prenez contact avec Anne-Sophie LAPART (tél : (Numéro supprimé)) pour toute question sur la maison. Maisons de l’Avenir Lorient vous accompagne dans toutes vos démarches et à toutes les étapes de l’achat.
Merlevenez
TERRAINLe terrain de 290 m² situé à Merlevenez (56700) offre un cadre idéal aux futurs acquéreurs souhaitant s’installer dans cette charmante petite ville au calme. Dotée d’une exposition Sud offrant une luminosité agréable, la parcelle bénéficie d’une orientation Sud-Est et Sud-Ouest, idéale pour profiter du soleil tout au long de la journée. La proximité des transports en commun tels que les arrêts de bus, ainsi que des établissements scolaires (écoles, lycée, collège, crèche) et des commerces facilite le quotidien des résidents. De plus, les animations et la vie commerçante dynamique du quartier offrent un cadre de vie animé et convivial.Les informations sur les risques auxquels ce bien est exposé sont disponibles sur le site Géorisques : www.georisques.gouv.frPrix de vente : 90 200 €Honoraires charge vendeurContactez votre consultant megAgence : Sebastien PEDRONO, Tél. : (Numéro supprimé), E-mail : (Email supprimé) – EI – Agent commercial immatriculé au RSAC de VANNES sous le numéro 803 527 886
Plouhinec
TERRAINTerrain de 434 m² à vendre à PlouhinecPROCHE DE LORIENTÀ Plouhinec (56680) à vendre à 5 km de la côte atlantique et à deux pas de Lorient, découvrez ce terrain de 434 m². Il est à vendre pour la somme de 129 000 €. Contactez notre agence (LAPART Anne-Sophie : (Numéro supprimé)) pour tout renseignement sur ce terrain.
Plouhinec
TERRAIN ET MAISONMaison de 5 pièces (100 m²) en vente à PlouhinecMAISON 5 PIÈCES NEUVE – PROCHE DE LORIENTÀ 5 km de l’océan Atlantique et à quelques kilomètres de Lorient, votre agence Maisons de l’Avenir Lorient est ravie de vous présenter en vente à Plouhinec (56680), cette maison de 5 pièces de 100 m² et de 434 m² de terrain. Elle comporte quatre chambres, une cuisine et deux salles de bains.Il s’agit d’une maison de 2 niveaux.Elle est proposée à l’achat pour 364 000 €.Prenez contact avec notre agence (LAPART Anne-Sophie : (Numéro supprimé)) pour toute question sur cette maison, sur les modalités de vente ou sur les démarches à suivre.
Plouhinec
TERRAINTerrain de 439 m² en vente à PlouhinecPROCHE DE LORIENTÀ vendre à 5 km de la côte atlantique et à 12 km de Lorient à Plouhinec (56680), terrain de 439 m². Réalisez-y la maison de vos rêves.Il est proposé à l’achat pour 129 000 €. Contactez notre agence (LAPART Anne-Sophie : (Numéro supprimé)) pour tout renseignement sur ce terrain, sur les démarches à suivre et sur les modalités de vente.
Plouhinec
TERRAIN ET MAISONPlouhinec : maison de 5 pièces (125 m²) en ventePROCHE DE LORIENT – MAISON 5 PIÈCES NEUVEEn vente : située à 5 km de la côte atlantique et à deux pas de Lorient, à Plouhinec (56680), venez découvrir cette maison de 5 pièces de 125 m² et de 439 m² de terrain.C’est une maison de 2 niveaux. Elle dispose de quatre chambres, d’une cuisine et de deux salles de bains. Son prix de vente est de 404 000 €.Contactez notre agence (LAPART Anne-Sophie : (Numéro supprimé)) pour obtenir de plus amples renseignements sur la maison. Donnez vie à vos projets immobiliers avec Maisons de l’Avenir Lorient.
Plouhinec
TERRAIN ET MAISONVENTE : maison de 5 pièces (155 m²) à PlouhinecMAISON 5 PIÈCES NEUVE – PROCHE DE LORIENTÀ vendre : à 5 km de la côte atlantique et à deux pas de Lorient, nous vous proposons cette maison de 5 pièces de 155 m² et de 439 m² de terrain à Plouhinec (56680). Elle offre quatre chambres, une cuisine et deux salles de bains.Cette maison compte 2 niveaux.Elle est à vendre pour la somme de 470 000 €.Prenez contact avec Anne-Sophie LAPART ((Numéro supprimé)) pour obtenir de plus amples renseignements sur cette maison ou sur les modalités de vente.
L’actualité immobilière à Belz
27/11/2023
02/11/2023
30/10/2023
20/10/2023
16/10/2023
16/10/2023