Maison à construire à Berné (56240)
Images
Description
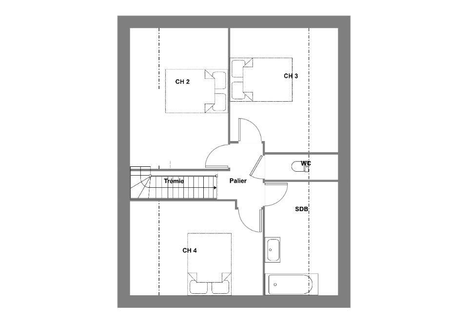
Berné : maison F4 (89 m²) en vente
EMPLACEMENT PRIVILÉGIÉ - MAISON 4 PIÈCES NEUVE
À vendre à 29 km de la côte atlantique et à quelques kilomètres de Lorient, nous sommes ravis de vous présenter cette maison de 4 pièces de 89 m² et de 614 m² de terrain bénéficiant d'un emplacement privilégié dans Berné (56240). Elle dispose de trois chambres, d'une cuisine et de deux salles de bains.
C'est une maison de 2 niveaux. Elle est neuve.
La maison est située dans un secteur recherché. Il y a l'École Primaire Publique Georges Brassens et l'École Primaire Privée Sainte Hélène à moins de 10 minutes à pied. La nationale N165 est accessible à 19 km. On trouve une boulangerie, une boucherie-charcuterie et un bureau de poste à quelques minutes à peine.
Elle est proposée à l'achat pour 288 000 €.
Contactez notre agence (COLLOCH Christophe : (Numéro supprimé)) pour tout renseignement sur la maison, sur les modalités de vente ou sur les démarches à suivre. Maisons de l'Avenir Lorient vous accompagne dans tous vos projets immobiliers et à toutes les étapes de votre projet.
Logement susceptibles de vous intéresser
Nous vous proposons de découvrir aussi cette sélection de logements situés à moins de 10km de Berné et qui seraient susceptibles de vous intéresser.
Berné
TERRAINTerrain de 560 m² en vente à BernéEMPLACEMENT PRIVILÉGIÉ – PROCHE DE LORIENTÀ Berné (56240) à 29 km de la côte atlantique et à quelques kilomètres de Lorient, venez découvrir ce terrain de 560 m². Dans un quartier convoité, le terrain bénéficiant d’un emplacement d’exception est proche des commerces et des écoles. L’École Primaire Publique Georges Brassens et l’École Primaire Privée Sainte Hélène sont implantées à moins de 10 minutes à pied. La nationale N165 est accessible à 19 km. Il y a une boulangerie, un bureau de poste et une boucherie-charcuterie à quelques minutes.Son prix de vente est de 40 000 €. N’hésitez pas à prendre contact avec Christophe COLLOCH (tél : (Numéro supprimé)) pour toute information sur ce terrain.
Berné
TERRAIN ET MAISONVENTE d’une maison F3 (55 m²) à BernéEMPLACEMENT PRIVILÉGIÉ – MAISON 3 PIÈCES NEUVEEn vente : à 29 km de l’océan Atlantique et à quelques kilomètres de Lorient, Maisons de l’Avenir Lorient vous propose cette maison de 3 pièces de plain-pied de 55 m², bénéficiant d’un emplacement privilégié dans Berné (56240). Conçue de plain-pied, elle comporte deux chambres, une cuisine et une salle de bains.Le terrain de cette maison est de 560 m².La maison est neuve.Cette maison est située dans un secteur recherché. On trouve l’École Primaire Publique Georges Brassens et l’École Primaire Privée Sainte Hélène à moins de 10 minutes à pied. La nationale N165 est accessible à 19 km. Il y a une boulangerie, un bureau de poste et une boucherie-charcuterie à proximité.Son prix de vente est de 175 000 €.Contactez Christophe COLLOCH ((Numéro supprimé)) pour toute information sur la maison, sur les démarches à suivre ou sur les modalités de vente.
Berné
TERRAIN ET MAISONVENTE : maison T4 (62 m²) à BernéEMPLACEMENT PRIVILÉGIÉ – MAISON 4 PIÈCES NEUVEEn vente : à 29 km de la côte atlantique et à deux pas de Lorient, bénéficiant d’un emplacement privilégié dans Berné (56240), Maisons de l’Avenir Lorient vous présente cette maison de 4 pièces de 62 m².Cette maison comporte 2 niveaux. Elle se divise en trois chambres, une cuisine et une salle de bains. Cette maison est neuve.Le terrain du bien s’étend sur 560 m².La maison se trouve dans un quartier prisé. L’École Primaire Publique Georges Brassens et l’École Primaire Privée Sainte Hélène sont implantées à moins de 10 minutes à pied. La nationale N165 est accessible à 19 km. On trouve une boulangerie, une boucherie-charcuterie et un bureau de poste à proximité du logement.Elle est proposée à l’achat pour 190 000 €.Prenez contact avec Christophe COLLOCH ((Numéro supprimé)) pour toute question sur la maison ou sur les modalités de vente.
Berné
TERRAIN ET MAISONMaison F5 (87 m²) en vente à BernéEMPLACEMENT PRIVILÉGIÉ – MAISON 5 PIÈCES NEUVEÀ vendre à 29 km de l’océan Atlantique et à quelques kilomètres de Lorient, Maisons de l’Avenir Lorient vous propose cette maison de 5 pièces de 87 m² et de 560 m² de terrain bénéficiant d’un emplacement privilégié dans Berné (56240). Elle dispose de quatre chambres, d’une cuisine et d’une salle de bains.Il s’agit d’une maison de 2 niveaux. Elle est neuve.La maison se trouve dans un quartier prisé. L’École Primaire Publique Georges Brassens et l’École Primaire Privée Sainte Hélène sont implantées à moins de 10 minutes à pied. La nationale N165 est accessible à 19 km. On trouve une boulangerie, un bureau de poste et une boucherie-charcuterie dans les environs.Elle est proposée à l’achat pour 255 000 €.N’hésitez pas à prendre contact avec Christophe COLLOCH ((Numéro supprimé)) pour plus de renseignements sur la maison. Maisons de l’Avenir Lorient est là pour vous accompagner à toutes les étapes de l’achat.
Berné
TERRAIN ET MAISONVENTE d’une maison de 4 pièces (95 m²) à BernéEMPLACEMENT PRIVILÉGIÉ – MAISON 4 PIÈCES NEUVEEn vente à 29 km de l’océan Atlantique et à 26 km de Lorient, bénéficiant d’un emplacement d’exception dans Berné (56240), notre agence Maisons de l’Avenir Lorient est ravie de vous proposer cette maison de 4 pièces de 95 m² et de 560 m² de terrain. Son intérieur offre trois chambres, une cuisine et deux salles de bains.Cette maison possède 2 niveaux. Elle est neuve.La maison est située dans un secteur prisé. L’École Primaire Publique Georges Brassens et l’École Primaire Privée Sainte Hélène sont implantées à moins de 10 minutes à pied. La nationale N165 est accessible à 19 km. On trouve une boulangerie, un bureau de poste et une boucherie-charcuterie à proximité de la maison.Elle est proposée à l’achat pour 290 000 €.Prenez contact avec Christophe COLLOCH ((Numéro supprimé)) pour plus de renseignements sur la maison. Maisons de l’Avenir Lorient vous accompagne dans tous vos projets immobiliers et à toutes les étapes de l’achat.
Berné
TERRAINVENTE d’un terrain de 614 m² à BernéEMPLACEMENT PRIVILÉGIÉ – PROCHE DE LORIENTÀ Berné (56240) à 29 km de la côte atlantique et à deux pas de Lorient, projetez la maison de vos rêves sur ce terrain de 614 m². Dans un quartier convoité, ce terrain bénéficiant d’un emplacement d’exception est proche des commerces et des écoles. L’École Primaire Publique Georges Brassens et l’École Primaire Privée Sainte Hélène sont implantées à moins de 10 minutes à pied. On trouve un accès à la nationale N165 à 19 km. Il y a une boulangerie, une boucherie-charcuterie et un bureau de poste dans les environs.Son prix de vente est de 44 500 €. Contactez Christophe COLLOCH ((Numéro supprimé)) pour toute information sur ce terrain, sur les démarches à suivre ou sur les modalités de vente. Maisons de l’Avenir Lorient vous accompagne à toutes les étapes de votre projet et dans tous vos projets immobiliers.
Berné
TERRAIN ET MAISONBerné : maison de 4 pièces (70 m²) à vendreEMPLACEMENT PRIVILÉGIÉ – MAISON 4 PIÈCES NEUVEÀ 29 km de l’océan Atlantique et à deux pas de Lorient, venez découvrir cette maison de 4 pièces de plain-pied de 70 m² à vendre, bénéficiant d’un emplacement d’exception dans Berné (56240). Conçue de plain-pied, elle compte trois chambres, une cuisine et une salle de bains.Le terrain de cette maison est de 614 m².La maison est neuve.Cette maison se trouve dans un quartier recherché. L’École Primaire Publique Georges Brassens et l’École Primaire Privée Sainte Hélène sont implantées à moins de 10 minutes à pied. Il y a un accès à la nationale N165 à 19 km. On trouve une boulangerie, un bureau de poste et une boucherie-charcuterie dans les environs.Elle est proposée à l’achat pour 219 000 €.Prenez contact avec notre agence (Christophe COLLOCH : (Numéro supprimé)) pour plus d’informations sur la maison.
Berné
TERRAIN ET MAISONVENTE : maison de 4 pièces (73 m²) à BernéEMPLACEMENT PRIVILÉGIÉ – MAISON 4 PIÈCES NEUVEÀ 29 km de l’océan Atlantique et à deux pas de Lorient, nous vous proposons cette maison de 4 pièces de 73 m² en vente bénéficiant d’un emplacement d’exception dans Berné (56240).Il s’agit d’une maison de 2 niveaux. Son intérieur inclut trois chambres, une cuisine et une salle de bains. La maison est neuve.Le terrain du bien est de 614 m².Cette propriété se trouve dans un quartier convoité. Il y a l’École Primaire Publique Georges Brassens et l’École Primaire Privée Sainte Hélène à moins de 10 minutes à pied. On trouve un accès à la nationale N165 à 19 km. On trouve une boulangerie, un bureau de poste et une boucherie-charcuterie à quelques minutes de la maison.Son prix de vente est de 234 000 €.N’hésitez pas à prendre contact avec notre agence (COLLOCH Christophe : (Numéro supprimé)) pour tout renseignement sur la maison ou sur les modalités de vente.
Berné
TERRAIN ET MAISONBerné : maison F4 (89 m²) en venteEMPLACEMENT PRIVILÉGIÉ – MAISON 4 PIÈCES NEUVEÀ vendre à 29 km de la côte atlantique et à quelques kilomètres de Lorient, nous sommes ravis de vous présenter cette maison de 4 pièces de 89 m² et de 614 m² de terrain bénéficiant d’un emplacement privilégié dans Berné (56240). Elle dispose de trois chambres, d’une cuisine et de deux salles de bains.C’est une maison de 2 niveaux. Elle est neuve.La maison est située dans un secteur recherché. Il y a l’École Primaire Publique Georges Brassens et l’École Primaire Privée Sainte Hélène à moins de 10 minutes à pied. La nationale N165 est accessible à 19 km. On trouve une boulangerie, une boucherie-charcuterie et un bureau de poste à quelques minutes à peine.Elle est proposée à l’achat pour 288 000 €.Contactez notre agence (COLLOCH Christophe : (Numéro supprimé)) pour tout renseignement sur la maison, sur les modalités de vente ou sur les démarches à suivre. Maisons de l’Avenir Lorient vous accompagne dans tous vos projets immobiliers et à toutes les étapes de votre projet.
L’actualité immobilière à Berné
27/11/2023
02/11/2023
30/10/2023
20/10/2023
16/10/2023
16/10/2023