Maison à construire à Camors (56330)
Images
Description
VENTE d'une maison T5 (89 m²) à Camors
PROCHE DE LORIENT - MAISON 5 PIÈCES NEUVE
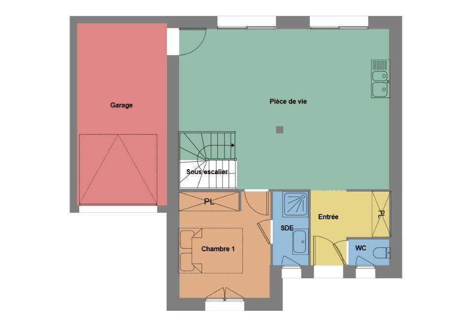
À 30 km de l'océan Atlantique et à quelques kilomètres de Lorient, en vente à Camors (56330), ayez le coup de coeur pour cette maison de 5 pièces de 89 m². Son intérieur se divise en quatre chambres, une cuisine et deux salles de bains.
Le terrain de la propriété est de 399 m².
Cette maison compte 2 niveaux. Elle est neuve.
Il y a l'École Primaire Publique les Lutins et l'École Primaire Privée Saint Joseph à moins de 10 minutes à pied et une structure d'accueil pour les tout-petits. La nationale N24 est accessible à 6 km. On trouve une boulangerie, un commerce, une boucherie-charcuterie et un bureau de poste à quelques minutes à peine.
Elle est à vendre pour la somme de 252 900 €.
Contactez Germain CHARUEL (tél : (Numéro supprimé)) pour toute question sur la maison. Concrétisez vos projets immobiliers avec Maisons de l'Avenir Vannes.
Logement susceptibles de vous intéresser
Nous vous proposons de découvrir aussi cette sélection de logements situés à moins de 10km de Camors et qui seraient susceptibles de vous intéresser.
Camors
TERRAINTerrain d’env. 900 m² à bâtir et à viabiliser, idéalement situé et bien exposé à CAMORSLes informations sur les risques auxquels ce bien est exposé sont disponibles sur le site Géorisques : www.georisques.gouv.fr (8.27 % honoraires TTC à la charge de l’acquéreur.)
Pluvigner
TERRAIN3%.COM Immobilier, Jean-Pierre JOSSE vous propose ce beau terrain à bâtir, au calme dans une impasse, exposé plein Sud de 800 m2 env, A viabiliser PTT, SAUR, EDF, assainissement autonome à prévoir Hors lotissement, se faisant rare sur le marché Les informations sur les risques auxquels ce bien est exposé sont disponibles sur le site www.georisques.gouv.fr Le prix indiqué comprend les honoraires réduits de 3% à la charge de l’acquéreur. Prix net vendeur 80 000 EUR Contactez Jean-Pierre JOSSE : (Numéro supprimé), Agent indépendant, RSAC LORIENT 753 769 843 – Annonce rédigée et publiée par un Agent Mandataire –
Brandivy
TERRAIN ET MAISONTerrain viabilisé (élec, eau) de 550m² en lotissement (17 lots) situé à BRANDIVY. Commune rurale du Morbihan proche de GRAND-CHAMP (terrain à 5 min en voiture) située sur l’axe PLUVIGNER – GRAND-CHAMP. Idéal pour la construction de votre future maison, ce terrain offre une belle exposition SUD/OUEST et le confort de toutes commodités à 5 minutes (écoles, services, commerces). Assainissement de type non collectif à prévoir. Belle opportunité à saisir !. M. BOUCHARD (Numéro supprimé). Spacieuse et fonctionnelle, cette maison de plain-pied vous propose un bel espace de vie lumineux de 46 m² environ , avec une grande baie vitrée donnant sur le jardin. Sa cuisine est ouverte sur le séjour et dispose d'un accès direct au cellier, et au garage intégré. Son espace nuit est composé de trois chambres avec rangements, d'une salle de bains et de wc séparés. Pour vous assurer un confort de vie et conformément à la RE2025, nous avons choisi un mode de chauffage par PAC + plancher chauffant, volets roulants électriques. Prix hors fourniture et pose : des appareils sanitaires (sauf système de chauffage et d'eau chaude sanitaire), du carrelage et de la faïence, des revêtements de sol dans les chambres. Hors décoration et aménagement intérieur et peinture. Hors raccordements, frais de notaire et dommage ouvrage. // Réf. : 860-210167-TOB. Prix terrain : 65 000 €, hors frais d'agence à la charge de l'acquéreur. Ce terrain vous est proposé, par nos partenaires fonciers, dans le cadre d'un projet de construction avec nous. Les informations sur les risques auxquels ce bien est exposé sont disponibles sur le site Géorisques (www.georisques.gouv.fr). Prix maison : 142 530 €.
Brandivy
TERRAIN ET MAISONTerrain viabilisé (élec, eau) de 550m² en lotissement (17 lots) situé à BRANDIVY. Commune rurale du Morbihan proche de GRAND-CHAMP (terrain à 5 min en voiture) située sur l’axe PLUVIGNER – GRAND-CHAMP. Idéal pour la construction de votre future maison, ce terrain offre une belle exposition SUD/OUEST et le confort de toutes commodités à 5 minutes (écoles, services, commerces). Assainissement de type non collectif à prévoir. Belle opportunité à saisir !. M. BOUCHARD (Numéro supprimé). Une maison spacieuse et fonctionnelle, idéale pour toute la famille ! Avec son grand espace de vie lumineux, cette maison allie confort et convivialité. Le rez-de-chaussée accueille un salon, une salle à manger et une cuisine ouverte, accompagnés d’un cellier pratique, d’une salle d’eau et d’un WC indépendant. Une chambre supplémentaire offre flexibilité et confort. À l’étage, trois chambres généreuses, une salle de bain moderne et un second WC garantissent bien-être et praticité au quotidien. Un design moderne et optimisé pour un cadre de vie agréable !. Pour vous assurer un confort de vie optimal et en conformité avec la RE2025, nous avons opté pour un système de chauffage par pompe à chaleur (PAC) avec plancher chauffant au rez-de-chaussée et radiateurs à l’étage. Le logement est également équipé de volets roulants électriques. Prix hors fourniture et pose : des appareils sanitaires (sauf système de chauffage et d'eau chaude sanitaire), du carrelage et de la faïence, des revêtements de sol dans les chambres. Hors décoration et aménagement intérieur et peinture. Hors raccordements, frais de notaire et dommage ouvrage. // Réf. : 2500-210167-TOB. Prix terrain : 65 000 €, hors frais d'agence à la charge de l'acquéreur. Ce terrain vous est proposé, par nos partenaires fonciers, dans le cadre d'un projet de construction avec nous. Les informations sur les risques auxquels ce bien est exposé sont disponibles sur le site Géorisques (www.georisques.gouv.fr). Prix maison : 153 753 €.
Brandivy
TERRAIN ET MAISONTerrain viabilisé (élec, eau) de 550m² en lotissement (17 lots) situé à BRANDIVY. Commune rurale du Morbihan proche de GRAND-CHAMP (terrain à 5 min en voiture) située sur l’axe PLUVIGNER – GRAND-CHAMP. Idéal pour la construction de votre future maison, ce terrain offre une belle exposition SUD/OUEST et le confort de toutes commodités à 5 minutes (écoles, services, commerces). Assainissement de type non collectif à prévoir. Belle opportunité à saisir !. M. BOUCHARD (Numéro supprimé). Un intérieur moderne et fonctionnel pour toute la famille ! Cette maison a été conçue pour offrir espace et confort avec un agencement pensé pour le bien-être de chacun. Au rez-de-chaussée, une grande pièce de vie baignée de lumière vous accueille, offrant un cadre chaleureux où le salon, la salle à manger et la cuisine se fondent harmonieusement. Un cellier bien situé vient compléter cet espace pour un rangement optimal. Pour plus de confort, une suite parentale avec salle d’eau est aménagée au rez-de-chaussée, garantissant indépendance et tranquillité. À l’étage, trois chambres spacieuses offrent à chaque membre de la famille un espace personnel agréable. Une grande salle de bain complète cet étage, idéale pour le quotidien. Pour vous assurer un confort de vie optimal et en conformité avec la RE2025, nous avons opté pour un système de chauffage par pompe à chaleur (PAC) avec plancher chauffant au rez-de-chaussée et radiateurs à l’étage. Le logement est également équipé de volets roulants électriques. Prix hors fourniture et pose : des appareils sanitaires (sauf système de chauffage et d'eau chaude sanitaire), du carrelage et de la faïence, des revêtements de sol dans les chambres. Hors décoration et aménagement intérieur et peinture. Hors raccordements, frais de notaire et dommage ouvrage. // Réf. : 2476-210167-TOB. Prix terrain : 65 000 €, hors frais d'agence à la charge de l'acquéreur. Ce terrain vous est proposé, par nos partenaires fonciers, dans le cadre d'un projet de construction avec nous. Les informations sur les risques auxquels ce bien est exposé sont disponibles sur le site Géorisques (www.georisques.gouv.fr). Prix maison : 168 859 €.
Brandivy
TERRAINTerrain viabilisé (élec, eau) de 550m² en lotissement (17 lots) situé à BRANDIVY. Commune rurale du Morbihan proche de GRAND-CHAMP (terrain à 5 min en voiture) située sur l’axe PLUVIGNER – GRAND-CHAMP. Idéal pour la construction de votre future maison, ce terrain offre une belle exposition SUD/OUEST et le confort de toutes commodités à 5 minutes (écoles, services, commerces). Assainissement de type non collectif à prévoir. Belle opportunité à saisir !. M. BOUCHARD (Numéro supprimé). // Réf. : T210167. Prix terrain : 65 000 €, hors frais d'agence et de notaire à la charge de l'acquéreur. Ce terrain vous est proposé, par nos partenaires fonciers, dans le cadre d'un projet de construction avec nous. Les informations sur les risques auxquels ce bien est exposé sont disponibles sur le site Géorisques (www.georisques.gouv.fr).
Brandivy
TERRAINTerrain viabilisé (élec, eau) de 550m² en lotissement (17 lots) situé à BRANDIVY. Commune rurale du Morbihan proche de GRAND-CHAMP (terrain à 5 min en voiture) située sur l’axe PLUVIGNER – GRAND-CHAMP. Idéal pour la construction de votre future maison, ce terrain offre une belle exposition SUD/OUEST et le confort de toutes commodités à 5 minutes (écoles, services, commerces). Assainissement de type non collectif à prévoir. Belle opportunité à saisir !. M. BOUCHARD (Numéro supprimé). // Réf. : T210167. Prix terrain : 65 000 €, hors frais d'agence et de notaire à la charge de l'acquéreur. Ce terrain vous est proposé, par nos partenaires fonciers, dans le cadre d'un projet de construction avec nous. Les informations sur les risques auxquels ce bien est exposé sont disponibles sur le site Géorisques (www.georisques.gouv.fr).
Pluvigner
TERRAINTerrain de 582 m² en vente à PluvignerPROCHE DE LORIENTÀ Pluvigner (56330) à 23 km de la côte atlantique et à deux pas de Lorient, découvrez ce terrain de 582 m². Il est proposé à l’achat pour 99 900 €. Contactez notre agence (Anne-Sophie LAPART : (Numéro supprimé)) pour toute information sur le terrain ou sur les modalités de vente.
Pluvigner
TERRAIN ET MAISONVENTE : maison T3 (65 m²) à PluvignerMAISON 3 PIÈCES NEUVE – PROCHE DE LORIENTÀ vendre : à 23 km de l’océan Atlantique et à 27 km de Lorient, notre agence Maisons de l’Avenir Lorient est ravie de vous présenter à Pluvigner (56330), cette maison de 3 pièces de plain-pied de 65 m². Conçue de plain-pied, elle compte deux chambres, une cuisine et une salle de bains.Le terrain de la propriété s’étend sur 582 m².Elle est à vendre pour la somme de 257 900 €.Prenez contact avec Anne-Sophie LAPART ((Numéro supprimé)) pour plus de renseignements sur cette propriété. Maisons de l’Avenir Lorient est là pour vous accompagner à toutes les étapes de votre projet.
L’actualité immobilière à Camors
27/11/2023
02/11/2023
30/10/2023
20/10/2023
16/10/2023
16/10/2023