Maison à construire à Guidel (56520)
Images
Description
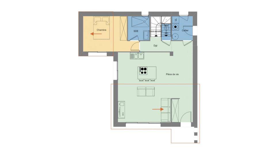
Guidel : maison de 4 pièces (95 m²) en vente
MAISON 4 PIÈCES NEUVE - PROCHE DE LORIENT
En vente : située à 5 km de la côte atlantique et à deux pas de Lorient, nous vous proposons à Guidel (56520), cette maison de 4 pièces de 95 m². Son intérieur se divise en trois chambres, une cuisine et deux salles de bains.
Le terrain de la maison s'étend sur 272 m².
Il s'agit d'une maison de 2 niveaux.
Elle est proposée à l'achat pour 345 000 €.
Prenez contact avec Anne-Sophie LAPART ((Numéro supprimé)) pour obtenir de plus amples informations sur ce bien, sur les modalités de vente ou sur les démarches à suivre. Maisons de l'Avenir Lorient est là pour vous accompagner à toutes les étapes de votre projet.
Logement susceptibles de vous intéresser
Nous vous proposons de découvrir aussi cette sélection de logements situés à moins de 10km de Guidel et qui seraient susceptibles de vous intéresser.
Quimperlé
TERRAINJoli terrain sur QUIMPERLE, plat et idéalement situé, parfait pour réaliser votre projet de construction avec notre entreprise.- Superficie : 481m²- Terrain : Plat et facile à aménager- Emplacement : Idéalement situé dans un cadre agréable- Prix Hors fraisNe manquez pas cette opportunité !Pour plus d’informations, contactez nous au (Numéro supprimé).
Guidel
TERRAINOpportunité à saisir ! Grand terrain à bâtir en centre ville de Guidel. A viabiliser. Emplacement rare, au calme et proche des commodités. Me contacter pour plus d’information. Les honoraires d’agence sont à la charge de l’acquéreur, soit 5,00% TTC du prix hors honoraires.Les informations sur les risques auxquels ce bien est exposé sont disponibles sur le site Géorisques : www. georisques. gouv. fr.Contactez Aurélie SYREYS Entrepreneur Individuel, Agent commercial OptimHome (RSAC N(Numéro supprimé) Greffe de LORIENT) (Numéro supprimé) (réf. 595691 )
Rédené
TERRAINVENTE d’un terrain de 350 m² à RédenéPROCHE DE LORIENTTerrain de 350 m² à vendre à 12 km de l’océan Atlantique et à deux pas de Lorient. Ce terrain se situe dans Rédené (29300). Il est exposé au sud-ouest. L’École Primaire Privée Notre-Dame de Lorette et l’École Primaire Publique du Marronnier sont implantées à moins de 10 minutes à pied. Côté transports en commun, il y a les gares Gestel et Quimperlé à moins de 10 minutes en voiture. La nationale N165 est accessible à 4 km. On trouve un tennis, une boulangerie, une épicerie et une boucherie-charcuterie dans les environs.Son prix de vente est de 64 830 €. Prenez contact avec notre agence (LAURENT Marie : (Numéro supprimé)) pour toute information sur le terrain et sur les démarches à suivre. Maisons de l’Avenir Quimper vous accompagne dans tous vos projets immobiliers et à toutes les étapes de votre projet.
Rédené
TERRAIN ET MAISONVENTE d’une maison T3 (56 m²) à RédenéMAISON 3 PIÈCES NEUVE – PROCHE DE LORIENTÀ 12 km de l’océan Atlantique et à quelques kilomètres de Lorient, en vente à Rédené (29300), votre agence Maisons de l’Avenir Quimper est heureuse de vous proposer cette maison de 3 pièces de plain-pied de 56 m² et de 350 m² de terrain.Son intérieur dispose de deux chambres, d’une cuisine et d’une salle de bains. Cette maison est neuve.L’École Primaire Privée Notre-Dame de Lorette et l’École Primaire Publique du Marronnier sont implantées à moins de 10 minutes à pied. Côté transports, il y a les gares Gestel et Quimperlé à moins de 10 minutes en voiture. Il y a un accès à la nationale N165 à 4 km. On trouve un tennis, une boulangerie, une boucherie-charcuterie et une épicerie à quelques minutes du bien.Elle est à vendre pour la somme de 197 450 €.Prenez contact avec Marie LAURENT ((Numéro supprimé)) pour toute information sur la maison.
Rédené
TERRAIN ET MAISONVENTE d’une maison de 4 pièces (120 m²) à RédenéMAISON 4 PIÈCES NEUVE – PROCHE DE LORIENTEn vente : localisée à 12 km de l’océan Atlantique et à 15 km de Lorient, nous sommes ravis de vous proposer cette maison de 4 pièces de plain-pied de 120 m² à Rédené (29300).Elle comporte trois chambres, une cuisine et deux salles de bains. Cette maison est neuve.Le terrain de la propriété est de 350 m².Il y a l’École Primaire Privée Notre-Dame de Lorette et l’École Primaire Publique du Marronnier à moins de 10 minutes à pied. Niveau transports en commun, on trouve deux gares (Gestel et Quimperlé) à moins de 10 minutes en voiture. On trouve un accès à la nationale N165 à 4 km. Il y a un tennis, une boulangerie, une épicerie et une boucherie-charcuterie à proximité.Elle est à vendre pour la somme de 331 830 €.N’hésitez pas à prendre contact avec notre agence (LAURENT Marie : (Numéro supprimé)) pour plus de renseignements sur la propriété. Maisons de l’Avenir Quimper est là pour vous accompagner à toutes les étapes de votre projet.
Rédené
TERRAIN ET MAISONRédené : maison de 4 pièces (75 m²) en venteMAISON 4 PIÈCES NEUVE – PROCHE DE LORIENTÀ vendre : située à 12 km de la côte atlantique et à quelques kilomètres de Lorient, nous sommes heureux de vous proposer cette maison de 4 pièces de 75 m² et de 350 m² de terrain à Rédené (29300). Son intérieur dispose de trois chambres, d’une cuisine et d’une salle de bains.C’est une maison de 2 niveaux. Elle est neuve.Il y a l’École Primaire Privée Notre-Dame de Lorette et l’École Primaire Publique du Marronnier à moins de 10 minutes à pied. Côté transports, on trouve les gares Gestel et Quimperlé à moins de 10 minutes en voiture. La nationale N165 est accessible à 4 km. Il y a un tennis, une boulangerie, une boucherie-charcuterie et une épicerie à proximité.Elle est proposée à l’achat pour 237 600 €.N’hésitez pas à prendre contact avec Marie LAURENT ((Numéro supprimé)) pour obtenir de plus amples renseignements sur la maison. Concrétisez vos projets immobiliers avec Maisons de l’Avenir Quimper.
Rédené
TERRAIN ET MAISONRédené : maison de 4 pièces (130 m²) en venteMAISON 4 PIÈCES NEUVE – PROCHE DE LORIENTEn vente à 12 km de la côte atlantique et à 15 km de Lorient, votre agence Maisons de l’Avenir Quimper est heureuse de vous proposer à Rédené (29300), cette maison de 4 pièces de 130 m² et de 350 m² de terrain. Son intérieur dispose de quatre chambres, d’une cuisine et de deux salles de bains.Cette maison compte 2 niveaux. Elle est neuve.Il y a l’École Primaire Privée Notre-Dame de Lorette et l’École Primaire Publique du Marronnier à moins de 10 minutes à pied. Niveau transports, on trouve les gares Gestel et Quimperlé à moins de 10 minutes en voiture. La nationale N165 est accessible à 4 km. Il y a un tennis, une boulangerie, une épicerie et une boucherie-charcuterie à quelques minutes.Elle est proposée à l’achat pour 352 830 €.Contactez notre agence (Marie LAURENT : (Numéro supprimé)) pour toute question sur la maison.
Rédené
TERRAINRédené : terrain de 885 m² à vendrePROCHE DE LORIENTÀ Rédené (29300) à vendre à 12 km de la côte atlantique et à 15 km de Lorient, venez découvrir ce terrain de 885 m². Il est exposé au sud-ouest. Il y a l’École Primaire Privée Notre-Dame de Lorette et l’École Primaire Publique du Marronnier à moins de 10 minutes à pied. Niveau transports en commun, on trouve deux gares (Gestel et Quimperlé) à moins de 10 minutes en voiture. La nationale N165 est accessible à 4 km. Il y a un tennis, une boulangerie, une épicerie et une boucherie-charcuterie dans les environs.Son prix de vente est de 161 379 €. Contactez notre agence (LAURENT Marie : (Numéro supprimé)) pour plus de renseignements sur ce terrain. Donnez vie à vos projets immobiliers avec Maisons de l’Avenir Quimper.
Rédené
TERRAIN ET MAISONRédené : maison de 3 pièces (86 m²) en venteMAISON 3 PIÈCES NEUVE – PROCHE DE LORIENTÀ vendre à 12 km de l’océan Atlantique et à quelques kilomètres de Lorient, Maisons de l’Avenir Quimper vous présente cette maison de 3 pièces de plain-pied de 86 m² et de 885 m² de terrain à Rédené (29300). Elle offre trois chambres, une cuisine et une salle de bains.Cette maison est neuve.Il y a l’École Primaire Privée Notre-Dame de Lorette et l’École Primaire Publique du Marronnier à moins de 10 minutes à pied. Côté transports, on trouve les gares Gestel et Quimperlé à moins de 10 minutes en voiture. La nationale N165 est accessible à 4 km. Il y a un tennis, une boulangerie, une boucherie-charcuterie et une épicerie à proximité.Il est proposé à l’achat pour 356 980 €.Prenez contact avec Marie LAURENT (tél : (Numéro supprimé)) pour tout renseignement sur cette maison, sur les démarches à suivre ou sur les modalités de vente. Maisons de l’Avenir Quimper vous accompagne à toutes les étapes de l’achat et dans tous vos projets immobiliers.
L’actualité immobilière à Guidel
27/11/2023
02/11/2023
30/10/2023
20/10/2023
16/10/2023
16/10/2023