Maison à construire à Guidel (56520)
Images
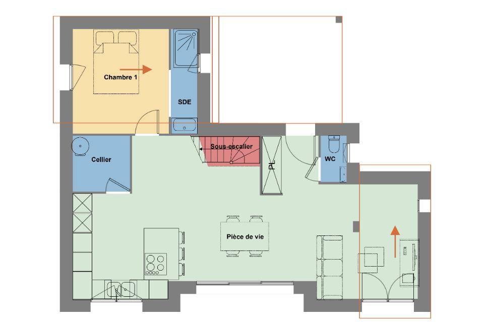
Description
Maison T4 (95 m²) à vendre à Guidel
PROCHE DE LORIENT - MAISON 4 PIÈCES NEUVE
En vente : localisée sur la côte atlantique et à 10 km de Lorient, notre agence Maisons de l'Avenir Lorient est ravie de vous proposer cette maison de 4 pièces de 95 m² à Guidel (56520). Son intérieur offre trois chambres, une cuisine et deux salles de bains.
Le terrain du bien est de 406 m².
Cette maison possède 2 niveaux.
Son prix de vente est de 404 000 €.
Contactez notre agence (Anne-Sophie LAPART : (Numéro supprimé)) pour obtenir de plus amples informations sur la maison et sur les démarches à suivre. Maisons de l'Avenir Lorient est là pour vous accompagner à toutes les étapes de l'achat.
Logement susceptibles de vous intéresser
Nous vous proposons de découvrir aussi cette sélection de logements situés à moins de 10km de Guidel et qui seraient susceptibles de vous intéresser.
Guidel
TERRAINVENTE d’un terrain de 406 m² à GuidelPROCHE DE LORIENTTerrain de 406 m² sur la côte atlantique et à quelques kilomètres de Lorient. Ce terrain se situe dans Guidel (56520). Son prix de vente est de 195 000 €. N’hésitez pas à prendre contact avec notre agence (LAPART Anne-Sophie : (Numéro supprimé)) pour plus d’informations sur ce terrain ou sur les démarches à suivre.
Guidel
TERRAIN ET MAISONVENTE d’une maison F3 (75 m²) à GuidelPROCHE DE LORIENT – MAISON 3 PIÈCES NEUVEEn vente sur le littoral atlantique et à quelques kilomètres de Lorient, Maisons de l’Avenir Lorient vous présente à Guidel (56520), cette maison de 3 pièces de 75 m². Son intérieur compte deux chambres, une cuisine et une salle de bains.Le terrain du bien est de 406 m².Cette maison possède 2 niveaux. Elle est proposée à l’achat pour 360 000 €.Contactez notre agence (LAPART Anne-Sophie : (Numéro supprimé)) pour tout renseignement sur cette maison, sur les démarches à suivre ou sur les modalités de vente. Maisons de l’Avenir Lorient vous accompagne à toutes les étapes de votre projet et dans tous vos projets immobiliers.
Guidel
TERRAIN ET MAISONMaison T4 (95 m²) à vendre à GuidelPROCHE DE LORIENT – MAISON 4 PIÈCES NEUVEEn vente : localisée sur la côte atlantique et à 10 km de Lorient, notre agence Maisons de l’Avenir Lorient est ravie de vous proposer cette maison de 4 pièces de 95 m² à Guidel (56520). Son intérieur offre trois chambres, une cuisine et deux salles de bains.Le terrain du bien est de 406 m².Cette maison possède 2 niveaux. Son prix de vente est de 404 000 €.Contactez notre agence (Anne-Sophie LAPART : (Numéro supprimé)) pour obtenir de plus amples informations sur la maison et sur les démarches à suivre. Maisons de l’Avenir Lorient est là pour vous accompagner à toutes les étapes de l’achat.
Guidel
TERRAIN ET MAISONVENTE : maison de 5 pièces (13 015 m²) à GuidelMAISON 5 PIÈCES NEUVE – PROCHE DE LORIENTSur le littoral atlantique et à quelques kilomètres de Lorient, laissez vous charmer par cette maison de 5 pièces de 13 015 m² à vendre à Guidel (56520).Cette maison compte 2 niveaux. Son intérieur inclut quatre chambres, une cuisine et deux salles de bains. Son prix de vente est de 496 000 €.N’hésitez pas à prendre contact avec Anne-Sophie LAPART (tél : (Numéro supprimé)) pour obtenir de plus amples informations sur la maison, sur les démarches à suivre et sur les modalités de vente. Concrétisez vos projets immobiliers avec Maisons de l’Avenir Lorient.
Guidel
TERRAIN ET MAISONGuidel : maison de 5 pièces (150 m²) en venteMAISON 5 PIÈCES NEUVE – PROCHE DE LORIENTEn vente : sur la côte atlantique et à 10 km de Lorient, nous vous présentons cette maison de 5 pièces de 150 m² et de 406 m² de terrain à Guidel (56520).Cette maison comporte 2 niveaux. Elle dispose de quatre chambres, d’une cuisine et de deux salles de bains. Elle est à vendre pour la somme de 565 000 €.N’hésitez pas à prendre contact avec Anne-Sophie LAPART (tél : (Numéro supprimé)) pour toute information sur le bien ou sur les démarches à suivre. Donnez vie à vos projets immobiliers avec Maisons de l’Avenir Lorient.
Guidel
TERRAIN ET MAISONMaison de 4 pièces (100 m²) en vente à GuidelPROCHE DE LORIENT – MAISON 4 PIÈCES OSSATURE BOISEn vente : sur la côte atlantique et à deux pas de Lorient, nous sommes ravis de vous présenter à Guidel (56520), cette maison de 4 pièces de plain-pied de 100 m².Conçue de plain-pied, elle se divise en trois chambres, une cuisine et deux salles de bains. La maison est neuve.Elle est proposée à l’achat pour 467 250 €.N’hésitez pas à prendre contact avec Anne-Sophie LAPART ((Numéro supprimé)) pour tout renseignement sur la maison ou sur les modalités de vente. Donnez vie à vos projets immobiliers avec Maisons de l’Avenir Lorient.
Quimperlé
TERRAINTerrain de 618 m² à vendre à QuimperléPROCHE CENTRE-VILLE – PROCHE DE LORIENTÀ Quimperlé (29300) en vente à 13 km de la côte atlantique et à 18 km de Lorient, découvrez ce terrain de 618 m². Il bénéficie d’une exposition sud-ouest. Il se situe non loin du centre-ville. Cinq établissements scolaires sont implantés à proximité, tout comme une structure d’accueil pour les enfants en bas âge. Niveau transports en commun, il y a la gare Quimperlé dans les environs. La nationale N165 est accessible à 2 km. On trouve des commerces, des boulangeries, un supermarché, quatre boucheries-charcuteries et deux bureaux de poste à proximité. Enfin, le marché Place saint Michel a lieu chaque vendredi.Ce terrain est proposé à l’achat pour 90 015 €. Contactez Marie LAURENT ((Numéro supprimé)) pour tout renseignement sur le terrain, sur les démarches à suivre ou sur les modalités de vente.
Quimperlé
TERRAIN ET MAISONVENTE : maison T3 (65 m²) à QuimperléPROCHE CENTRE-VILLE – MAISON 3 PIÈCES NEUVEÀ 13 km de l’océan Atlantique et à deux pas de Lorient, nous sommes heureux de vous présenter cette maison de 3 pièces de plain-pied de 65 m² et de 618 m² de terrain proche du centre-ville de Quimperlé (29300). Son intérieur inclut deux chambres, une cuisine et une salle de bains.Cette maison est neuve.On trouve cinq établissements scolaires à proximité, tout comme une structure d’accueil pour la petite enfance. Niveau transports en commun, il y a la gare Quimperlé à quelques pas du bien. La nationale N165 est accessible à 2 km. On trouve des commerces, des boulangeries, un supermarché, quatre boucheries charcuteries et deux poissonneries à quelques minutes. Enfin, le marché Place saint Michel a lieu chaque vendredi.Son prix de vente est de 240 500 €.N’hésitez pas à prendre contact avec notre agence (LAURENT Marie : (Numéro supprimé)) pour obtenir de plus amples informations sur la maison ou sur les modalités de vente. Concrétisez vos projets immobiliers avec Maisons de l’Avenir Quimper.
Quimperlé
TERRAIN ET MAISONMaison T4 (120 m²) à vendre à QuimperléPROCHE CENTRE-VILLE – MAISON 4 PIÈCES NEUVEÀ 13 km de la côte atlantique et à deux pas de Lorient, découvrez en vente, proche du centre-ville de Quimperlé (29300), cette maison de 4 pièces de plain-pied de 120 m².Son intérieur est composé de trois chambres, d’une cuisine et de deux salles de bains. Cette maison est neuve.Le terrain de la propriété est de 618 m².Il y a cinq établissements scolaires à proximité, tout comme une crèche. Niveau transports en commun, on trouve la gare Quimperlé juste à côté. La nationale N165 est accessible à 2 km. Il y a des commerces, des boulangeries, un supermarché, deux bureaux de poste et quatre boucheries-charcuteries à proximité. Le marché Place saint Michel anime le quartier chaque vendredi.Elle est à vendre pour la somme de 360 600 €.Prenez contact avec Marie LAURENT (tél : (Numéro supprimé)) pour toute question sur la maison. Maisons de l’Avenir Quimper est là pour vous accompagner dans tous vos projets immobiliers.
L’actualité immobilière à Guidel
27/11/2023
02/11/2023
30/10/2023
20/10/2023
16/10/2023
16/10/2023