Maison à construire à Guidel (56520)
Images
Description
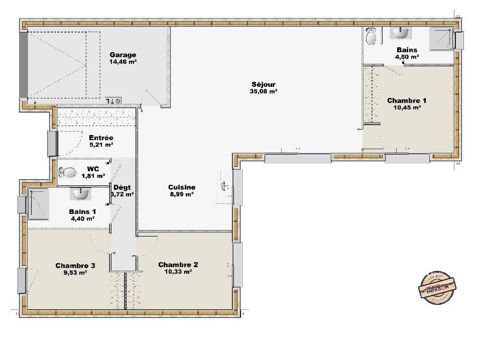
VENTE d'une maison T4 (94 m²) à Guidel
IDÉALEMENT SITUÉE - MAISON 4 PIÈCES NEUVE
En vente : sur le littoral atlantique et à 10 km de Lorient, nous vous proposons, idéalement située dans Guidel (56520), cette maison de 4 pièces de plain-pied de 94 m². Elle offre trois chambres, une cuisine et deux salles de bains.
Le terrain de la propriété est de 301 m².
Cette maison est neuve.
La maison est située dans un secteur prisé. Le Collège Privé Saint Jean Lasalle, l'École Primaire Privée Notre-Dame des Victoires et l'École Maternelle Publique Prat-Foën se trouvent à moins de 10 minutes à pied. Niveau transports en commun, il y a les gares Gestel et Quimperlé à moins de 10 minutes en voiture. On trouve un accès à la nationale N165 à 3 km. On trouve un tennis, une bibliothèque, un bassin de natation, des commerces, des boulangeries, deux supermarchés, une poissonnerie et une boucherie-charcuterie à proximité. Le marché Place Le Montagnière anime le quartier tous les mercredis matin.
Son prix de vente est de 430 000 €.
Contactez Christophe COLLOCH (tél : (Numéro supprimé)) pour toute information sur la maison, sur les démarches à suivre ou sur les modalités de vente. Maisons de l'Avenir Lorient est là pour vous accompagner dans tous vos projets immobiliers.
Logement susceptibles de vous intéresser
Nous vous proposons de découvrir aussi cette sélection de logements situés à moins de 10km de Guidel et qui seraient susceptibles de vous intéresser.
Pont-Scorff
TERRAINPont-Scorff : terrain de 353 m² en ventePROCHE DE LORIENTÀ Pont-Scorff (56620) à vendre à 14 km de la côte atlantique et à deux pas de Lorient, imaginez la maison de vos rêves sur ce terrain de 353 m². .Il est proposé à l’achat pour 71 000 €. N’hésitez pas à prendre contact avec Anne-Sophie LAPART ((Numéro supprimé)) pour plus d’informations sur ce terrain.
Pont-Scorff
TERRAIN ET MAISONVENTE d’une maison F4 (70 m²) à Pont-ScorffPROCHE DE LORIENT – MAISON 4 PIÈCES NEUVEEn vente à 14 km de l’océan Atlantique et à deux pas de Lorient, nous sommes heureux de vous proposer cette maison de 4 pièces de 70 m² à Pont-Scorff (56620). Son intérieur est composé de trois chambres, d’une cuisine et d’une salle de bains.Le terrain de cette maison s’étend sur 353 m².Cette maison comporte 2 niveaux. Elle est à vendre pour la somme de 218 000 €.Prenez contact avec Anne-Sophie LAPART ((Numéro supprimé)) pour toute question sur la maison, sur les démarches à suivre ou sur les modalités de vente. Maisons de l’Avenir Lorient est là pour vous accompagner à toutes les étapes de l’achat.
Pont-Scorff
TERRAIN ET MAISONMaison F4 (90 m²) à vendre à Pont-ScorffPROCHE DE LORIENT – MAISON 4 PIÈCES NEUVEÀ 14 km de la côte atlantique et à quelques kilomètres de Lorient, venez découvrir cette maison de 4 pièces de 90 m² et de 353 m² de terrain à Pont-Scorff (56620). Son intérieur est composé de trois chambres, d’une cuisine et de deux salles de bains.C’est une maison de 2 niveaux.Elle est à vendre pour la somme de 284 000 €.N’hésitez pas à prendre contact avec Anne-Sophie LAPART (tél : (Numéro supprimé)) pour tout renseignement sur la maison.
Pont-Scorff
TERRAIN ET MAISONMaison F5 (125 m²) en vente à Pont-ScorffPROCHE DE LORIENT – MAISON 5 PIÈCES NEUVEÀ 14 km de la côte atlantique et à 11 km de Lorient, en vente à Pont-Scorff (56620), nous sommes ravis de vous présenter cette maison de 5 pièces de 125 m².C’est une maison de 2 niveaux. Elle offre quatre chambres, une cuisine et deux salles de bains. Son prix de vente est de 361 000 €.N’hésitez pas à prendre contact avec Anne-Sophie LAPART (tél : (Numéro supprimé)) pour tout renseignement sur cette maison ou sur les démarches à suivre. Concrétisez vos projets immobiliers avec Maisons de l’Avenir Lorient.
Pont-Scorff
TERRAIN ET MAISONMaison T3 (95 m²) en vente à Pont-ScorffPROCHE DE LORIENT – MAISON 3 PIÈCES NEUVEEn vente : localisée à 14 km de l’océan Atlantique et à quelques kilomètres de Lorient, votre agence Maisons de l’Avenir Lorient est heureuse de vous proposer cette maison de 3 pièces de plain-pied de 95 m² à Pont-Scorff (56620). Elle dispose de trois chambres, d’une cuisine et d’une salle de bains.Le terrain du bien est de 353 m².Elle est à vendre pour la somme de 295 000 €.N’hésitez pas à prendre contact avec Anne-Sophie LAPART (tél : (Numéro supprimé)) pour toute question sur cette maison. Concrétisez vos projets immobiliers avec Maisons de l’Avenir Lorient.
Pont-Scorff
TERRAIN ET MAISONVENTE : maison de 5 pièces (120 m²) à Pont-ScorffMAISON 5 PIÈCES NEUVE – PROCHE DE LORIENTÀ vendre à 14 km de l’océan Atlantique et à deux pas de Lorient, Maisons de l’Avenir Lorient vous présente cette maison de 5 pièces de 120 m² à Pont-Scorff (56620). Elle se divise en quatre chambres, une cuisine et deux salles de bains.Le terrain de la propriété est de 353 m².C’est une maison de 2 niveaux. Son prix de vente est de 350 000 €.N’hésitez pas à prendre contact avec notre agence (LAPART Anne-Sophie : (Numéro supprimé)) pour toute information sur la maison, sur les modalités de vente ou sur les démarches à suivre. Maisons de l’Avenir Lorient est là pour vous accompagner à toutes les étapes de votre projet.
Pont-Scorff
TERRAIN ET MAISONVENTE : maison de 3 pièces (70 m²) à Pont-ScorffMAISON 3 PIÈCES OSSATURE BOIS – PROCHE DE LORIENTEn vente à 14 km de l’océan Atlantique et à deux pas de Lorient, votre agence Maisons de l’Avenir Lorient est ravie de vous proposer cette maison de 3 pièces de 70 m² et de 353 m² de terrain à Pont-Scorff (56620). Elle comporte deux chambres, une cuisine et une salle de bains.C’est une maison de 2 niveaux. Elle est proposée à l’achat pour 228 900 €.N’hésitez pas à prendre contact avec Anne-Sophie LAPART ((Numéro supprimé)) pour plus d’informations sur cette maison. Maisons de l’Avenir Lorient vous accompagne à toutes les étapes de votre projet et dans toutes vos démarches.
Pont-Scorff
TERRAINBelle opportunité à saisir sur la commune de Pont-scorff. Terrain viabilisé de 322m², bénéficiant d’une exposition optimale et d’un emplacement privilégié à proximité immédiate des commodités. Idéal pour concrétiser votre projet de construction sur mesure dans un environnement agréable et recherché. // Réf. : T210733. Prix terrain : 78 000 €, hors frais d'agence et de notaire à la charge de l'acquéreur. Ce terrain vous est proposé, par nos partenaires fonciers, dans le cadre d'un projet de construction avec nous. Les informations sur les risques auxquels ce bien est exposé sont disponibles sur le site Géorisques (www.georisques.gouv.fr).
Pont-Scorff
TERRAIN ET MAISONBelle opportunité à saisir sur la commune de Pont-scorff. Terrain viabilisé de 322m², bénéficiant d’une exposition optimale et d’un emplacement privilégié à proximité immédiate des commodités. Idéal pour concrétiser votre projet de construction sur mesure dans un environnement agréable et recherché. Dès l’entrée, vous serez séduit par une pièce de vie spacieuse et baignée de lumière, où salon, salle à manger et cuisine ouverte créent un espace convivial et chaleureux. L’agencement fluide et fonctionnel vous permet de profiter pleinement de chaque instant en famille ou entre amis. Côté nuit, la maison offre trois belles chambres, pensées pour le confort et la tranquillité de chacun. La suite parentale, intime et élégante, devient un véritable refuge, tandis que les chambres supplémentaires s’adaptent parfaitement aux besoins des enfants ou d’un bureau. Une salle de bain moderne complète cet espace avec style et praticité. À l’extérieur, un jardin agréable prolonge l’espace de vie, idéal pour savourer des moments en plein air. Un intérieur harmonieux, lumineux et conçu pour votre quotidien – tout ce qu’il faut pour s’y sentir bien dès le premier jour !. Pour vous assurer un confort de vie et conformément à la RE2025, nous avons choisi un mode de chauffage par PAC + plancher chauffant, volets roulants électriques. Prix hors peinture, décoration, revêtements de sol dans les chambres, cuisine équipée, frais de notaire, raccordements, dommage ouvrage. // Réf. : 2651-210733-RER. Prix terrain : 78 000 €, hors frais d'agence à la charge de l'acquéreur. Ce terrain vous est proposé, par nos partenaires fonciers, dans le cadre d'un projet de construction avec nous. Les informations sur les risques auxquels ce bien est exposé sont disponibles sur le site Géorisques (www.georisques.gouv.fr). Prix maison : 165 418 €.
L’actualité immobilière à Guidel
27/11/2023
02/11/2023
30/10/2023
20/10/2023
16/10/2023
16/10/2023