Maison à construire à La Trinité-sur-Mer (56470)
Images
Description
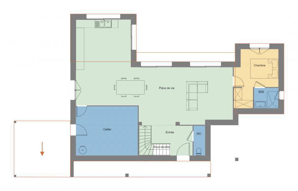
La Trinité-sur-Mer - Maison neuve 5 pièces - 140 m²
À deux pas de l'océan et de Vannes, découvrez cette maison neuve de 5 pièces sur 2 niveaux, avec 4 chambres, 2 salles de bains et une cuisine contemporaine, sur un terrain de 369 m².
Emplacement prisé : écoles, commerces, tennis, bibliothèque à proximité. Accès facile à la N165 et aux gares.
Prix : 621 000 €
Contactez Anne-Sophie LAPART au (Numéro supprimé). Maisons de l'Avenir Lorient vous accompagne pour concrétiser votre projet immobilier.
Logement susceptibles de vous intéresser
Nous vous proposons de découvrir aussi cette sélection de logements situés à moins de 10km de La Trinité-sur-Mer et qui seraient susceptibles de vous intéresser.
Ploemel
TERRAIN ET MAISONTerrain viabilisé de 450 m² en lotissement (18 lots) situé à deux pas du centre ville de PLOËRMEL. Commune dynamique du Morbihan située sur l’axe RENNES – LORIENT. Idéal pour la construction de votre future maison, ce terrain offre une belle exposition SUD/OUEST et le confort de toutes commodités à proximité (écoles, services, commerces). Belle opportunité à saisir !. Une maison spacieuse et bien pensée pour toute la famille ! Pensée pour allier confort et modernité, cette maison vous séduira par ses volumes optimisés et son agencement fonctionnel. Dès l’entrée, vous découvrez un vaste espace de vie, baigné de lumière, où le salon et la salle à manger offrent un cadre chaleureux pour des moments de partage. La cuisine ouverte, à la fois moderne et fonctionnelle, s’accompagne d’un cellier attenant, idéal pour faciliter le rangement et l’organisation du quotidien. Toujours au rez-de-chaussée, une suite parentale élégante avec salle d’eau privative offre un véritable espace de détente, parfait pour préserver son intimité. À l’étage, trois chambres confortables et bien agencées permettent à chacun d’avoir son espace personnel. Une spacieuse salle de bain vient compléter cet étage, assurant praticité et bien-être pour toute la famille. Pour vous assurer un confort de vie optimal et en conformité avec la RE2025, nous avons opté pour un système de chauffage par pompe à chaleur (PAC) avec plancher chauffant au rez-de-chaussée et radiateurs à l’étage. Le logement est également équipé de volets roulants électriques. Prix hors fourniture et pose : des appareils sanitaires (sauf système de chauffage et d'eau chaude sanitaire), du carrelage et de la faïence, des revêtements de sol dans les chambres. Hors décoration et aménagement intérieur et peinture. Hors raccordements, frais de notaire et dommage ouvrage. // Réf. : 2472-210469-TOB. Prix terrain : 55 000 €, hors frais d'agence à la charge de l'acquéreur. Ce terrain vous est proposé, par nos partenaires fonciers, dans le cadre d'un projet de construction avec nous. Les informations sur les risques auxquels ce bien est exposé sont disponibles sur le site Géorisques (www.georisques.gouv.fr). Prix maison : 168 859 €.
Ploemel
TERRAIN ET MAISONTerrain viabilisé de 450 m² en lotissement (18 lots) situé à deux pas du centre ville de PLOËRMEL. Commune dynamique du Morbihan située sur l’axe RENNES – LORIENT. Idéal pour la construction de votre future maison, ce terrain offre une belle exposition SUD/OUEST et le confort de toutes commodités à proximité (écoles, services, commerces). Belle opportunité à saisir !. Une maison élégante et bien pensée pour un quotidien confortable ! Avec ses espaces généreux et son agencement optimisé, cette maison est idéale pour une vie de famille harmonieuse. Au rez-de-chaussée, profitez d’un grand espace de vie ouvert, baigné de lumière, où le salon, la salle à manger et la cuisine se rejoignent en toute fluidité. Un cellier pratique, une salle d’eau et un WC indépendant viennent compléter cet espace. Une chambre au rez-de-chaussée offre une flexibilité précieuse. L’étage se compose de trois belles chambres, parfaites pour accueillir toute la famille. Une grande salle de bain, un second WC et un palier fonctionnel assurent un confort optimal. Une maison moderne, spacieuse et conçue pour répondre à toutes vos attentes !. Pour vous assurer un confort de vie optimal et en conformité avec la RE2025, nous avons opté pour un système de chauffage par pompe à chaleur (PAC) avec plancher chauffant au rez-de-chaussée et radiateurs à l’étage. Le logement est également équipé de volets roulants électriques. Prix hors fourniture et pose : des appareils sanitaires (sauf système de chauffage et d'eau chaude sanitaire), du carrelage et de la faïence, des revêtements de sol dans les chambres. Hors décoration et aménagement intérieur et peinture. Hors raccordements, frais de notaire et dommage ouvrage. // Réf. : 2508-210469-TOB. Prix terrain : 55 000 €, hors frais d'agence à la charge de l'acquéreur. Ce terrain vous est proposé, par nos partenaires fonciers, dans le cadre d'un projet de construction avec nous. Les informations sur les risques auxquels ce bien est exposé sont disponibles sur le site Géorisques (www.georisques.gouv.fr). Prix maison : 159 215 €.
Ploemel
TERRAIN ET MAISONTerrain viabilisé de 450 m² en lotissement (18 lots) situé à deux pas du centre ville de PLOËRMEL. Commune dynamique du Morbihan située sur l’axe RENNES – LORIENT. Idéal pour la construction de votre future maison, ce terrain offre une belle exposition SUD/OUEST et le confort de toutes commodités à proximité (écoles, services, commerces). Belle opportunité à saisir !. Un intérieur moderne et fonctionnel pour toute la famille ! Cette maison a été conçue pour offrir espace et confort avec un agencement pensé pour le bien-être de chacun. Au rez-de-chaussée, une grande pièce de vie baignée de lumière vous accueille, offrant un cadre chaleureux où le salon, la salle à manger et la cuisine se fondent harmonieusement. Un cellier bien situé vient compléter cet espace pour un rangement optimal. Pour plus de confort, une suite parentale avec salle d’eau est aménagée au rez-de-chaussée, garantissant indépendance et tranquillité. À l’étage, trois chambres spacieuses offrent à chaque membre de la famille un espace personnel agréable. Une grande salle de bain complète cet étage, idéale pour le quotidien. Pour vous assurer un confort de vie optimal et en conformité avec la RE2025, nous avons opté pour un système de chauffage par pompe à chaleur (PAC) avec plancher chauffant au rez-de-chaussée et radiateurs à l’étage. Le logement est également équipé de volets roulants électriques. Prix hors fourniture et pose : des appareils sanitaires (sauf système de chauffage et d'eau chaude sanitaire), du carrelage et de la faïence, des revêtements de sol dans les chambres. Hors décoration et aménagement intérieur et peinture. Hors raccordements, frais de notaire et dommage ouvrage. // Réf. : 2476-210469-TOB. Prix terrain : 55 000 €, hors frais d'agence à la charge de l'acquéreur. Ce terrain vous est proposé, par nos partenaires fonciers, dans le cadre d'un projet de construction avec nous. Les informations sur les risques auxquels ce bien est exposé sont disponibles sur le site Géorisques (www.georisques.gouv.fr). Prix maison : 168 859 €.
Ploemel
TERRAINTerrain viabilisé de 450 m² en lotissement (18 lots) situé à deux pas du centre ville de PLOËRMEL. Commune dynamique du Morbihan située sur l’axe RENNES – LORIENT. Idéal pour la construction de votre future maison, ce terrain offre une belle exposition SUD/OUEST et le confort de toutes commodités à proximité (écoles, services, commerces). Belle opportunité à saisir !. // Réf. : T210469. Prix terrain : 55 000 €, hors frais d'agence et de notaire à la charge de l'acquéreur. Ce terrain vous est proposé, par nos partenaires fonciers, dans le cadre d'un projet de construction avec nous. Les informations sur les risques auxquels ce bien est exposé sont disponibles sur le site Géorisques (www.georisques.gouv.fr).
Ploemel
TERRAINTerrain viabilisé de 450 m² en lotissement (18 lots) situé à deux pas du centre ville de PLOËRMEL. Commune dynamique du Morbihan située sur l’axe RENNES – LORIENT. Idéal pour la construction de votre future maison, ce terrain offre une belle exposition SUD/OUEST et le confort de toutes commodités à proximité (écoles, services, commerces). Belle opportunité à saisir !. // Réf. : T210469. Prix terrain : 55 000 €, hors frais d'agence et de notaire à la charge de l'acquéreur. Ce terrain vous est proposé, par nos partenaires fonciers, dans le cadre d'un projet de construction avec nous. Les informations sur les risques auxquels ce bien est exposé sont disponibles sur le site Géorisques (www.georisques.gouv.fr).
La Trinité-sur-Mer
TERRAINTerrains viabilisés de 369 m² à 401 m², libres de constructeur sur la commune de La Trinité-sur-Mer (56470), dans le Morbihan.Découvrez notre nouvelle opération « Kerisper » de 8 lots (dont 4 destinés aux Primo-Accédants) située rue de Kerisper.Idéalement située à 20 minutes d’Auray, 30 minutes de Vannes et 45 minutes de Lorient, la commune jouxte Carnac et Saint-Philibert.Le cœur de cette petite cité vibre au son des vagues et de son port, parmi les plus prestigieux de la région. Les amateurs de sports nautiques, de voile et de pêche trouveront leur bonheur dans cette région dynamique, où les loisirs liés à la mer sont à portée de main.Retrouvez l’ensemble de nos lots disponibles sur notre site internet.
Auray
TERRAINTerrain de 593 m² en vente à AurayPROCHE DE LORIENTÀ Auray (56400) à 12 km de l’océan Atlantique et à 30 km de Lorient, découvrez ce terrain de 593 m². Plusieurs écoles (maternelle, élémentaire, primaire et lycée) sont implantées à moins de 10 minutes. La nationale N165 est accessible à 2 km. On trouve une bibliothèque, un tennis, des commerces, des boulangeries, deux supermarchésIl est à vendre pour la somme de 239 000 €. Contactez Anne-Sophie LAPART (tél : (Numéro supprimé)) pour tout renseignement sur le terrain ou sur les démarches à suivre. Faites de vos projets immobiliers une réalité avec Maisons de l’Avenir Lorient.
Auray
TERRAIN ET MAISONVENTE : maison T4 (70 m²) à AurayMAISON 4 PIÈCES NEUVE – PROCHE DE LORIENTEn vente : à 12 km de l’océan Atlantique et à 30 km de Lorient, laissez vous charmer par à Auray (56400), cette maison de 4 pièces de 70 m².C’est une maison de 2 niveaux. Elle compte trois chambres, une cuisine et une salle de bains. Elle est proposée à l’achat pour 401 000 €.Prenez contact avec Anne-Sophie LAPART ((Numéro supprimé)) pour plus de renseignements sur cette maison.
Auray
TERRAIN ET MAISONVENTE d’une maison T5 (135 m²) à AurayMAISON 5 PIÈCES NEUVE – PROCHE DE LORIENTÀ vendre : localisée à 12 km de l’océan Atlantique et à deux pas de Lorient, Maisons de l’Avenir Lorient vous propose cette maison de 5 pièces de 135 m² à Auray (56400). Elle propose quatre chambres, une cuisine et deux salles de bains.Le terrain de la propriété est de 593 m².Cette maison possède 2 niveaux. Elle est à vendre pour la somme de 551 000 €.Contactez Anne-Sophie LAPART (tél : (Numéro supprimé)) pour toute information sur la maison. Maisons de l’Avenir Lorient vous accompagne dans tous vos projets immobiliers et dans toutes vos démarches.
L’actualité immobilière à La Trinité-sur-Mer
27/11/2023
02/11/2023
30/10/2023
20/10/2023
16/10/2023
16/10/2023